Рейтинг@Mail.ru
Переверните экран
Новостройки Квартиры Ипотека Новостройки Москвы Новостройки Подмосковья Новостройки Новой Москвы Готовые новостройки Новостройки на карте Акции от застройщиков Коммерческие помещения Продавцы и застройщики Панорамы новостроек Видеообзор новостроек Экспертиза новостроек Экология Москвы и Подмосковья Студии 1-комнатные 2-комнатные 3-комнатные Квартиры на карте Ипотечный калькулятор Семейная ипотека Военная ипотека Банки и программы Медиа Новости недвижимости Мнение эксперта Аналитика рынка Покупателю Экспертиза новостроек Эксперты и авторы О проекте Контакты Реклама на сайте Vk Youtube Telegram Дзен Машиноместа Апартаменты #траншевая ипотека #рассрочка ИТ-ипотека Квартиры со скидками до 40% Видео 360° новостроек Субсидированная застройщиком Rutube Поиск дома в Москве Программа реновации в Москве Новостройки премиум-класса Новостройки бизнес-класса Рассрочка Траншевая ипотека Дома и коттеджи Коттеджные поселки в Новой Москве Готовые коттеджные поселки Строящиеся коттеджные поселки Коттеджные поселки в лесу Коттеджные поселки у водоема Коттеджные поселки в ипотеку Бизнес-центры Коттеджи Ипотека со ставкой 0,1%
4-комн. квартира, 72.76 м2, 4 этаж
Срок сдачи 2 квартал 2028 года
13 815 365 
17 138 048
189 876 2
обновлено 3 мая

Описание 4-комн. квартиры

Новостройка
Застройщик
Срок ГК
2 квартал 2028 года
Стадия строительства
котлован/фундамент
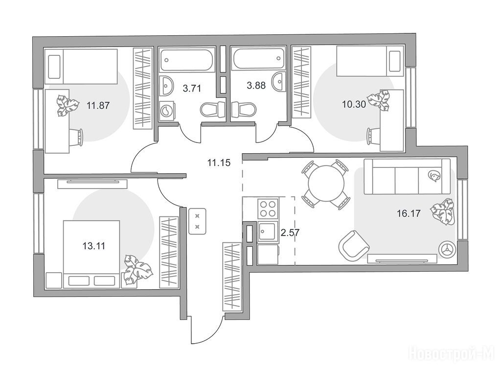
Общая площадь
72.76 м2
Жилая площадь
35.28 м2
Площадь кухни
18.74 м2
Этаж
4 / 5
Отделка
нет

Расположение 4-комн. квартиры

Станция МЦД
Дом
9
Адрес
вблизи д. Николо-Урюпино, секция 4

Способы покупки

Особенности

Продается четырехкомнатная квартира в новостройке ЖК «Аникеевский» по адресу Московская область, Красногорск городской округ, Красногорск, вблизи д. Николо-Урюпино. Общая площадь квартиры - 72.76 кв. м. Тип проекта, по которому построен дом — Монолитно-кирпичный, компания-застройщик — ГК «Гранель». Стоимость квартиры — 13 815 365 руб. Способы оплаты можно уточнить у продавца. Срок сдачи — 2 квартал 2028. Более подробная информация по телефону.

Правовые документы

ГК «Гранель»
ГК «Гранель»
Сданных 16
|
Строящихся 17
Время работы 09:00 — 21:00
Заказать обратный звонок
Онлайн-сделка
Выбирайте квартиру в ЖК «Аникеевский» по ценам от застройщика

Похожие квартиры в ЖК «Аникеевский»

2 этаж
из 5 2 квартал 2028
Московская область, Красногорск городской округ
Аникеевка
5 мин.
9
Корпус
нет
Отделка
2.80 м
Потолки
ЖК «Аникеевский»
13 674 032 16 962 723
Альфа-Банк, Всероссийский банк развития регионов, СберБанк, Азиатско-Тихоокеанский Банк, Металлинвестбанк, Совкомбанк, ДОМ.РФ, Банк Россия, Банк Санкт-Петербург, Абсолют Банк, Уралсиб, Севергазбанк, Сургутнефтегазбанк, ВТБ, МТС Банк
6.00%
Ставка
30.10%
Первый взнос
от 81 983 /мес.
Все варианты
Этаж 9/14
МО, ЖК «Аникеевский»
Аникеевка
5 мин.
Строится
Этаж 7/14
МО, ЖК «Аникеевский»
Аникеевка
5 мин.
Строится
студия 22,16 м2 6 278 167
Этаж 13/14
МО, ЖК «Аникеевский»
Аникеевка
5 мин.
Строится
Этаж 2/14
МО, ЖК «Аникеевский»
Аникеевка
5 мин.
Строится
Посмотреть 78 квартир в ЖК «Аникеевский»
Этаж 2/14
МО, ЖК «Аникеевский»
Аникеевка
5 мин.
Строится
2-комн. квартира 31,48 м2 6 833 954
Этаж 13/14
МО, ЖК «Аникеевский»
Аникеевка
5 мин.
Строится
2-комн. квартира 31,67 м2 6 685 975
Этаж 6/14
МО, ЖК «Аникеевский»
Аникеевка
5 мин.
Строится
Этаж 3/14
МО, ЖК «Аникеевский»
Аникеевка
5 мин.
Строится
2-комн. квартира 32,83 м2 8 696 277
Этаж 13/14
МО, ЖК «Аникеевский»
Аникеевка
5 мин.
Строится
Посмотреть 110 квартир в ЖК «Аникеевский»
Этаж 10/14
МО, ЖК «Аникеевский»
Аникеевка
5 мин.
Строится
3-комн. квартира 50,21 м2 9 387 369
Этаж 6/6
МО, ЖК «Аникеевский»
Аникеевка
5 мин.
Строится
Этаж 13/14
МО, ЖК «Аникеевский»
Аникеевка
5 мин.
Строится
Этаж 5/14
МО, ЖК «Аникеевский»
Аникеевка
5 мин.
Строится
Посмотреть 89 квартир в ЖК «Аникеевский»
4-комн. квартира 71,11 м2 12 391 359
Этаж 1/6
МО, ЖК «Аникеевский»
Аникеевка
5 мин.
Строится
4-комн. квартира 71,49 м2 12 457 576
Этаж 1/6
МО, ЖК «Аникеевский»
Аникеевка
5 мин.
Строится
4-комн. квартира 72,76 м2 13 674 032
Этаж 2/5
МО, ЖК «Аникеевский»
Аникеевка
5 мин.
Строится
4-комн. квартира 73,04 м2 14 728 775
Этаж 3/14
МО, ЖК «Аникеевский»
Аникеевка
5 мин.
Строится
Посмотреть 20 квартир в ЖК «Аникеевский»

Скидки и спецпредложения от застройщиков

ЖК «Аникеевский» на карте

Выгодные предложения на новостройки

Отзывы о ЖК «Аникеевский»

Самый полезный отзыв
П
14 апреля 2022
Оценка:
Достоинства
Экология
Двор, окружение
Недавно ездили в офис продаж. Понравился проект, высота застройки до 6 этажей, первые этажи будут коммерческие, территорию благоустроят, рядом лес. До метро 8-10 минут на транспорте. раздумываем о покупке квартиры тут, для семьи идеальный вариант.
Показать все комментарии
Ответить
Самый новый отзыв
И
13 марта
Оценка:
Достоинства
Транспортная доступность
Живу в ЖК уже 1.5 года,очень довольна,что выбрали с мужем это направление.Чистый воздух,много разного транспорта.Спокойно,тихо,и очень красиво, вокруг лес.....
Ответить

Оставить отзыв

Добавьте отзыв, заполнив личные данные, или сначала войдите на сайт, тогда информация будет автоматически взята из личного профиля.
Оценка*