Рейтинг@Mail.ru
Переверните экран
Новостройки Квартиры Ипотека Новостройки Москвы Новостройки Подмосковья Новостройки Новой Москвы Готовые новостройки Новостройки на карте Акции от застройщиков Коммерческие помещения Продавцы и застройщики Панорамы новостроек Видеообзор новостроек Экспертиза новостроек Экология Москвы и Подмосковья Студии 1-комнатные 2-комнатные 3-комнатные Квартиры на карте Ипотечный калькулятор Семейная ипотека Военная ипотека Банки и программы Медиа Новости недвижимости Мнение эксперта Аналитика рынка Покупателю Экспертиза новостроек Эксперты и авторы О проекте Контакты Реклама на сайте Vk Youtube Telegram Дзен Машиноместа Апартаменты #траншевая ипотека #рассрочка ИТ-ипотека Квартиры со скидками до 40% Видео 360° новостроек Субсидированная застройщиком Rutube Поиск дома в Москве Программа реновации в Москве Новостройки премиум-класса Новостройки бизнес-класса Рассрочка Траншевая ипотека Дома и коттеджи Бизнес-центры Бизнес-центры в Москве Бизнес-центры рядом с метро Строящиеся бизнес-центры Бизнес-центры класса A Бизнес-центры класса B Ипотека со ставкой 0,1%
Данное предложение на 29.03.2026 неактуально. Пожалуйста, ознакомьтесь с другими похожими предложениями в ЖК «Аникеевский» .
студия, 27.46 м2, 5 этаж
Срок сдачи 4 квартал 2027 года
5 169 934 
6 666 494
188 271 2
обновлено 28 марта

Описание студии

Новостройка
Застройщик
Срок ГК
4 квартал 2027 года
Стадия строительства
котлован/фундамент
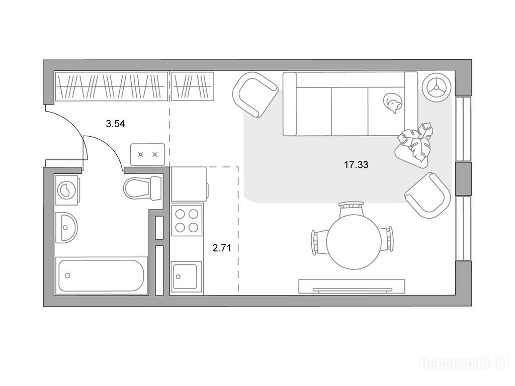
Общая площадь
27.46 м2
Жилая площадь
17.33 м2
Площадь кухни
2.71 м2
Этаж
5 / 6
Отделка
нет
Грузовой лифт
есть

Расположение студии

Станция МЦД
Дом
7
Адрес
вблизи д. Николо-Урюпино, корп. 7, секция 1

Способы покупки

Особенности

Продается студия в новостройке ЖК «Аникеевский» по адресу Московская область, Красногорск городской округ, Красногорск, вблизи д. Николо-Урюпино, корп. 7. Общая площадь квартиры - 27.46 кв. м. Тип проекта, по которому построен дом — Монолитно-кирпичный, компания-застройщик — ГК «Гранель». Стоимость квартиры — 5 169 934 руб. Способы оплаты можно уточнить у продавца. Срок сдачи — 4 квартал 2027. Более подробная информация по телефону.

Правовые документы

ГК «Гранель»
ГК «Гранель»
Сданных 16
|
Строящихся 17
Время работы 09:00 — 21:00
Онлайн-сделка
Выбирайте квартиру в ЖК «Аникеевский» по ценам от застройщика
студия 21,05 м2 5 858 882
Этаж 13/14
МО, ЖК «Аникеевский»
Аникеевка
5 мин.
Строится
студия 22,16 м2 6 167 830
Этаж 13/14
МО, ЖК «Аникеевский»
Аникеевка
5 мин.
Строится
студия 22,99 м2 6 032 543
Этаж 2/14
МО, ЖК «Аникеевский»
Аникеевка
5 мин.
Строится
студия 24,08 м2 5 551 219
Этаж 14/14
МО, ЖК «Аникеевский»
Аникеевка
5 мин.
Строится
Посмотреть 101 квартира в ЖК «Аникеевский»
1-комн. квартира 34,31 м2 7 533 732
Этаж 12/14
МО, ЖК «Аникеевский»
Аникеевка
5 мин.
Строится
Посмотреть 5 квартир в ЖК «Аникеевский»
Этаж 12/14
МО, ЖК «Аникеевский»
Аникеевка
5 мин.
Строится
Этаж 11/14
МО, ЖК «Аникеевский»
Аникеевка
5 мин.
Строится
2-комн. квартира 31,48 м2 6 833 954
Этаж 14/14
МО, ЖК «Аникеевский»
Аникеевка
5 мин.
Строится
2-комн. квартира 31,67 м2 6 685 975
Этаж 6/14
МО, ЖК «Аникеевский»
Аникеевка
5 мин.
Строится
Посмотреть 174 квартиры в ЖК «Аникеевский»
3-комн. квартира 49,01 м2 9 956 248
Этаж 8/14
МО, ЖК «Аникеевский»
Аникеевка
5 мин.
Строится
Этаж 6/6
МО, ЖК «Аникеевский»
Аникеевка
5 мин.
Строится
3-комн. квартира 50,42 м2 10 242 686
Этаж 13/14
МО, ЖК «Аникеевский»
Аникеевка
5 мин.
Строится
Этаж 1/6
МО, ЖК «Аникеевский»
Аникеевка
5 мин.
Строится
Посмотреть 145 квартир в ЖК «Аникеевский»
4-комн. квартира 70,63 м2 13 258 104
Этаж 2/6
МО, ЖК «Аникеевский»
Аникеевка
5 мин.
Строится
4-комн. квартира 71,11 м2 13 206 580
Этаж 1/6
МО, ЖК «Аникеевский»
Аникеевка
5 мин.
Строится
4-комн. квартира 71,49 м2 13 277 153
Этаж 1/6
МО, ЖК «Аникеевский»
Аникеевка
5 мин.
Строится
Этаж 4/5
МО, ЖК «Аникеевский»
Аникеевка
5 мин.
Строится
Посмотреть 23 квартиры в ЖК «Аникеевский»

Скидки и спецпредложения от застройщиков

ЖК «Аникеевский» на карте

Выгодные предложения на новостройки

Отзывы о ЖК «Аникеевский»

Самый полезный отзыв
П
14 апреля 2022
Оценка:
Достоинства
Экология
Двор, окружение
Недавно ездили в офис продаж. Понравился проект, высота застройки до 6 этажей, первые этажи будут коммерческие, территорию благоустроят, рядом лес. До метро 8-10 минут на транспорте. раздумываем о покупке квартиры тут, для семьи идеальный вариант.
Показать все комментарии
Ответить
Самый новый отзыв
И
13 марта
Оценка:
Достоинства
Транспортная доступность
Живу в ЖК уже 1.5 года,очень довольна,что выбрали с мужем это направление.Чистый воздух,много разного транспорта.Спокойно,тихо,и очень красиво, вокруг лес.....
Ответить

Оставить отзыв

Добавьте отзыв, заполнив личные данные, или сначала войдите на сайт, тогда информация будет автоматически взята из личного профиля.
Оценка*