Рейтинг@Mail.ru
Переверните экран
Новостройки Квартиры Ипотека Новостройки Москвы Новостройки Подмосковья Новостройки Новой Москвы Готовые новостройки Новостройки на карте Акции от застройщиков Коммерческие помещения Продавцы и застройщики Панорамы новостроек Видеообзор новостроек Экспертиза новостроек Экология Москвы и Подмосковья Студии 1-комнатные 2-комнатные 3-комнатные Квартиры на карте Ипотечный калькулятор Семейная ипотека Военная ипотека Банки и программы Медиа Новости недвижимости Мнение эксперта Аналитика рынка Покупателю Экспертиза новостроек Эксперты и авторы О проекте Контакты Реклама на сайте Vk Youtube Telegram Дзен Машиноместа Апартаменты #траншевая ипотека #рассрочка IT-ипотека Квартиры со скидками до 40% Видео 360° новостроек Субсидированная застройщиком Rutube Поиск дома в Москве Программа реновации в Москве Новостройки премиум-класса Новостройки бизнес-класса Рассрочка Траншевая ипотека ГАЛС Дома и коттеджи Бизнес-центры Бизнес-центры в Москве Бизнес-центры рядом с метро Строящиеся бизнес-центры Бизнес-центры класса A Бизнес-центры класса B ЛСР
студия, 29.90 м2, 8 этаж
Срок сдачи 3 квартал 2027 года
16 385 200 
548 000 2
обновлено 5 декабря

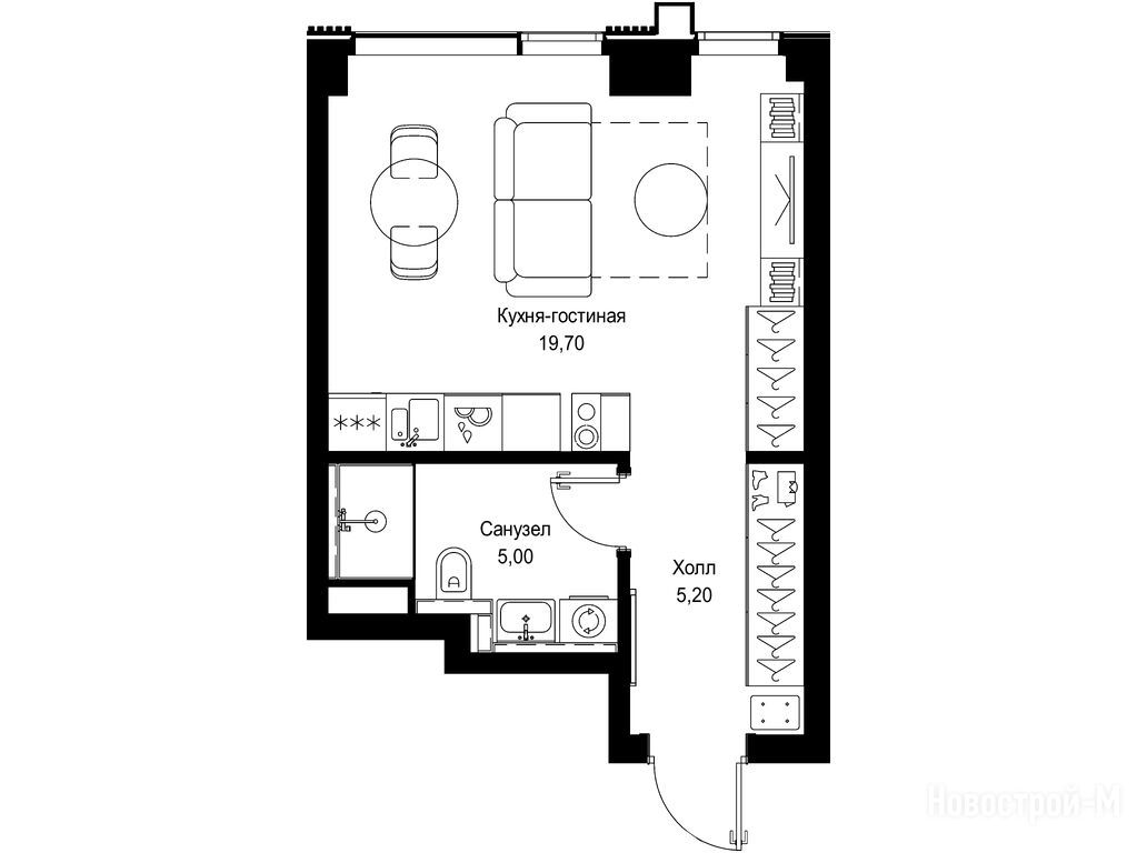
Описание студии

Срок ГК
3 квартал 2027 года
Стадия строительства
монтаж нижних этажей
Общая площадь
29.90 м2
Этаж
8 / 36
Отделка
нет

Расположение студии

Локация
Метро
Станция МЦД
Дом
2
Адрес
ул. Вишневая, д. 7, секция 1

Особенности

Продается студия в новостройке Мультиквартал CITYZEN (Ситизен) по адресу Москва, СЗАО, Покровское-Стрешнево, ул. Вишневая, д. 7. Общая площадь квартиры - 29.9 кв. м. Тип проекта, по которому построен дом — Монолитно-кирпичный, компания-застройщик — MR Group (МР Групп), ООО СЗ С-Девелопмент. Стоимость квартиры — 16 385 200 руб. Способы оплаты можно уточнить у продавца. Срок сдачи — 3 квартал 2027. Более подробная информация по телефону.
Инфоцентр новостроек
Инфоцентр новостроек
+7 (499) 705-91-41
Время работы 9:00 — 21:00

Похожие квартиры в Мультиквартале CITYZEN (Ситизен)

2 этаж
из 36 3 квартал 2027
Москва, СЗАО
Тушинская
9 мин.
2
Корпус
нет
Отделка
2.80 м
Потолки
Мультиквартал CITYZEN (Ситизен)
15 879 890
3 этаж
из 36 3 квартал 2027
Москва, СЗАО
Тушинская
9 мин.
2
Корпус
нет
Отделка
2.80 м
Потолки
Мультиквартал CITYZEN (Ситизен)
16 211 780
6 этаж
из 36 3 квартал 2027
Москва, СЗАО
Тушинская
9 мин.
2
Корпус
нет
Отделка
2.80 м
Потолки
Мультиквартал CITYZEN (Ситизен)
16 283 540
Посмотреть все спецпредложения
студия 21,00 м2 13 962 900
Этаж 2/17
Москва, Мультиквартал CITYZEN (Ситизен)
Тушинская
9 мин.
Строится
студия 21,80 м2 15 192 420
Этаж 3/14
Москва, Мультиквартал CITYZEN (Ситизен)
Тушинская
9 мин.
Строится
студия 23,80 м2 15 143 940
Этаж 4/30
Москва, Мультиквартал CITYZEN (Ситизен)
Тушинская
9 мин.
Строится
студия 24,30 м2 15 357 600
Этаж 3/17
Москва, Мультиквартал CITYZEN (Ситизен)
Тушинская
9 мин.
Строится
Посмотреть 35 квартир в Мультиквартале CITYZEN (Ситизен)
1-комн. квартира 33,00 м2 19 611 900
Этаж 44/48
Москва, Мультиквартал CITYZEN (Ситизен)
Тушинская
9 мин.
Строится
Этаж 31/48
Москва, Мультиквартал CITYZEN (Ситизен)
Тушинская
9 мин.
Строится
1-комн. квартира 33,70 м2 20 166 080
Этаж 41/48
Москва, Мультиквартал CITYZEN (Ситизен)
Тушинская
9 мин.
Строится
Этаж 11/48
Москва, Мультиквартал CITYZEN (Ситизен)
Тушинская
9 мин.
Строится
Посмотреть 154 квартиры в Мультиквартале CITYZEN (Ситизен)
2-комн. квартира 52,50 м2 26 649 000
Этаж 13/19
Москва, Мультиквартал CITYZEN (Ситизен)
Тушинская
9 мин.
Строится
Этаж 18/19
Москва, Мультиквартал CITYZEN (Ситизен)
Тушинская
9 мин.
Строится
Этаж 29/48
Москва, Мультиквартал CITYZEN (Ситизен)
Тушинская
9 мин.
Строится
2-комн. квартира 55,50 м2 26 473 500
Этаж 38/48
Москва, Мультиквартал CITYZEN (Ситизен)
Тушинская
9 мин.
Строится
Посмотреть 77 квартир в Мультиквартале CITYZEN (Ситизен)
3-комн. квартира 73,90 м2 34 430 010
Этаж 31/48
Москва, Мультиквартал CITYZEN (Ситизен)
Тушинская
9 мин.
Строится
3-комн. квартира 74,00 м2 35 238 800
Этаж 44/48
Москва, Мультиквартал CITYZEN (Ситизен)
Тушинская
9 мин.
Строится
3-комн. квартира 74,10 м2 32 463 210
Этаж 10/28
Москва, Мультиквартал CITYZEN (Ситизен)
Тушинская
9 мин.
Строится
3-комн. квартира 74,80 м2 33 906 840
Этаж 20/28
Москва, Мультиквартал CITYZEN (Ситизен)
Тушинская
9 мин.
Строится
Посмотреть 27 квартир в Мультиквартале CITYZEN (Ситизен)
4-комн. квартира 107,10 м2 43 032 780
Этаж 7/30
Москва, Мультиквартал CITYZEN (Ситизен)
Тушинская
9 мин.
Строится
4-комн. квартира 109,30 м2 44 572 540
Этаж 11/30
Москва, Мультиквартал CITYZEN (Ситизен)
Тушинская
9 мин.
Строится
4-комн. квартира 109,50 м2 46 701 750
Этаж 27/30
Москва, Мультиквартал CITYZEN (Ситизен)
Тушинская
9 мин.
Строится
Посмотреть 10 квартир в Мультиквартале CITYZEN (Ситизен)

Скидки и спецпредложения от застройщиков

Мультиквартал CITYZEN (Ситизен) на карте

Выгодные предложения на новостройки

Отзывы о Мультиквартале CITYZEN (Ситизен)

Самый полезный отзыв
М
18 марта 2024
Оценка:
Транспортная доступность
Социальная инфраструктура
Планировки
Способы покупки
Двор, окружение
Расположение
Я очень рада, что приобрела квартиру в этом жилом комплексе до повышения цен! Комплекс расположен очень удобно, все необходимое в шаговой доступности. Потолки высотой 2.85 м придают квартире простора. Отмечу дружелюбный персонал, готовый всегда прийти на помощь.
Ответить
Полезный отзыв?
Самый новый отзыв
ЮК
17 ноября
Оценка:
Планировки
Способы покупки
Внешний вид фасада
Двор, окружение
Чёткие сроки по CITYZEN внушают доверие - понятен момент с ключами и переездом – в конце 27го года.
Ответить
Полезный отзыв?
Добавьте отзыв, заполнив личные данные, или сначала войдите на сайт, тогда информация будет автоматически взята из личного профиля.
Оценка*