Рейтинг@Mail.ru
Переверните экран
Новостройки Квартиры Ипотека Новостройки Москвы Новостройки Подмосковья Новостройки Новой Москвы Готовые новостройки Новостройки на карте Акции от застройщиков Коммерческие помещения Продавцы и застройщики Панорамы новостроек Видеообзор новостроек Экспертиза новостроек Экология Москвы и Подмосковья Студии 1-комнатные 2-комнатные 3-комнатные Квартиры на карте Ипотечный калькулятор Семейная ипотека Военная ипотека Банки и программы Медиа Новости недвижимости Мнение эксперта Аналитика рынка Покупателю Экспертиза новостроек Эксперты и авторы О проекте Контакты Реклама на сайте Vk Youtube Telegram Дзен Машиноместа Апартаменты #траншевая ипотека #рассрочка IT-ипотека Квартиры со скидками до 40% Видео 360° новостроек Субсидированная застройщиком Rutube Поиск дома в Москве Программа реновации в Москве Новостройки премиум-класса Новостройки бизнес-класса Рассрочка Траншевая ипотека ГАЛС Дома и коттеджи Бизнес-центры Бизнес-центры в Москве Бизнес-центры рядом с метро Строящиеся бизнес-центры Бизнес-центры класса A Бизнес-центры класса B ЛСР
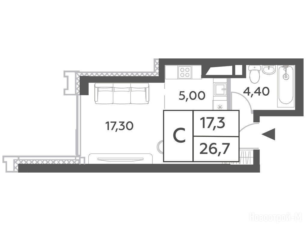
1-комн. квартира, 26.70 м2, 38 этаж
Сдан
17 248 671 
19 600 763
646 018 2
обновлено 5 декабря

Описание 1-комн. квартиры

Срок ГК
Дом сдан
Стадия строительства
выдача ключей + заселение
Тип проекта
Общая площадь
26.70 м2
Этаж
38 / 52
Грузовой лифт
есть

Расположение 1-комн. квартиры

Локация
Станция МЦД
Дом
Башня ENERGY
Адрес
пр-кт Генерала Дорохова, д.49, секция 1

Особенности

Продается однокомнатная квартира в новостройке ЖК Will Towers (Вилл Тауэрс) по адресу Москва, ЗАО, Раменки, пр-кт Генерала Дорохова, д.49. Общая площадь квартиры - 26.7 кв. м. Тип проекта, по которому построен дом — Монолит, компания-застройщик — АО «Управление Экспериментальной Застройки микрорайонов» (АО «УЭЗ»), АО «Центр-Инвест». Стоимость квартиры — 17 248 671 руб. Способы оплаты можно уточнить у продавца. Более подробная информация по телефону.
АО «Центр-Инвест»
АО «Центр-Инвест»
Сданных 11
|
Строящихся 4
Время работы 09:00 — 21:00
Выбирайте квартиру в ЖК Will Towers (Вилл Тауэрс) по ценам от застройщика
Посмотреть все спецпредложения
Этаж 25/52
Москва, ЖК Will Towers (Вилл Тауэрс)
Минская
20 мин.
Сдан
студия 26,20 м2 16 507 956
Этаж 18/52
Москва, ЖК Will Towers (Вилл Тауэрс)
Минская
20 мин.
Сдан
Этаж 14/52
Москва, ЖК Will Towers (Вилл Тауэрс)
Минская
20 мин.
Сдан
2-комн. квартира 48,70 м2 26 289 284
Этаж 30/56
Москва, ЖК Will Towers (Вилл Тауэрс)
Минская
20 мин.
Сдан
2-комн. квартира 49,00 м2 26 291 385
Этаж 25/56
Москва, ЖК Will Towers (Вилл Тауэрс)
Минская
20 мин.
Сдан
2-комн. квартира 49,10 м2 26 230 280
Этаж 21/56
Москва, ЖК Will Towers (Вилл Тауэрс)
Минская
20 мин.
Сдан
2-комн. квартира 50,00 м2 26 945 116
Этаж 23/56
Москва, ЖК Will Towers (Вилл Тауэрс)
Минская
20 мин.
Сдан
Посмотреть 41 квартира в ЖК Will Towers (Вилл Тауэрс)
3-комн. квартира 72,00 м2 34 544 632
Этаж 41/56
Москва, ЖК Will Towers (Вилл Тауэрс)
Минская
20 мин.
Сдан
3-комн. квартира 72,10 м2 32 942 645
Этаж 11/56
Москва, ЖК Will Towers (Вилл Тауэрс)
Минская
20 мин.
Сдан
3-комн. квартира 72,30 м2 35 184 644
Этаж 20/56
Москва, ЖК Will Towers (Вилл Тауэрс)
Минская
20 мин.
Сдан
3-комн. квартира 72,80 м2 35 670 130
Этаж 45/56
Москва, ЖК Will Towers (Вилл Тауэрс)
Минская
20 мин.
Сдан
Посмотреть 112 квартир в ЖК Will Towers (Вилл Тауэрс)
4-комн. квартира 107,00 м2 50 880 956
Этаж 35/52
Москва, ЖК Will Towers (Вилл Тауэрс)
Минская
20 мин.
Сдан
4-комн. квартира 110,70 м2 52 299 922
Этаж 25/52
Москва, ЖК Will Towers (Вилл Тауэрс)
Минская
20 мин.
Сдан
4-комн. квартира 111,30 м2 53 016 890
Этаж 36/52
Москва, ЖК Will Towers (Вилл Тауэрс)
Минская
20 мин.
Сдан
4-комн. квартира 111,50 м2 51 684 022
Этаж 34/52
Москва, ЖК Will Towers (Вилл Тауэрс)
Минская
20 мин.
Сдан
Посмотреть 23 квартиры в ЖК Will Towers (Вилл Тауэрс)

Скидки и спецпредложения от застройщиков

ЖК Will Towers (Вилл Тауэрс) на карте

Выгодные предложения на новостройки

Отзывы о ЖК Will Towers (Вилл Тауэрс)

Самый полезный отзыв
П
12 мая 2021
Оценка:
Внешний вид фасада
Расположение
Проект выглядит ультрасовременно! Рад, что Москва растет не только вширь, но и в высоту. Будем следить за строительством.
Ответить
Полезный отзыв?
Самый новый отзыв
АГ
08 июля
Оценка:
Способы покупки
Решение о покупке квартиры было принято быстро, из-за выгодных условий. Выдача ключей идёт прямо сейчас, очень радует. Квартира сдаётся без отделки, полная свобода для реализации дизайнерских идей. Можно сразу приступать к ремонту после покупки, не теряя времени.
Ответить
Полезный отзыв?
Добавьте отзыв, заполнив личные данные, или сначала войдите на сайт, тогда информация будет автоматически взята из личного профиля.
Оценка*