Рейтинг@Mail.ru
Переверните экран
Новостройки Квартиры Ипотека Новостройки Москвы Новостройки Подмосковья Новостройки Новой Москвы Готовые новостройки Новостройки на карте Акции от застройщиков Коммерческие помещения Продавцы и застройщики Панорамы новостроек Видеообзор новостроек Экспертиза новостроек Экология Москвы и Подмосковья Студии 1-комнатные 2-комнатные 3-комнатные Квартиры на карте Ипотечный калькулятор Семейная ипотека Военная ипотека Банки и программы Медиа Новости недвижимости Мнение эксперта Аналитика рынка Покупателю Экспертиза новостроек Эксперты и авторы О проекте Контакты Реклама на сайте Vk Youtube Telegram Дзен Машиноместа Апартаменты #траншевая ипотека #рассрочка ИТ-ипотека Квартиры со скидками до 40% Видео 360° новостроек Субсидированная застройщиком Rutube Поиск дома в Москве Программа реновации в Москве Новостройки премиум-класса Новостройки бизнес-класса Рассрочка Траншевая ипотека Дома и коттеджи Коттеджные поселки в Новой Москве Готовые коттеджные поселки Строящиеся коттеджные поселки Коттеджные поселки в лесу Коттеджные поселки у водоема Коттеджные поселки в ипотеку Бизнес-центры Коттеджи Ипотека со ставкой 0,1%
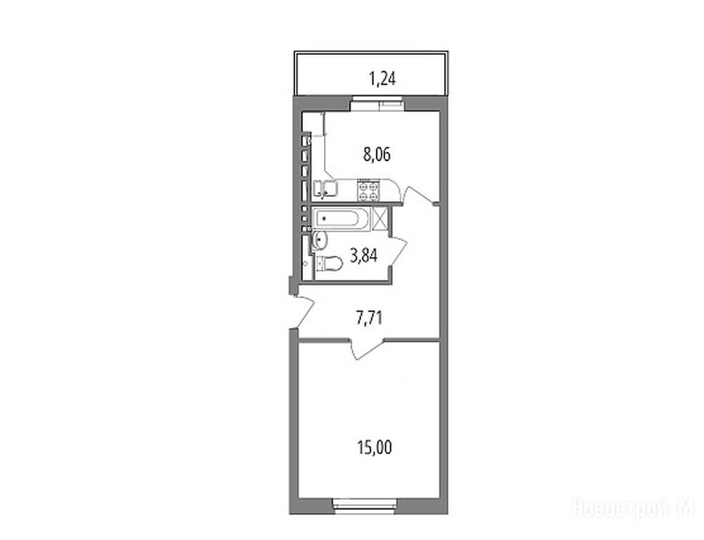
1-комн. квартира, 35.85 м2, 3 этаж
Срок сдачи 2 квартал 2026 года
10 970 100 
306 000 2
обновлено 13 мая

Описание 1-комн. квартиры

Застройщик
Срок ГК
2 квартал 2026 года
Стадия строительства
отделка фасада и внутренние работы
Общая площадь
35.85 м2
Этаж
3 / 3

Расположение 1-комн. квартиры

Локация
Метро
Станция МЦД
Дом
1
Адрес
ЖК «Внуково Парк 2» (Зеленая Москва), корп. 1

Особенности

Продается однокомнатная квартира в новостройке ЖК «Внуково Парк 2» (Зеленая Москва) по адресу Москва, ТиНАО, Новомосковский АО, Марушкинское С/П, Марушкино деревня, ЖК «Внуково Парк 2» (Зеленая Москва), корп. 1. Общая площадь квартиры - 35.85 кв. м. Тип проекта, по которому построен дом — Монолитно-кирпичный, компания-застройщик — ГК Атлант, ООО СЗ Миллениум. Стоимость квартиры — 10 970 100 руб. Способы оплаты можно уточнить у продавца. Срок сдачи — 2 квартал 2026. Более подробная информация по телефону.
Время работы 9:00 — 21:00
Выбирайте квартиру в ЖК «Внуково Парк 2» (Зеленая Москва) по ценам от застройщика
Комплекс расположен в деревне Марушкино Новомосковского округа столицы, вблизи живописных прудов и парков. ЖК «Внуково Парк 2» (Зеленая Москва)|Новострой-М
ЖК «Внуково Парк 2» (Зеленая Москва) ЖК «Внуково Парк 2» (Зеленая Москва)|Новострой-М
Этаж 1/3
НМ, ЖК «Внуково Парк 2» (Зеленая Москва)
Толстопальцево
5 мин.
Строится
Этаж 3/3
НМ, ЖК «Внуково Парк 2» (Зеленая Москва)
Толстопальцево
5 мин.
Строится
Этаж 3/3
НМ, ЖК «Внуково Парк 2» (Зеленая Москва)
Толстопальцево
5 мин.
Строится
Этаж 3/3
НМ, ЖК «Внуково Парк 2» (Зеленая Москва)
Толстопальцево
5 мин.
Строится
Этаж 2/3
НМ, ЖК «Внуково Парк 2» (Зеленая Москва)
Толстопальцево
5 мин.
Строится
Посмотреть 30 квартир в ЖК «Внуково Парк 2» (Зеленая Москва)
Этаж 3/3
НМ, ЖК «Внуково Парк 2» (Зеленая Москва)
Толстопальцево
5 мин.
Строится
Этаж 1/3
НМ, ЖК «Внуково Парк 2» (Зеленая Москва)
Толстопальцево
5 мин.
Строится
Этаж 2/3
НМ, ЖК «Внуково Парк 2» (Зеленая Москва)
Толстопальцево
5 мин.
Строится
Этаж 2/3
НМ, ЖК «Внуково Парк 2» (Зеленая Москва)
Толстопальцево
5 мин.
Строится
Посмотреть 18 квартир в ЖК «Внуково Парк 2» (Зеленая Москва)
Этаж 3/3
НМ, ЖК «Внуково Парк 2» (Зеленая Москва)
Толстопальцево
5 мин.
Строится
Этаж 2/3
НМ, ЖК «Внуково Парк 2» (Зеленая Москва)
Толстопальцево
5 мин.
Строится
Этаж 1/3
НМ, ЖК «Внуково Парк 2» (Зеленая Москва)
Толстопальцево
5 мин.
Строится
Этаж 3/3
НМ, ЖК «Внуково Парк 2» (Зеленая Москва)
Толстопальцево
5 мин.
Строится
Посмотреть 6 квартир в ЖК «Внуково Парк 2» (Зеленая Москва)

Скидки и спецпредложения от застройщиков

ЖК «Внуково Парк 2» (Зеленая Москва) на карте

Выгодные предложения на новостройки

Отзывы о ЖК «Внуково Парк 2» (Зеленая Москва)

Самый полезный отзыв
А
02 апреля 2018
Оценка:
Достоинства
Транспортная доступность
Экология
Готовность
Заселились в дом, делаем ремонт. Что вы теперь скажете? Люди, не читайте коменты нечестных конкурентов. Место отличное, дачный воздух. Ждём метро и тогда все ок. Сейчас здесь самые выгодные цены в новой Москве, объездили все, что можно. И никаких частных коммуникаций!!!!
Ответить
Самый новый отзыв
А
02 апреля 2018
Оценка:
Достоинства
Транспортная доступность
Экология
Готовность
Заселились в дом, делаем ремонт. Что вы теперь скажете? Люди, не читайте коменты нечестных конкурентов. Место отличное, дачный воздух. Ждём метро и тогда все ок. Сейчас здесь самые выгодные цены в новой Москве, объездили все, что можно. И никаких частных коммуникаций!!!!
Ответить

Оставить отзыв

Добавьте отзыв, заполнив личные данные, или сначала войдите на сайт, тогда информация будет автоматически взята из личного профиля.
Оценка*