Рейтинг@Mail.ru
Переверните экран
Новостройки Квартиры Ипотека Новостройки Москвы Новостройки Подмосковья Новостройки Новой Москвы Готовые новостройки Новостройки на карте Акции от застройщиков Коммерческие помещения Продавцы и застройщики Панорамы новостроек Видеообзор новостроек Экспертиза новостроек Экология Москвы и Подмосковья Студии 1-комнатные 2-комнатные 3-комнатные Квартиры на карте Ипотечный калькулятор Семейная ипотека Военная ипотека Банки и программы Медиа Новости недвижимости Мнение эксперта Аналитика рынка Покупателю Экспертиза новостроек Эксперты и авторы О проекте Контакты Реклама на сайте Vk Youtube Telegram Дзен Машиноместа Апартаменты #траншевая ипотека #рассрочка IT-ипотека Квартиры со скидками до 40% Видео 360° новостроек Субсидированная застройщиком Rutube Поиск дома в Москве Программа реновации в Москве Новостройки премиум-класса Новостройки бизнес-класса Рассрочка Траншевая ипотека ГАЛС Дома и коттеджи Бизнес-центры Бизнес-центры в Москве Бизнес-центры рядом с метро Строящиеся бизнес-центры Бизнес-центры класса A Бизнес-центры класса B ЛСР
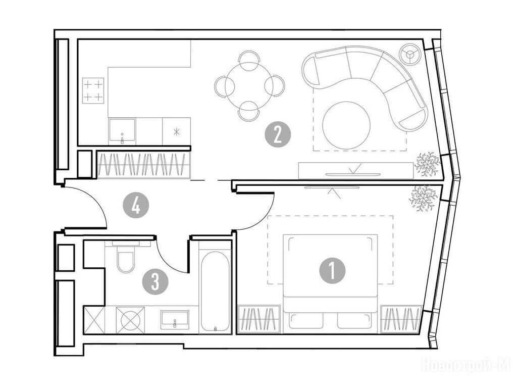
1-комн. квартира, 45.61 м2, 5 этаж
Срок сдачи 1 квартал 2028 года
17 682 997 
387 700 2
обновлено 5 декабря

Описание 1-комн. квартиры

Новостройка
Срок ГК
1 квартал 2028 года
Стадия строительства
Общая площадь
45.61 м2
Жилая площадь
13.12 м2
Площадь кухни
20.93 м2
Этаж
5 / 30
Грузовой лифт
есть

Расположение 1-комн. квартиры

Локация
Станция МЦД
Дом
1
Адрес
ул. Горбунова, вл. 27, корп. 1, секция 1

Особенности

Продается однокомнатная квартира в новостройке ЖК «UNO. Горбунова» по адресу Москва, ЗАО, Можайский, ул. Горбунова, вл. 27, корп. 1. Общая площадь квартиры - 45.61 кв. м. Тип проекта, по которому построен дом — Монолитно-кирпичный, компания-застройщик — ГК «Основа», СЗ ГЕРМЕССТРОЙ. Стоимость квартиры — 17 682 997 руб. Способы оплаты можно уточнить у продавца. Срок сдачи — 1 квартал 2028. Более подробная информация по телефону.
Инфоцентр новостроек
Инфоцентр новостроек
+7 (499) 705-91-41
Время работы 9:00 — 21:00
Посмотреть все спецпредложения
1-комн. квартира 28,70 м2 12 398 400
Этаж 3/30
Москва, ЖК «UNO. Горбунова»
Сетунь
10 мин.
Строится
1-комн. квартира 29,06 м2 12 379 560
Этаж 2/30
Москва, ЖК «UNO. Горбунова»
Сетунь
10 мин.
Строится
Этаж 8/30
Москва, ЖК «UNO. Горбунова»
Сетунь
10 мин.
Строится
1-комн. квартира 40,62 м2 16 593 270
Этаж 14/30
Москва, ЖК «UNO. Горбунова»
Сетунь
10 мин.
Строится
Посмотреть 35 квартир в ЖК «UNO. Горбунова»
2-комн. квартира 53,12 м2 21 556 096
Этаж 22/30
Москва, ЖК «UNO. Горбунова»
Сетунь
10 мин.
Строится
2-комн. квартира 53,13 м2 20 896 029
Этаж 14/30
Москва, ЖК «UNO. Горбунова»
Сетунь
10 мин.
Строится
2-комн. квартира 53,24 м2 20 353 652
Этаж 10/30
Москва, ЖК «UNO. Горбунова»
Сетунь
10 мин.
Строится
2-комн. квартира 53,56 м2 21 386 508
Этаж 18/30
Москва, ЖК «UNO. Горбунова»
Сетунь
10 мин.
Строится
Посмотреть 13 квартир в ЖК «UNO. Горбунова»
3-комн. квартира 82,32 м2 32 804 520
Этаж 30/30
Москва, ЖК «UNO. Горбунова»
Сетунь
10 мин.
Строится
3-комн. квартира 84,39 м2 33 629 415
Этаж 30/30
Москва, ЖК «UNO. Горбунова»
Сетунь
10 мин.
Строится
3-комн. квартира 95,03 м2 37 755 419
Этаж 30/30
Москва, ЖК «UNO. Горбунова»
Сетунь
10 мин.
Строится

Скидки и спецпредложения от застройщиков

ЖК «UNO. Горбунова» на карте

Выгодные предложения на новостройки

Отзывы о ЖК «UNO. Горбунова»

Самый полезный отзыв
ЭН
29 мая
Оценка:
Внешний вид фасада
Двор, окружение
Расположение
Честно говоря, из всего, что мы смотрели на западе Москвы, UNO на Горбунова нам больше всего понравился. Отличная транспортная доступность - это огромный плюс! Плюс, двор с ландшафтным дизайном запланирован, представила себе эту красоту и сразу захотелось там жить. Виды в сторону леса - вообще мечта, а застройщик, вроде, с хорошей репутацией, что тоже важно.
Ответить
Полезный отзыв?
Самый новый отзыв
АР
14 ноября
Оценка:
Долго ждать сдачу домов, а так бы купил тут, а не у соседей
Ответить
Полезный отзыв?
Добавьте отзыв, заполнив личные данные, или сначала войдите на сайт, тогда информация будет автоматически взята из личного профиля.
Оценка*