Рейтинг@Mail.ru
Переверните экран
Новостройки Квартиры Ипотека Новостройки Москвы Новостройки Подмосковья Новостройки Новой Москвы Готовые новостройки Новостройки на карте Акции от застройщиков Коммерческие помещения Продавцы и застройщики Панорамы новостроек Видеообзор новостроек Экспертиза новостроек Экология Москвы и Подмосковья Студии 1-комнатные 2-комнатные 3-комнатные Квартиры на карте Ипотечный калькулятор Семейная ипотека Военная ипотека Банки и программы Медиа Новости недвижимости Мнение эксперта Аналитика рынка Покупателю Экспертиза новостроек Эксперты и авторы О проекте Контакты Реклама на сайте Vk Youtube Telegram Дзен Машиноместа Апартаменты #траншевая ипотека #рассрочка IT-ипотека Квартиры со скидками до 40% Видео 360° новостроек Субсидированная застройщиком Rutube Поиск дома в Москве Программа реновации в Москве Новостройки премиум-класса Новостройки бизнес-класса Рассрочка Траншевая ипотека ГАЛС Дома и коттеджи Бизнес-центры Бизнес-центры в Москве Бизнес-центры рядом с метро Строящиеся бизнес-центры Бизнес-центры класса A Бизнес-центры класса B ЛСР
1-комн. квартира, 43.90 м2, 7 этаж
Сдан
6 700 896 
152 640 2
обновлено 5 декабря

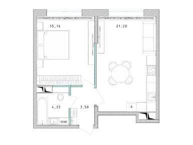
Описание 1-комн. квартиры

Новостройка
Срок ГК
Дом сдан
Стадия строительства
выдача ключей + заселение
Тип проекта
монолитно-панельный
Общая площадь
43.90 м2
Жилая площадь
15.16 м2
Площадь кухни
21.20 м2
Этаж
7 / 17
Грузовой лифт
есть

Расположение 1-комн. квартиры

Метро
Ж/Д-станция
Дом
1
Адрес
Ярославское ш., д. 194, секция 4

Особенности

Продается однокомнатная квартира в новостройке ЖК «Серебро» по адресу Московская область, Пушкинский район, Пушкино, Ярославское ш., д. 194. Общая площадь квартиры - 43.9 кв. м. Тип проекта, по которому построен дом — Монолитно-панельный, компания-застройщик — ООО «Жилой квартал 2», АО «Виктория Девелопмент», НДВ Супермаркет недвижимости. Стоимость квартиры — 6 700 896 руб. Способы оплаты можно уточнить у продавца. Более подробная информация по телефону.
Посмотреть все спецпредложения
студия 27,70 м2 4 778 666
Этаж 6/17
МО, ЖК «Серебро»
Медведково
27 мин.
Сдан
студия 27,80 м2 5 024 294
Этаж 11/17
МО, ЖК «Серебро»
Медведково
27 мин.
Сдан
студия 27,90 м2 5 134 046
Этаж 13/17
МО, ЖК «Серебро»
Медведково
27 мин.
Сдан
студия 28,00 м2 4 876 424
Этаж 7/17
МО, ЖК «Серебро»
Медведково
27 мин.
Сдан
Посмотреть 36 квартир в ЖК «Серебро»
1-комн. квартира 40,90 м2 7 689 200
Этаж 7/17
МО, ЖК «Серебро»
Медведково
27 мин.
Сдан
1-комн. квартира 41,20 м2 6 736 200
Этаж 10/17
МО, ЖК «Серебро»
Медведково
27 мин.
Сдан
Этаж 10/17
МО, ЖК «Серебро»
Медведково
27 мин.
Сдан
1-комн. квартира 44,00 м2 6 652 800
Этаж 6/17
МО, ЖК «Серебро»
Медведково
27 мин.
Сдан
Посмотреть 37 квартир в ЖК «Серебро»
Этаж 8/17
МО, ЖК «Серебро»
Медведково
27 мин.
Сдан
Этаж 6/17
МО, ЖК «Серебро»
Медведково
27 мин.
Сдан
Этаж 7/17
МО, ЖК «Серебро»
Медведково
27 мин.
Сдан
Этаж 12/17
МО, ЖК «Серебро»
Медведково
27 мин.
Сдан
Посмотреть 81 квартира в ЖК «Серебро»
3-комн. квартира 77,30 м2 9 279 102
Этаж 3/17
МО, ЖК «Серебро»
Медведково
27 мин.
Сдан
3-комн. квартира 77,40 м2 9 564 374
Этаж 6/17
МО, ЖК «Серебро»
Медведково
27 мин.
Сдан
3-комн. квартира 77,50 м2 9 667 937
Этаж 7/17
МО, ЖК «Серебро»
Медведково
27 мин.
Сдан
3-комн. квартира 77,60 м2 11 415 581
Этаж 16/17
МО, ЖК «Серебро»
Медведково
27 мин.
Сдан
Посмотреть 21 квартира в ЖК «Серебро»

Скидки и спецпредложения от застройщиков

ЖК «Серебро» на карте

Выгодные предложения на новостройки

Отзывы о ЖК «Серебро»

Самый полезный отзыв
G
03 марта 2020
Оценка:
Очень приятный комплекс, три дома на любой вкус, с шумоизоляцей и утепленной лоджией приятного метража, сдача первого дома в конце года, рядом устоявшийся район, поэтому все есть, большой плюс, что до ж/д станции или 20 минут пешком или 8 на транспорте. По планировками есть и стандартные и "евро" с объединенной кухней. Цена более чем, но разумеется будет подниматься. Еще из плюсов опытный застройщик работающий по закону, а значит тут ДДУ с эскроу, что несомненно выгодно дольщикам.
Показать все комментарии
Ответить
Полезный отзыв?
Самый новый отзыв
ОП
16 июля
Оценка:
Транспортная доступность
Двор, окружение
Расположение
Удобно, от остановки, которая находится около дома, до Москвы до ВДНХ ехать 40 минут, неплохо для пригорода. Серебро выглядит привлекательно, особенно если важна транспортная доступность. Нужно учитывать время в пути до работы или учебы при выборе. Надеюсь, общественный транспорт ходит регулярно и без перебоев.
Ответить
Полезный отзыв?
Добавьте отзыв, заполнив личные данные, или сначала войдите на сайт, тогда информация будет автоматически взята из личного профиля.
Оценка*