Рейтинг@Mail.ru
Переверните экран
Новостройки Квартиры Ипотека Новостройки Москвы Новостройки Подмосковья Новостройки Новой Москвы Готовые новостройки Новостройки на карте Акции от застройщиков Коммерческие помещения Продавцы и застройщики Панорамы новостроек Видеообзор новостроек Экспертиза новостроек Экология Москвы и Подмосковья Студии 1-комнатные 2-комнатные 3-комнатные Квартиры на карте Ипотечный калькулятор Семейная ипотека Военная ипотека Банки и программы Медиа Новости недвижимости Мнение эксперта Аналитика рынка Покупателю Экспертиза новостроек Эксперты и авторы О проекте Контакты Реклама на сайте Vk Youtube Telegram Дзен Машиноместа Апартаменты #траншевая ипотека #рассрочка ИТ-ипотека Квартиры со скидками до 40% Видео 360° новостроек Субсидированная застройщиком Rutube Поиск дома в Москве Программа реновации в Москве Новостройки премиум-класса Новостройки бизнес-класса Рассрочка Траншевая ипотека Дома и коттеджи Коттеджные поселки в Новой Москве Готовые коттеджные поселки Строящиеся коттеджные поселки Коттеджные поселки в лесу Коттеджные поселки у водоема Коттеджные поселки в ипотеку Бизнес-центры Коттеджи Ипотека со ставкой 0,1%
1-комн. квартира, 43.80 м2, 12 этаж
Сдан
7 000 992 
159 840 2
обновлено 13 мая

Описание 1-комн. квартиры

Новостройка
Срок ГК
Дом сдан
Стадия строительства
выдача ключей + заселение
Тип проекта
монолитно-панельный
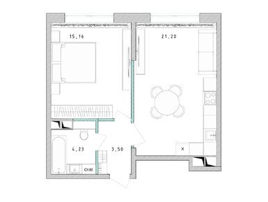
Общая площадь
43.80 м2
Жилая площадь
15.16 м2
Площадь кухни
21.20 м2
Этаж
12 / 17
Грузовой лифт
есть

Расположение 1-комн. квартиры

Метро
Ж/Д-станция
Дом
1
Адрес
Ярославское ш., д. 194, секция 4

Особенности

Продается однокомнатная квартира в новостройке ЖК «Серебро» по адресу Московская область, Пушкинский район, Пушкино, Ярославское ш., д. 194. Общая площадь квартиры - 43.8 кв. м. Тип проекта, по которому построен дом — Монолитно-панельный, компания-застройщик — ООО «Жилой квартал 2», АО «Виктория Девелопмент», НДВ Супермаркет недвижимости. Стоимость квартиры — 7 000 992 руб. Способы оплаты можно уточнить у продавца. Более подробная информация по телефону.
студия 27,80 м2 5 213 890
Этаж 11/17
МО, ЖК «Серебро»
Медведково
27 мин.
Сдан
студия 27,90 м2 5 185 076
Этаж 10/17
МО, ЖК «Серебро»
Медведково
27 мин.
Сдан
студия 28,00 м2 5 155 920
Этаж 9/17
МО, ЖК «Серебро»
Медведково
27 мин.
Сдан
студия 30,10 м2 5 191 464
Этаж 7/17
МО, ЖК «Серебро»
Медведково
27 мин.
Сдан
Посмотреть 51 квартира в ЖК «Серебро»
Этаж 11/17
МО, ЖК «Серебро»
Медведково
27 мин.
Сдан
1-комн. квартира 43,60 м2 6 843 456
Этаж 10/17
МО, ЖК «Серебро»
Медведково
27 мин.
Сдан
Этаж 14/17
МО, ЖК «Серебро»
Медведково
27 мин.
Сдан
Этаж 7/17
МО, ЖК «Серебро»
Медведково
27 мин.
Сдан
Посмотреть 32 квартиры в ЖК «Серебро»
Этаж 13/17
МО, ЖК «Серебро»
Медведково
27 мин.
Сдан
2-комн. квартира 57,60 м2 9 538 560
Этаж 16/17
МО, ЖК «Серебро»
Медведково
27 мин.
Сдан
Этаж 12/17
МО, ЖК «Серебро»
Медведково
27 мин.
Сдан
2-комн. квартира 59,00 м2 9 260 640
Этаж 10/17
МО, ЖК «Серебро»
Медведково
27 мин.
Сдан
Посмотреть 77 квартир в ЖК «Серебро»
3-комн. квартира 77,10 м2 11 579 109
Этаж 12/17
МО, ЖК «Серебро»
Медведково
27 мин.
Сдан
3-комн. квартира 77,30 м2 11 420 889
Этаж 11/17
МО, ЖК «Серебро»
Медведково
27 мин.
Сдан
3-комн. квартира 77,40 м2 11 123 781
Этаж 8/17
МО, ЖК «Серебро»
Медведково
27 мин.
Сдан
3-комн. квартира 77,50 м2 11 034 063
Этаж 7/17
МО, ЖК «Серебро»
Медведково
27 мин.
Сдан
Посмотреть 23 квартиры в ЖК «Серебро»

Скидки и спецпредложения от застройщиков

ЖК «Серебро» на карте

Выгодные предложения на новостройки

Отзывы о ЖК «Серебро»

Самый полезный отзыв
G
03 марта 2020
Оценка:
Очень приятный комплекс, три дома на любой вкус, с шумоизоляцей и утепленной лоджией приятного метража, сдача первого дома в конце года, рядом устоявшийся район, поэтому все есть, большой плюс, что до ж/д станции или 20 минут пешком или 8 на транспорте. По планировками есть и стандартные и "евро" с объединенной кухней. Цена более чем, но разумеется будет подниматься. Еще из плюсов опытный застройщик работающий по закону, а значит тут ДДУ с эскроу, что несомненно выгодно дольщикам.
Показать все комментарии
Ответить
Самый новый отзыв
ВМ
22 декабря 2025
Оценка:
Достоинства
Способы покупки
Обратил внимание на условия ипотеки сроком до 2 лет, по цифрам всё достаточно прозрачно, можно подобрать комфортную планировку.
Ответить

Оставить отзыв

Добавьте отзыв, заполнив личные данные, или сначала войдите на сайт, тогда информация будет автоматически взята из личного профиля.
Оценка*