Рейтинг@Mail.ru
Переверните экран
Новостройки Квартиры Ипотека Новостройки Москвы Новостройки Подмосковья Новостройки Новой Москвы Готовые новостройки Новостройки на карте Акции от застройщиков Коммерческие помещения Продавцы и застройщики Панорамы новостроек Видеообзор новостроек Экспертиза новостроек Экология Москвы и Подмосковья Студии 1-комнатные 2-комнатные 3-комнатные Квартиры на карте Ипотечный калькулятор Семейная ипотека Военная ипотека Банки и программы Медиа Новости недвижимости Мнение эксперта Аналитика рынка Покупателю Экспертиза новостроек Эксперты и авторы О проекте Контакты Реклама на сайте Vk Youtube Telegram Дзен Машиноместа Апартаменты #траншевая ипотека #рассрочка ИТ-ипотека Квартиры со скидками до 40% Видео 360° новостроек Субсидированная застройщиком Rutube Поиск дома в Москве Программа реновации в Москве Новостройки премиум-класса Новостройки бизнес-класса Рассрочка Траншевая ипотека Дома и коттеджи Бизнес-центры Бизнес-центры в Москве Бизнес-центры рядом с метро Строящиеся бизнес-центры Бизнес-центры класса A Бизнес-центры класса B Ипотека со ставкой 0,1%
Данная квартира является лидером продаж среди однокомнатных квартир в ЖК «Поколение Первых» по данным Росреестра
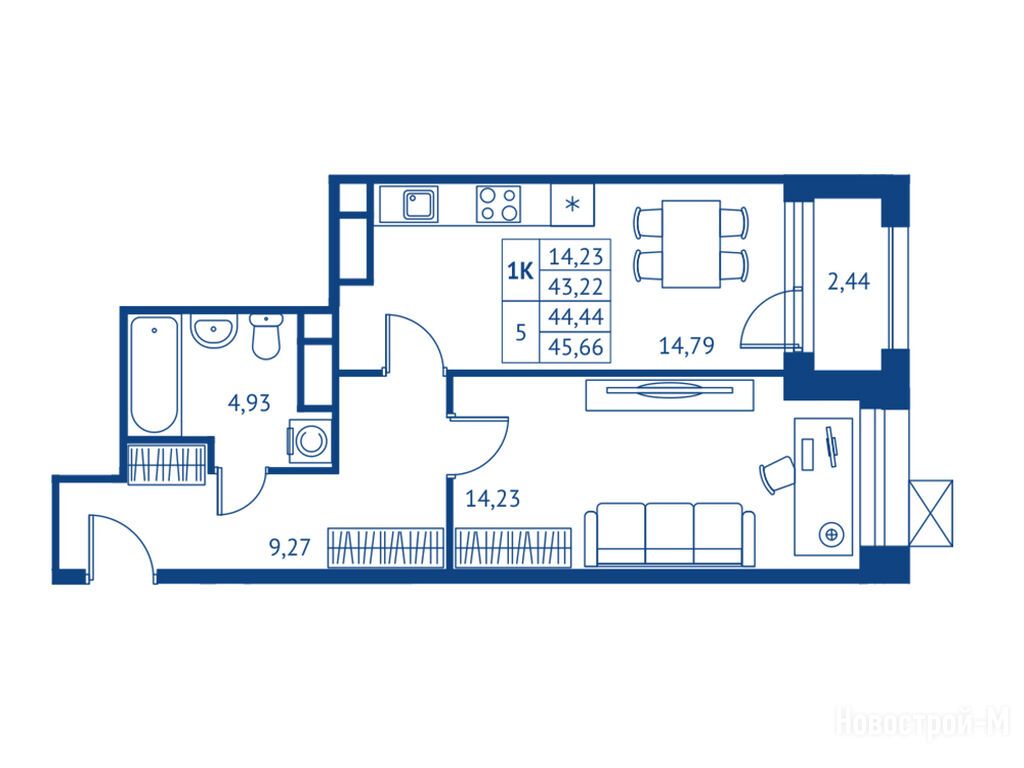
1-комн. квартира, 43.22 м2, 7 этаж
Срок сдачи 2 квартал 2028 года
10 416 020 
241 000 2
обновлено 3 марта

Описание 1-комн. квартиры

Срок ГК
2 квартал 2028 года
Стадия строительства
монтаж верхних этажей
Общая площадь
43.22 м2
Жилая площадь
14.23 м2
Площадь кухни
14.79 м2
Этаж
7 / 16
Отделка
нет
Грузовой лифт
есть

Расположение 1-комн. квартиры

Станция МЦК
Ж/Д-станция
Мытищи
23 мин.
Болшево
25 мин.
Дом
1
Адрес
ул. Калининградская, корп. 1, секция 1

Способы покупки

Особенности

Продается однокомнатная квартира в новостройке ЖК «Поколение Первых» по адресу Московская область, Королев городской округ, Королев, ул. Калининградская, корп. 1. Общая площадь квартиры - 43.22 кв. м. Тип проекта, по которому построен дом — Монолитно-кирпичный, компания-застройщик — Профи-Инвест, ООО СЗ Профи-Королев. Стоимость квартиры — 10 416 020 руб. Способы оплаты можно уточнить у продавца. Срок сдачи — 2 квартал 2028. Более подробная информация по телефону.
Профи-Инвест
Профи-Инвест
Сданных 9
|
Строящихся 7
Время работы 10:00 — 20:00
Выбирайте квартиру в ЖК «Поколение Первых» по ценам от застройщика
студия 30,01 м2 7 442 480
Этаж 13/17
МО, ЖК «Поколение Первых»
Ростокино
34 мин.
Строится
студия 30,26 м2 7 655 780
Этаж 8/17
МО, ЖК «Поколение Первых»
Ростокино
34 мин.
Строится
студия 31,23 м2 7 745 040
Этаж 13/17
МО, ЖК «Поколение Первых»
Ростокино
34 мин.
Строится
студия 31,50 м2 7 686 000
Этаж 9/17
МО, ЖК «Поколение Первых»
Ростокино
34 мин.
Строится
Посмотреть 79 квартир в ЖК «Поколение Первых»
1-комн. квартира 39,95 м2 9 508 100
Этаж 10/22
МО, ЖК «Поколение Первых»
Ростокино
34 мин.
Строится
1-комн. квартира 40,21 м2 9 610 190
Этаж 2/16
МО, ЖК «Поколение Первых»
Ростокино
34 мин.
Строится
1-комн. квартира 40,45 м2 9 950 700
Этаж 2/22
МО, ЖК «Поколение Первых»
Ростокино
34 мин.
Строится
1-комн. квартира 44,02 м2 10 432 740
Этаж 10/22
МО, ЖК «Поколение Первых»
Ростокино
34 мин.
Строится
Посмотреть 135 квартир в ЖК «Поколение Первых»
2-комн. квартира 54,05 м2 13 512 500
Этаж 16/22
МО, ЖК «Поколение Первых»
Ростокино
34 мин.
Строится
3-комн. квартира 80,39 м2 19 052 430
Этаж 2/16
МО, ЖК «Поколение Первых»
Ростокино
34 мин.
Строится
3-комн. квартира 80,92 м2 19 420 800
Этаж 13/22
МО, ЖК «Поколение Первых»
Ростокино
34 мин.
Строится
3-комн. квартира 81,22 м2 19 249 140
Этаж 2/16
МО, ЖК «Поколение Первых»
Ростокино
34 мин.
Строится
3-комн. квартира 81,24 м2 19 335 120
Этаж 11/22
МО, ЖК «Поколение Первых»
Ростокино
34 мин.
Строится
Посмотреть 32 квартиры в ЖК «Поколение Первых»

Скидки и спецпредложения от застройщиков

ЖК «Поколение Первых» на карте

Выгодные предложения на новостройки

Отзывы о ЖК «Поколение Первых»

Самый полезный отзыв
ЖК
29 мая 2025
Оценка:
Планировки
Способы покупки
Внешний вид фасада
Двор, окружение
Расположение
То, что комплекс состоит из 10 домов переменной этажности, мне нравится – не выглядит однообразно. Но самое интересное - они размещены на стилобатной части, в которой расположен двухуровневый паркинг и кладовые. Это очень удобно, все под рукой, не нужно далеко ходить. И места для машин, надеюсь, хватит всем.
Ответить
Полезный отзыв?
Самый новый отзыв
МТ
27 февраля
Оценка:
Престижный бизнес-класс в Королёве на Октябрьском бульваре — отличное местоположение.
Ответить
Полезный отзыв?
Добавьте отзыв, заполнив личные данные, или сначала войдите на сайт, тогда информация будет автоматически взята из личного профиля.
Оценка*