Рейтинг@Mail.ru
Переверните экран
Новостройки Квартиры Ипотека Новостройки Москвы Новостройки Подмосковья Новостройки Новой Москвы Готовые новостройки Новостройки на карте Акции от застройщиков Коммерческие помещения Продавцы и застройщики Панорамы новостроек Видеообзор новостроек Экспертиза новостроек Экология Москвы и Подмосковья Студии 1-комнатные 2-комнатные 3-комнатные Квартиры на карте Ипотечный калькулятор Семейная ипотека Военная ипотека Банки и программы Медиа Новости недвижимости Мнение эксперта Аналитика рынка Покупателю Экспертиза новостроек Эксперты и авторы О проекте Контакты Реклама на сайте Vk Youtube Telegram Дзен Машиноместа Апартаменты #траншевая ипотека #рассрочка ИТ-ипотека Квартиры со скидками до 40% Видео 360° новостроек Субсидированная застройщиком Rutube Поиск дома в Москве Программа реновации в Москве Новостройки премиум-класса Новостройки бизнес-класса Рассрочка Траншевая ипотека Дома и коттеджи Бизнес-центры Бизнес-центры в Москве Бизнес-центры рядом с метро Строящиеся бизнес-центры Бизнес-центры класса A Бизнес-центры класса B Ипотека со ставкой 0,1%
Данная квартира является лидером продаж среди однокомнатных квартир в ЖК «Пироговская ривьера» по данным Росреестра
Данное предложение на 03.04.2026 неактуально. Пожалуйста, ознакомьтесь с другими похожими предложениями в ЖК «Пироговская ривьера» .
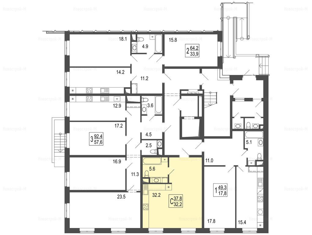
1-комн. квартира, 38.40 м2, 9 этаж
Срок сдачи 2 квартал 2026 года
8 597 314 
223 888 2
обновлено 25 февраля

Описание 1-комн. квартиры

Застройщик
Срок ГК
2 квартал 2026 года
Общая площадь
38.40 м2
Этаж
9 / 9
Грузовой лифт
есть

Расположение 1-комн. квартиры

Метро
Станция МЦК
Ж/Д-станция
Дом
4
Адрес
ЖК «Пироговская ривьера», корп. 4, секция 1

Способы покупки

Особенности

Продается однокомнатная квартира в новостройке ЖК «Пироговская ривьера» по адресу Московская область, Мытищи городской округ, Пироговский Г/П, Пирогово дер., ЖК «Пироговская ривьера», корп. 4. Общая площадь квартиры - 38.4 кв. м. Тип проекта, по которому построен дом — Монолит,Монолитно-кирпичный, компания-застройщик — КомфортИнвест. Стоимость квартиры — 8 597 314 руб. Способы оплаты можно уточнить у продавца. Срок сдачи — 2 квартал 2026. Более подробная информация по телефону.

Правовые документы

Похожие квартиры в ЖК «Пироговская ривьера»

2 этаж
из 9 2 квартал 2026
Московская область, Пироговский Г/П
Медведково
26 мин.
4
Корпус
нет данных
Отделка
2.65 м
Потолки
ЖК «Пироговская ривьера»
8 887 559
СберБанк, Промсвязьбанк, Совкомбанк, Зенит, АК БАРС, Альфа-Банк, Уралсиб
2.70%
Ставка
15.00%
Первый взнос
от 36 048 /мес.
Все варианты
2 этаж
из 9 2 квартал 2026
Московская область, Пироговский Г/П
Медведково
26 мин.
4
Корпус
нет данных
Отделка
2.65 м
Потолки
ЖК «Пироговская ривьера»
8 887 559
СберБанк, Промсвязьбанк, Совкомбанк, Зенит, АК БАРС, Альфа-Банк, Уралсиб
2.70%
Ставка
15.00%
Первый взнос
от 36 048 /мес.
Все варианты
2 этаж
из 9 2 квартал 2026
Московская область, Пироговский Г/П
Медведково
26 мин.
4
Корпус
нет данных
Отделка
2.65 м
Потолки
ЖК «Пироговская ривьера»
8 887 559
СберБанк, Промсвязьбанк, Совкомбанк, Зенит, АК БАРС, Альфа-Банк, Уралсиб
2.70%
Ставка
15.00%
Первый взнос
от 36 048 /мес.
Все варианты
2 этаж
из 9 2 квартал 2026
Московская область, Пироговский Г/П
Медведково
26 мин.
4
Корпус
нет данных
Отделка
2.65 м
Потолки
ЖК «Пироговская ривьера»
8 887 559
СберБанк, Промсвязьбанк, Совкомбанк, Зенит, АК БАРС, Альфа-Банк, Уралсиб
2.70%
Ставка
15.00%
Первый взнос
от 36 048 /мес.
Все варианты
3 этаж
из 9 2 квартал 2026
Московская область, Пироговский Г/П
Медведково
26 мин.
4
Корпус
нет данных
Отделка
2.65 м
Потолки
ЖК «Пироговская ривьера»
8 912 484
СберБанк, Промсвязьбанк, Совкомбанк, Зенит, АК БАРС, Альфа-Банк, Уралсиб
2.70%
Ставка
15.00%
Первый взнос
от 36 149 /мес.
Все варианты
3 этаж
из 9 2 квартал 2026
Московская область, Пироговский Г/П
Медведково
26 мин.
4
Корпус
нет данных
Отделка
2.65 м
Потолки
ЖК «Пироговская ривьера»
8 912 484
СберБанк, Промсвязьбанк, Совкомбанк, Зенит, АК БАРС, Альфа-Банк, Уралсиб
2.70%
Ставка
15.00%
Первый взнос
от 36 149 /мес.
Все варианты
4 этаж
из 9 2 квартал 2026
Московская область, Пироговский Г/П
Медведково
26 мин.
4
Корпус
нет данных
Отделка
2.65 м
Потолки
ЖК «Пироговская ривьера»
8 937 408
СберБанк, Промсвязьбанк, Совкомбанк, Зенит, АК БАРС, Альфа-Банк, Уралсиб
2.70%
Ставка
15.00%
Первый взнос
от 36 250 /мес.
Все варианты
4 этаж
из 9 2 квартал 2026
Московская область, Пироговский Г/П
Медведково
26 мин.
4
Корпус
нет данных
Отделка
2.65 м
Потолки
ЖК «Пироговская ривьера»
8 937 408
СберБанк, Промсвязьбанк, Совкомбанк, Зенит, АК БАРС, Альфа-Банк, Уралсиб
2.70%
Ставка
15.00%
Первый взнос
от 36 250 /мес.
Все варианты
4 этаж
из 9 2 квартал 2026
Московская область, Пироговский Г/П
Медведково
26 мин.
4
Корпус
нет данных
Отделка
2.65 м
Потолки
ЖК «Пироговская ривьера»
8 937 408
СберБанк, Промсвязьбанк, Совкомбанк, Зенит, АК БАРС, Альфа-Банк, Уралсиб
2.70%
Ставка
15.00%
Первый взнос
от 36 250 /мес.
Все варианты
5 этаж
из 9 2 квартал 2026
Московская область, Пироговский Г/П
Медведково
26 мин.
4
Корпус
нет данных
Отделка
2.65 м
Потолки
ЖК «Пироговская ривьера»
8 962 334
СберБанк, Промсвязьбанк, Совкомбанк, Зенит, АК БАРС, Альфа-Банк, Уралсиб
2.70%
Ставка
15.00%
Первый взнос
от 36 351 /мес.
Все варианты
5 этаж
из 9 2 квартал 2026
Московская область, Пироговский Г/П
Медведково
26 мин.
4
Корпус
нет данных
Отделка
2.65 м
Потолки
ЖК «Пироговская ривьера»
8 962 334
СберБанк, Промсвязьбанк, Совкомбанк, Зенит, АК БАРС, Альфа-Банк, Уралсиб
2.70%
Ставка
15.00%
Первый взнос
от 36 351 /мес.
Все варианты
6 этаж
из 9 2 квартал 2026
Московская область, Пироговский Г/П
Медведково
26 мин.
4
Корпус
нет данных
Отделка
2.65 м
Потолки
ЖК «Пироговская ривьера»
8 987 259
СберБанк, Промсвязьбанк, Совкомбанк, Зенит, АК БАРС, Альфа-Банк, Уралсиб
2.70%
Ставка
15.00%
Первый взнос
от 36 452 /мес.
Все варианты
6 этаж
из 9 2 квартал 2026
Московская область, Пироговский Г/П
Медведково
26 мин.
4
Корпус
нет данных
Отделка
2.65 м
Потолки
ЖК «Пироговская ривьера»
8 987 259
СберБанк, Промсвязьбанк, Совкомбанк, Зенит, АК БАРС, Альфа-Банк, Уралсиб
2.70%
Ставка
15.00%
Первый взнос
от 36 452 /мес.
Все варианты
6 этаж
из 9 2 квартал 2026
Московская область, Пироговский Г/П
Медведково
26 мин.
4
Корпус
нет данных
Отделка
2.65 м
Потолки
ЖК «Пироговская ривьера»
8 987 259
СберБанк, Промсвязьбанк, Совкомбанк, Зенит, АК БАРС, Альфа-Банк, Уралсиб
2.70%
Ставка
15.00%
Первый взнос
от 36 452 /мес.
Все варианты
7 этаж
из 9 2 квартал 2026
Московская область, Пироговский Г/П
Медведково
26 мин.
4
Корпус
нет данных
Отделка
2.65 м
Потолки
ЖК «Пироговская ривьера»
9 012 184
СберБанк, Промсвязьбанк, Совкомбанк, Зенит, АК БАРС, Альфа-Банк, Уралсиб
2.70%
Ставка
15.00%
Первый взнос
от 36 553 /мес.
Все варианты
7 этаж
из 9 2 квартал 2026
Московская область, Пироговский Г/П
Медведково
26 мин.
4
Корпус
нет данных
Отделка
2.65 м
Потолки
ЖК «Пироговская ривьера»
9 012 184
СберБанк, Промсвязьбанк, Совкомбанк, Зенит, АК БАРС, Альфа-Банк, Уралсиб
2.70%
Ставка
15.00%
Первый взнос
от 36 553 /мес.
Все варианты
7 этаж
из 9 2 квартал 2026
Московская область, Пироговский Г/П
Медведково
26 мин.
4
Корпус
нет данных
Отделка
2.65 м
Потолки
ЖК «Пироговская ривьера»
9 012 184
СберБанк, Промсвязьбанк, Совкомбанк, Зенит, АК БАРС, Альфа-Банк, Уралсиб
2.70%
Ставка
15.00%
Первый взнос
от 36 553 /мес.
Все варианты
8 этаж
из 9 2 квартал 2026
Московская область, Пироговский Г/П
Медведково
26 мин.
4
Корпус
нет данных
Отделка
2.65 м
Потолки
ЖК «Пироговская ривьера»
9 037 109
СберБанк, Промсвязьбанк, Совкомбанк, Зенит, АК БАРС, Альфа-Банк, Уралсиб
2.70%
Ставка
15.00%
Первый взнос
от 36 654 /мес.
Все варианты
8 этаж
из 9 2 квартал 2026
Московская область, Пироговский Г/П
Медведково
26 мин.
4
Корпус
нет данных
Отделка
2.65 м
Потолки
ЖК «Пироговская ривьера»
9 037 109
СберБанк, Промсвязьбанк, Совкомбанк, Зенит, АК БАРС, Альфа-Банк, Уралсиб
2.70%
Ставка
15.00%
Первый взнос
от 36 654 /мес.
Все варианты
8 этаж
из 9 2 квартал 2026
Московская область, Пироговский Г/П
Медведково
26 мин.
4
Корпус
нет данных
Отделка
2.65 м
Потолки
ЖК «Пироговская ривьера»
9 037 109
СберБанк, Промсвязьбанк, Совкомбанк, Зенит, АК БАРС, Альфа-Банк, Уралсиб
2.70%
Ставка
15.00%
Первый взнос
от 36 654 /мес.
Все варианты
8 этаж
из 9 2 квартал 2026
Московская область, Пироговский Г/П
Медведково
26 мин.
4
Корпус
нет данных
Отделка
2.65 м
Потолки
ЖК «Пироговская ривьера»
9 037 109
СберБанк, Промсвязьбанк, Совкомбанк, Зенит, АК БАРС, Альфа-Банк, Уралсиб
2.70%
Ставка
15.00%
Первый взнос
от 36 654 /мес.
Все варианты
9 этаж
из 9 2 квартал 2026
Московская область, Пироговский Г/П
Медведково
26 мин.
4
Корпус
нет данных
Отделка
2.65 м
Потолки
ЖК «Пироговская ривьера»
9 062 034
СберБанк, Промсвязьбанк, Совкомбанк, Зенит, АК БАРС, Альфа-Банк, Уралсиб
2.70%
Ставка
15.00%
Первый взнос
от 36 755 /мес.
Все варианты
9 этаж
из 9 2 квартал 2026
Московская область, Пироговский Г/П
Медведково
26 мин.
4
Корпус
нет данных
Отделка
2.65 м
Потолки
ЖК «Пироговская ривьера»
9 062 034
СберБанк, Промсвязьбанк, Совкомбанк, Зенит, АК БАРС, Альфа-Банк, Уралсиб
2.70%
Ставка
15.00%
Первый взнос
от 36 755 /мес.
Все варианты
9 этаж
из 9 2 квартал 2026
Московская область, Пироговский Г/П
Медведково
26 мин.
4
Корпус
нет данных
Отделка
2.65 м
Потолки
ЖК «Пироговская ривьера»
9 062 034
СберБанк, Промсвязьбанк, Совкомбанк, Зенит, АК БАРС, Альфа-Банк, Уралсиб
2.70%
Ставка
15.00%
Первый взнос
от 36 755 /мес.
Все варианты
9 этаж
из 9 2 квартал 2026
Московская область, Пироговский Г/П
Медведково
26 мин.
4
Корпус
нет данных
Отделка
2.65 м
Потолки
ЖК «Пироговская ривьера»
9 062 034
СберБанк, Промсвязьбанк, Совкомбанк, Зенит, АК БАРС, Альфа-Банк, Уралсиб
2.70%
Ставка
15.00%
Первый взнос
от 36 755 /мес.
Все варианты
студия 25,50 м2 5 516 841
Этаж 9/9
МО, ЖК «Пироговская ривьера»
Медведково
26 мин.
Сдан
Этаж 9/9
МО, ЖК «Пироговская ривьера»
Медведково
26 мин.
Сдан
Этаж 9/9
МО, ЖК «Пироговская ривьера»
Медведково
26 мин.
Сдан
Этаж 7/9
МО, ЖК «Пироговская ривьера»
Медведково
26 мин.
Сдан
Посмотреть 257 квартир в ЖК «Пироговская ривьера»
Этаж 9/9
МО, ЖК «Пироговская ривьера»
Медведково
26 мин.
Сдан
Этаж 8/9
МО, ЖК «Пироговская ривьера»
Медведково
26 мин.
Сдан
Этаж 9/9
МО, ЖК «Пироговская ривьера»
Медведково
26 мин.
Сдан
Этаж 9/9
МО, ЖК «Пироговская ривьера»
Медведково
26 мин.
Сдан
Посмотреть 268 квартир в ЖК «Пироговская ривьера»
Этаж 2/9
МО, ЖК «Пироговская ривьера»
Медведково
26 мин.
Строится
Этаж 2/9
МО, ЖК «Пироговская ривьера»
Медведково
26 мин.
Строится
Этаж 2/9
МО, ЖК «Пироговская ривьера»
Медведково
26 мин.
Строится
Этаж 2/9
МО, ЖК «Пироговская ривьера»
Медведково
26 мин.
Строится
Посмотреть 197 квартир в ЖК «Пироговская ривьера»
Этаж 5/9
МО, ЖК «Пироговская ривьера»
Медведково
26 мин.
Строится
Этаж 2/9
МО, ЖК «Пироговская ривьера»
Медведково
26 мин.
Строится
Этаж 7/9
МО, ЖК «Пироговская ривьера»
Медведково
26 мин.
Сдан
Этаж 9/9
МО, ЖК «Пироговская ривьера»
Медведково
26 мин.
Сдан
Посмотреть 64 квартиры в ЖК «Пироговская ривьера»

Скидки и спецпредложения от застройщиков

ЖК «Пироговская ривьера» на карте

Выгодные предложения на новостройки

Самый полезный отзыв
С
08 февраля 2018
Оценка:
Забронировала квартиру в 10 доме ,2 месяца назад.По договору должно быть оформление в течении 21 день, и до сих пор ничего не происходит.Менеджер утешает -мол все гладко да сладко,а что на самом деле не понятно.Вот жду хоть какой то ясности.
Ответить
Самый новый отзыв
ДП
17 марта
Оценка:
Достоинства
Социальная инфраструктура
Наличие школы на территории — это отличный плюс, особенно для семей с детьми. Надеюсь, что её откроют вовремя.
Ответить

Оставить отзыв

Добавьте отзыв, заполнив личные данные, или сначала войдите на сайт, тогда информация будет автоматически взята из личного профиля.
Оценка*