Рейтинг@Mail.ru
Переверните экран
Новостройки Квартиры Ипотека Новостройки Москвы Новостройки Подмосковья Новостройки Новой Москвы Готовые новостройки Новостройки на карте Акции от застройщиков Коммерческие помещения Продавцы и застройщики Панорамы новостроек Видеообзор новостроек Экспертиза новостроек Экология Москвы и Подмосковья Студии 1-комнатные 2-комнатные 3-комнатные Квартиры на карте Ипотечный калькулятор Семейная ипотека Военная ипотека Банки и программы Медиа Новости недвижимости Мнение эксперта Аналитика рынка Покупателю Экспертиза новостроек Эксперты и авторы О проекте Контакты Реклама на сайте Vk Youtube Telegram Дзен Машиноместа Апартаменты #траншевая ипотека #рассрочка IT-ипотека Квартиры со скидками до 35% Видео 360° новостроек Субсидированная застройщиком Rutube Поиск дома в Москве Программа реновации в Москве Новостройки премиум-класса Новостройки бизнес-класса Рассрочка Траншевая ипотека Дома и коттеджи Бизнес-центры Бизнес-центры в Москве Бизнес-центры рядом с метро Строящиеся бизнес-центры Бизнес-центры класса A Бизнес-центры класса B
Данная квартира является лидером продаж среди однокомнатных квартир в ЖК «Первый Нагатинский» по данным Росреестра
1-комн. квартира, 41.70 м2, 38 этаж
Срок сдачи 4 квартал 2028 года
27 492 633 
33 527 601
659 296 2
обновлено 5 февраля

Описание 1-комн. квартиры

Застройщик
Срок ГК
4 квартал 2028 года
Стадия строительства
котлован/фундамент
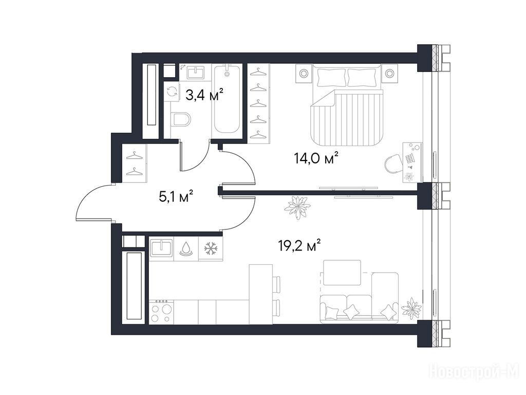
Общая площадь
41.70 м2
Жилая площадь
14.00 м2
Площадь кухни
19.20 м2
Этаж
38 / 49
Отделка
чистовая

Расположение 1-комн. квартиры

Локация
Метро
Станция МЦК
Дом
2.1
Адрес
Нагатинская, д. 1, секция 1

Способы покупки

Особенности

Продается однокомнатная квартира в новостройке ЖК «Первый Нагатинский» по адресу Москва, ЮАО, Нагатино-Садовники, Нагатинская, д. 1. Общая площадь квартиры - 41.7 кв. м. Тип проекта, по которому построен дом — Монолитно-кирпичный, компания-застройщик — ПРАЙМ ЛАЙФ, СЗ Альфа. Стоимость квартиры — 27 492 633 руб. Способы оплаты можно уточнить у продавца. Срок сдачи — 4 квартал 2028. Более подробная информация по телефону.

Правовые документы

Инфоцентр новостроек
Инфоцентр новостроек
+7 (499) 705-91-41
Время работы 9:00 — 21:00
Посмотреть все спецпредложения
студия 29,90 м2 26 304 763
Этаж 23/28
Москва, ЖК «Первый Нагатинский»
Нагатинская
3 мин.
Строится
студия 30,41 м2 21 526 505
Этаж 21/28
Москва, ЖК «Первый Нагатинский»
Нагатинская
3 мин.
Строится
студия 37,80 м2 25 442 436
Этаж 38/49
Москва, ЖК «Первый Нагатинский»
Нагатинская
3 мин.
Строится
студия 39,00 м2 31 163 259
Этаж 34/49
Москва, ЖК «Первый Нагатинский»
Нагатинская
3 мин.
Строится
Посмотреть 12 квартир в ЖК «Первый Нагатинский»
1-комн. квартира 39,79 м2 32 885 102
Этаж 20/24
Москва, ЖК «Первый Нагатинский»
Нагатинская
3 мин.
Строится
1-комн. квартира 39,84 м2 34 596 084
Этаж 22/24
Москва, ЖК «Первый Нагатинский»
Нагатинская
3 мин.
Строится
1-комн. квартира 40,23 м2 30 161 890
Этаж 24/24
Москва, ЖК «Первый Нагатинский»
Нагатинская
3 мин.
Строится
1-комн. квартира 40,70 м2 30 683 864
Этаж 24/24
Москва, ЖК «Первый Нагатинский»
Нагатинская
3 мин.
Строится
Посмотреть 39 квартир в ЖК «Первый Нагатинский»
2-комн. квартира 56,62 м2 40 481 695
Этаж 21/24
Москва, ЖК «Первый Нагатинский»
Нагатинская
3 мин.
Строится
2-комн. квартира 57,27 м2 43 617 748
Этаж 24/24
Москва, ЖК «Первый Нагатинский»
Нагатинская
3 мин.
Строится
2-комн. квартира 58,68 м2 43 089 550
Этаж 17/28
Москва, ЖК «Первый Нагатинский»
Нагатинская
3 мин.
Строится
2-комн. квартира 58,80 м2 41 964 584
Этаж 15/28
Москва, ЖК «Первый Нагатинский»
Нагатинская
3 мин.
Строится
Посмотреть 57 квартир в ЖК «Первый Нагатинский»
3-комн. квартира 81,50 м2 45 559 348
Этаж 38/49
Москва, ЖК «Первый Нагатинский»
Нагатинская
3 мин.
Строится
3-комн. квартира 82,61 м2 54 983 958
Этаж 11/28
Москва, ЖК «Первый Нагатинский»
Нагатинская
3 мин.
Строится
3-комн. квартира 82,90 м2 52 710 722
Этаж 21/49
Москва, ЖК «Первый Нагатинский»
Нагатинская
3 мин.
Строится
3-комн. квартира 82,97 м2 44 780 701
Этаж 3/28
Москва, ЖК «Первый Нагатинский»
Нагатинская
3 мин.
Строится
Посмотреть 17 квартир в ЖК «Первый Нагатинский»

Скидки и спецпредложения от застройщиков

ЖК «Первый Нагатинский» на карте

Выгодные предложения на новостройки

Отзывы о ЖК «Первый Нагатинский»

Самый полезный отзыв
А
11 января 2019
Оценка:
Картинка симпатичная. хочется подробностей о проекте.. будем ждать.
Показать все комментарии
Ответить
Полезный отзыв?
Самый новый отзыв
В
27 ноября 2025
Оценка:
Смотрю на вторую очередь ЖК Первый Нагатинский как на инвестицию. Учитывая динамику района, развитие набережной и уровень продукта, потенциал роста стоимости хороший. Планировки в башнях понравились, виды — отдельный плюс. Рассматриваю несколько вариантов.
Ответить
Полезный отзыв?
Добавьте отзыв, заполнив личные данные, или сначала войдите на сайт, тогда информация будет автоматически взята из личного профиля.
Оценка*