Рейтинг@Mail.ru
Переверните экран
Новостройки Квартиры Ипотека Новостройки Москвы Новостройки Подмосковья Новостройки Новой Москвы Готовые новостройки Новостройки на карте Акции от застройщиков Коммерческие помещения Продавцы и застройщики Панорамы новостроек Видеообзор новостроек Экспертиза новостроек Экология Москвы и Подмосковья Студии 1-комнатные 2-комнатные 3-комнатные Квартиры на карте Ипотечный калькулятор Семейная ипотека Военная ипотека Банки и программы Медиа Новости недвижимости Мнение эксперта Аналитика рынка Покупателю Экспертиза новостроек Эксперты и авторы О проекте Контакты Реклама на сайте Vk Youtube Telegram Дзен Машиноместа Апартаменты #траншевая ипотека #рассрочка IT-ипотека Квартиры со скидками до 40% Видео 360° новостроек Субсидированная застройщиком Rutube Поиск дома в Москве Программа реновации в Москве Новостройки премиум-класса Новостройки бизнес-класса Рассрочка Траншевая ипотека ГАЛС Дома и коттеджи Бизнес-центры Бизнес-центры в Москве Бизнес-центры рядом с метро Строящиеся бизнес-центры Бизнес-центры класса A Бизнес-центры класса B ЛСР
Данная квартира является лидером продаж среди однокомнатных квартир в ЖК«Новая Ивантеевка» по данным Росреестра
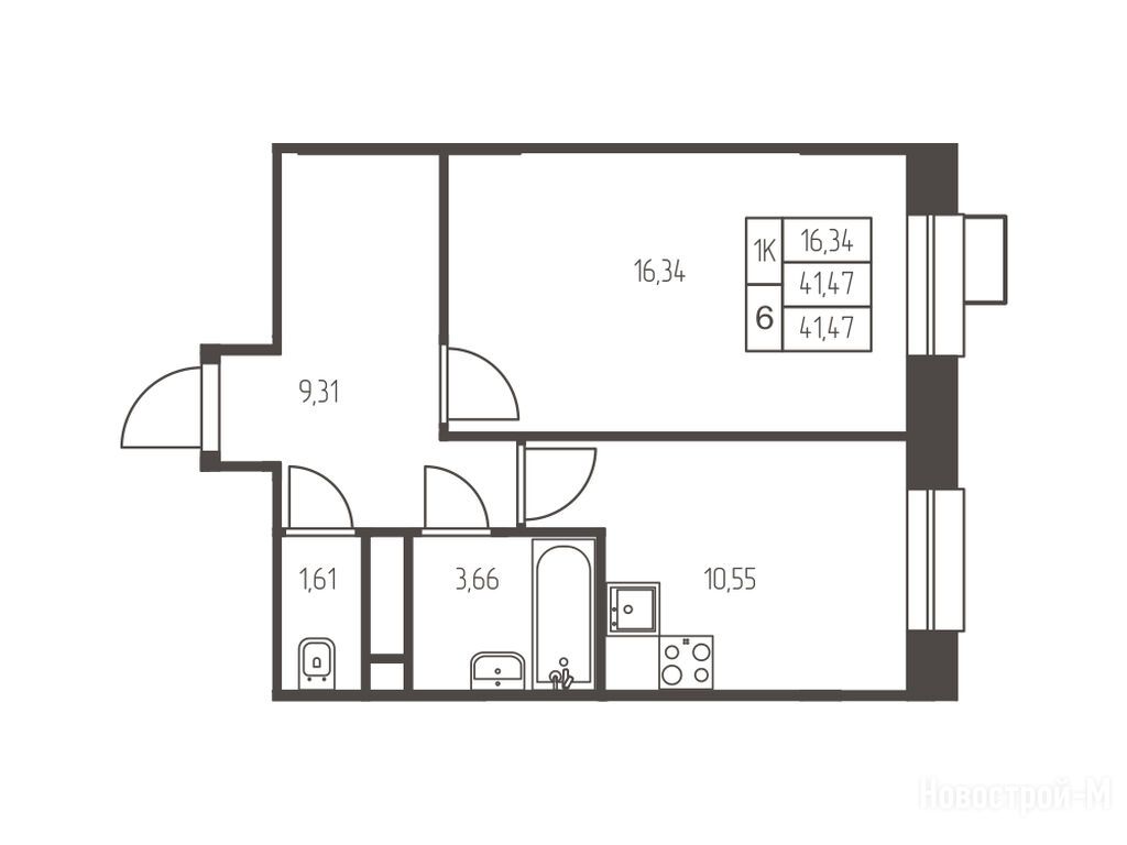
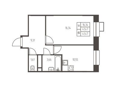
1-комн. квартира, 41.50 м2, 20 этаж
Срок сдачи 4 квартал 2026 года
6 418 933 
154 673 2
обновлено 18 декабря

Описание 1-комн. квартиры

Срок ГК
4 квартал 2026 года
Стадия строительства
Общая площадь
41.50 м2
Жилая площадь
16.34 м2
Площадь кухни
10.55 м2
Этаж
20 / 25
Грузовой лифт
есть

Расположение 1-комн. квартиры

Станция МЦК
Ж/Д-станция
Дом
2 очередь Секция 1
Адрес
ул. Заводская, 2 очередь, Секция 1, секция 1

Особенности

Продается однокомнатная квартира в новостройке ЖК «Новая Ивантеевка» по адресу Московская область, Ивантеевка городской округ, Ивантеевка, ул. Заводская, 2 очередь, Секция 1. Общая площадь квартиры - 41.5 кв. м. Тип проекта, по которому построен дом — Монолитно-кирпичный, компания-застройщик — Профи-Инвест, ООО СЗ Заводская-1. Стоимость квартиры — 6 418 933 руб. Способы оплаты можно уточнить у продавца. Срок сдачи — 4 квартал 2026. Более подробная информация по телефону.

Правовые документы

Профи-Инвест
Профи-Инвест
Сданных 8
|
Строящихся 8
Выбирайте квартиру в ЖК «Новая Ивантеевка» по ценам от застройщика

Похожие квартиры в ЖК«Новая Ивантеевка»

2 этаж
из 25 4 квартал 2026
Московская область, Ивантеевка городской округ
Ростокино
33 мин.
2 очередь Секция 1
Корпус
нет данных
Отделка
2.74 м
Потолки
ЖК «Новая Ивантеевка»
5 837 317
3 этаж
из 25 4 квартал 2026
Московская область, Ивантеевка городской округ
Ростокино
33 мин.
2 очередь Секция 1
Корпус
нет данных
Отделка
2.74 м
Потолки
ЖК «Новая Ивантеевка»
5 856 704
4 этаж
из 25 4 квартал 2026
Московская область, Ивантеевка городской округ
Ростокино
33 мин.
2 очередь Секция 1
Корпус
нет данных
Отделка
2.74 м
Потолки
ЖК «Новая Ивантеевка»
5 876 091
7 этаж
из 25 4 квартал 2026
Московская область, Ивантеевка городской округ
Ростокино
33 мин.
2 очередь Секция 1
Корпус
нет данных
Отделка
2.74 м
Потолки
ЖК «Новая Ивантеевка»
5 914 866
8 этаж
из 25 4 квартал 2026
Московская область, Ивантеевка городской округ
Ростокино
33 мин.
2 очередь Секция 1
Корпус
нет данных
Отделка
2.74 м
Потолки
ЖК «Новая Ивантеевка»
5 934 253
9 этаж
из 25 4 квартал 2026
Московская область, Ивантеевка городской округ
Ростокино
33 мин.
2 очередь Секция 1
Корпус
нет данных
Отделка
2.74 м
Потолки
ЖК «Новая Ивантеевка»
5 973 028
10 этаж
из 25 4 квартал 2026
Московская область, Ивантеевка городской округ
Ростокино
33 мин.
2 очередь Секция 1
Корпус
нет данных
Отделка
2.74 м
Потолки
ЖК «Новая Ивантеевка»
6 031 189
11 этаж
из 25 4 квартал 2026
Московская область, Ивантеевка городской округ
Ростокино
33 мин.
2 очередь Секция 1
Корпус
нет данных
Отделка
2.74 м
Потолки
ЖК «Новая Ивантеевка»
6 069 963
12 этаж
из 25 4 квартал 2026
Московская область, Ивантеевка городской округ
Ростокино
33 мин.
2 очередь Секция 1
Корпус
нет данных
Отделка
2.74 м
Потолки
ЖК «Новая Ивантеевка»
6 108 738
13 этаж
из 25 4 квартал 2026
Московская область, Ивантеевка городской округ
Ростокино
33 мин.
2 очередь Секция 1
Корпус
нет данных
Отделка
2.74 м
Потолки
ЖК «Новая Ивантеевка»
6 147 512
14 этаж
из 25 4 квартал 2026
Московская область, Ивантеевка городской округ
Ростокино
33 мин.
2 очередь Секция 1
Корпус
нет данных
Отделка
2.74 м
Потолки
ЖК «Новая Ивантеевка»
6 186 287
15 этаж
из 25 4 квартал 2026
Московская область, Ивантеевка городской округ
Ростокино
33 мин.
2 очередь Секция 1
Корпус
нет данных
Отделка
2.74 м
Потолки
ЖК «Новая Ивантеевка»
6 225 061
16 этаж
из 25 4 квартал 2026
Московская область, Ивантеевка городской округ
Ростокино
33 мин.
2 очередь Секция 1
Корпус
нет данных
Отделка
2.74 м
Потолки
ЖК «Новая Ивантеевка»
6 263 836
17 этаж
из 25 4 квартал 2026
Московская область, Ивантеевка городской округ
Ростокино
33 мин.
2 очередь Секция 1
Корпус
нет данных
Отделка
2.74 м
Потолки
ЖК «Новая Ивантеевка»
6 302 610
18 этаж
из 25 4 квартал 2026
Московская область, Ивантеевка городской округ
Ростокино
33 мин.
2 очередь Секция 1
Корпус
нет данных
Отделка
2.74 м
Потолки
ЖК «Новая Ивантеевка»
6 341 385
19 этаж
из 25 4 квартал 2026
Московская область, Ивантеевка городской округ
Ростокино
33 мин.
2 очередь Секция 1
Корпус
нет данных
Отделка
2.74 м
Потолки
ЖК «Новая Ивантеевка»
6 380 159
21 этаж
из 25 4 квартал 2026
Московская область, Ивантеевка городской округ
Ростокино
33 мин.
2 очередь Секция 1
Корпус
нет данных
Отделка
2.74 м
Потолки
ЖК «Новая Ивантеевка»
6 457 708
22 этаж
из 25 4 квартал 2026
Московская область, Ивантеевка городской округ
Ростокино
33 мин.
2 очередь Секция 1
Корпус
нет данных
Отделка
2.74 м
Потолки
ЖК «Новая Ивантеевка»
6 496 482
23 этаж
из 25 4 квартал 2026
Московская область, Ивантеевка городской округ
Ростокино
33 мин.
2 очередь Секция 1
Корпус
нет данных
Отделка
2.74 м
Потолки
ЖК «Новая Ивантеевка»
6 535 257
24 этаж
из 25 4 квартал 2026
Московская область, Ивантеевка городской округ
Ростокино
33 мин.
2 очередь Секция 1
Корпус
нет данных
Отделка
2.74 м
Потолки
ЖК «Новая Ивантеевка»
6 535 257
25 этаж
из 25 4 квартал 2026
Московская область, Ивантеевка городской округ
Ростокино
33 мин.
2 очередь Секция 1
Корпус
нет данных
Отделка
2.74 м
Потолки
ЖК «Новая Ивантеевка»
6 535 257
Посмотреть все спецпредложения
студия 28,20 м2 4 761 970
Этаж 11/12
МО, ЖК «Новая Ивантеевка»
Ростокино
33 мин.
Строится
студия 28,60 м2 4 358 396
Этаж 8/12
МО, ЖК «Новая Ивантеевка»
Ростокино
33 мин.
Строится
студия 29,30 м2 4 871 148
Этаж 9/12
МО, ЖК «Новая Ивантеевка»
Ростокино
33 мин.
Строится
студия 29,50 м2 4 546 206
Этаж 8/25
МО, ЖК «Новая Ивантеевка»
Ростокино
33 мин.
Строится
Посмотреть 255 квартир в ЖК«Новая Ивантеевка»
1-комн. квартира 34,70 м2 5 133 319
Этаж 2/20
МО, ЖК «Новая Ивантеевка»
Ростокино
33 мин.
Строится
1-комн. квартира 35,00 м2 5 935 056
Этаж 10/12
МО, ЖК «Новая Ивантеевка»
Ростокино
33 мин.
Строится
1-комн. квартира 35,50 м2 5 950 765
Этаж 8/12
МО, ЖК «Новая Ивантеевка»
Ростокино
33 мин.
Строится
1-комн. квартира 35,70 м2 5 753 927
Этаж 2/20
МО, ЖК «Новая Ивантеевка»
Ростокино
33 мин.
Строится
Посмотреть 402 квартиры в ЖК«Новая Ивантеевка»
2-комн. квартира 47,10 м2 7 945 610
Этаж 12/20
МО, ЖК «Новая Ивантеевка»
Ростокино
33 мин.
Строится
2-комн. квартира 55,40 м2 8 986 349
Этаж 8/20
МО, ЖК «Новая Ивантеевка»
Ростокино
33 мин.
Строится
2-комн. квартира 56,30 м2 8 781 342
Этаж 2/20
МО, ЖК «Новая Ивантеевка»
Ростокино
33 мин.
Строится
2-комн. квартира 58,00 м2 8 610 030
Этаж 2/25
МО, ЖК «Новая Ивантеевка»
Ростокино
33 мин.
Строится
Посмотреть 236 квартир в ЖК«Новая Ивантеевка»
3-комн. квартира 70,90 м2 10 212 480
Этаж 8/25
МО, ЖК «Новая Ивантеевка»
Ростокино
33 мин.
Строится
3-комн. квартира 75,60 м2 11 634 840
Этаж 18/25
МО, ЖК «Новая Ивантеевка»
Ростокино
33 мин.
Строится
Посмотреть 40 квартир в ЖК«Новая Ивантеевка»

Скидки и спецпредложения от застройщиков

ЖК «Новая Ивантеевка» на карте

Выгодные предложения на новостройки

Отзывы о ЖК«Новая Ивантеевка»

Самый полезный отзыв
ОК
20 ноября 2024
Оценка:
Транспортная доступность
Социальная инфраструктура
Планировки
Двор, окружение
Расположение
Проект комфорт-класса в 25 км от МКАД, рядом парки и заповедники. Хорошая транспортная развязка - до станции «Зеленый Бор» можно пешком дойти. Рядом есть съезд к Ярославскому шоссе. Всего в комплексе будет 13 домов, к ним анонсировали три детских сада, две школы и физкультурный комплекс с бассейном.
Ответить
Полезный отзыв?
Самый новый отзыв
АЛ
24 октября
Оценка:
Способы покупки
При покупке можно использовать материнский капитал, семейную ипотеку и как вариант - трейд-ин. Это очень удобно, так как с обычной ставкой сейчас мало кто в состоянии купить квартиру
Ответить
Полезный отзыв?
Добавьте отзыв, заполнив личные данные, или сначала войдите на сайт, тогда информация будет автоматически взята из личного профиля.
Оценка*