Рейтинг@Mail.ru
Переверните экран
Новостройки Квартиры Ипотека Новостройки Москвы Новостройки Подмосковья Новостройки Новой Москвы Готовые новостройки Новостройки на карте Акции от застройщиков Коммерческие помещения Продавцы и застройщики Панорамы новостроек Видеообзор новостроек Экспертиза новостроек Экология Москвы и Подмосковья Студии 1-комнатные 2-комнатные 3-комнатные Квартиры на карте Ипотечный калькулятор Семейная ипотека Военная ипотека Банки и программы Медиа Новости недвижимости Мнение эксперта Аналитика рынка Покупателю Экспертиза новостроек Эксперты и авторы О проекте Контакты Реклама на сайте Vk Youtube Telegram Дзен Машиноместа Апартаменты #траншевая ипотека #рассрочка ИТ-ипотека Квартиры со скидками до 40% Видео 360° новостроек Субсидированная застройщиком Rutube Поиск дома в Москве Программа реновации в Москве Новостройки премиум-класса Новостройки бизнес-класса Рассрочка Траншевая ипотека Дома и коттеджи Бизнес-центры Бизнес-центры в Москве Бизнес-центры рядом с метро Строящиеся бизнес-центры Бизнес-центры класса A Бизнес-центры класса B Ипотека со ставкой 0,1%
Данная квартира является лидером продаж среди однокомнатных квартир в ЖК«Новая Ивантеевка» по данным Росреестра
Данное предложение на 12.03.2026 неактуально. Пожалуйста, ознакомьтесь с другими похожими предложениями в ЖК «Новая Ивантеевка» .
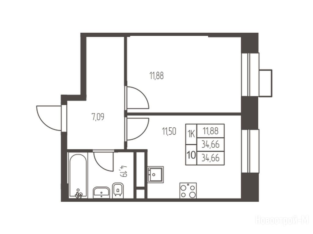
1-комн. квартира, 34.70 м2, 2 этаж
Срок сдачи 4 квартал 2026 года
5 133 319 
147 934 2
обновлено 17 января

Описание 1-комн. квартиры

Срок ГК
4 квартал 2026 года
Стадия строительства
монтаж верхних этажей
Общая площадь
34.70 м2
Жилая площадь
11.88 м2
Площадь кухни
11.50 м2
Этаж
2 / 20
Грузовой лифт
есть

Расположение 1-комн. квартиры

Станция МЦК
Ж/Д-станция
Дом
2 очередь Секция 2,3 подъезд 1
Адрес
ул. Заводская, 2 очередь, секция 2, 3, подъезд 1, секция 1

Способы покупки

Особенности

Продается однокомнатная квартира в новостройке ЖК «Новая Ивантеевка» по адресу Московская область, Ивантеевка городской округ, Ивантеевка, ул. Заводская, 2 очередь, секция 2, 3, подъезд 1. Общая площадь квартиры - 34.7 кв. м. Тип проекта, по которому построен дом — Монолитно-кирпичный, компания-застройщик — Профи-Инвест, ООО СЗ Заводская-1. Стоимость квартиры — 5 133 319 руб. Способы оплаты можно уточнить у продавца. Срок сдачи — 4 квартал 2026. Более подробная информация по телефону.

Правовые документы

Профи-Инвест
Профи-Инвест
Сданных 9
|
Строящихся 7
Время работы 10:00 — 20:00
Выбирайте квартиру в ЖК «Новая Ивантеевка» по ценам от застройщика

Похожие квартиры в ЖК«Новая Ивантеевка»

6 этаж
из 20 4 квартал 2026
Московская область, Ивантеевка городской округ
Ростокино
33 мин.
2 очередь Секция 2,3 подъезд 1
Корпус
нет данных
Отделка
2.74 м
Потолки
ЖК «Новая Ивантеевка»
5 772 103
СберБанк
3.50%
Ставка
20.00%
Первый взнос
от 25 919 /мес.
Все варианты
7 этаж
из 20 4 квартал 2026
Московская область, Ивантеевка городской округ
Ростокино
33 мин.
2 очередь Секция 2,3 подъезд 1
Корпус
нет данных
Отделка
2.74 м
Потолки
ЖК «Новая Ивантеевка»
5 808 322
СберБанк
3.50%
Ставка
20.00%
Первый взнос
от 26 082 /мес.
Все варианты
8 этаж
из 20 4 квартал 2026
Московская область, Ивантеевка городской округ
Ростокино
33 мин.
2 очередь Секция 2,3 подъезд 1
Корпус
нет данных
Отделка
2.74 м
Потолки
ЖК «Новая Ивантеевка»
5 844 542
СберБанк
3.50%
Ставка
20.00%
Первый взнос
от 26 245 /мес.
Все варианты
9 этаж
из 20 4 квартал 2026
Московская область, Ивантеевка городской округ
Ростокино
33 мин.
2 очередь Секция 2,3 подъезд 1
Корпус
нет данных
Отделка
2.74 м
Потолки
ЖК «Новая Ивантеевка»
5 880 762
СберБанк
3.50%
Ставка
20.00%
Первый взнос
от 26 407 /мес.
Все варианты
10 этаж
из 20 4 квартал 2026
Московская область, Ивантеевка городской округ
Ростокино
33 мин.
2 очередь Секция 2,3 подъезд 1
Корпус
нет данных
Отделка
2.74 м
Потолки
ЖК «Новая Ивантеевка»
5 916 981
СберБанк
3.50%
Ставка
20.00%
Первый взнос
от 26 570 /мес.
Все варианты
11 этаж
из 20 4 квартал 2026
Московская область, Ивантеевка городской округ
Ростокино
33 мин.
2 очередь Секция 2,3 подъезд 1
Корпус
нет данных
Отделка
2.74 м
Потолки
ЖК «Новая Ивантеевка»
5 953 201
СберБанк
3.50%
Ставка
20.00%
Первый взнос
от 26 733 /мес.
Все варианты
12 этаж
из 20 4 квартал 2026
Московская область, Ивантеевка городской округ
Ростокино
33 мин.
2 очередь Секция 2,3 подъезд 1
Корпус
нет данных
Отделка
2.74 м
Потолки
ЖК «Новая Ивантеевка»
5 989 421
СберБанк
3.50%
Ставка
20.00%
Первый взнос
от 26 895 /мес.
Все варианты
13 этаж
из 20 4 квартал 2026
Московская область, Ивантеевка городской округ
Ростокино
33 мин.
2 очередь Секция 2,3 подъезд 1
Корпус
нет данных
Отделка
2.74 м
Потолки
ЖК «Новая Ивантеевка»
6 025 641
СберБанк
3.50%
Ставка
20.00%
Первый взнос
от 27 058 /мес.
Все варианты
14 этаж
из 20 4 квартал 2026
Московская область, Ивантеевка городской округ
Ростокино
33 мин.
2 очередь Секция 2,3 подъезд 1
Корпус
нет данных
Отделка
2.74 м
Потолки
ЖК «Новая Ивантеевка»
6 061 860
СберБанк
3.50%
Ставка
20.00%
Первый взнос
от 27 220 /мес.
Все варианты
15 этаж
из 20 4 квартал 2026
Московская область, Ивантеевка городской округ
Ростокино
33 мин.
2 очередь Секция 2,3 подъезд 1
Корпус
нет данных
Отделка
2.74 м
Потолки
ЖК «Новая Ивантеевка»
6 098 080
СберБанк
3.50%
Ставка
20.00%
Первый взнос
от 27 383 /мес.
Все варианты
16 этаж
из 20 4 квартал 2026
Московская область, Ивантеевка городской округ
Ростокино
33 мин.
2 очередь Секция 2,3 подъезд 1
Корпус
нет данных
Отделка
2.74 м
Потолки
ЖК «Новая Ивантеевка»
6 134 300
СберБанк
3.50%
Ставка
20.00%
Первый взнос
от 27 546 /мес.
Все варианты
17 этаж
из 20 4 квартал 2026
Московская область, Ивантеевка городской округ
Ростокино
33 мин.
2 очередь Секция 2,3 подъезд 1
Корпус
нет данных
Отделка
2.74 м
Потолки
ЖК «Новая Ивантеевка»
6 170 519
СберБанк
3.50%
Ставка
20.00%
Первый взнос
от 27 708 /мес.
Все варианты
18 этаж
из 20 4 квартал 2026
Московская область, Ивантеевка городской округ
Ростокино
33 мин.
2 очередь Секция 2,3 подъезд 1
Корпус
нет данных
Отделка
2.74 м
Потолки
ЖК «Новая Ивантеевка»
6 206 739
СберБанк
3.50%
Ставка
20.00%
Первый взнос
от 27 871 /мес.
Все варианты
19 этаж
из 20 4 квартал 2026
Московская область, Ивантеевка городской округ
Ростокино
33 мин.
2 очередь Секция 2,3 подъезд 1
Корпус
нет данных
Отделка
2.74 м
Потолки
ЖК «Новая Ивантеевка»
6 242 959
СберБанк
3.50%
Ставка
20.00%
Первый взнос
от 28 034 /мес.
Все варианты
20 этаж
из 20 4 квартал 2026
Московская область, Ивантеевка городской округ
Ростокино
33 мин.
2 очередь Секция 2,3 подъезд 1
Корпус
нет данных
Отделка
2.74 м
Потолки
ЖК «Новая Ивантеевка»
6 279 178
СберБанк
3.50%
Ставка
20.00%
Первый взнос
от 28 196 /мес.
Все варианты
студия 28,20 м2 4 791 480
Этаж 12/12
МО, ЖК «Новая Ивантеевка»
Ростокино
33 мин.
Строится
студия 28,60 м2 4 796 139
Этаж 9/12
МО, ЖК «Новая Ивантеевка»
Ростокино
33 мин.
Строится
студия 29,30 м2 4 871 148
Этаж 10/12
МО, ЖК «Новая Ивантеевка»
Ростокино
33 мин.
Строится
студия 29,50 м2 4 865 238
Этаж 10/25
МО, ЖК «Новая Ивантеевка»
Ростокино
33 мин.
Строится
Посмотреть 241 квартира в ЖК«Новая Ивантеевка»
1-комн. квартира 34,70 м2 5 772 103
Этаж 6/20
МО, ЖК «Новая Ивантеевка»
Ростокино
33 мин.
Строится
1-комн. квартира 35,00 м2 5 935 056
Этаж 10/12
МО, ЖК «Новая Ивантеевка»
Ростокино
33 мин.
Строится
1-комн. квартира 35,50 м2 5 987 873
Этаж 10/12
МО, ЖК «Новая Ивантеевка»
Ростокино
33 мин.
Строится
1-комн. квартира 35,70 м2 5 828 478
Этаж 4/20
МО, ЖК «Новая Ивантеевка»
Ростокино
33 мин.
Строится
Посмотреть 385 квартир в ЖК«Новая Ивантеевка»
2-комн. квартира 55,40 м2 8 986 349
Этаж 8/20
МО, ЖК «Новая Ивантеевка»
Ростокино
33 мин.
Строится
2-комн. квартира 56,30 м2 9 075 300
Этаж 7/20
МО, ЖК «Новая Ивантеевка»
Ростокино
33 мин.
Строится
2-комн. квартира 58,00 м2 9 131 850
Этаж 2/25
МО, ЖК «Новая Ивантеевка»
Ростокино
33 мин.
Строится
2-комн. квартира 65,70 м2 10 602 906
Этаж 2/12
МО, ЖК «Новая Ивантеевка»
Ростокино
33 мин.
Строится
Посмотреть 221 квартира в ЖК«Новая Ивантеевка»
3-комн. квартира 70,90 м2 10 850 760
Этаж 8/25
МО, ЖК «Новая Ивантеевка»
Ростокино
33 мин.
Строится
3-комн. квартира 75,60 м2 12 322 800
Этаж 20/25
МО, ЖК «Новая Ивантеевка»
Ростокино
33 мин.
Строится
Посмотреть 38 квартир в ЖК«Новая Ивантеевка»

Скидки и спецпредложения от застройщиков

ЖК «Новая Ивантеевка» на карте

Выгодные предложения на новостройки

Отзывы о ЖК«Новая Ивантеевка»

Самый полезный отзыв
ОК
20 ноября 2024
Оценка:
Достоинства
Транспортная доступность
Социальная инфраструктура
Планировки
Двор, окружение
Расположение
Проект комфорт-класса в 25 км от МКАД, рядом парки и заповедники. Хорошая транспортная развязка - до станции «Зеленый Бор» можно пешком дойти. Рядом есть съезд к Ярославскому шоссе. Всего в комплексе будет 13 домов, к ним анонсировали три детских сада, две школы и физкультурный комплекс с бассейном.
Ответить
Самый новый отзыв
СР
11 марта
Оценка:
Достоинства
Двор, окружение
Расположение
Расположение в Ивантеевке даёт спокойствие и природу, но для меня важен быстрый доступ к Москве. В целом, хорошая локация для жизни, если не нужно ежедневно быть в центре.
Ответить

Оставить отзыв

Добавьте отзыв, заполнив личные данные, или сначала войдите на сайт, тогда информация будет автоматически взята из личного профиля.
Оценка*