Рейтинг@Mail.ru
Переверните экран
Новостройки Квартиры Ипотека Новостройки Москвы Новостройки Подмосковья Новостройки Новой Москвы Готовые новостройки Новостройки на карте Акции от застройщиков Коммерческие помещения Продавцы и застройщики Панорамы новостроек Видеообзор новостроек Экспертиза новостроек Экология Москвы и Подмосковья Студии 1-комнатные 2-комнатные 3-комнатные Квартиры на карте Ипотечный калькулятор Семейная ипотека Военная ипотека Банки и программы Медиа Новости недвижимости Мнение эксперта Аналитика рынка Покупателю Экспертиза новостроек Эксперты и авторы О проекте Контакты Реклама на сайте Vk Youtube Telegram Дзен Машиноместа Апартаменты #траншевая ипотека #рассрочка ИТ-ипотека Квартиры со скидками до 40% Видео 360° новостроек Субсидированная застройщиком Rutube Поиск дома в Москве Программа реновации в Москве Новостройки премиум-класса Новостройки бизнес-класса Рассрочка Траншевая ипотека Дома и коттеджи Коттеджные поселки в Новой Москве Готовые коттеджные поселки Строящиеся коттеджные поселки Коттеджные поселки в лесу Коттеджные поселки у водоема Коттеджные поселки в ипотеку Бизнес-центры Коттеджи Ипотека со ставкой 0,1%
Данная квартира является лидером продаж среди однокомнатных квартир в ЖК «Мнёвники от Гранель» по данным Росреестра
1-комн. квартира, 50.05 м2, 9 этаж
Срок сдачи 2 квартал 2028 года
26 840 713 
29 554 943
536 278 2
обновлено 13 мая

Описание 1-комн. квартиры

Срок ГК
2 квартал 2028 года
Стадия строительства
монтаж нижних этажей
Тип проекта
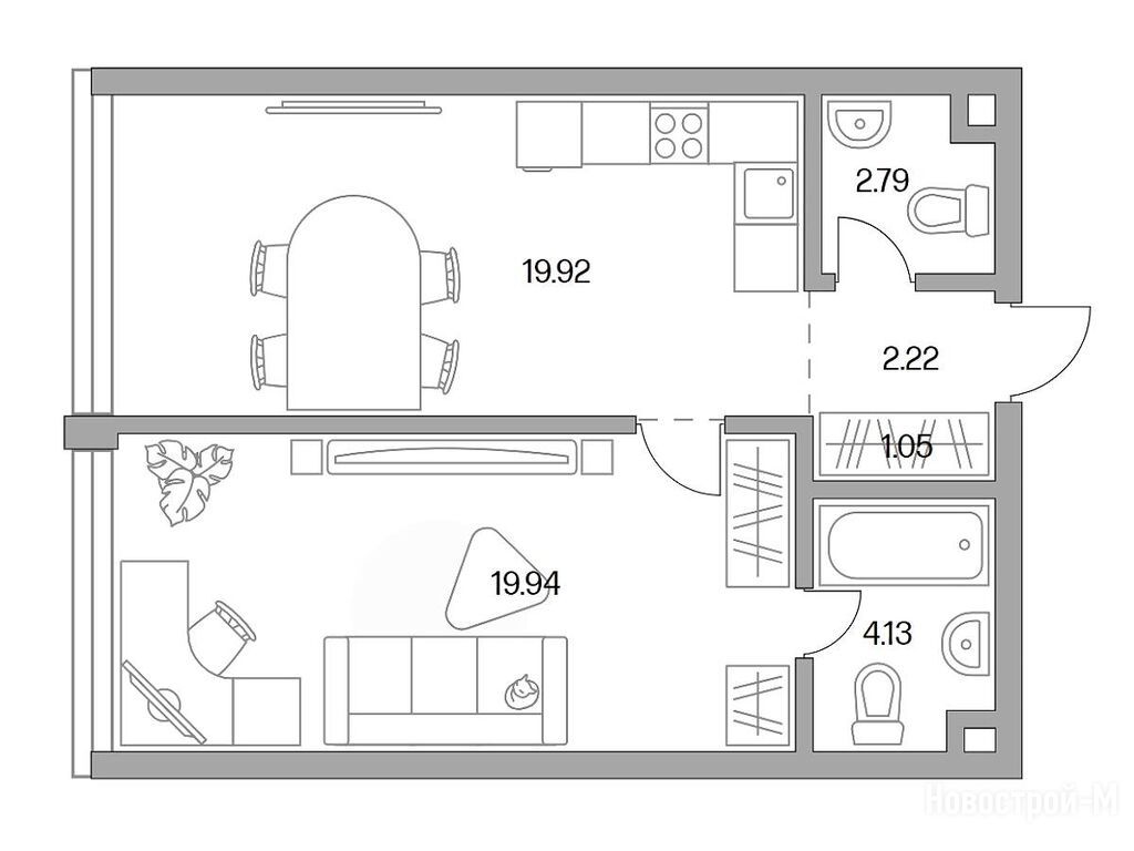
Общая площадь
50.05 м2
Жилая площадь
19.94 м2
Площадь кухни
19.92 м2
Этаж
9 / 27
Отделка
нет

Расположение 1-комн. квартиры

Локация
Станция МЦК
Зорге
13 мин.
Дом
1
Адрес
ул. Народного Ополчения, вл. 34, корп. 1, секция 1

Способы покупки

Особенности

Продается однокомнатная квартира в новостройке ЖК «Мнёвники от Гранель» по адресу Москва, СЗАО, Хорошево-Мневники, ул. Народного Ополчения, вл. 34, корп. 1. Общая площадь квартиры - 50.05 кв. м. Тип проекта, по которому построен дом — Монолит, компания-застройщик — ГК «Гранель», ООО СЗ ГРАНЕЛЬ АЛЬФА. Стоимость квартиры — 26 840 713 руб. Способы оплаты можно уточнить у продавца. Срок сдачи — 2 квартал 2028. Более подробная информация по телефону.
ГК «Гранель»
ГК «Гранель»
Сданных 16
|
Строящихся 17
Время работы 09:00 — 21:00
Заказать обратный звонок
Выбирайте квартиру в ЖК «Мнёвники от Гранель» по ценам от застройщика

Похожие квартиры в ЖК «Мнёвники от Гранель»

14 этаж
из 27 2 квартал 2028
Москва, СЗАО
Октябрьское Поле
13 мин.
1
Корпус
нет
Отделка
3.20 м
Потолки
ЖК «Мнёвники от Гранель»
27 104 634 29 845 552
Всероссийский банк развития регионов, СберБанк, Азиатско-Тихоокеанский Банк, Совкомбанк, ДОМ.РФ, Россельхозбанк, Металлинвестбанк, Абсолют Банк, Уралсиб, Севергазбанк, Сургутнефтегазбанк, ВТБ, Банк Санкт-Петербург, Московский Кредитный Банк, Альфа-Банк, Промсвязьбанк, МТС Банк
6.00%
Ставка
20.10%
Первый взнос
от 162 506 /мес.
Все варианты
18 этаж
из 27 2 квартал 2028
Москва, СЗАО
Октябрьское Поле
13 мин.
1
Корпус
нет
Отделка
3.20 м
Потолки
ЖК «Мнёвники от Гранель»
27 104 634 29 845 552
Всероссийский банк развития регионов, СберБанк, Азиатско-Тихоокеанский Банк, Совкомбанк, ДОМ.РФ, Россельхозбанк, Металлинвестбанк, Абсолют Банк, Уралсиб, Севергазбанк, Сургутнефтегазбанк, ВТБ, Банк Санкт-Петербург, Московский Кредитный Банк, Альфа-Банк, Промсвязьбанк, МТС Банк
6.00%
Ставка
20.10%
Первый взнос
от 162 506 /мес.
Все варианты
20 этаж
из 27 2 квартал 2028
Москва, СЗАО
Октябрьское Поле
13 мин.
1
Корпус
нет
Отделка
3.20 м
Потолки
ЖК «Мнёвники от Гранель»
27 315 771 30 078 040
Всероссийский банк развития регионов, СберБанк, Азиатско-Тихоокеанский Банк, Совкомбанк, ДОМ.РФ, Россельхозбанк, Металлинвестбанк, Абсолют Банк, Уралсиб, Севергазбанк, Сургутнефтегазбанк, ВТБ, Банк Санкт-Петербург, Московский Кредитный Банк, Альфа-Банк, Промсвязьбанк, МТС Банк
6.00%
Ставка
20.10%
Первый взнос
от 163 772 /мес.
Все варианты
23 этаж
из 27 2 квартал 2028
Москва, СЗАО
Октябрьское Поле
13 мин.
1
Корпус
нет
Отделка
3.20 м
Потолки
ЖК «Мнёвники от Гранель»
27 315 771 30 078 040
Всероссийский банк развития регионов, СберБанк, Азиатско-Тихоокеанский Банк, Совкомбанк, ДОМ.РФ, Россельхозбанк, Металлинвестбанк, Абсолют Банк, Уралсиб, Севергазбанк, Сургутнефтегазбанк, ВТБ, Банк Санкт-Петербург, Московский Кредитный Банк, Альфа-Банк, Промсвязьбанк, МТС Банк
6.00%
Ставка
20.10%
Первый взнос
от 163 772 /мес.
Все варианты
студия 28,02 м2 17 947 542
Этаж 7/9
Москва, ЖК «Мнёвники от Гранель»
Октябрьское Поле
13 мин.
Строится
студия 28,03 м2 17 101 156
Этаж 7/39
Москва, ЖК «Мнёвники от Гранель»
Октябрьское Поле
13 мин.
Строится
студия 28,04 м2 17 876 123
Этаж 3/9
Москва, ЖК «Мнёвники от Гранель»
Октябрьское Поле
13 мин.
Строится
студия 28,05 м2 17 764 169
Этаж 2/9
Москва, ЖК «Мнёвники от Гранель»
Октябрьское Поле
13 мин.
Строится
Посмотреть 99 квартир в ЖК «Мнёвники от Гранель»
1-комн. квартира 31,47 м2 18 934 394
Этаж 2/39
Москва, ЖК «Мнёвники от Гранель»
Октябрьское Поле
13 мин.
Строится
1-комн. квартира 31,50 м2 18 952 444
Этаж 2/39
Москва, ЖК «Мнёвники от Гранель»
Октябрьское Поле
13 мин.
Строится
1-комн. квартира 32,82 м2 20 023 545
Этаж 8/39
Москва, ЖК «Мнёвники от Гранель»
Октябрьское Поле
13 мин.
Строится
1-комн. квартира 32,87 м2 17 618 694
Этаж 11/27
Москва, ЖК «Мнёвники от Гранель»
Октябрьское Поле
13 мин.
Строится
Посмотреть 223 квартиры в ЖК «Мнёвники от Гранель»
2-комн. квартира 55,49 м2 29 467 104
Этаж 4/9
Москва, ЖК «Мнёвники от Гранель»
Октябрьское Поле
13 мин.
Строится
2-комн. квартира 56,07 м2 29 773 442
Этаж 3/9
Москва, ЖК «Мнёвники от Гранель»
Октябрьское Поле
13 мин.
Строится
2-комн. квартира 56,08 м2 31 789 632
Этаж 5/9
Москва, ЖК «Мнёвники от Гранель»
Октябрьское Поле
13 мин.
Строится
2-комн. квартира 56,37 м2 29 934 414
Этаж 4/9
Москва, ЖК «Мнёвники от Гранель»
Октябрьское Поле
13 мин.
Строится
Посмотреть 47 квартир в ЖК «Мнёвники от Гранель»
3-комн. квартира 58,53 м2 29 783 440
Этаж 10/39
Москва, ЖК «Мнёвники от Гранель»
Октябрьское Поле
13 мин.
Строится
3-комн. квартира 59,22 м2 27 852 136
Этаж 11/27
Москва, ЖК «Мнёвники от Гранель»
Октябрьское Поле
13 мин.
Строится
3-комн. квартира 59,35 м2 29 387 006
Этаж 2/39
Москва, ЖК «Мнёвники от Гранель»
Октябрьское Поле
13 мин.
Строится
3-комн. квартира 59,37 м2 29 709 975
Этаж 4/39
Москва, ЖК «Мнёвники от Гранель»
Октябрьское Поле
13 мин.
Строится
Посмотреть 75 квартир в ЖК «Мнёвники от Гранель»
4-комн. квартира 85,47 м2 41 133 767
Этаж 25/27
Москва, ЖК «Мнёвники от Гранель»
Октябрьское Поле
13 мин.
Строится
4-комн. квартира 89,14 м2 44 983 536
Этаж 27/39
Москва, ЖК «Мнёвники от Гранель»
Октябрьское Поле
13 мин.
Строится
5-комн. квартира 99,71 м2 51 857 707
Этаж 24/27
Москва, ЖК «Мнёвники от Гранель»
Октябрьское Поле
13 мин.
Строится
5-комн. квартира 110,69 м2 54 262 890
Этаж 25/27
Москва, ЖК «Мнёвники от Гранель»
Октябрьское Поле
13 мин.
Строится

Скидки и спецпредложения от застройщиков

ЖК «Мнёвники от Гранель» на карте

Выгодные предложения на новостройки

Отзывы о ЖК «Мнёвники от Гранель»

Самый полезный отзыв
АО
20 января 2025
Оценка:
Достоинства
Социальная инфраструктура
Планировки
Способы покупки
Внешний вид фасада
Двор, окружение
Недавно купил квартиру в Mypriority Мневники. Первое, что меня порадовало — это отличная инфраструктура. В шаговой доступности находятся магазины, аптеки и развлекательные заведения. В комплексе будут все условия для активного отдыха: уютные парки, спортивные площадки и зоны для детей. Квартиры просторные, с современными планировками и хорошей звукоизоляцией. На территории видеонаблюдение, круглосуточно работает охрана. В целом, доволен своим выбором!
Ответить
Самый новый отзыв
ИЮ
08 июля 2025
Оценка:
Достоинства
Транспортная доступность
Двор, окружение
Расположение
Главным плюсом для меня является пешая доступность – всего 10 минут до метро Октябрьское поле. Объективно удобно, особенно учитывая московские пробки. С утра можно спокойно прогуляться, выпить кофе
Ответить

Оставить отзыв

Добавьте отзыв, заполнив личные данные, или сначала войдите на сайт, тогда информация будет автоматически взята из личного профиля.
Оценка*