Рейтинг@Mail.ru
Переверните экран
Новостройки Квартиры Ипотека Новостройки Москвы Новостройки Подмосковья Новостройки Новой Москвы Готовые новостройки Новостройки на карте Акции от застройщиков Коммерческие помещения Продавцы и застройщики Панорамы новостроек Видеообзор новостроек Экспертиза новостроек Экология Москвы и Подмосковья Студии 1-комнатные 2-комнатные 3-комнатные Квартиры на карте Ипотечный калькулятор Семейная ипотека Военная ипотека Банки и программы Медиа Новости недвижимости Мнение эксперта Аналитика рынка Покупателю Экспертиза новостроек Эксперты и авторы О проекте Контакты Реклама на сайте Vk Youtube Telegram Дзен Машиноместа Апартаменты #траншевая ипотека #рассрочка IT-ипотека Квартиры со скидками до 40% Видео 360° новостроек Субсидированная застройщиком Rutube Поиск дома в Москве Программа реновации в Москве Новостройки премиум-класса Новостройки бизнес-класса Рассрочка Траншевая ипотека ГАЛС Дома и коттеджи Бизнес-центры Бизнес-центры в Москве Бизнес-центры рядом с метро Строящиеся бизнес-центры Бизнес-центры класса A Бизнес-центры класса B ЛСР
Данная квартира является лидером продаж среди однокомнатных квартир в ЖК «НАЗАРÉ» («Мангазея в Богородском») по данным Росреестра
Данное предложение на 13.12.2025 неактуально. Пожалуйста, ознакомьтесь с другими похожими предложениями в ЖК «НАЗАРÉ» («Мангазея в Богородском») .
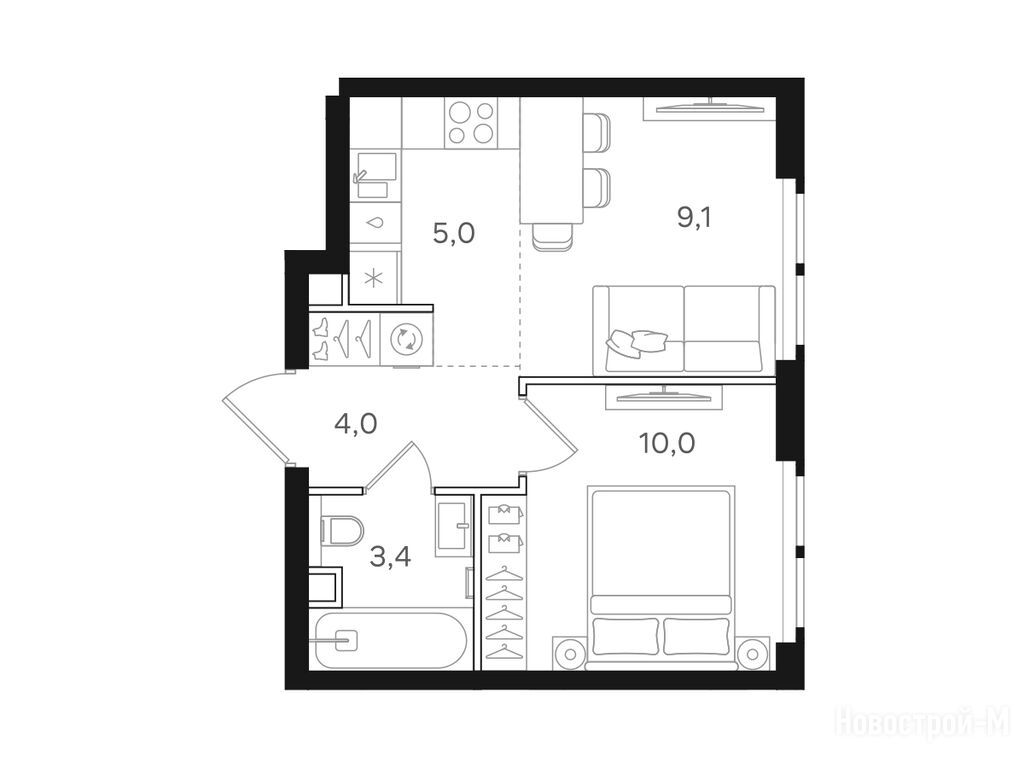
1-комн. квартира, 31.50 м2, 20 этаж
Срок сдачи 2 квартал 2028 года
19 656 000 
624 000 2
обновлено 12 ноября

Описание 1-комн. квартиры

Застройщик
Срок ГК
2 квартал 2028 года
Стадия строительства
котлован/фундамент
Общая площадь
31.50 м2
Высота потолков
2.85
Этаж
20 / 24
Отделка
white box
Грузовой лифт
есть

Расположение 1-комн. квартиры

Локация
Станция МЦК
Дом
2
Адрес
г. Москва, район Богородское р-н, ш Открытое, д. 9, секция 1

Способы покупки

Особенности

Продается однокомнатная квартира в новостройке ЖК «НАЗАРÉ» («Мангазея в Богородском») по адресу Москва, ВАО, Богородское, г. Москва, район Богородское р-н, ш Открытое, д. 9. Общая площадь квартиры - 31.5 кв. м. Тип проекта, по которому построен дом — Монолитно-кирпичный, компания-застройщик — «Мангазея». Стоимость квартиры — 19 656 000 руб. Способы оплаты можно уточнить у продавца. Срок сдачи — 2 квартал 2028. Более подробная информация по телефону.
«Мангазея»
«Мангазея»
Сданных 5
|
Строящихся 4
Время работы 09:00 — 21:00
Выбирайте квартиру в ЖК «НАЗАРÉ» («Мангазея в Богородском») по ценам от застройщика
Посмотреть все спецпредложения
студия 23,10 м2 13 799 940
Этаж 2/31
Москва, ЖК «НАЗАРÉ» («Мангазея в Богородском»)
Бульвар Рокоссовского
2 мин.
Строится
студия 23,20 м2 15 745 840
Этаж 23/31
Москва, ЖК «НАЗАРÉ» («Мангазея в Богородском»)
Бульвар Рокоссовского
2 мин.
Строится
студия 23,30 м2 15 436 250
Этаж 9/24
Москва, ЖК «НАЗАРÉ» («Мангазея в Богородском»)
Бульвар Рокоссовского
2 мин.
Строится
студия 23,40 м2 16 127 280
Этаж 20/24
Москва, ЖК «НАЗАРÉ» («Мангазея в Богородском»)
Бульвар Рокоссовского
2 мин.
Строится
Посмотреть 18 квартир в ЖК «НАЗАРÉ» («Мангазея в Богородском»)
1-комн. квартира 31,40 м2 18 993 860
Этаж 20/25
Москва, ЖК «НАЗАРÉ» («Мангазея в Богородском»)
Бульвар Рокоссовского
2 мин.
Строится
1-комн. квартира 31,90 м2 19 140 000
Этаж 23/31
Москва, ЖК «НАЗАРÉ» («Мангазея в Богородском»)
Бульвар Рокоссовского
2 мин.
Строится
1-комн. квартира 32,00 м2 20 659 200
Этаж 20/24
Москва, ЖК «НАЗАРÉ» («Мангазея в Богородском»)
Бульвар Рокоссовского
2 мин.
Строится
1-комн. квартира 39,70 м2 22 748 100
Этаж 30/41
Москва, ЖК «НАЗАРÉ» («Мангазея в Богородском»)
Бульвар Рокоссовского
2 мин.
Строится
Посмотреть 82 квартиры в ЖК «НАЗАРÉ» («Мангазея в Богородском»)
2-комн. квартира 49,90 м2 22 652 604
Этаж 16/31
Москва, ЖК «НАЗАРÉ» («Мангазея в Богородском»)
Бульвар Рокоссовского
2 мин.
Строится
2-комн. квартира 50,10 м2 26 217 330
Этаж 23/31
Москва, ЖК «НАЗАРÉ» («Мангазея в Богородском»)
Бульвар Рокоссовского
2 мин.
Строится
2-комн. квартира 50,30 м2 26 528 220
Этаж 9/24
Москва, ЖК «НАЗАРÉ» («Мангазея в Богородском»)
Бульвар Рокоссовского
2 мин.
Строится
2-комн. квартира 50,50 м2 25 487 350
Этаж 18/24
Москва, ЖК «НАЗАРÉ» («Мангазея в Богородском»)
Бульвар Рокоссовского
2 мин.
Строится
Посмотреть 107 квартир в ЖК «НАЗАРÉ» («Мангазея в Богородском»)
3-комн. квартира 76,90 м2 37 242 670
Этаж 23/25
Москва, ЖК «НАЗАРÉ» («Мангазея в Богородском»)
Бульвар Рокоссовского
2 мин.
Строится
3-комн. квартира 77,50 м2 39 284 750
Этаж 28/31
Москва, ЖК «НАЗАРÉ» («Мангазея в Богородском»)
Бульвар Рокоссовского
2 мин.
Строится
3-комн. квартира 83,90 м2 38 896 040
Этаж 13/43
Москва, ЖК «НАЗАРÉ» («Мангазея в Богородском»)
Бульвар Рокоссовского
2 мин.
Строится
Этаж 9/43
Москва, ЖК «НАЗАРÉ» («Мангазея в Богородском»)
Бульвар Рокоссовского
2 мин.
Строится
Посмотреть 13 квартир в ЖК «НАЗАРÉ» («Мангазея в Богородском»)
4-комн. квартира 120,80 м2 51 593 680
Этаж 36/41
Москва, ЖК «НАЗАРÉ» («Мангазея в Богородском»)
Бульвар Рокоссовского
2 мин.
Строится
4-комн. квартира 124,00 м2 54 770 800
Этаж 36/41
Москва, ЖК «НАЗАРÉ» («Мангазея в Богородском»)
Бульвар Рокоссовского
2 мин.
Строится

Скидки и спецпредложения от застройщиков

ЖК «НАЗАРÉ» («Мангазея в Богородском») на карте

Выгодные предложения на новостройки

Отзывы о ЖК «НАЗАРÉ» («Мангазея в Богородском»)

Самый полезный отзыв
ЭХ
17 ноября 2023
Оценка:
Способы покупки
Добрый день, меня интересуют коммерческие предложения в этом проекте. Что известно?
Ответить
Полезный отзыв?
Самый новый отзыв
Р
07 декабря
Оценка:
На таком раннем этапе брать квартиру тревожно, так как не знаешь, насколько хорошо воплотятся в реальность идеи проекта. Тут мне все нравится, даже СВХ не очень смущает, больше радует что метро рядом. В планах приобрести квартиру здесь позже, когда что-то начнет уже вырисовываться, но при этом я прекрасно понимаю, что ценник может улететь в космос
Ответить
Полезный отзыв?
Добавьте отзыв, заполнив личные данные, или сначала войдите на сайт, тогда информация будет автоматически взята из личного профиля.
Оценка*