Рейтинг@Mail.ru
Переверните экран
Новостройки Квартиры Ипотека Новостройки Москвы Новостройки Подмосковья Новостройки Новой Москвы Готовые новостройки Новостройки на карте Акции от застройщиков Коммерческие помещения Продавцы и застройщики Панорамы новостроек Видеообзор новостроек Экспертиза новостроек Экология Москвы и Подмосковья Студии 1-комнатные 2-комнатные 3-комнатные Квартиры на карте Ипотечный калькулятор Семейная ипотека Военная ипотека Банки и программы Медиа Новости недвижимости Мнение эксперта Аналитика рынка Покупателю Экспертиза новостроек Эксперты и авторы О проекте Контакты Реклама на сайте Vk Youtube Telegram Дзен Машиноместа Апартаменты #траншевая ипотека #рассрочка ИТ-ипотека Квартиры со скидками до 40% Видео 360° новостроек Субсидированная застройщиком Rutube Поиск дома в Москве Программа реновации в Москве Новостройки премиум-класса Новостройки бизнес-класса Рассрочка Траншевая ипотека Дома и коттеджи Коттеджные поселки в Новой Москве Готовые коттеджные поселки Строящиеся коттеджные поселки Коттеджные поселки в лесу Коттеджные поселки у водоема Коттеджные поселки в ипотеку Бизнес-центры Коттеджи Ипотека со ставкой 0,1%
Данная квартира является лидером продаж среди однокомнатных квартир в ЖК «Квартал Западный» по данным Росреестра
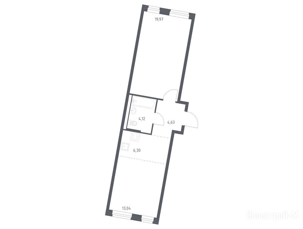
1-комн. квартира, 48.06 м2, 1 этаж
Срок сдачи 2 квартал 2027 года
15 100 836 
314 208 2
обновлено 13 мая

Описание 1-комн. квартиры

Срок ГК
2 квартал 2027 года
Стадия строительства
Общая площадь
48.06 м2
Жилая площадь
33.01 м2
Площадь кухни
19.34 м2
Этаж
1 / 14
Отделка
чистовая
Грузовой лифт
есть

Расположение 1-комн. квартиры

Локация
Метро
Пыхтино
18 мин.
Станция МЦД
Дом
6
Адрес
ЖК «Квартал Западный», корп. 6, секция 3

Способы покупки

Особенности

Продается однокомнатная квартира в новостройке ЖК «Квартал Западный» по адресу Москва, ТиНАО, Новомосковский АО, Марушкинское С/П, ЖК «Квартал Западный», корп. 6. Общая площадь квартиры - 48.06 кв. м. Тип проекта, по которому построен дом — Монолитно-кирпичный, компания-застройщик — ООО CЗ «Самолет-Квартал Западный», Группа «Самолет». Стоимость квартиры — 15 100 836 руб. Способы оплаты можно уточнить у продавца. Срок сдачи — 2 квартал 2027. Более подробная информация по телефону.
студия 22,59 м2 9 895 213
Этаж 14/14
НМ, ЖК «Квартал Западный»
Санино
7 мин.
Строится
студия 22,62 м2 10 342 320
Этаж 7/8
НМ, ЖК «Квартал Западный»
Санино
7 мин.
Строится
студия 22,80 м2 8 293 728
Этаж 7/14
НМ, ЖК «Квартал Западный»
Санино
7 мин.
Строится
студия 22,81 м2 9 840 176
Этаж 5/12
НМ, ЖК «Квартал Западный»
Санино
7 мин.
Строится
Посмотреть 18 квартир в ЖК «Квартал Западный»
1-комн. квартира 32,24 м2 11 706 452
Этаж 5/10
НМ, ЖК «Квартал Западный»
Санино
7 мин.
Строится
1-комн. квартира 32,66 м2 10 471 645
Этаж 5/14
НМ, ЖК «Квартал Западный»
Санино
7 мин.
Строится
1-комн. квартира 32,68 м2 9 981 877
Этаж 5/8
НМ, ЖК «Квартал Западный»
Санино
7 мин.
Строится
1-комн. квартира 32,87 м2 12 556 869
Этаж 7/14
НМ, ЖК «Квартал Западный»
Санино
7 мин.
Строится
Посмотреть 103 квартиры в ЖК «Квартал Западный»
2-комн. квартира 49,63 м2 14 310 165
Этаж 7/8
НМ, ЖК «Квартал Западный»
Санино
7 мин.
Строится
2-комн. квартира 51,27 м2 17 277 637
Этаж 5/10
НМ, ЖК «Квартал Западный»
Санино
7 мин.
Строится
2-комн. квартира 51,31 м2 18 757 657
Этаж 5/14
НМ, ЖК «Квартал Западный»
Санино
7 мин.
Строится
2-комн. квартира 52,32 м2 17 974 760
Этаж 13/14
НМ, ЖК «Квартал Западный»
Санино
7 мин.
Строится
Посмотреть 27 квартир в ЖК «Квартал Западный»
3-комн. квартира 74,41 м2 23 605 199
Этаж 2/5
НМ, ЖК «Квартал Западный»
Санино
7 мин.
Строится
3-комн. квартира 74,42 м2 19 570 972
Этаж 3/6
НМ, ЖК «Квартал Западный»
Санино
7 мин.
Строится
3-комн. квартира 75,29 м2 19 371 741
Этаж 7/8
НМ, ЖК «Квартал Западный»
Санино
7 мин.
Строится
3-комн. квартира 76,19 м2 19 400 336
Этаж 3/7
НМ, ЖК «Квартал Западный»
Санино
7 мин.
Строится
Посмотреть 18 квартир в ЖК «Квартал Западный»

Скидки и спецпредложения от застройщиков

ЖК «Квартал Западный» на карте

Выгодные предложения на новостройки

Отзывы о ЖК «Квартал Западный»

Самый полезный отзыв
ЕХ
24 января 2023
Оценка:
Достоинства
Экология
Социальная инфраструктура
Планировки
Двор, окружение
Здорово. Очень нравится район,там действительно много свежего воздуха и зелени.Да и все что нужно для семей есть.Добавлю в свой список выбора.
Ответить
Самый новый отзыв
АС
05 мая
Оценка:
Ожидание наверное для кого-то долгое, но лично я решил, что это лучше, чем за съемную квартиру всю жизнь платить. Поэтому выбрал этот жк, взял на третьем этаже однушечку с видом во двор. Чистовая отделка и сантехника сразу у меня будут
Ответить

Оставить отзыв

Добавьте отзыв, заполнив личные данные, или сначала войдите на сайт, тогда информация будет автоматически взята из личного профиля.
Оценка*