Рейтинг@Mail.ru
Переверните экран
Новостройки Квартиры Ипотека Новостройки Москвы Новостройки Подмосковья Новостройки Новой Москвы Готовые новостройки Новостройки на карте Акции от застройщиков Коммерческие помещения Продавцы и застройщики Панорамы новостроек Видеообзор новостроек Экспертиза новостроек Экология Москвы и Подмосковья Студии 1-комнатные 2-комнатные 3-комнатные Квартиры на карте Ипотечный калькулятор Семейная ипотека Военная ипотека Банки и программы Медиа Новости недвижимости Мнение эксперта Аналитика рынка Покупателю Экспертиза новостроек Эксперты и авторы О проекте Контакты Реклама на сайте Vk Youtube Telegram Дзен Машиноместа Апартаменты #траншевая ипотека #рассрочка IT-ипотека Квартиры со скидками до 40% Видео 360° новостроек Субсидированная застройщиком Rutube Поиск дома в Москве Программа реновации в Москве Новостройки премиум-класса Новостройки бизнес-класса Рассрочка Траншевая ипотека ГАЛС Дома и коттеджи Бизнес-центры Бизнес-центры в Москве Бизнес-центры рядом с метро Строящиеся бизнес-центры Бизнес-центры класса A Бизнес-центры класса B ЛСР
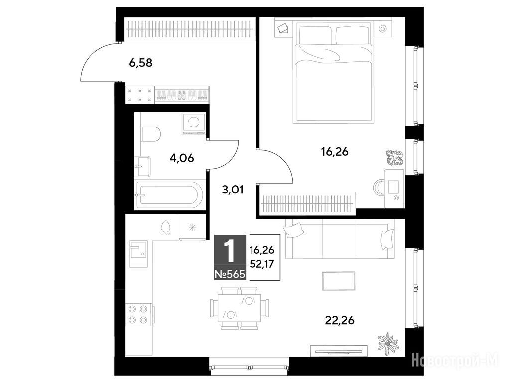
1-комн. квартира, 52.17 м2, 2 этаж
Срок сдачи 1 квартал 2027 года
7 726 377 
148 100 2
обновлено 17 декабря

Описание 1-комн. квартиры

Новостройка
Застройщик
Срок ГК
1 квартал 2027 года
Стадия строительства
монтаж нижних этажей
Общая площадь
52.17 м2
Жилая площадь
16.26 м2
Площадь кухни
22.26 м2
Этаж
2 / 25
Отделка
чистовая

Расположение 1-комн. квартиры

Локация
Ж/Д-станция
Калуга 2
22 мин.
Дом
3.2
Адрес
ул. Болдина, д. 22, секция 4

Особенности

Продается однокомнатная квартира в новостройке ЖК «Космопарк» по адресу Калужская область, Калуга, ул. Болдина, д. 22. Общая площадь квартиры - 52.17 кв. м. Тип проекта, по которому построен дом — Монолитно-кирпичный, компания-застройщик — DOGMA, ООО СЗ Д-Финанс. Стоимость квартиры — 7 726 377 руб. Способы оплаты можно уточнить у продавца. Срок сдачи — 1 квартал 2027. Более подробная информация по телефону.
DOGMA
DOGMA
Сданных 0
|
Строящихся 7
Время работы 09:00 — 21:00
Выбирайте квартиру в ЖК «Космопарк» по ценам от застройщика

Похожие квартиры в ЖК «Космопарк»

9 этаж
из 25 1 квартал 2027
Калужская область, Калужская область
Калуга 2 (ж/д)
22 мин.
3.2
Корпус
чистовая
Отделка
2.65 м
Потолки
ЖК «Космопарк»
8 133 303
12 этаж
из 25 1 квартал 2027
Калужская область, Калужская область
Калуга 2 (ж/д)
22 мин.
3.2
Корпус
чистовая
Отделка
2.65 м
Потолки
ЖК «Космопарк»
8 154 171
16 этаж
из 25 1 квартал 2027
Калужская область, Калужская область
Калуга 2 (ж/д)
22 мин.
3.2
Корпус
чистовая
Отделка
2.65 м
Потолки
ЖК «Космопарк»
8 201 124
18 этаж
из 25 1 квартал 2027
Калужская область, Калужская область
Калуга 2 (ж/д)
22 мин.
3.2
Корпус
чистовая
Отделка
2.65 м
Потолки
ЖК «Космопарк»
8 211 558
25 этаж
из 25 1 квартал 2027
Калужская область, Калужская область
Калуга 2 (ж/д)
22 мин.
3.2
Корпус
чистовая
Отделка
2.65 м
Потолки
ЖК «Космопарк»
8 227 209
21 этаж
из 25 1 квартал 2027
Калужская область, Калужская область
Калуга 2 (ж/д)
22 мин.
3.2
Корпус
чистовая
Отделка
2.65 м
Потолки
ЖК «Космопарк»
8 227 209
Посмотреть все спецпредложения
студия 23,62 м2 4 251 600
Этаж 5/25
ЖК «Космопарк»
Калуга 2 (ж/д)
22 мин.
Строится
студия 24,39 м2 4 570 686
Этаж 23/25
ЖК «Космопарк»
Калуга 2 (ж/д)
22 мин.
Строится
студия 26,97 м2 4 660 416
Этаж 16/25
ЖК «Космопарк»
Калуга 2 (ж/д)
22 мин.
Строится
студия 26,99 м2 4 628 785
Этаж 14/25
ЖК «Космопарк»
Калуга 2 (ж/д)
22 мин.
Строится
Посмотреть 13 квартир в ЖК «Космопарк»
1-комн. квартира 32,79 м2 5 849 736
Этаж 19/25
ЖК «Космопарк»
Калуга 2 (ж/д)
22 мин.
Строится
1-комн. квартира 33,75 м2 5 845 500
Этаж 1/25
ЖК «Космопарк»
Калуга 2 (ж/д)
22 мин.
Строится
1-комн. квартира 33,84 м2 5 959 224
Этаж 19/25
ЖК «Космопарк»
Калуга 2 (ж/д)
22 мин.
Строится
1-комн. квартира 34,07 м2 6 088 309
Этаж 17/25
ЖК «Космопарк»
Калуга 2 (ж/д)
22 мин.
Строится
Посмотреть 92 квартиры в ЖК «Космопарк»
2-комн. квартира 50,75 м2 8 358 525
Этаж 18/25
ЖК «Космопарк»
Калуга 2 (ж/д)
22 мин.
Строится
2-комн. квартира 51,10 м2 8 165 780
Этаж 18/25
ЖК «Космопарк»
Калуга 2 (ж/д)
22 мин.
Строится
2-комн. квартира 51,52 м2 8 737 792
Этаж 25/25
ЖК «Космопарк»
Калуга 2 (ж/д)
22 мин.
Строится
2-комн. квартира 51,74 м2 8 718 190
Этаж 10/25
ЖК «Космопарк»
Калуга 2 (ж/д)
22 мин.
Строится
Посмотреть 90 квартир в ЖК «Космопарк»
3-комн. квартира 67,81 м2 7 838 836
Этаж 18/25
ЖК «Космопарк»
Калуга 2 (ж/д)
22 мин.
Строится
3-комн. квартира 68,58 м2 8 263 890
Этаж 25/25
ЖК «Космопарк»
Калуга 2 (ж/д)
22 мин.
Строится
3-комн. квартира 72,50 м2 9 867 250
Этаж 1/25
ЖК «Космопарк»
Калуга 2 (ж/д)
22 мин.
Строится
3-комн. квартира 72,80 м2 10 031 840
Этаж 3/25
ЖК «Космопарк»
Калуга 2 (ж/д)
22 мин.
Строится
Посмотреть 32 квартиры в ЖК «Космопарк»

Скидки и спецпредложения от застройщиков

ЖК «Космопарк» на карте

Выгодные предложения на новостройки

Отзывы о ЖК «Космопарк»

Самый полезный отзыв
МС
09 августа 2024
Оценка:
Транспортная доступность
Планировки
Способы покупки
Внешний вид фасада
Двор, окружение
Расположение
Мне очень понравилась территория жилого комплекса. Хоть это и бывшее место завода, но развитие города не обошло его стороной. Здесь создан уютный и комфортный район, где можно спокойно прогуляться по ближайшей набережной и насладиться природой.
Ответить
Полезный отзыв?
Самый новый отзыв
Э
12 декабря
Оценка:
Часто езжу в Москву по работе, поэтому значение имела транспортная доступность. До вокзала всего несколько минут, и до аэропорта тоже недалеко. Территория обещает быть зеленой, комфортной, с детскими зонами
Ответить
Полезный отзыв?
Добавьте отзыв, заполнив личные данные, или сначала войдите на сайт, тогда информация будет автоматически взята из личного профиля.
Оценка*