Рейтинг@Mail.ru
Переверните экран
Новостройки Квартиры Ипотека Новостройки Москвы Новостройки Подмосковья Новостройки Новой Москвы Готовые новостройки Новостройки на карте Акции от застройщиков Коммерческие помещения Продавцы и застройщики Панорамы новостроек Видеообзор новостроек Экспертиза новостроек Экология Москвы и Подмосковья Студии 1-комнатные 2-комнатные 3-комнатные Квартиры на карте Ипотечный калькулятор Семейная ипотека Военная ипотека Банки и программы Медиа Новости недвижимости Мнение эксперта Аналитика рынка Покупателю Экспертиза новостроек Эксперты и авторы О проекте Контакты Реклама на сайте Vk Youtube Telegram Дзен Машиноместа Апартаменты #траншевая ипотека #рассрочка ИТ-ипотека Квартиры со скидками до 35% Видео 360° новостроек Субсидированная застройщиком Rutube Поиск дома в Москве Программа реновации в Москве Новостройки премиум-класса Новостройки бизнес-класса Рассрочка Траншевая ипотека Дома и коттеджи Бизнес-центры Бизнес-центры в Москве Бизнес-центры рядом с метро Строящиеся бизнес-центры Бизнес-центры класса A Бизнес-центры класса B Ипотека со ставкой 0,1%
Данная квартира является лидером продаж среди однокомнатных квартир в ЖК «Берег» по данным Росреестра
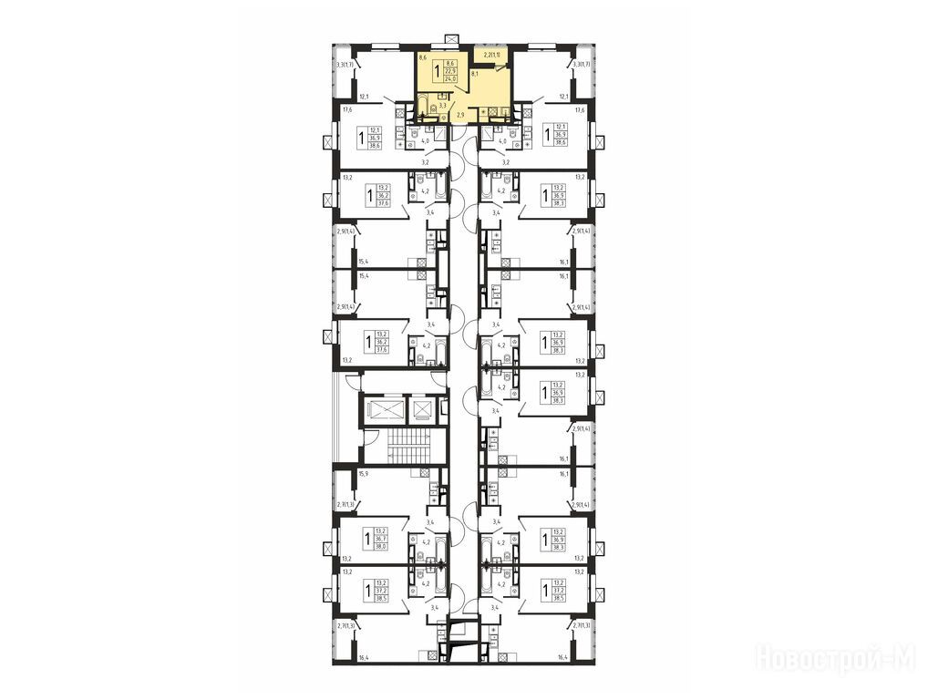
1-комн. квартира, 24.00 м2, 2 этаж
Срок сдачи 2 квартал 2027 года
6 638 675 
8 971 181
276 611 2
обновлено 5 марта

Описание 1-комн. квартиры

Новостройка
Срок ГК
2 квартал 2027 года
Стадия строительства
отделка фасада
Тип проекта
Общая площадь
24.00 м2
Этаж
2 / 11
Отделка
нет
Грузовой лифт
есть

Расположение 1-комн. квартиры

Станция МЦД
Дом
8 (2 очередь)
Адрес
квартал Международный, корп. 8, секция 1

Особенности

Продается однокомнатная квартира в новостройке ЖК «Берег» по адресу Московская область, Химки городской округ, Химки, Клязьма-Старбеево, квартал Международный, корп. 8. Общая площадь квартиры - 24 кв. м. Тип проекта, по которому построен дом — Кирпичный,Панельный, компания-застройщик — Сэсма, ООО СЗ МОНТАЖСТРОЙ. Стоимость квартиры — 6 638 675 руб. Способы оплаты можно уточнить у продавца. Срок сдачи — 2 квартал 2027. Более подробная информация по телефону.
Этаж 2/12
МО, ЖК «Берег»
Шереметьевская
23 мин.
Строится
студия 25,30 м2 6 192 884
Этаж 1/11
МО, ЖК «Берег»
Шереметьевская
23 мин.
Строится
студия 62,90 м2 9 900 000
Этаж 2/8
МО, ЖК «Берег»
Шереметьевская
23 мин.
Сдан
Посмотреть 5 квартир в ЖК «Берег»
Этаж 4/12
МО, ЖК «Берег»
Шереметьевская
23 мин.
Строится
1-комн. квартира 36,70 м2 7 146 232
Этаж 1/11
МО, ЖК «Берег»
Шереметьевская
23 мин.
Строится
1-комн. квартира 36,90 м2 7 185 177
Этаж 1/11
МО, ЖК «Берег»
Шереметьевская
23 мин.
Строится
1-комн. квартира 37,00 м2 7 204 647
Этаж 1/11
МО, ЖК «Берег»
Шереметьевская
23 мин.
Строится
Посмотреть 172 квартиры в ЖК «Берег»
Этаж 3/12
МО, ЖК «Берег»
Шереметьевская
23 мин.
Строится
2-комн. квартира 52,90 м2 11 922 017
Этаж 1/11
МО, ЖК «Берег»
Шереметьевская
23 мин.
Строится
Этаж 3/12
МО, ЖК «Берег»
Шереметьевская
23 мин.
Строится
Этаж 3/11
МО, ЖК «Берег»
Шереметьевская
23 мин.
Строится
Посмотреть 5 квартир в ЖК «Берег»
3-комн. квартира 141,70 м2 18 500 001
Этаж 5/8
МО, ЖК «Берег»
Шереметьевская
23 мин.
Сдан

Скидки и спецпредложения от застройщиков

ЖК «Берег» на карте

Выгодные предложения на новостройки

Отзывы о ЖК «Берег»

Самый полезный отзыв
МА
29 мая 2025
Оценка:
Достоинства
Планировки
Внешний вид фасада
Входные группы
Двор, окружение
Расположение
Комплекс просто глаз радует, очень красивый! Видно, что строили на совесть, качество строительства хорошее. В квартирах высокие потолки и большие окна, сразу чувствуешь себя просторнее. И стены толстые, 65 см, кирпич - значит тепло и тихо будет. Ну и в подъезде грузовой сквозной лифт - это удобно, и мебель заносить, и с коляской. В общем, пока одни плюсы!
Ответить
Самый новый отзыв
АВ
19 декабря 2025
Оценка:
Достоинства
Планировки
Способы покупки
Внешний вид фасада
Двор, окружение
Расположение
Изначально зацепило расположение у воды, хотелось ощущения простора, а не обычного двора-колодца. В реальности это один из главных плюсов — вид и воздух действительно чувствуются каждый день. Дом аккуратный, без показной роскоши, но сделан добротно. Планировки удобные, без странных решений. Цена выше средней и не самая быстрая транспортная доступность. Но для тех, кто ценит среду, а не километры до МКАД, проект оправдывает ожидания.
Ответить

Оставить отзыв

Добавьте отзыв, заполнив личные данные, или сначала войдите на сайт, тогда информация будет автоматически взята из личного профиля.
Оценка*