Рейтинг@Mail.ru
Переверните экран
Новостройки Квартиры Ипотека Новостройки Москвы Новостройки Подмосковья Новостройки Новой Москвы Готовые новостройки Новостройки на карте Акции от застройщиков Коммерческие помещения Продавцы и застройщики Панорамы новостроек Видеообзор новостроек Экспертиза новостроек Экология Москвы и Подмосковья Студии 1-комнатные 2-комнатные 3-комнатные Квартиры на карте Ипотечный калькулятор Семейная ипотека Военная ипотека Банки и программы Медиа Новости недвижимости Мнение эксперта Аналитика рынка Покупателю Экспертиза новостроек Эксперты и авторы О проекте Контакты Реклама на сайте Vk Youtube Telegram Дзен Машиноместа Апартаменты #траншевая ипотека #рассрочка IT-ипотека Квартиры со скидками до 40% Видео 360° новостроек Субсидированная застройщиком Rutube Поиск дома в Москве Программа реновации в Москве Новостройки премиум-класса Новостройки бизнес-класса Рассрочка Траншевая ипотека ГАЛС Дома и коттеджи Бизнес-центры Бизнес-центры в Москве Бизнес-центры рядом с метро Строящиеся бизнес-центры Бизнес-центры класса A Бизнес-центры класса B ЛСР
Данная квартира является лидером продаж среди однокомнатных квартир в ЖК «1-й Донской» (Первом Донском) по данным Росреестра
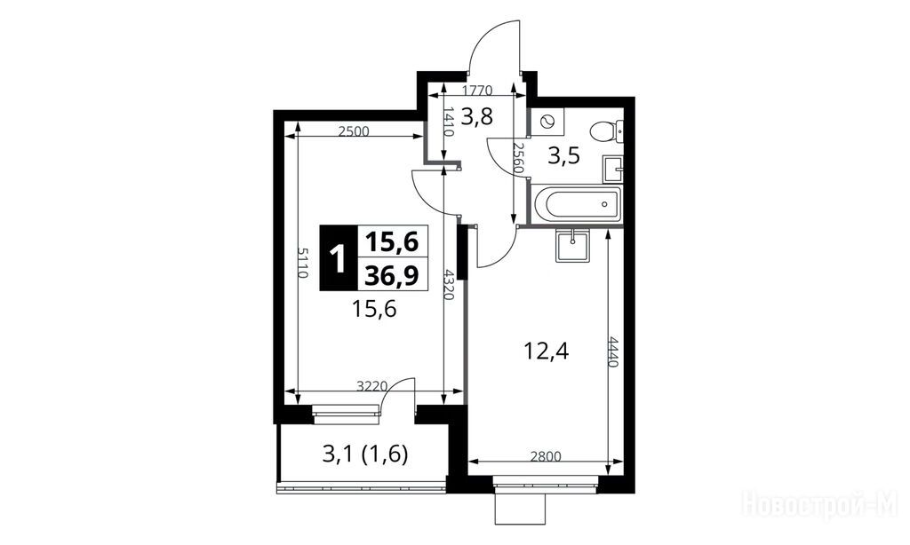
1-комн. квартира, 36.90 м2, 3 этаж
Срок сдачи 1 квартал 2027 года
9 017 733 
10 365 210
244 383 2
обновлено 18 декабря

Описание 1-комн. квартиры

Застройщик
Срок ГК
1 квартал 2027 года
Стадия строительства
монтаж нижних этажей
Тип проекта
Общая площадь
36.90 м2
Жилая площадь
15.60 м2
Площадь кухни
12.40 м2
Этаж
3 / 24
Отделка
нет

Расположение 1-комн. квартиры

Ж/Д-станция
Дом
5
Адрес
мкр. Сапроново, корп. 5, секция 2

Способы покупки

Особенности

Продается однокомнатная квартира в новостройке ЖК «1-й Донской» (Первый Донской) по адресу Московская область, Ленинский городской округ, Горки Ленинские Г/П, Сапроново деревня, мкр. Сапроново, корп. 5. Общая площадь квартиры - 36.9 кв. м. Тип проекта, по которому построен дом — Панельный, компания-застройщик — ДСК-1, ГК ФСК. Стоимость квартиры — 9 017 733 руб. Способы оплаты можно уточнить у продавца. Срок сдачи — 1 квартал 2027. Более подробная информация по телефону.
Инфоцентр новостроек
Инфоцентр новостроек
+7 (499) 705-91-41
Время работы 9:00 — 21:00

Похожие квартиры в ЖК «1-й Донской» (Первом Донском)

2 этаж
из 24 1 квартал 2027
Московская область, Горки Ленинские Г/П
Лебедянская (2029)
20 мин.
5
Корпус
нет
Отделка
2.84 м
Потолки
ЖК «1-й Донской» (Первый Донской)
8 484 343 10 346 760
Россельхозбанк, Примсоцбанк, Банк Санкт-Петербург, Уралсиб, СберБанк, Металлинвестбанк, ДОМ.РФ, Московский Кредитный Банк, Совкомбанк, Абсолют Банк, МТС Банк, Сургутнефтегазбанк, ВТБ
6.00%
Ставка
20.01%
Первый взнос
от 50 868 /мес.
Все варианты
23 этаж
из 24 1 квартал 2027
Московская область, Горки Ленинские Г/П
Лебедянская (2029)
20 мин.
5
Корпус
нет
Отделка
2.84 м
Потолки
ЖК «1-й Донской» (Первый Донской)
8 620 504 10 512 810
Россельхозбанк, Примсоцбанк, Банк Санкт-Петербург, Уралсиб, СберБанк, Металлинвестбанк, ДОМ.РФ, Московский Кредитный Банк, Совкомбанк, Абсолют Банк, МТС Банк, Сургутнефтегазбанк, ВТБ
6.00%
Ставка
20.01%
Первый взнос
от 51 684 /мес.
Все варианты
22 этаж
из 24 1 квартал 2027
Московская область, Горки Ленинские Г/П
Лебедянская (2029)
20 мин.
5
Корпус
нет
Отделка
2.84 м
Потолки
ЖК «1-й Донской» (Первый Донской)
8 632 607 10 527 570
Россельхозбанк, Примсоцбанк, Банк Санкт-Петербург, Уралсиб, СберБанк, Металлинвестбанк, ДОМ.РФ, Московский Кредитный Банк, Совкомбанк, Абсолют Банк, МТС Банк, Сургутнефтегазбанк, ВТБ
6.00%
Ставка
20.01%
Первый взнос
от 51 757 /мес.
Все варианты
2 этаж
из 24 1 квартал 2027
Московская область, Горки Ленинские Г/П
Лебедянская (2029)
20 мин.
5
Корпус
нет
Отделка
2.84 м
Потолки
ЖК «1-й Донской» (Первый Донской)
9 014 522 10 361 520
Россельхозбанк, Примсоцбанк, Банк Санкт-Петербург, Уралсиб, СберБанк, Металлинвестбанк, ДОМ.РФ, Московский Кредитный Банк, Совкомбанк, Абсолют Банк, МТС Банк, Сургутнефтегазбанк, ВТБ
6.00%
Ставка
20.01%
Первый взнос
от 54 047 /мес.
Все варианты
5 этаж
из 24 1 квартал 2027
Московская область, Горки Ленинские Г/П
Лебедянская (2029)
20 мин.
5
Корпус
нет
Отделка
2.84 м
Потолки
ЖК «1-й Донской» (Первый Донской)
9 033 784 10 383 660
Россельхозбанк, Примсоцбанк, Банк Санкт-Петербург, Уралсиб, СберБанк, Металлинвестбанк, ДОМ.РФ, Московский Кредитный Банк, Совкомбанк, Абсолют Банк, МТС Банк, Сургутнефтегазбанк, ВТБ
6.00%
Ставка
20.01%
Первый взнос
от 54 162 /мес.
Все варианты
7 этаж
из 24 1 квартал 2027
Московская область, Горки Ленинские Г/П
Лебедянская (2029)
20 мин.
5
Корпус
нет
Отделка
2.84 м
Потолки
ЖК «1-й Донской» (Первый Донской)
9 062 677 10 416 870
Россельхозбанк, Примсоцбанк, Банк Санкт-Петербург, Уралсиб, СберБанк, Металлинвестбанк, ДОМ.РФ, Московский Кредитный Банк, Совкомбанк, Абсолют Банк, МТС Банк, Сургутнефтегазбанк, ВТБ
6.00%
Ставка
20.01%
Первый взнос
от 54 335 /мес.
Все варианты
11 этаж
из 24 1 квартал 2027
Московская область, Горки Ленинские Г/П
Лебедянская (2029)
20 мин.
5
Корпус
нет
Отделка
2.84 м
Потолки
ЖК «1-й Донской» (Первый Донской)
9 094 780 10 453 770
Россельхозбанк, Примсоцбанк, Банк Санкт-Петербург, Уралсиб, СберБанк, Металлинвестбанк, ДОМ.РФ, Московский Кредитный Банк, Совкомбанк, Абсолют Банк, МТС Банк, Сургутнефтегазбанк, ВТБ
6.00%
Ставка
20.01%
Первый взнос
от 54 528 /мес.
Все варианты
14 этаж
из 24 1 квартал 2027
Московская область, Горки Ленинские Г/П
Лебедянская (2029)
20 мин.
5
Корпус
нет
Отделка
2.84 м
Потолки
ЖК «1-й Донской» (Первый Донской)
9 097 990 10 457 460
Россельхозбанк, Примсоцбанк, Банк Санкт-Петербург, Уралсиб, СберБанк, Металлинвестбанк, ДОМ.РФ, Московский Кредитный Банк, Совкомбанк, Абсолют Банк, МТС Банк, Сургутнефтегазбанк, ВТБ
6.00%
Ставка
20.01%
Первый взнос
от 54 547 /мес.
Все варианты
17 этаж
из 24 1 квартал 2027
Московская область, Горки Ленинские Г/П
Лебедянская (2029)
20 мин.
5
Корпус
нет
Отделка
2.84 м
Потолки
ЖК «1-й Донской» (Первый Донской)
9 126 883 10 490 670
Россельхозбанк, Примсоцбанк, Банк Санкт-Петербург, Уралсиб, СберБанк, Металлинвестбанк, ДОМ.РФ, Московский Кредитный Банк, Совкомбанк, Абсолют Банк, МТС Банк, Сургутнефтегазбанк, ВТБ
6.00%
Ставка
20.01%
Первый взнос
от 54 720 /мес.
Все варианты
20 этаж
из 24 1 квартал 2027
Московская область, Горки Ленинские Г/П
Лебедянская (2029)
20 мин.
5
Корпус
нет
Отделка
2.84 м
Потолки
ЖК «1-й Донской» (Первый Донской)
9 142 934 10 509 120
Россельхозбанк, Примсоцбанк, Банк Санкт-Петербург, Уралсиб, СберБанк, Металлинвестбанк, ДОМ.РФ, Московский Кредитный Банк, Совкомбанк, Абсолют Банк, МТС Банк, Сургутнефтегазбанк, ВТБ
6.00%
Ставка
20.01%
Первый взнос
от 54 817 /мес.
Все варианты
24 этаж
из 24 1 квартал 2027
Московская область, Горки Ленинские Г/П
Лебедянская (2029)
20 мин.
5
Корпус
нет
Отделка
2.84 м
Потолки
ЖК «1-й Донской» (Первый Донской)
9 258 505 10 641 960
Россельхозбанк, Примсоцбанк, Банк Санкт-Петербург, Уралсиб, СберБанк, Металлинвестбанк, ДОМ.РФ, Московский Кредитный Банк, Совкомбанк, Абсолют Банк, МТС Банк, Сургутнефтегазбанк, ВТБ
6.00%
Ставка
20.01%
Первый взнос
от 55 509 /мес.
Все варианты
24 этаж
из 24 1 квартал 2027
Московская область, Горки Ленинские Г/П
Лебедянская (2029)
20 мин.
5
Корпус
нет
Отделка
2.84 м
Потолки
ЖК «1-й Донской» (Первый Донской)
9 271 346 10 656 720
Россельхозбанк, Примсоцбанк, Банк Санкт-Петербург, Уралсиб, СберБанк, Металлинвестбанк, ДОМ.РФ, Московский Кредитный Банк, Совкомбанк, Абсолют Банк, МТС Банк, Сургутнефтегазбанк, ВТБ
6.00%
Ставка
20.01%
Первый взнос
от 55 586 /мес.
Все варианты
Посмотреть все спецпредложения
студия 19,60 м2 6 916 546
Этаж 6/24
МО, ЖК «1-й Донской» (Первый Донской)
Лебедянская (2029)
20 мин.
Строится
студия 19,80 м2 7 013 556
Этаж 14/24
МО, ЖК «1-й Донской» (Первый Донской)
Лебедянская (2029)
20 мин.
Строится
студия 20,90 м2 7 527 031
Этаж 24/24
МО, ЖК «1-й Донской» (Первый Донской)
Лебедянская (2029)
20 мин.
Строится
Этаж 14/24
МО, ЖК «1-й Донской» (Первый Донской)
Лебедянская (2029)
20 мин.
Строится
Посмотреть 122 квартиры в ЖК «1-й Донской» (Первом Донском)
Этаж 24/24
МО, ЖК «1-й Донской» (Первый Донской)
Лебедянская (2029)
20 мин.
Строится
1-комн. квартира 28,30 м2 9 538 062
Этаж 17/24
МО, ЖК «1-й Донской» (Первый Донской)
Лебедянская (2029)
20 мин.
Сдан
1-комн. квартира 30,20 м2 9 463 895
Этаж 19/24
МО, ЖК «1-й Донской» (Первый Донской)
Лебедянская (2029)
20 мин.
Строится
1-комн. квартира 31,10 м2 9 170 053
Этаж 19/24
МО, ЖК «1-й Донской» (Первый Донской)
Лебедянская (2029)
20 мин.
Строится
Посмотреть 285 квартир в ЖК «1-й Донской» (Первом Донском)
2-комн. квартира 43,30 м2 12 859 797
Этаж 22/24
МО, ЖК «1-й Донской» (Первый Донской)
Лебедянская (2029)
20 мин.
Строится
Этаж 9/24
МО, ЖК «1-й Донской» (Первый Донской)
Лебедянская (2029)
20 мин.
Строится
Этаж 13/24
МО, ЖК «1-й Донской» (Первый Донской)
Лебедянская (2029)
20 мин.
Строится
2-комн. квартира 45,10 м2 14 333 637
Этаж 22/24
МО, ЖК «1-й Донской» (Первый Донской)
Лебедянская (2029)
20 мин.
Строится
Посмотреть 177 квартир в ЖК «1-й Донской» (Первом Донском)
3-комн. квартира 61,90 м2 14 574 355
Этаж 10/24
МО, ЖК «1-й Донской» (Первый Донской)
Лебедянская (2029)
20 мин.
Строится
3-комн. квартира 62,10 м2 15 186 990
Этаж 14/24
МО, ЖК «1-й Донской» (Первый Донской)
Лебедянская (2029)
20 мин.
Строится
3-комн. квартира 62,30 м2 14 747 968
Этаж 18/24
МО, ЖК «1-й Донской» (Первый Донской)
Лебедянская (2029)
20 мин.
Строится
3-комн. квартира 63,00 м2 14 929 740
Этаж 22/24
МО, ЖК «1-й Донской» (Первый Донской)
Лебедянская (2029)
20 мин.
Строится
Посмотреть 61 квартира в ЖК «1-й Донской» (Первом Донском)
4-комн. квартира 87,50 м2 16 511 513
Этаж 21/24
МО, ЖК «1-й Донской» (Первый Донской)
Лебедянская (2029)
20 мин.
Строится
4-комн. квартира 87,60 м2 15 293 033
Этаж 2/24
МО, ЖК «1-й Донской» (Первый Донской)
Лебедянская (2029)
20 мин.
Строится
4-комн. квартира 87,80 м2 16 377 158
Этаж 7/24
МО, ЖК «1-й Донской» (Первый Донской)
Лебедянская (2029)
20 мин.
Строится
4-комн. квартира 90,50 м2 18 375 663
Этаж 9/12
МО, ЖК «1-й Донской» (Первый Донской)
Лебедянская (2029)
20 мин.
Сдан
Посмотреть 29 квартир в ЖК «1-й Донской» (Первом Донском)

Скидки и спецпредложения от застройщиков

ЖК «1-й Донской» (Первый Донской) на карте

Выгодные предложения на новостройки

Отзывы о ЖК «1-й Донской» (Первом Донском)

Самый полезный отзыв
С
29 мая 2023
Оценка:
главные особенности - то что сравнительно рядом ж/д станция Калинина Павелецкого плюс ввод рядом с ЖК МДЦ5 и выезд на трассу. а так масштабный проект застройки
Ответить
Полезный отзыв?
Самый новый отзыв
А
08 декабря
Оценка:
До Москвы легко добраться на электричке, автобусная остановка недалеко, а на машине выезд на М-4 Дон шоссе занимает несколько минут. При этом в самом районе нет ощущения трафика и суеты.
Ответить
Полезный отзыв?
Добавьте отзыв, заполнив личные данные, или сначала войдите на сайт, тогда информация будет автоматически взята из личного профиля.
Оценка*