Рейтинг@Mail.ru
Переверните экран
Новостройки Квартиры Ипотека Новостройки Москвы Новостройки Подмосковья Новостройки Новой Москвы Готовые новостройки Новостройки на карте Акции от застройщиков Коммерческие помещения Продавцы и застройщики Панорамы новостроек Видеообзор новостроек Экспертиза новостроек Экология Москвы и Подмосковья Студии 1-комнатные 2-комнатные 3-комнатные Квартиры на карте Ипотечный калькулятор Семейная ипотека Военная ипотека Банки и программы Медиа Новости недвижимости Мнение эксперта Аналитика рынка Покупателю Экспертиза новостроек Эксперты и авторы О проекте Контакты Реклама на сайте Vk Youtube Telegram Дзен Машиноместа Апартаменты #траншевая ипотека #рассрочка IT-ипотека Квартиры со скидками до 40% Видео 360° новостроек Субсидированная застройщиком Rutube Поиск дома в Москве Программа реновации в Москве Новостройки премиум-класса Новостройки бизнес-класса Рассрочка Траншевая ипотека ГАЛС Дома и коттеджи Бизнес-центры Бизнес-центры в Москве Бизнес-центры рядом с метро Строящиеся бизнес-центры Бизнес-центры класса A Бизнес-центры класса B ЛСР
Данная квартира является лидером продаж среди однокомнатных квартир в ЖК «1-й Донской» (Первом Донском) по данным Росреестра
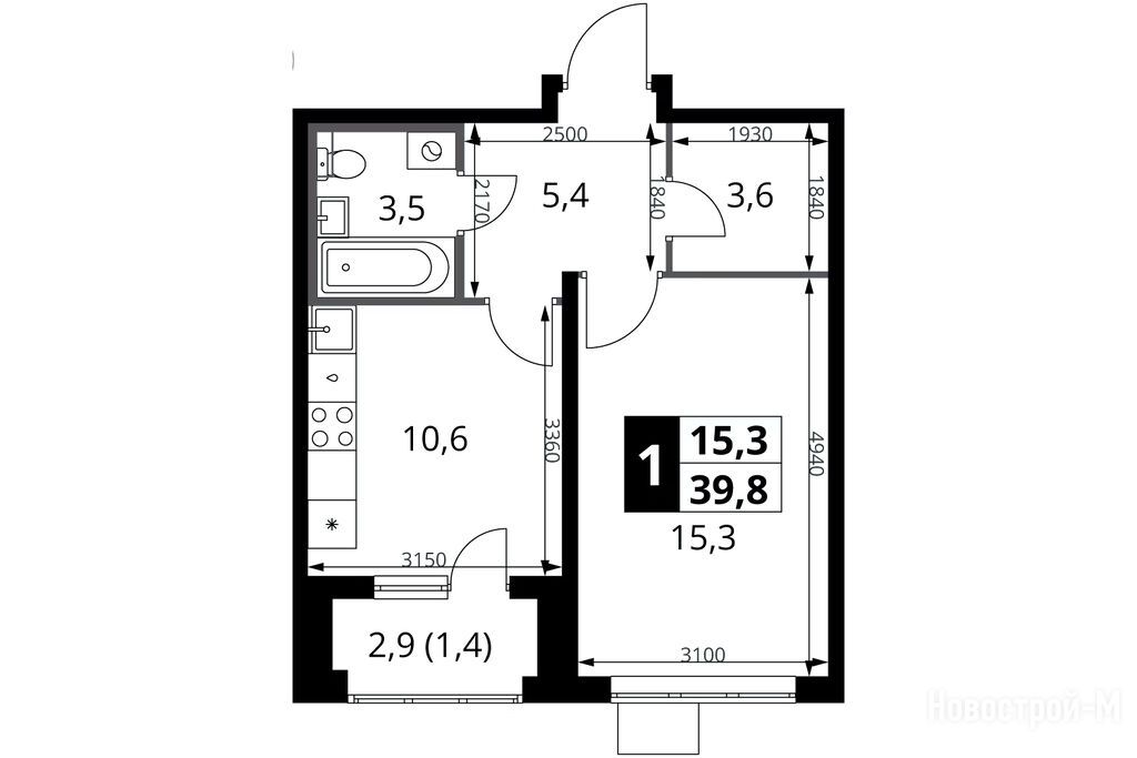
1-комн. квартира, 39.80 м2, 9 этаж
Срок сдачи 4 квартал 2026 года
12 067 360 
303 200 2
обновлено 5 декабря

Описание 1-комн. квартиры

Застройщик
Срок ГК
4 квартал 2026 года
Стадия строительства
отделка фасада и внутренние работы
Тип проекта
Общая площадь
39.80 м2
Жилая площадь
15.30 м2
Площадь кухни
10.60 м2
Этаж
9 / 24

Расположение 1-комн. квартиры

Ж/Д-станция
Дом
4
Адрес
мкр. Сапроново, корп. 4, секция 2

Способы покупки

Особенности

Продается однокомнатная квартира в новостройке ЖК «1-й Донской» (Первый Донской) по адресу Московская область, Ленинский городской округ, Горки Ленинские Г/П, Сапроново деревня, мкр. Сапроново, корп. 4. Общая площадь квартиры - 39.8 кв. м. Тип проекта, по которому построен дом — Панельный, компания-застройщик — ДСК-1, ГК ФСК. Стоимость квартиры — 12 067 360 руб. Способы оплаты можно уточнить у продавца. Срок сдачи — 4 квартал 2026. Более подробная информация по телефону.
Инфоцентр новостроек
Инфоцентр новостроек
+7 (499) 705-91-41
Время работы 9:00 — 21:00
Посмотреть все спецпредложения
студия 19,60 м2 7 771 400
Этаж 6/24
МО, ЖК «1-й Донской» (Первый Донской)
Лебедянская (2029)
20 мин.
Строится
студия 19,80 м2 7 880 400
Этаж 14/24
МО, ЖК «1-й Донской» (Первый Донской)
Лебедянская (2029)
20 мин.
Строится
студия 20,90 м2 8 855 330
Этаж 24/24
МО, ЖК «1-й Донской» (Первый Донской)
Лебедянская (2029)
20 мин.
Строится
студия 21,50 м2 8 698 900
Этаж 16/24
МО, ЖК «1-й Донской» (Первый Донской)
Лебедянская (2029)
20 мин.
Строится
Посмотреть 121 квартира в ЖК «1-й Донской» (Первом Донском)
1-комн. квартира 28,30 м2 9 538 062
Этаж 17/24
МО, ЖК «1-й Донской» (Первый Донской)
Лебедянская (2029)
20 мин.
Сдан
1-комн. квартира 30,20 м2 10 878 040
Этаж 19/24
МО, ЖК «1-й Донской» (Первый Донской)
Лебедянская (2029)
20 мин.
Строится
1-комн. квартира 31,10 м2 10 303 430
Этаж 19/24
МО, ЖК «1-й Донской» (Первый Донской)
Лебедянская (2029)
20 мин.
Строится
1-комн. квартира 32,40 м2 10 520 280
Этаж 17/24
МО, ЖК «1-й Донской» (Первый Донской)
Лебедянская (2029)
20 мин.
Строится
Посмотреть 283 квартиры в ЖК «1-й Донской» (Первом Донском)
2-комн. квартира 43,30 м2 12 859 797
Этаж 22/24
МО, ЖК «1-й Донской» (Первый Донской)
Лебедянская (2029)
20 мин.
Строится
2-комн. квартира 45,00 м2 11 423 970
Этаж 22/24
МО, ЖК «1-й Донской» (Первый Донской)
Лебедянская (2029)
20 мин.
Строится
2-комн. квартира 45,10 м2 14 333 637
Этаж 22/24
МО, ЖК «1-й Донской» (Первый Донской)
Лебедянская (2029)
20 мин.
Строится
2-комн. квартира 45,20 м2 12 667 797
Этаж 23/24
МО, ЖК «1-й Донской» (Первый Донской)
Лебедянская (2029)
20 мин.
Строится
Посмотреть 168 квартир в ЖК «1-й Донской» (Первом Донском)
3-комн. квартира 61,90 м2 14 574 355
Этаж 10/24
МО, ЖК «1-й Донской» (Первый Донской)
Лебедянская (2029)
20 мин.
Строится
3-комн. квартира 62,10 м2 15 186 990
Этаж 14/24
МО, ЖК «1-й Донской» (Первый Донской)
Лебедянская (2029)
20 мин.
Строится
3-комн. квартира 62,30 м2 14 747 968
Этаж 18/24
МО, ЖК «1-й Донской» (Первый Донской)
Лебедянская (2029)
20 мин.
Строится
3-комн. квартира 63,00 м2 14 929 740
Этаж 22/24
МО, ЖК «1-й Донской» (Первый Донской)
Лебедянская (2029)
20 мин.
Строится
Посмотреть 72 квартиры в ЖК «1-й Донской» (Первом Донском)
4-комн. квартира 87,50 м2 16 511 513
Этаж 21/24
МО, ЖК «1-й Донской» (Первый Донской)
Лебедянская (2029)
20 мин.
Строится
4-комн. квартира 87,60 м2 16 225 535
Этаж 2/24
МО, ЖК «1-й Донской» (Первый Донской)
Лебедянская (2029)
20 мин.
Строится
4-комн. квартира 87,80 м2 16 323 688
Этаж 4/24
МО, ЖК «1-й Донской» (Первый Донской)
Лебедянская (2029)
20 мин.
Строится
4-комн. квартира 90,50 м2 18 375 663
Этаж 9/12
МО, ЖК «1-й Донской» (Первый Донской)
Лебедянская (2029)
20 мин.
Сдан
Посмотреть 29 квартир в ЖК «1-й Донской» (Первом Донском)

Скидки и спецпредложения от застройщиков

ЖК «1-й Донской» (Первый Донской) на карте

Выгодные предложения на новостройки

Отзывы о ЖК «1-й Донской» (Первом Донском)

Самый полезный отзыв
С
29 мая 2023
Оценка:
главные особенности - то что сравнительно рядом ж/д станция Калинина Павелецкого плюс ввод рядом с ЖК МДЦ5 и выезд на трассу. а так масштабный проект застройки
Ответить
Полезный отзыв?
Самый новый отзыв
В
04 декабря
Оценка:
Место отличное. И мкада легко на машине доехать, и при этом хороших мест для прогулок много. Пуговичинский пруд, Усадьба Суханово. Такая тихая и зеленая локация в Видном, главное преимущество для спокойной семейной жизни вдали от городского шума. Ещё и школа с садиками свои будут)
Ответить
Полезный отзыв?
Добавьте отзыв, заполнив личные данные, или сначала войдите на сайт, тогда информация будет автоматически взята из личного профиля.
Оценка*