Рейтинг@Mail.ru
Переверните экран
Новостройки Квартиры Ипотека Новостройки Москвы Новостройки Подмосковья Новостройки Новой Москвы Готовые новостройки Новостройки на карте Акции от застройщиков Коммерческие помещения Продавцы и застройщики Панорамы новостроек Видеообзор новостроек Экспертиза новостроек Экология Москвы и Подмосковья Студии 1-комнатные 2-комнатные 3-комнатные Квартиры на карте Ипотечный калькулятор Семейная ипотека Военная ипотека Банки и программы Медиа Новости недвижимости Мнение эксперта Аналитика рынка Покупателю Экспертиза новостроек Эксперты и авторы О проекте Контакты Реклама на сайте Vk Youtube Telegram Дзен Машиноместа Апартаменты #траншевая ипотека #рассрочка IT-ипотека Квартиры со скидками до 40% Видео 360° новостроек Субсидированная застройщиком Rutube Поиск дома в Москве Программа реновации в Москве Новостройки премиум-класса Новостройки бизнес-класса Рассрочка Траншевая ипотека ГАЛС Дома и коттеджи Бизнес-центры Бизнес-центры в Москве Бизнес-центры рядом с метро Строящиеся бизнес-центры Бизнес-центры класса A Бизнес-центры класса B ЛСР
Данная квартира является лидером продаж среди однокомнатных квартир в Жилом квартале PRIDE (Прайд) по данным Росреестра
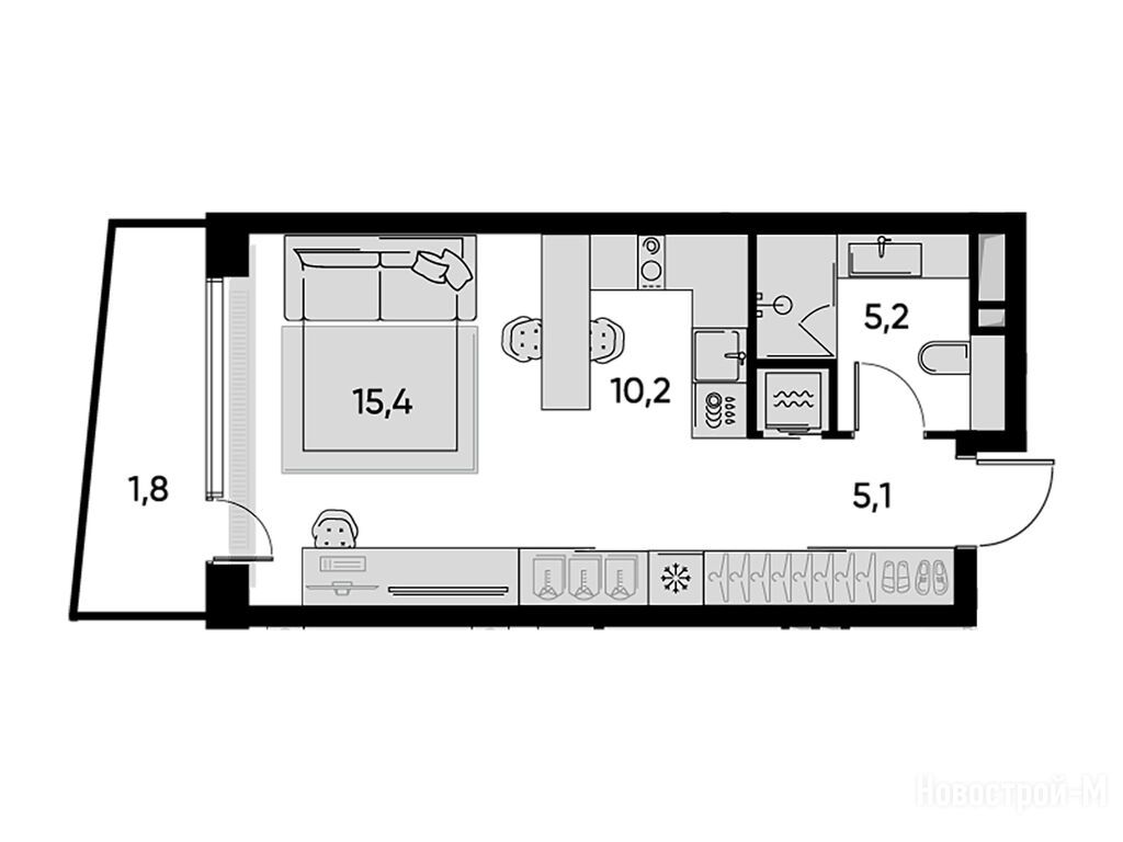
1-комн. квартира, 37.70 м2, 3 этаж
Срок сдачи 4 квартал 2025 года
24 157 708 
640 788 2
обновлено 5 декабря

Описание 1-комн. квартиры

Застройщик
Срок ГК
4 квартал 2025 года
Стадия строительства
отделка фасада
Тип проекта
Общая площадь
37.70 м2
Жилая площадь
15.40 м2
Площадь кухни
10.10 м2
Этаж
3 / 22
Отделка
нет
Грузовой лифт
есть

Расположение 1-комн. квартиры

Локация
Метро
Станция МЦД
Ж/Д-станция
Дом
1
Адрес
ул. Полковая, вл.1, секция 10

Способы покупки

Особенности

Продается однокомнатная квартира в новостройке Жилой квартал PRIDE (Прайд) по адресу Москва, СВАО, Марьина Роща, ул. Полковая, вл.1. Общая площадь квартиры - 37.7 кв. м. Тип проекта, по которому построен дом — Монолит, компания-застройщик — ГК Пионер. Стоимость квартиры — 24 157 708 руб. Способы оплаты можно уточнить у продавца. Срок сдачи — 4 квартал 2025. Более подробная информация по телефону.

Правовые документы

ГК Пионер
ГК Пионер
Сданных 13
|
Строящихся 6
Время работы 09:00 — 21:00
Выбирайте квартиру в Жилой квартал PRIDE (Прайд) по ценам от застройщика

Похожие квартиры в Жилом квартале PRIDE (Прайд)

9 этаж
из 22 4 квартал 2025
Москва, СВАО
Марьина Роща
11 мин.
1
Корпус
нет
Отделка
3.00 м
Потолки
Жилой квартал PRIDE (Прайд)
25 051 876
ВТБ, Альфа-Банк, Сургутнефтегазбанк, Банк Санкт-Петербург, Совкомбанк, Металлинвестбанк, Т-Банк, Россельхозбанк, Промсвязьбанк, СберБанк, Севергазбанк, ДОМ.РФ, Московский Кредитный Банк, Всероссийский банк развития регионов, МТС Банк
6.00%
Ставка
40.10%
Первый взнос
от 150 199 /мес.
Все варианты
Посмотреть все спецпредложения
1-комн. квартира 30,60 м2 23 652 132
Этаж 14/22
Москва, Жилой квартал PRIDE (Прайд)
Марьина Роща
11 мин.
Строится
1-комн. квартира 30,90 м2 22 241 233
Этаж 18/22
Москва, Жилой квартал PRIDE (Прайд)
Марьина Роща
11 мин.
Строится
1-комн. квартира 31,10 м2 22 150 773
Этаж 15/22
Москва, Жилой квартал PRIDE (Прайд)
Марьина Роща
11 мин.
Строится
1-комн. квартира 31,20 м2 23 658 102
Этаж 15/22
Москва, Жилой квартал PRIDE (Прайд)
Марьина Роща
11 мин.
Строится
Посмотреть 12 квартир в Жилом квартале PRIDE (Прайд)
2-комн. квартира 44,20 м2 34 053 139
Этаж 21/22
Москва, Жилой квартал PRIDE (Прайд)
Марьина Роща
11 мин.
Строится
2-комн. квартира 45,40 м2 38 408 809
Этаж 8/9
Москва, Жилой квартал PRIDE (Прайд)
Марьина Роща
11 мин.
Строится
2-комн. квартира 45,80 м2 41 260 396
Этаж 9/9
Москва, Жилой квартал PRIDE (Прайд)
Марьина Роща
11 мин.
Строится
2-комн. квартира 45,90 м2 31 229 672
Этаж 17/22
Москва, Жилой квартал PRIDE (Прайд)
Марьина Роща
11 мин.
Строится
Посмотреть 22 квартиры в Жилом квартале PRIDE (Прайд)
3-комн. квартира 67,70 м2 55 594 258
Этаж 21/22
Москва, Жилой квартал PRIDE (Прайд)
Марьина Роща
11 мин.
Строится
3-комн. квартира 68,60 м2 41 618 338
Этаж 22/22
Москва, Жилой квартал PRIDE (Прайд)
Марьина Роща
11 мин.
Строится
3-комн. квартира 69,10 м2 57 028 645
Этаж 22/22
Москва, Жилой квартал PRIDE (Прайд)
Марьина Роща
11 мин.
Строится
3-комн. квартира 72,50 м2 36 454 566
Этаж 2/11
Москва, Жилой квартал PRIDE (Прайд)
Марьина Роща
11 мин.
Строится
Посмотреть 41 квартира в Жилом квартале PRIDE (Прайд)
4-комн. квартира 99,50 м2 50 366 741
Этаж 3/7
Москва, Жилой квартал PRIDE (Прайд)
Марьина Роща
11 мин.
Строится
4-комн. квартира 109,50 м2 76 086 842
Этаж 8/22
Москва, Жилой квартал PRIDE (Прайд)
Марьина Роща
11 мин.
Строится
4-комн. квартира 112,50 м2 68 522 207
Этаж 7/22
Москва, Жилой квартал PRIDE (Прайд)
Марьина Роща
11 мин.
Строится
4-комн. квартира 112,80 м2 69 423 207
Этаж 9/22
Москва, Жилой квартал PRIDE (Прайд)
Марьина Роща
11 мин.
Строится
Посмотреть 37 квартир в Жилом квартале PRIDE (Прайд)

Скидки и спецпредложения от застройщиков

Жилой квартал PRIDE (Прайд) на карте

Выгодные предложения на новостройки

Отзывы о Жилом квартале PRIDE (Прайд)

Самый полезный отзыв
П
21 мая 2022
Оценка:
Внешний вид фасада
Двор, окружение
Мне нравятся такие проекты от Пионера. Например Варшавская с ее разноэтажностью выглядит опрятно. Здесь визуально что-то похожее будет, видимо. Только не такой размах.
Ответить
Полезный отзыв?
Самый новый отзыв
О
21 августа
Оценка:
Здесь сразу несколько новостроек в Марьиной роще смотрели. Выбрали Прайд, так как нам нужен был жк со школой. А еще хотелось двор побольше,да и по отделке квартиры здесь лучше.
Ответить
Полезный отзыв?
Добавьте отзыв, заполнив личные данные, или сначала войдите на сайт, тогда информация будет автоматически взята из личного профиля.
Оценка*