Рейтинг@Mail.ru
Переверните экран
Новостройки Квартиры Ипотека Новостройки Москвы Новостройки Подмосковья Новостройки Новой Москвы Готовые новостройки Новостройки на карте Акции от застройщиков Коммерческие помещения Продавцы и застройщики Панорамы новостроек Видеообзор новостроек Экспертиза новостроек Экология Москвы и Подмосковья Студии 1-комнатные 2-комнатные 3-комнатные Квартиры на карте Ипотечный калькулятор Семейная ипотека Военная ипотека Банки и программы Медиа Новости недвижимости Мнение эксперта Аналитика рынка Покупателю Экспертиза новостроек Эксперты и авторы О проекте Контакты Реклама на сайте Vk Youtube Telegram Дзен Машиноместа Апартаменты #траншевая ипотека #рассрочка IT-ипотека Квартиры со скидками до 40% Видео 360° новостроек Субсидированная застройщиком Rutube Поиск дома в Москве Программа реновации в Москве Новостройки премиум-класса Новостройки бизнес-класса Рассрочка Траншевая ипотека ГАЛС Дома и коттеджи Бизнес-центры Бизнес-центры в Москве Бизнес-центры рядом с метро Строящиеся бизнес-центры Бизнес-центры класса A Бизнес-центры класса B ЛСР
Данная квартира является лидером продаж среди однокомнатных квартир в Квартал «Серебряный бор» по данным Росреестра
1-комн. квартира, 36.03 м2, 7 этаж
Срок сдачи 2 квартал 2027 года
24 598 041 
682 710 2
обновлено 18 декабря

Описание 1-комн. квартиры

Срок ГК
2 квартал 2027 года
Стадия строительства
монтаж верхних этажей
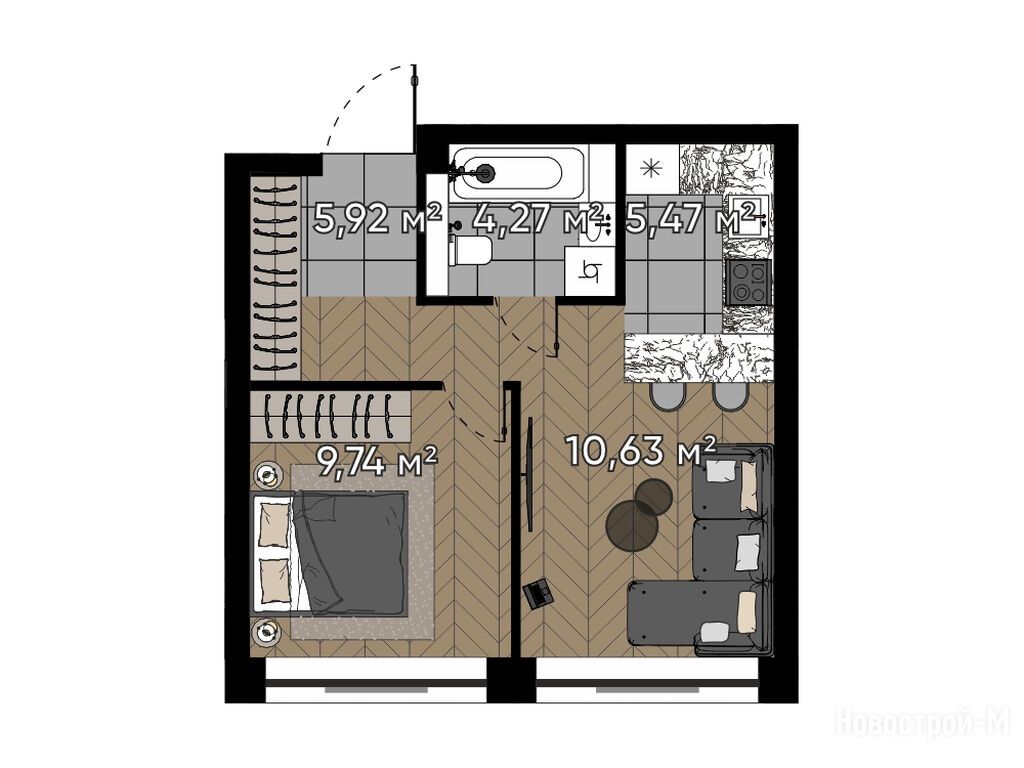
Общая площадь
36.03 м2
Жилая площадь
9.74 м2
Площадь кухни
16.10 м2
Этаж
7 / 20
Отделка
нет

Расположение 1-комн. квартиры

Локация
Станция МЦК
Дом
Gold
Адрес
ул. Берзарина, д. 37, секция 1

Способы покупки

Особенности

Продается однокомнатная квартира в новостройке Квартал «Серебряный бор» по адресу Москва, СЗАО, Хорошево-Мневники, ул. Берзарина, д. 37. Общая площадь квартиры - 36.03 кв. м. Тип проекта, по которому построен дом — Монолитно-кирпичный, компания-застройщик — St Michael. Стоимость квартиры — 24 598 041 руб. Способы оплаты можно уточнить у продавца. Срок сдачи — 2 квартал 2027. Более подробная информация по телефону.
Инфоцентр новостроек
Инфоцентр новостроек
+7 (499) 705-91-41
Время работы 9:00 — 21:00
Посмотреть все спецпредложения
студия 21,28 м2 19 252 064
Этаж 11/25
Москва, Квартал «Серебряный бор»
Серебряный бор (2027)
5 мин.
Строится
Этаж 12/25
Москва, Квартал «Серебряный бор»
Серебряный бор (2027)
5 мин.
Строится
Этаж 13/25
Москва, Квартал «Серебряный бор»
Серебряный бор (2027)
5 мин.
Строится
Посмотреть 6 квартир в Квартал «Серебряный бор»
1-комн. квартира 30,97 м2 22 747 774
Этаж 8/16
Москва, Квартал «Серебряный бор»
Серебряный бор (2027)
5 мин.
Строится
1-комн. квартира 30,98 м2 23 326 090
Этаж 10/20
Москва, Квартал «Серебряный бор»
Серебряный бор (2027)
5 мин.
Строится
1-комн. квартира 36,93 м2 24 303 140
Этаж 3/16
Москва, Квартал «Серебряный бор»
Серебряный бор (2027)
5 мин.
Строится
Этаж 15/20
Москва, Квартал «Серебряный бор»
Серебряный бор (2027)
5 мин.
Строится
Посмотреть 36 квартир в Квартал «Серебряный бор»
2-комн. квартира 49,55 м2 31 088 165
Этаж 15/25
Москва, Квартал «Серебряный бор»
Серебряный бор (2027)
5 мин.
Строится
2-комн. квартира 50,36 м2 30 000 070
Этаж 3/25
Москва, Квартал «Серебряный бор»
Серебряный бор (2027)
5 мин.
Строится
2-комн. квартира 50,75 м2 32 159 586
Этаж 3/25
Москва, Квартал «Серебряный бор»
Серебряный бор (2027)
5 мин.
Строится
2-комн. квартира 52,16 м2 33 598 342
Этаж 10/16
Москва, Квартал «Серебряный бор»
Серебряный бор (2027)
5 мин.
Строится
Посмотреть 23 квартиры в Квартал «Серебряный бор»
3-комн. квартира 80,60 м2 54 270 398
Этаж 21/25
Москва, Квартал «Серебряный бор»
Серебряный бор (2027)
5 мин.
Строится
3-комн. квартира 81,61 м2 54 756 229
Этаж 14/16
Москва, Квартал «Серебряный бор»
Серебряный бор (2027)
5 мин.
Строится
Этаж 23/25
Москва, Квартал «Серебряный бор»
Серебряный бор (2027)
5 мин.
Строится
3-комн. квартира 81,72 м2 50 310 918
Этаж 19/25
Москва, Квартал «Серебряный бор»
Серебряный бор (2027)
5 мин.
Строится
Посмотреть 11 квартир в Квартал «Серебряный бор»
4-комн. квартира 92,82 м2 63 609 546
Этаж 18/20
Москва, Квартал «Серебряный бор»
Серебряный бор (2027)
5 мин.
Строится
4-комн. квартира 94,45 м2 82 923 952
Этаж 24/25
Москва, Квартал «Серебряный бор»
Серебряный бор (2027)
5 мин.
Строится
4-комн. квартира 147,74 м2 117 565 582
Этаж 20/20
Москва, Квартал «Серебряный бор»
Серебряный бор (2027)
5 мин.
Строится
4-комн. квартира 157,37 м2 142 670 684
Этаж 15/16
Москва, Квартал «Серебряный бор»
Серебряный бор (2027)
5 мин.
Строится
5-комн. квартира 139,91 м2 111 334 781
Этаж 25/25
Москва, Квартал «Серебряный бор»
Серебряный бор (2027)
5 мин.
Строится
5-комн. квартира 165,27 м2 148 438 522
Этаж 19/20
Москва, Квартал «Серебряный бор»
Серебряный бор (2027)
5 мин.
Строится

Скидки и спецпредложения от застройщиков

Квартал «Серебряный бор» на карте

Выгодные предложения на новостройки

Отзывы о Квартал «Серебряный бор»

Самый полезный отзыв
Г
29 апреля 2024
Оценка:
Планировки
Способы покупки
Двор, окружение
Расположение
Живу рядом, район хороший - чистый и спокойный, взял квартиру как инвестицию, думаю, что неплохо поднимется в цене к сдаче, большое дело тут в расположении - возле Москвы-реки и в 15 минутах от Москва-Сити
Ответить
Полезный отзыв?
Самый новый отзыв
А
15 декабря
Оценка:
Социальная инфраструктура
Расположение
Расположение у жк выгодное. Если кто с детьми будут переезжать, то после перевода в местные школы разницу в образовании почувствуют, топовые заведения в пределах минут 10-15, если пешком идти. Да и вузы и универы тоже недалеко.
Ответить
Полезный отзыв?
Добавьте отзыв, заполнив личные данные, или сначала войдите на сайт, тогда информация будет автоматически взята из личного профиля.
Оценка*