Рейтинг@Mail.ru
Переверните экран
Новостройки Квартиры Ипотека Новостройки Москвы Новостройки Подмосковья Новостройки Новой Москвы Готовые новостройки Новостройки на карте Акции от застройщиков Коммерческие помещения Продавцы и застройщики Панорамы новостроек Видеообзор новостроек Экспертиза новостроек Экология Москвы и Подмосковья Студии 1-комнатные 2-комнатные 3-комнатные Квартиры на карте Ипотечный калькулятор Семейная ипотека Военная ипотека Банки и программы Медиа Новости недвижимости Мнение эксперта Аналитика рынка Покупателю Экспертиза новостроек Эксперты и авторы О проекте Контакты Реклама на сайте Vk Youtube Telegram Дзен Машиноместа Апартаменты #траншевая ипотека #рассрочка ИТ-ипотека Квартиры со скидками до 40% Видео 360° новостроек Субсидированная застройщиком Rutube Поиск дома в Москве Программа реновации в Москве Новостройки премиум-класса Новостройки бизнес-класса Рассрочка Траншевая ипотека Дома и коттеджи Коттеджные поселки в Новой Москве Готовые коттеджные поселки Строящиеся коттеджные поселки Коттеджные поселки в лесу Коттеджные поселки у водоема Коттеджные поселки в ипотеку Бизнес-центры Коттеджи Ипотека со ставкой 0,1%
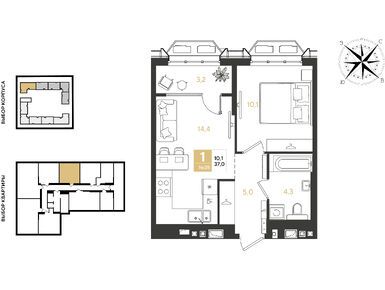
1-комн. квартира, 37.00 м2, 16 этаж
Срок сдачи 2 квартал 2028 года
7 940 200 
214 600 2
обновлено 28 апреля

Описание 1-комн. квартиры

Новостройка
Застройщик
Срок ГК
2 квартал 2028 года
Стадия строительства
Общая площадь
37.00 м2
Жилая площадь
10.10 м2
Площадь кухни
14.40 м2
Высота потолков
2.72
Этаж
16 / 18
Балкон
лоджия
Отделка
предчистовая
Грузовой лифт
есть

Расположение 1-комн. квартиры

Локация
Дом
1.1
Адрес
ул. Западный обход, корп. 1.1, секция 1

Особенности

Продается однокомнатная квартира в новостройке Квартал «Самолет 7» по адресу Краснодарский край, Краснодар, ул. Западный обход, корп. 1.1. Общая площадь квартиры - 37 кв. м. Тип проекта, по которому построен дом — Монолитно-кирпичный, компания-застройщик — DOGMA, ООО СЗ Догма-5. Стоимость квартиры — 7 940 200 руб. Способы оплаты можно уточнить у продавца. Срок сдачи — 2 квартал 2028. Более подробная информация по телефону.
Инфоцентр новостроек
Инфоцентр новостроек
Время работы 9:00 — 21:00
Выбирайте квартиру в Квартал «Самолет 7» по ценам от застройщика

Похожие квартиры в Квартале «Самолет 7»

3 этаж
из 18 2 квартал 2028
Краснодарский край, Краснодарский край
1.1
Корпус
предчистовая
Отделка
2.70 м
Потолки
Квартал «Самолет 7»
7 684 900
6 этаж
из 18 2 квартал 2028
Краснодарский край, Краснодарский край
1.1
Корпус
предчистовая
Отделка
2.70 м
Потолки
Квартал «Самолет 7»
7 744 100
8 этаж
из 18 2 квартал 2028
Краснодарский край, Краснодарский край
1.1
Корпус
предчистовая
Отделка
2.70 м
Потолки
Квартал «Самолет 7»
7 770 000
11 этаж
из 18 2 квартал 2028
Краснодарский край, Краснодарский край
1.1
Корпус
предчистовая
Отделка
2.70 м
Потолки
Квартал «Самолет 7»
7 807 000
студия 21,50 м2 5 418 000
Этаж 16/18
МО, Квартал «Самолет 7»
Строится
студия 21,60 м2 5 292 000
Этаж 4/18
МО, Квартал «Самолет 7»
Строится
студия 22,00 м2 5 332 800
Этаж 2/18
МО, Квартал «Самолет 7»
Строится
студия 24,20 м2 5 795 900
Этаж 4/9
МО, Квартал «Самолет 7»
Строится
Посмотреть 52 квартиры в Квартале «Самолет 7»
1-комн. квартира 35,30 м2 7 705 990
Этаж 8/18
МО, Квартал «Самолет 7»
Строится
1-комн. квартира 37,00 м2 7 684 900
Этаж 3/18 лоджия
МО, Квартал «Самолет 7»
Строится
1-комн. квартира 37,10 м2 7 794 710
Этаж 12/18 лоджия
МО, Квартал «Самолет 7»
Строится
1-комн. квартира 37,20 м2 7 759 920
Этаж 7/18 лоджия
МО, Квартал «Самолет 7»
Строится
Посмотреть 100 квартир в Квартале «Самолет 7»
2-комн. квартира 49,70 м2 9 666 650
Этаж 5/9 лоджия
МО, Квартал «Самолет 7»
Строится
2-комн. квартира 50,30 м2 10 412 100
Этаж 18/18 лоджия
МО, Квартал «Самолет 7»
Строится
2-комн. квартира 50,40 м2 9 611 280
Этаж 2/9 лоджия
МО, Квартал «Самолет 7»
Строится
2-комн. квартира 51,10 м2 9 949 170
Этаж 3/9 лоджия
МО, Квартал «Самолет 7»
Строится
Посмотреть 81 квартира в Квартале «Самолет 7»
3-комн. квартира 69,10 м2 13 004 620
Этаж 4/9
МО, Квартал «Самолет 7»
Строится
3-комн. квартира 72,10 м2 12 985 210
Этаж 8/9
МО, Квартал «Самолет 7»
Строится
3-комн. квартира 73,00 м2 12 775 000
Этаж 2/9
МО, Квартал «Самолет 7»
Строится
3-комн. квартира 75,50 м2 13 642 850
Этаж 2/9
МО, Квартал «Самолет 7»
Строится
Посмотреть 25 квартир в Квартале «Самолет 7»

Скидки и спецпредложения от застройщиков

Квартал «Самолет 7» на карте

Выгодные предложения на новостройки

Отзывы о Квартале «Самолет 7»

Самый полезный отзыв
ЭР
22 декабря 2025
Оценка:
Достоинства
Планировки
Способы покупки
Внешний вид фасада
Двор, окружение
Расположение
Проект расширение и логичное продолжение серии «Самолёт». Впечатлил благоустроенный двор и продуманные общественные зоны. Планировки удобные, много света. Плохо что движение вокруг активное. Но внутри квартала тихо и приятно
Ответить
Самый новый отзыв
Б
23 февраля
Оценка:
Двор без машин - отдельный плюс, не люблю, когда машины стоят под носом. Искал квартиру рядом с нормальной инфраструктурой, чтобы не мотаться по городу. Тут понравилось, что все будет внутри квартала: магазины, зоны отдыха, зеленые аллеи. Планировки удобные, не пришлось долго выбирать
Ответить

Оставить отзыв

Добавьте отзыв, заполнив личные данные, или сначала войдите на сайт, тогда информация будет автоматически взята из личного профиля.
Оценка*