Рейтинг@Mail.ru
Переверните экран
Новостройки Квартиры Ипотека Новостройки Москвы Новостройки Подмосковья Новостройки Новой Москвы Готовые новостройки Новостройки на карте Акции от застройщиков Коммерческие помещения Продавцы и застройщики Панорамы новостроек Видеообзор новостроек Экспертиза новостроек Экология Москвы и Подмосковья Студии 1-комнатные 2-комнатные 3-комнатные Квартиры на карте Ипотечный калькулятор Семейная ипотека Военная ипотека Банки и программы Медиа Новости недвижимости Мнение эксперта Аналитика рынка Покупателю Экспертиза новостроек Эксперты и авторы О проекте Контакты Реклама на сайте Vk Youtube Telegram Дзен Машиноместа Апартаменты #траншевая ипотека #рассрочка IT-ипотека Квартиры со скидками до 40% Видео 360° новостроек Субсидированная застройщиком Rutube Поиск дома в Москве Программа реновации в Москве Новостройки премиум-класса Новостройки бизнес-класса Рассрочка Траншевая ипотека ГАЛС Дома и коттеджи Бизнес-центры Бизнес-центры в Москве Бизнес-центры рядом с метро Строящиеся бизнес-центры Бизнес-центры класса A Бизнес-центры класса B ЛСР
Данное предложение на 18.12.2025 неактуально. Пожалуйста, ознакомьтесь с другими похожими предложениями в Клубный квартал AFI Park «Воронцовский» .
1-комн. квартира, 47.10 м2, 24 этаж
Сдан
27 123 580 
34 773 820
575 872 2
обновлено 13 декабря

Описание 1-комн. квартиры

Срок ГК
Дом сдан
Стадия строительства
выдача ключей + заселение
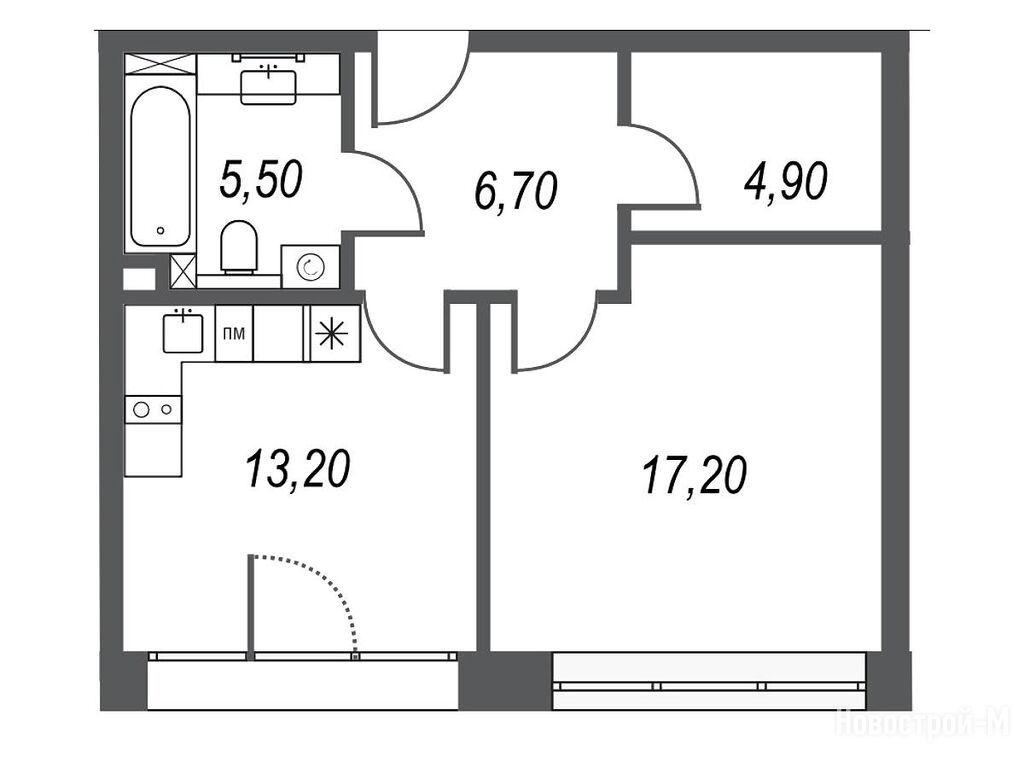
Общая площадь
47.10 м2
Жилая площадь
17.20 м2
Площадь кухни
13.20 м2
Этаж
24 / 25
Отделка
нет
Грузовой лифт
есть

Расположение 1-комн. квартиры

Локация
Станция МЦД
Станция МЦК
Дом
5
Адрес
ул. Академика Челомея, д. 1А, секция 1

Особенности

Продается однокомнатная квартира в новостройке Клубный квартал AFI Park «Воронцовский» по адресу Москва, ЮЗАО, Обручевский, ул. Академика Челомея, д. 1А. Общая площадь квартиры - 47.1 кв. м. Тип проекта, по которому построен дом — Монолитно-кирпичный, компания-застройщик — AFI Development (АФИ Девелопмент), ООО «Специализированный застройщик «Аквамаре Уно». Стоимость квартиры — 27 123 580 руб. Способы оплаты можно уточнить у продавца. Более подробная информация по телефону.

Правовые документы

+7 (499) 705-91-41
Время работы 9:00 — 21:00
Посмотреть все спецпредложения
студия 45,50 м2 26 018 032
Этаж 21/25
Москва, Клубный квартал AFI Park «Воронцовский»
Воронцовская
4 мин.
Сдан
1-комн. квартира 48,10 м2 28 533 044
Этаж 25/25
Москва, Клубный квартал AFI Park «Воронцовский»
Воронцовская
4 мин.
Сдан

Скидки и спецпредложения от застройщиков

Клубный квартал AFI Park «Воронцовский» на карте

Выгодные предложения на новостройки

Отзывы о Клубном квартале AFI Park «Воронцовский»

Самый полезный отзыв
П
28 декабря 2020
Оценка:
На той недели были в офисе продаж, узнали что в афи парк уже началось закрытое бронирование. Решили оформить бронь на двухкомнатную. Квартира не самая дешевая, но проект высокого уровня и важный момент – что комплекс будет расположен в престижном районе, неподалеку от центра города.
Ответить
Полезный отзыв?
Самый новый отзыв
ЮК
01 августа
Оценка:
Транспортная доступность
Планировки
Социальная инфраструктура
Звукоизоляция отличная, соседей не слышно. Есть магазины, кафе. Соседи приятные. Очень рады, что выбрали именно этот комплекс!
Ответить
Полезный отзыв?
Добавьте отзыв, заполнив личные данные, или сначала войдите на сайт, тогда информация будет автоматически взята из личного профиля.
Оценка*