Рейтинг@Mail.ru
Переверните экран
Новостройки Квартиры Ипотека Новостройки Москвы Новостройки Подмосковья Новостройки Новой Москвы Готовые новостройки Новостройки на карте Акции от застройщиков Коммерческие помещения Продавцы и застройщики Панорамы новостроек Видеообзор новостроек Экспертиза новостроек Экология Москвы и Подмосковья Студии 1-комнатные 2-комнатные 3-комнатные Квартиры на карте Ипотечный калькулятор Семейная ипотека Военная ипотека Банки и программы Медиа Новости недвижимости Мнение эксперта Аналитика рынка Покупателю Экспертиза новостроек Эксперты и авторы О проекте Контакты Реклама на сайте Vk Youtube Telegram Дзен Машиноместа Апартаменты #траншевая ипотека #рассрочка ИТ-ипотека Квартиры со скидками до 40% Видео 360° новостроек Субсидированная застройщиком Rutube Поиск дома в Москве Программа реновации в Москве Новостройки премиум-класса Новостройки бизнес-класса Рассрочка Траншевая ипотека Дома и коттеджи Коттеджные поселки в Новой Москве Готовые коттеджные поселки Строящиеся коттеджные поселки Коттеджные поселки в лесу Коттеджные поселки у водоема Коттеджные поселки в ипотеку Бизнес-центры Коттеджи Ипотека со ставкой 0,1%
5-комн. коттедж, 313.23 м2, 2 этажа
Срок сдачи 4 квартал 2028 года
142 787 462 
167 985 249
455 855 2
обновлено 21 апреля

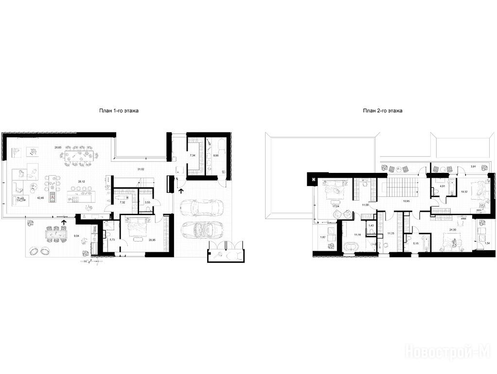
Описание 5-комн. коттеджа

Застройщик
Срок ГК
4 квартал 2028 года
Стадия строительства
котлован/фундамент
Общая площадь
313.23 м2
Электричество
да
Газ
да
Вода
да
Канализация
да
Этажность
2
Отделка
нет

Расположение 5-комн. коттеджа

Метро
Станция МЦД
Дом
6
Адрес
Коттеджный поселок «Мыс», корп. 6

Особенности

Продается многокомнатный коттедж в новостройке Коттеджный поселок «МЫС» по адресу Московская область, Одинцовский район, Жаворонковское С/П, Ликино деревня, Коттеджный поселок «Мыс», корп. 6. Общая площадь коттеджа - 313.23 кв. м. , компания-застройщик — MR Group (МР Групп). Стоимость коттеджа — 142 787 462 руб. Способы оплаты можно уточнить у продавца. Срок сдачи — 4 квартал 2028. Более подробная информация по телефону.
Инфоцентр новостроек
Инфоцентр новостроек
Время работы 9:00 — 21:00
Выбирайте квартиру в Коттеджный поселок «МЫС» по ценам от застройщика
студия 415,70 м2 162 644 704
2 этажа
МО, Коттеджный поселок «МЫС»
Лесной Городок
11 мин.
Строится
5-комн. коттедж 263,37 м2 129 393 681
2 этажа
МО, Коттеджный поселок «МЫС»
Лесной Городок
11 мин.
Строится
5-комн. коттедж 313,23 м2 135 998 201
2 этажа
МО, Коттеджный поселок «МЫС»
Лесной Городок
11 мин.
Строится
Посмотреть 6 коттеджей в Коттеджном поселке «МЫС»

Скидки и спецпредложения от застройщиков

Коттеджный поселок «МЫС» на карте

Выгодные предложения на новостройки

Отзывы о Коттеджном поселке «МЫС»

Оставить отзыв

Добавьте отзыв, заполнив личные данные, или сначала войдите на сайт, тогда информация будет автоматически взята из личного профиля.
Оценка*