Рейтинг@Mail.ru
Переверните экран
Новостройки Квартиры Ипотека Новостройки Москвы Новостройки Подмосковья Новостройки Новой Москвы Готовые новостройки Новостройки на карте Акции от застройщиков Коммерческие помещения Продавцы и застройщики Панорамы новостроек Видеообзор новостроек Экспертиза новостроек Экология Москвы и Подмосковья Студии 1-комнатные 2-комнатные 3-комнатные Квартиры на карте Ипотечный калькулятор Семейная ипотека Военная ипотека Банки и программы Медиа Новости недвижимости Мнение эксперта Аналитика рынка Покупателю Экспертиза новостроек Эксперты и авторы О проекте Контакты Реклама на сайте Vk Youtube Telegram Дзен Машиноместа Апартаменты #траншевая ипотека #рассрочка IT-ипотека Квартиры со скидками до 40% Видео 360° новостроек Субсидированная застройщиком Rutube Поиск дома в Москве Программа реновации в Москве Новостройки премиум-класса Новостройки бизнес-класса Рассрочка Траншевая ипотека ГАЛС Дома и коттеджи Бизнес-центры Бизнес-центры в Москве Бизнес-центры рядом с метро Строящиеся бизнес-центры Бизнес-центры класса A Бизнес-центры класса B ЛСР
Данное предложение на 18.12.2025 неактуально. Пожалуйста, ознакомьтесь с другими похожими предложениями в ЖК «У реки. Эко Видное 2.0» .
2-комн. квартира, 58.20 м2, 16 этаж
Сдан
12 100 856 
13 750 972
207 918 2
обновлено 30 октября

Описание 2-комн. квартиры

Срок ГК
Дом сдан
Стадия строительства
Тип проекта
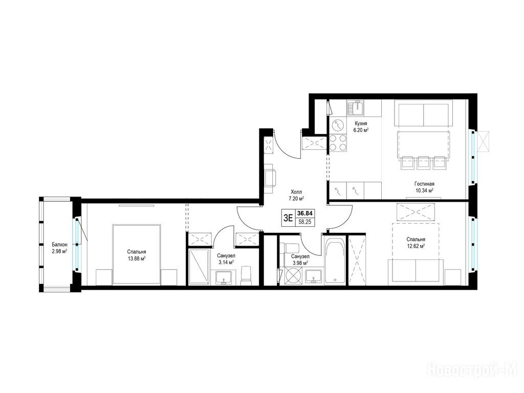
Общая площадь
58.20 м2
Этаж
16 / 17
Отделка
white box

Расположение 2-комн. квартиры

Метро
Ж/Д-станция
Дом
4 («Нестеров»)
Адрес
квартал Центральный, д. 7, секция 9

Особенности

Продается двухкомнатная квартира в новостройке ЖК «У реки. Эко Видное 2.0» по адресу Московская область, Ленинский городской округ, Горки Ленинские Г/П, Сапроново деревня, квартал Центральный, д. 7. Общая площадь квартиры - 58.2 кв. м. Тип проекта, по которому построен дом — Панельный, компания-застройщик — Купелинка Девелопмент. Стоимость квартиры — 12 100 856 руб. Способы оплаты можно уточнить у продавца. Более подробная информация по телефону.
Инфоцентр новостроек
Инфоцентр новостроек
+7 (499) 705-91-41
Время работы 9:00 — 21:00

Похожие квартиры в ЖК «У реки. Эко Видное 2.0»

17 этаж
из 17 Дом сдан
Московская область, Горки Ленинские Г/П
Домодедовская
23 мин.
4 («Нестеров»)
Корпус
white box
Отделка
2.78 м
Потолки
ЖК «У реки. Эко Видное 2.0»
14 108 007 16 404 659
Посмотреть все спецпредложения
студия 18,70 м2 5 471 488
Этаж 8/17
МО, ЖК «У реки. Эко Видное 2.0»
Домодедовская
23 мин.
Сдан
студия 18,80 м2 5 590 979
Этаж 14/17
МО, ЖК «У реки. Эко Видное 2.0»
Домодедовская
23 мин.
Сдан
студия 18,90 м2 5 883 979
Этаж 17/17
МО, ЖК «У реки. Эко Видное 2.0»
Домодедовская
23 мин.
Сдан
Этаж 14/17
МО, ЖК «У реки. Эко Видное 2.0»
Домодедовская
23 мин.
Сдан
Посмотреть 44 квартиры в ЖК «У реки. Эко Видное 2.0»
1-комн. квартира 31,50 м2 7 771 441
Этаж 11/17
МО, ЖК «У реки. Эко Видное 2.0»
Домодедовская
23 мин.
Сдан
Этаж 3/17
МО, ЖК «У реки. Эко Видное 2.0»
Домодедовская
23 мин.
Сдан
1-комн. квартира 31,90 м2 7 974 581
Этаж 16/17
МО, ЖК «У реки. Эко Видное 2.0»
Домодедовская
23 мин.
Сдан
1-комн. квартира 33,00 м2 8 517 633
Этаж 17/17
МО, ЖК «У реки. Эко Видное 2.0»
Домодедовская
23 мин.
Сдан
Посмотреть 63 квартиры в ЖК «У реки. Эко Видное 2.0»
Этаж 3/17
МО, ЖК «У реки. Эко Видное 2.0»
Домодедовская
23 мин.
Сдан
2-комн. квартира 55,40 м2 13 329 187
Этаж 12/17
МО, ЖК «У реки. Эко Видное 2.0»
Домодедовская
23 мин.
Сдан
Этаж 13/17
МО, ЖК «У реки. Эко Видное 2.0»
Домодедовская
23 мин.
Сдан
2-комн. квартира 56,30 м2 13 994 149
Этаж 16/17
МО, ЖК «У реки. Эко Видное 2.0»
Домодедовская
23 мин.
Сдан
Посмотреть 67 квартир в ЖК «У реки. Эко Видное 2.0»
Этаж 7/17
МО, ЖК «У реки. Эко Видное 2.0»
Домодедовская
23 мин.
Сдан
3-комн. квартира 75,70 м2 18 341 250
Этаж 17/17
МО, ЖК «У реки. Эко Видное 2.0»
Домодедовская
23 мин.
Сдан
Этаж 14/17
МО, ЖК «У реки. Эко Видное 2.0»
Домодедовская
23 мин.
Сдан
3-комн. квартира 80,40 м2 18 967 762
Этаж 15/17
МО, ЖК «У реки. Эко Видное 2.0»
Домодедовская
23 мин.
Сдан
Посмотреть 16 квартир в ЖК «У реки. Эко Видное 2.0»

Скидки и спецпредложения от застройщиков

ЖК «У реки. Эко Видное 2.0» на карте

Выгодные предложения на новостройки

Отзывы о ЖК «У реки. Эко Видное 2.0»

Самый полезный отзыв
М
28 ноября 2017
Оценка:
Экология
Планировки
Мне здесь очень понравились планировки, свободные , делай что хочешь, с предчистовой отделкой. О людях думают, это важно. Правда если кто готовое жилье ищет,это не по адресу, мне сказали ориентироваться на декабрь 2018 года как дату передачи квартир дольщикам.
Ответить
Полезный отзыв?
Самый новый отзыв
ЮЧ
08 ноября
Оценка:
Способы покупки
Опция такси в ЖК «У реки. Эко Видное 2.0» - мелочь, но приятно для первой поездки в офис продаж.
Ответить
Полезный отзыв?
Добавьте отзыв, заполнив личные данные, или сначала войдите на сайт, тогда информация будет автоматически взята из личного профиля.
Оценка*