Рейтинг@Mail.ru
Переверните экран
Новостройки Квартиры Ипотека Новостройки Москвы Новостройки Подмосковья Новостройки Новой Москвы Готовые новостройки Новостройки на карте Акции от застройщиков Коммерческие помещения Продавцы и застройщики Панорамы новостроек Видеообзор новостроек Экспертиза новостроек Экология Москвы и Подмосковья Студии 1-комнатные 2-комнатные 3-комнатные Квартиры на карте Ипотечный калькулятор Семейная ипотека Военная ипотека Банки и программы Медиа Новости недвижимости Мнение эксперта Аналитика рынка Покупателю Экспертиза новостроек Эксперты и авторы О проекте Контакты Реклама на сайте Vk Youtube Telegram Дзен Машиноместа Апартаменты #траншевая ипотека #рассрочка ИТ-ипотека Квартиры со скидками до 40% Видео 360° новостроек Субсидированная застройщиком Rutube Поиск дома в Москве Программа реновации в Москве Новостройки премиум-класса Новостройки бизнес-класса Рассрочка Траншевая ипотека Дома и коттеджи Бизнес-центры Бизнес-центры в Москве Бизнес-центры рядом с метро Строящиеся бизнес-центры Бизнес-центры класса A Бизнес-центры класса B Ипотека со ставкой 0,1%
2-комн. квартира, 50.00 м2, 15 этаж
Сдан
10 134 190 
202 684 2
обновлено 29 марта

Описание 2-комн. квартиры

Новостройка
Срок ГК
Дом сдан
Стадия строительства
выдача ключей + заселение
Общая площадь
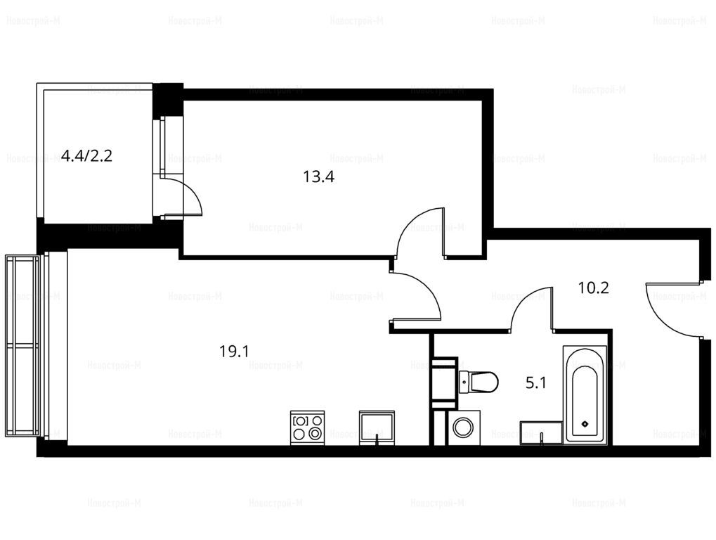
50.00 м2
Жилая площадь
13.40 м2
Площадь кухни
19.10 м2
Этаж
15 / 17
Балкон
лоджия
Отделка
нет
Тип санузла
совмещенный
Мусоропровод
есть

Расположение 2-комн. квартиры

Станция МЦК
Ж/Д-станция
Воронок
10 мин.
Дом
Миллениум (2)
Адрес
ул. Центральная, д.Поз.№2 по ГП, секция 1

Способы покупки

Особенности

Продается двухкомнатная квартира в новостройке ЖК «Солнечный Парк» по адресу Московская область, Щелковский район, Щелково, ул. Центральная, д.Поз.№2 по ГП. Общая площадь квартиры - 50 кв. м. Тип проекта, по которому построен дом — Монолитно-кирпичный, компания-застройщик — ООО «СЗ Олимп-Альянс», Группа компаний «Р-Инвест». Стоимость квартиры — 10 134 190 руб. Способы оплаты можно уточнить у продавца. Более подробная информация по телефону.
Инфоцентр новостроек
Инфоцентр новостроек
+7 (499) 705-91-41
Время работы 9:00 — 21:00

Похожие квартиры в ЖК «Солнечный Парк»

16 этаж
из 17 Дом сдан
Московская область, Щелковский район
Комсомольская
38 мин.
Миллениум (2)
Корпус
нет
Отделка
2.76 м
Потолки
ЖК «Солнечный Парк»
10 162 185
СберБанк, ВТБ, Абсолют Банк
19.70%
Ставка
20.10%
Первый взнос
от 167 305 /мес.
Все варианты
17 этаж
из 17 Дом сдан
Московская область, Щелковский район
Комсомольская
38 мин.
Миллениум (2)
Корпус
нет
Отделка
2.76 м
Потолки
ЖК «Солнечный Парк»
10 170 160
СберБанк, ВТБ, Абсолют Банк
19.70%
Ставка
20.10%
Первый взнос
от 167 437 /мес.
Все варианты
2-комн. квартира 46,40 м2 9 750 148
Этаж 12/17
МО, ЖК «Солнечный Парк»
Комсомольская
38 мин.
Сдан
2-комн. квартира 46,60 м2 9 768 874
Этаж 11/17
МО, ЖК «Солнечный Парк»
Комсомольская
38 мин.
Сдан
Этаж 16/17 лоджия
МО, ЖК «Солнечный Парк»
Комсомольская
38 мин.
Сдан
2-комн. квартира 62,39 м2 13 075 537
Этаж 16/17 лоджия
МО, ЖК «Солнечный Парк»
Комсомольская
38 мин.
Сдан
Посмотреть 44 квартиры в ЖК «Солнечный Парк»
3-комн. квартира 71,38 м2 14 292 300
Этаж 16/17 балкон
МО, ЖК «Солнечный Парк»
Комсомольская
38 мин.
Сдан
3-комн. квартира 77,78 м2 15 768 760
Этаж 16/17 лоджия
МО, ЖК «Солнечный Парк»
Комсомольская
38 мин.
Сдан
Этаж 2/17 лоджия
МО, ЖК «Солнечный Парк»
Комсомольская
38 мин.
Сдан
3-комн. квартира 79,03 м2 16 043 244
Этаж 4/17 лоджия
МО, ЖК «Солнечный Парк»
Комсомольская
38 мин.
Сдан
Посмотреть 28 квартир в ЖК «Солнечный Парк»

Скидки и спецпредложения от застройщиков

ЖК «Солнечный Парк» на карте

Выгодные предложения на новостройки

Отзывы о ЖК «Солнечный Парк»

Самый полезный отзыв
П
07 марта 2023
Оценка:
Достоинства
Транспортная доступность
Двор, окружение
Расположение
Хорошо, когда есть своя закрытая территория. В моем детстве такого не было, был общий двор на все соседние дома. Но на мой взгляд раньше и не такое страшное время было. Сейчас можно будет спокойно отпускать детей погулять на площадки.
Ответить
Самый новый отзыв
МР
16 декабря 2025
Оценка:
Достоинства
Планировки
Готовность
Способы покупки
смотрю ЖК «Солнечный Парк» как готовый вариант без ожиданий на годы. по отзывам нравится, что дома тёплые, территория озеленённая, есть нормальные детские и спортивные площадки, инфраструктура рядом.
Ответить

Оставить отзыв

Добавьте отзыв, заполнив личные данные, или сначала войдите на сайт, тогда информация будет автоматически взята из личного профиля.
Оценка*