Рейтинг@Mail.ru
Переверните экран
Новостройки Квартиры Ипотека Новостройки Москвы Новостройки Подмосковья Новостройки Новой Москвы Готовые новостройки Новостройки на карте Акции от застройщиков Коммерческие помещения Продавцы и застройщики Панорамы новостроек Видеообзор новостроек Экспертиза новостроек Экология Москвы и Подмосковья Студии 1-комнатные 2-комнатные 3-комнатные Квартиры на карте Ипотечный калькулятор Семейная ипотека Военная ипотека Банки и программы Медиа Новости недвижимости Мнение эксперта Аналитика рынка Покупателю Экспертиза новостроек Эксперты и авторы О проекте Контакты Реклама на сайте Vk Youtube Telegram Дзен Машиноместа Апартаменты #траншевая ипотека #рассрочка ИТ-ипотека Квартиры со скидками до 40% Видео 360° новостроек Субсидированная застройщиком Rutube Поиск дома в Москве Программа реновации в Москве Новостройки премиум-класса Новостройки бизнес-класса Рассрочка Траншевая ипотека Дома и коттеджи Бизнес-центры Бизнес-центры в Москве Бизнес-центры рядом с метро Строящиеся бизнес-центры Бизнес-центры класса A Бизнес-центры класса B Ипотека со ставкой 0,1%
Данная квартира является лидером продаж среди двухкомнатных квартир в ЖК «Ситидзен» по данным Росреестра
2-комн. квартира, 71.10 м2, 41 этаж
Срок сдачи 3 квартал 2027 года
30 310 783 
32 592 240
426 312 2
обновлено 29 марта

Описание 2-комн. квартиры

Новостройка
Срок ГК
3 квартал 2027 года
Стадия строительства
котлован/фундамент
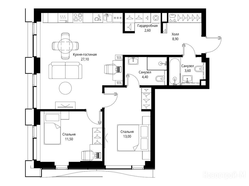
Общая площадь
71.10 м2
Жилая площадь
24.50 м2
Площадь кухни
27.10 м2
Этаж
41 / 48
Отделка
предчистовая

Расположение 2-комн. квартиры

Локация
Метро
Станция МЦД
Дом
6
Адрес
ул. Вишневая, д. 7, секция 1

Особенности

Продается двухкомнатная квартира в новостройке ЖК «Ситидзен» по адресу Москва, СЗАО, Покровское-Стрешнево, ул. Вишневая, д. 7. Общая площадь квартиры - 71.1 кв. м. Тип проекта, по которому построен дом — Монолитно-кирпичный, компания-застройщик — MR Group (МР Групп), ООО СЗ С-Девелопмент. Стоимость квартиры — 30 310 783 руб. Способы оплаты можно уточнить у продавца. Срок сдачи — 3 квартал 2027. Более подробная информация по телефону.
Инфоцентр новостроек
Инфоцентр новостроек
+7 (499) 705-91-41
Время работы 9:00 — 21:00
Этаж 4/17
Москва, ЖК «Ситидзен»
Тушинская
9 мин.
Строится
студия 21,00 м2 13 813 569
Этаж 2/17
Москва, ЖК «Ситидзен»
Тушинская
9 мин.
Строится
студия 23,80 м2 15 812 530
Этаж 4/30
Москва, ЖК «Ситидзен»
Тушинская
9 мин.
Строится
Этаж 4/17
Москва, ЖК «Ситидзен»
Тушинская
9 мин.
Строится
Посмотреть 20 квартир в ЖК «Ситидзен»
Этаж 8/48
Москва, ЖК «Ситидзен»
Тушинская
9 мин.
Строится
Этаж 40/48
Москва, ЖК «Ситидзен»
Тушинская
9 мин.
Строится
Этаж 22/48
Москва, ЖК «Ситидзен»
Тушинская
9 мин.
Строится
Этаж 24/48
Москва, ЖК «Ситидзен»
Тушинская
9 мин.
Строится
Посмотреть 82 квартиры в ЖК «Ситидзен»
Этаж 7/19
Москва, ЖК «Ситидзен»
Тушинская
9 мин.
Строится
Этаж 12/19
Москва, ЖК «Ситидзен»
Тушинская
9 мин.
Строится
Этаж 21/48
Москва, ЖК «Ситидзен»
Тушинская
9 мин.
Строится
Этаж 19/19
Москва, ЖК «Ситидзен»
Тушинская
9 мин.
Строится
Посмотреть 42 квартиры в ЖК «Ситидзен»
Этаж 38/48
Москва, ЖК «Ситидзен»
Тушинская
9 мин.
Строится
3-комн. квартира 73,90 м2 33 270 741
Этаж 31/48
Москва, ЖК «Ситидзен»
Тушинская
9 мин.
Строится
Этаж 27/28
Москва, ЖК «Ситидзен»
Тушинская
9 мин.
Строится
Этаж 39/48
Москва, ЖК «Ситидзен»
Тушинская
9 мин.
Строится
Посмотреть 10 квартир в ЖК «Ситидзен»
Этаж 29/30
Москва, ЖК «Ситидзен»
Тушинская
9 мин.
Строится

Скидки и спецпредложения от застройщиков

ЖК «Ситидзен» на карте

Выгодные предложения на новостройки

Отзывы о ЖК «Ситидзен»

Самый полезный отзыв
М
18 марта 2024
Оценка:
Достоинства
Транспортная доступность
Социальная инфраструктура
Планировки
Способы покупки
Двор, окружение
Расположение
Я очень рада, что приобрела квартиру в этом жилом комплексе до повышения цен! Комплекс расположен очень удобно, все необходимое в шаговой доступности. Потолки высотой 2.85 м придают квартире простора. Отмечу дружелюбный персонал, готовый всегда прийти на помощь.
Ответить
Самый новый отзыв
ПТ
10 марта
Оценка:
Строительство происходит поэтапно, несколько корпусов. Район будет формироваться постепенно.
Ответить

Оставить отзыв

Добавьте отзыв, заполнив личные данные, или сначала войдите на сайт, тогда информация будет автоматически взята из личного профиля.
Оценка*