Рейтинг@Mail.ru
Переверните экран
Новостройки Квартиры Ипотека Новостройки Москвы Новостройки Подмосковья Новостройки Новой Москвы Готовые новостройки Новостройки на карте Акции от застройщиков Коммерческие помещения Продавцы и застройщики Панорамы новостроек Видеообзор новостроек Экспертиза новостроек Экология Москвы и Подмосковья Студии 1-комнатные 2-комнатные 3-комнатные Квартиры на карте Ипотечный калькулятор Семейная ипотека Военная ипотека Банки и программы Медиа Новости недвижимости Мнение эксперта Аналитика рынка Покупателю Экспертиза новостроек Эксперты и авторы О проекте Контакты Реклама на сайте Vk Youtube Telegram Дзен Машиноместа Апартаменты #траншевая ипотека #рассрочка IT-ипотека Квартиры со скидками до 40% Видео 360° новостроек Субсидированная застройщиком Rutube Поиск дома в Москве Программа реновации в Москве Новостройки премиум-класса Новостройки бизнес-класса Рассрочка Траншевая ипотека ГАЛС Дома и коттеджи Бизнес-центры Бизнес-центры в Москве Бизнес-центры рядом с метро Строящиеся бизнес-центры Бизнес-центры класса A Бизнес-центры класса B ЛСР
Данная квартира является лидером продаж среди двухкомнатных квартир в ЖК «Селигер Сити» по данным Росреестра
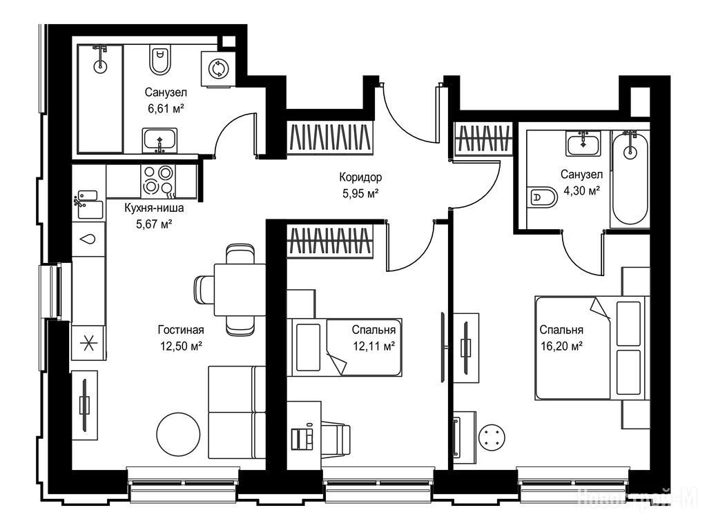
2-комн. квартира, 63.34 м2, 8 этаж
Срок сдачи 3 квартал 2026 года
29 330 030 
35 337 386
463 057 2
обновлено 17 декабря

Описание 2-комн. квартиры

Новостройка
Срок ГК
3 квартал 2026 года
Стадия строительства
Общая площадь
63.34 м2
Этаж
8 / 39
Отделка
нет

Расположение 2-комн. квартиры

Локация
Станция МЦД
Станция МЦК
Дом
Башни Лисицкого
Адрес
жилой комплекс Селигер Сити, Башни Лисицкого, секция Н1

Способы покупки

Особенности

Продается двухкомнатная квартира в новостройке ЖК «Селигер Сити» по адресу Москва, САО, Западное Дегунино, жилой комплекс Селигер Сити, Башни Лисицкого. Общая площадь квартиры - 63.34 кв. м. Тип проекта, по которому построен дом — Монолитно-кирпичный, компания-застройщик — ООО «Рублевский парк», ООО СЗ «СЕЛИГЕР ПАРК». Стоимость квартиры — 29 330 030 руб. Способы оплаты можно уточнить у продавца. Срок сдачи — 3 квартал 2026. Более подробная информация по телефону.
Инфоцентр новостроек
Инфоцентр новостроек
+7 (499) 705-91-41
Время работы 9:00 — 21:00
Посмотреть все спецпредложения
студия 25,47 м2 16 683 665
Этаж 2/21
Москва, ЖК «Селигер Сити»
Селигерская
2 мин.
Строится
студия 25,67 м2 17 517 619
Этаж 21/21
Москва, ЖК «Селигер Сити»
Селигерская
2 мин.
Строится
студия 28,12 м2 17 715 600
Этаж 7/39
Москва, ЖК «Селигер Сити»
Селигерская
2 мин.
Строится
студия 30,89 м2 19 149 329
Этаж 34/39
Москва, ЖК «Селигер Сити»
Селигерская
2 мин.
Строится
Посмотреть 22 квартиры в ЖК «Селигер Сити»
1-комн. квартира 38,05 м2 22 827 337
Этаж 31/39
Москва, ЖК «Селигер Сити»
Селигерская
2 мин.
Строится
1-комн. квартира 38,33 м2 23 102 833
Этаж 31/39
Москва, ЖК «Селигер Сити»
Селигерская
2 мин.
Строится
1-комн. квартира 38,38 м2 23 018 789
Этаж 31/39
Москва, ЖК «Селигер Сити»
Селигерская
2 мин.
Строится
1-комн. квартира 38,77 м2 23 443 831
Этаж 31/39
Москва, ЖК «Селигер Сити»
Селигерская
2 мин.
Строится
Посмотреть 33 квартиры в ЖК «Селигер Сити»
2-комн. квартира 57,70 м2 30 262 323
Этаж 15/15
Москва, ЖК «Селигер Сити»
Селигерская
2 мин.
Строится
2-комн. квартира 58,76 м2 31 223 066
Этаж 26/39
Москва, ЖК «Селигер Сити»
Селигерская
2 мин.
Строится
2-комн. квартира 59,89 м2 32 241 063
Этаж 12/15
Москва, ЖК «Селигер Сити»
Селигерская
2 мин.
Строится
2-комн. квартира 64,03 м2 32 524 679
Этаж 39/39
Москва, ЖК «Селигер Сити»
Селигерская
2 мин.
Строится
Посмотреть 29 квартир в ЖК «Селигер Сити»
3-комн. квартира 89,19 м2 40 824 493
Этаж 4/21
Москва, ЖК «Селигер Сити»
Селигерская
2 мин.
Строится
3-комн. квартира 89,69 м2 37 272 025
Этаж 2/21
Москва, ЖК «Селигер Сити»
Селигерская
2 мин.
Строится
3-комн. квартира 92,34 м2 42 572 434
Этаж 16/21
Москва, ЖК «Селигер Сити»
Селигерская
2 мин.
Строится
3-комн. квартира 92,82 м2 41 460 374
Этаж 3/21
Москва, ЖК «Селигер Сити»
Селигерская
2 мин.
Строится
Посмотреть 8 квартир в ЖК «Селигер Сити»

Скидки и спецпредложения от застройщиков

ЖК «Селигер Сити» на карте

Выгодные предложения на новостройки

Самый полезный отзыв
G
27 ноября 2017
Оценка:
Транспортная доступность
Планировки
Подземный паркинг
Выбрали квартиру в Селигере, так как хорошие планировки в жк, все комнаты правильной формы, никаких странных форм, от которых толку никакого, только площадь съедают, а тут 40 квадратов, или 60,так это полезная площадь
Ответить
Полезный отзыв?
Самый новый отзыв
АВ
08 июля
Оценка:
Двор, окружение
Расположение
При выборе жилья важным критерием было наличие мест для отдыха на природе. На территории есть свой водоем и парковая зона. Здесь можно проводить время с семьей и друзьями, наслаждаясь свежим воздухом. Отличное место
Ответить
Полезный отзыв?
Добавьте отзыв, заполнив личные данные, или сначала войдите на сайт, тогда информация будет автоматически взята из личного профиля.
Оценка*