Рейтинг@Mail.ru
Переверните экран
Новостройки Квартиры Ипотека Новостройки Москвы Новостройки Подмосковья Новостройки Новой Москвы Готовые новостройки Новостройки на карте Акции от застройщиков Коммерческие помещения Продавцы и застройщики Панорамы новостроек Видеообзор новостроек Экспертиза новостроек Экология Москвы и Подмосковья Студии 1-комнатные 2-комнатные 3-комнатные Квартиры на карте Ипотечный калькулятор Семейная ипотека Военная ипотека Банки и программы Медиа Новости недвижимости Мнение эксперта Аналитика рынка Покупателю Экспертиза новостроек Эксперты и авторы О проекте Контакты Реклама на сайте Vk Youtube Telegram Дзен Машиноместа Апартаменты #траншевая ипотека #рассрочка ИТ-ипотека Квартиры со скидками до 40% Видео 360° новостроек Субсидированная застройщиком Rutube Поиск дома в Москве Программа реновации в Москве Новостройки премиум-класса Новостройки бизнес-класса Рассрочка Траншевая ипотека Дома и коттеджи Коттеджные поселки в Новой Москве Готовые коттеджные поселки Строящиеся коттеджные поселки Коттеджные поселки в лесу Коттеджные поселки у водоема Коттеджные поселки в ипотеку Бизнес-центры Коттеджи Ипотека со ставкой 0,1%
Данная квартира является лидером продаж среди трехкомнатных квартир в ЖК «Селигер Сити» по данным Росреестра
3-комн. квартира, 80.71 м2, 35 этаж
Срок сдачи 3 квартал 2026 года
37 479 545 
46 271 043
464 373 2
обновлено 12 мая

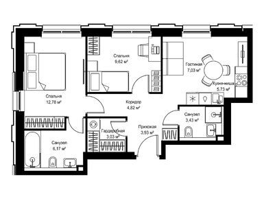
Описание 3-комн. квартиры

Новостройка
Срок ГК
3 квартал 2026 года
Общая площадь
80.71 м2
Этаж
35 / 39
Отделка
предчистовая

Расположение 3-комн. квартиры

Локация
Станция МЦД
Станция МЦК
Дом
Башни Лисицкого
Адрес
жилой комплекс Селигер Сити, Башни Лисицкого, секция Н2

Способы покупки

Особенности

Продается трехкомнатная квартира в новостройке ЖК «Селигер Сити» по адресу Москва, САО, Западное Дегунино, жилой комплекс Селигер Сити, Башни Лисицкого. Общая площадь квартиры - 80.71 кв. м. Тип проекта, по которому построен дом — Монолитно-кирпичный, компания-застройщик — ООО «Рублевский парк», ООО СЗ «СЕЛИГЕР ПАРК». Стоимость квартиры — 37 479 545 руб. Способы оплаты можно уточнить у продавца. Срок сдачи — 3 квартал 2026. Более подробная информация по телефону.
Инфоцентр новостроек
Инфоцентр новостроек
+7 (499) 705-91-41
Время работы 9:00 — 21:00
студия 29,01 м2 16 308 639
Этаж 15/21
Москва, ЖК «Селигер Сити»
Селигерская
2 мин.
Строится
студия 30,89 м2 16 641 679
Этаж 34/39
Москва, ЖК «Селигер Сити»
Селигерская
2 мин.
Строится
студия 31,21 м2 16 556 624
Этаж 22/39
Москва, ЖК «Селигер Сити»
Селигерская
2 мин.
Строится
студия 32,43 м2 16 772 958
Этаж 19/39
Москва, ЖК «Селигер Сити»
Селигерская
2 мин.
Строится
Посмотреть 21 квартира в ЖК «Селигер Сити»
1-комн. квартира 37,11 м2 19 559 197
Этаж 28/39
Москва, ЖК «Селигер Сити»
Селигерская
2 мин.
Строится
1-комн. квартира 38,05 м2 19 604 654
Этаж 31/39
Москва, ЖК «Селигер Сити»
Селигерская
2 мин.
Строится
1-комн. квартира 38,33 м2 19 841 256
Этаж 31/39
Москва, ЖК «Селигер Сити»
Селигерская
2 мин.
Строится
1-комн. квартира 38,38 м2 19 769 077
Этаж 31/39
Москва, ЖК «Селигер Сити»
Селигерская
2 мин.
Строится
Посмотреть 24 квартиры в ЖК «Селигер Сити»
2-комн. квартира 56,54 м2 25 730 676
Этаж 8/39
Москва, ЖК «Селигер Сити»
Селигерская
2 мин.
Строится
2-комн. квартира 57,70 м2 27 710 079
Этаж 15/15
Москва, ЖК «Селигер Сити»
Селигерская
2 мин.
Строится
2-комн. квартира 58,19 м2 27 516 422
Этаж 35/39
Москва, ЖК «Селигер Сити»
Селигерская
2 мин.
Строится
Этаж 19/39
Москва, ЖК «Селигер Сити»
Селигерская
2 мин.
Строится
Посмотреть 33 квартиры в ЖК «Селигер Сити»
3-комн. квартира 89,19 м2 38 903 340
Этаж 4/21
Москва, ЖК «Селигер Сити»
Селигерская
2 мин.
Строится
3-комн. квартира 90,39 м2 38 687 282
Этаж 9/21
Москва, ЖК «Селигер Сити»
Селигерская
2 мин.
Строится
3-комн. квартира 92,34 м2 40 569 025
Этаж 16/21
Москва, ЖК «Селигер Сити»
Селигерская
2 мин.
Строится
3-комн. квартира 92,82 м2 39 509 297
Этаж 3/21
Москва, ЖК «Селигер Сити»
Селигерская
2 мин.
Строится
Посмотреть 8 квартир в ЖК «Селигер Сити»

Скидки и спецпредложения от застройщиков

ЖК «Селигер Сити» на карте

Выгодные предложения на новостройки

Самый полезный отзыв
G
27 ноября 2017
Оценка:
Достоинства
Транспортная доступность
Планировки
Подземный паркинг
Выбрали квартиру в Селигере, так как хорошие планировки в жк, все комнаты правильной формы, никаких странных форм, от которых толку никакого, только площадь съедают, а тут 40 квадратов, или 60,так это полезная площадь
Ответить
Самый новый отзыв
Д
02 апреля
Оценка:
В этом ЖК реально удобно! Паркинг есть, так что с парковкой проблем нет. Инфраструктура тоже на уровне, всё необходимое рядом. Если ищете жильё, рекомендую к рассмотрению!
Ответить

Оставить отзыв

Добавьте отзыв, заполнив личные данные, или сначала войдите на сайт, тогда информация будет автоматически взята из личного профиля.
Оценка*