Рейтинг@Mail.ru
Переверните экран
Новостройки Квартиры Ипотека Новостройки Москвы Новостройки Подмосковья Новостройки Новой Москвы Готовые новостройки Новостройки на карте Акции от застройщиков Коммерческие помещения Продавцы и застройщики Панорамы новостроек Видеообзор новостроек Экспертиза новостроек Экология Москвы и Подмосковья Студии 1-комнатные 2-комнатные 3-комнатные Квартиры на карте Ипотечный калькулятор Семейная ипотека Военная ипотека Банки и программы Медиа Новости недвижимости Мнение эксперта Аналитика рынка Покупателю Экспертиза новостроек Эксперты и авторы О проекте Контакты Реклама на сайте Vk Youtube Telegram Дзен Машиноместа Апартаменты #траншевая ипотека #рассрочка ИТ-ипотека Квартиры со скидками до 40% Видео 360° новостроек Субсидированная застройщиком Rutube Поиск дома в Москве Программа реновации в Москве Новостройки премиум-класса Новостройки бизнес-класса Рассрочка Траншевая ипотека Дома и коттеджи Бизнес-центры Бизнес-центры в Москве Бизнес-центры рядом с метро Строящиеся бизнес-центры Бизнес-центры класса A Бизнес-центры класса B Ипотека со ставкой 0,1%
Данная квартира является лидером продаж среди двухкомнатных квартир в ЖК Riga Hills (Рига Хиллс) по данным Росреестра
2-комн. квартира, 96.43 м2, 8 этаж
Срок сдачи 1 квартал 2026 года
22 204 295 
230 263 2
обновлено 20 марта

Описание 2-комн. квартиры

Новостройка
Застройщик
Срок ГК
1 квартал 2026 года
Стадия строительства
отделка фасада и внутренние работы
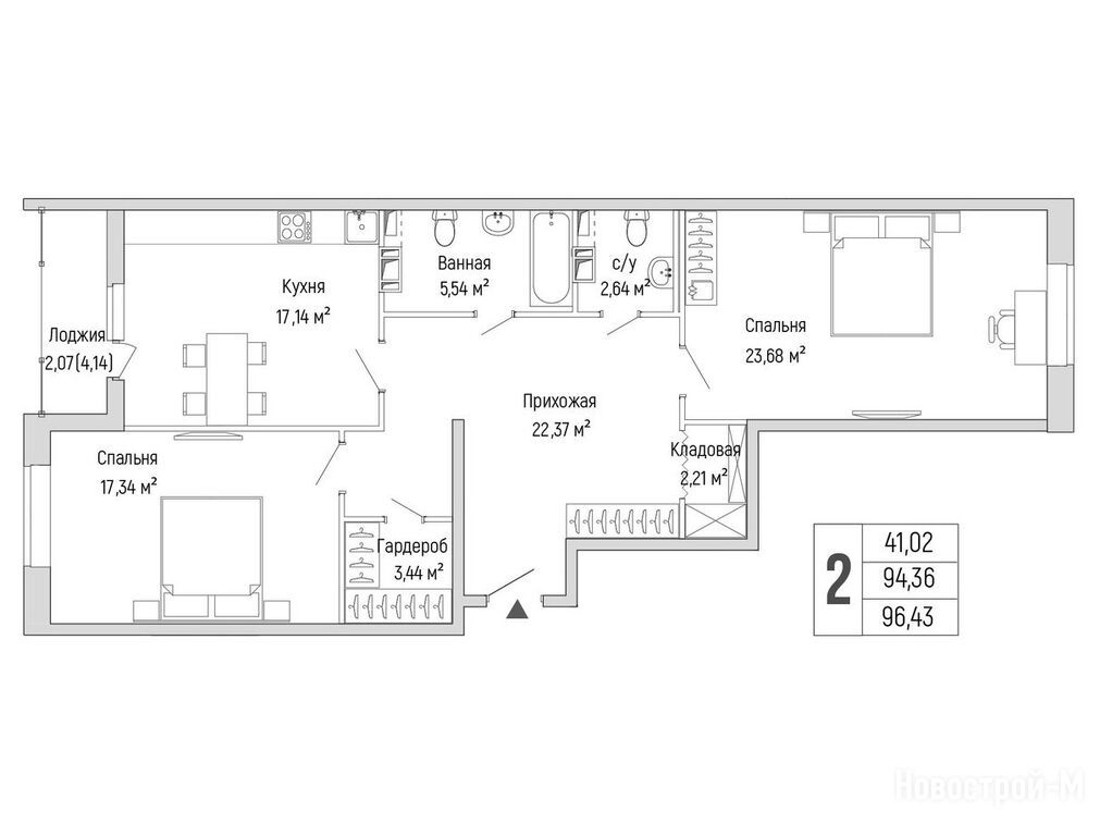
Общая площадь
96.43 м2
Жилая площадь
41.02 м2
Площадь кухни
17.14 м2
Этаж
8 / 9

Расположение 2-комн. квартиры

Станция МЦД
Павшино
20 мин.
Ж/Д-станция
Дом
2
Адрес
ЖК Riga Hills (Рига Хилс), секция 2

Способы покупки

Особенности

Продается двухкомнатная квартира в новостройке ЖК Riga Hills (Рига Хиллс) по адресу Московская область, Красногорск городской округ, Ильинское С/П, Бузланово деревня, ЖК Riga Hills (Рига Хилс). Общая площадь квартиры - 96.43 кв. м. Тип проекта, по которому построен дом — Монолитно-кирпичный, компания-застройщик — ГК UNION (Юнион), ООО СЗ ЖК Яркий. Рига. Стоимость квартиры — 22 204 295 руб. Способы оплаты можно уточнить у продавца. Срок сдачи — 1 квартал 2026. Более подробная информация по телефону.
Инфоцентр новостроек
Инфоцентр новостроек
+7 (499) 705-91-41
Время работы 9:00 — 21:00

Похожие квартиры в ЖК Riga Hills (Рига Хиллс)

3 этаж
из 9 1 квартал 2026
Московская область, Ильинское С/П
Ильинская (2029)
10 мин.
2
Корпус
нет данных
Отделка
3.00 м
Потолки
ЖК Riga Hills (Рига Хиллс)
20 691 465
ВТБ, Альфа-Банк, Уралсиб, Абсолют Банк, Газпромбанк, СберБанк, Металлинвестбанк, Совкомбанк, ДОМ.РФ, АК БАРС, Россельхозбанк
6.00%
Ставка
40.10%
Первый взнос
от 124 056 /мес.
Все варианты
7 этаж
из 9 1 квартал 2026
Московская область, Ильинское С/П
Ильинская (2029)
10 мин.
2
Корпус
нет данных
Отделка
3.00 м
Потолки
ЖК Riga Hills (Рига Хиллс)
21 984 570
ВТБ, Альфа-Банк, Уралсиб, Абсолют Банк, Газпромбанк, СберБанк, Металлинвестбанк, Совкомбанк, ДОМ.РФ, АК БАРС, Россельхозбанк
6.00%
Ставка
40.10%
Первый взнос
от 131 809 /мес.
Все варианты
9 этаж
из 9 1 квартал 2026
Московская область, Ильинское С/П
Ильинская (2029)
10 мин.
2
Корпус
нет данных
Отделка
3.00 м
Потолки
ЖК Riga Hills (Рига Хиллс)
22 204 295
ВТБ, Альфа-Банк, Уралсиб, Абсолют Банк, Газпромбанк, СберБанк, Металлинвестбанк, Совкомбанк, ДОМ.РФ, АК БАРС, Россельхозбанк
6.00%
Ставка
40.10%
Первый взнос
от 133 126 /мес.
Все варианты
студия 31,28 м2 8 365 950
Этаж 6/9
МО, ЖК Riga Hills (Рига Хиллс)
Ильинская (2029)
10 мин.
Строится
студия 31,30 м2 8 365 950
Этаж 6/9
МО, ЖК Riga Hills (Рига Хиллс)
Ильинская (2029)
10 мин.
Строится
студия 31,44 м2 8 397 630
Этаж 6/9
МО, ЖК Riga Hills (Рига Хиллс)
Ильинская (2029)
10 мин.
Строится
студия 31,78 м2 8 408 160
Этаж 5/9
МО, ЖК Riga Hills (Рига Хиллс)
Ильинская (2029)
10 мин.
Строится
Посмотреть 93 квартиры в ЖК Riga Hills (Рига Хиллс)
1-комн. квартира 40,50 м2 12 292 304
Этаж 3/9
МО, ЖК Riga Hills (Рига Хиллс)
Ильинская (2029)
10 мин.
Строится
1-комн. квартира 40,54 м2 12 162 510
Этаж 6/9
МО, ЖК Riga Hills (Рига Хиллс)
Ильинская (2029)
10 мин.
Строится
1-комн. квартира 44,41 м2 16 075 620
Этаж 4/9
МО, ЖК Riga Hills (Рига Хиллс)
Ильинская (2029)
10 мин.
Строится
1-комн. квартира 44,77 м2 11 993 400
Этаж 6/9
МО, ЖК Riga Hills (Рига Хиллс)
Ильинская (2029)
10 мин.
Строится
Посмотреть 120 квартир в ЖК Riga Hills (Рига Хиллс)
2-комн. квартира 74,70 м2 24 155 460
Этаж 4/9
МО, ЖК Riga Hills (Рига Хиллс)
Ильинская (2029)
10 мин.
Строится
2-комн. квартира 75,51 м2 19 013 040
Этаж 9/9
МО, ЖК Riga Hills (Рига Хиллс)
Ильинская (2029)
10 мин.
Строится
2-комн. квартира 75,61 м2 21 628 530
Этаж 5/9
МО, ЖК Riga Hills (Рига Хиллс)
Ильинская (2029)
10 мин.
Строится
2-комн. квартира 75,75 м2 21 120 120
Этаж 8/9
МО, ЖК Riga Hills (Рига Хиллс)
Ильинская (2029)
10 мин.
Строится
Посмотреть 121 квартира в ЖК Riga Hills (Рига Хиллс)
3-комн. квартира 90,74 м2 28 207 165
Этаж 9/9
МО, ЖК Riga Hills (Рига Хиллс)
Ильинская (2029)
10 мин.
Строится
3-комн. квартира 101,19 м2 23 891 460
Этаж 9/9
МО, ЖК Riga Hills (Рига Хиллс)
Ильинская (2029)
10 мин.
Строится
3-комн. квартира 101,37 м2 23 942 035
Этаж 9/9
МО, ЖК Riga Hills (Рига Хиллс)
Ильинская (2029)
10 мин.
Строится
3-комн. квартира 104,15 м2 24 160 590
Этаж 3/9
МО, ЖК Riga Hills (Рига Хиллс)
Ильинская (2029)
10 мин.
Строится
Посмотреть 49 квартир в ЖК Riga Hills (Рига Хиллс)

Скидки и спецпредложения от застройщиков

ЖК Riga Hills (Рига Хиллс) на карте

Выгодные предложения на новостройки

Отзывы о ЖК Riga Hills (Рига Хиллс)

Самый полезный отзыв
А
10 декабря 2023
Оценка:
Достоинства
Планировки
Способы покупки
Внешний вид фасада
Входные группы
Двор, окружение
Расположение
Отличные потолки и окна, 3 метра дают простор хоть какой-то. На то и бизнес класс. Оформляюсь на 7 этаже. Соседи, привет!
Показать все комментарии
Ответить
Самый новый отзыв
АM
18 февраля
Оценка:
Я купила квартиру в данном комплексе, сам комплекс, расположение и планировка отличные. Но работа менеджеров по работе с клиентами просто ужасная, еще до продажи квартиры я пыталась связаться со своим менеджером его зовут Кирилл, и он просто игнорил мои звонки, я хотела сделать покупку и в итоге мне просто приходилось почти уговаривать отдел продаж обратить на меня внимание, просто тотальный игнор, приходилось через брокера искать контакты руководителей, менеджеров действовать через них. Квартиру я все же купила и начался этап постпродажного обслуживания, можно представить, что если тебя игнорят до продажи квартиры, то после ее покупки будет еще хуже. Ну так вот, я уже третий день пишу Кириллу с вопросом сдался ли дом, тк сдача должна была быть в декабре и какой процесс получения ключей - ПОЛНЫЙ ИГНОР, он читает сообщения и просто не отвечает, на звонки не отвечает. Моя оценка связана исключительно с работой отдела продаж компании. Возможно это отдельный человек, который занимается в жизни не тем, что у него получается. Но хотелось бы предупредить, что если Вы покупаете квартиру у данного застройщика, лучше работать с брокером, который хоть как-то будет заинтересованным лицом и добиваться того, чтобы Вам просто отвечали.
Ответить

Оставить отзыв

Добавьте отзыв, заполнив личные данные, или сначала войдите на сайт, тогда информация будет автоматически взята из личного профиля.
Оценка*