Рейтинг@Mail.ru
Переверните экран
Новостройки Квартиры Ипотека Новостройки Москвы Новостройки Подмосковья Новостройки Новой Москвы Готовые новостройки Новостройки на карте Акции от застройщиков Коммерческие помещения Продавцы и застройщики Панорамы новостроек Видеообзор новостроек Экспертиза новостроек Экология Москвы и Подмосковья Студии 1-комнатные 2-комнатные 3-комнатные Квартиры на карте Ипотечный калькулятор Семейная ипотека Военная ипотека Банки и программы Медиа Новости недвижимости Мнение эксперта Аналитика рынка Покупателю Экспертиза новостроек Эксперты и авторы О проекте Контакты Реклама на сайте Vk Youtube Telegram Дзен Машиноместа Апартаменты #траншевая ипотека #рассрочка IT-ипотека Квартиры со скидками до 40% Видео 360° новостроек Субсидированная застройщиком Rutube Поиск дома в Москве Программа реновации в Москве Новостройки премиум-класса Новостройки бизнес-класса Рассрочка Траншевая ипотека ГАЛС Дома и коттеджи Бизнес-центры Бизнес-центры в Москве Бизнес-центры рядом с метро Строящиеся бизнес-центры Бизнес-центры класса A Бизнес-центры класса B ЛСР
Данная квартира является лидером продаж среди однокомнатных квартир в ЖК Riga Hills (Рига Хиллс) по данным Росреестра
1-комн. квартира, 44.96 м2, 3 этаж
Срок сдачи 4 квартал 2025 года
32 056 856 
713 008 2
обновлено 5 декабря

Описание 1-комн. квартиры

Новостройка
Застройщик
Срок ГК
4 квартал 2025 года
Стадия строительства
отделка фасада и внутренние работы
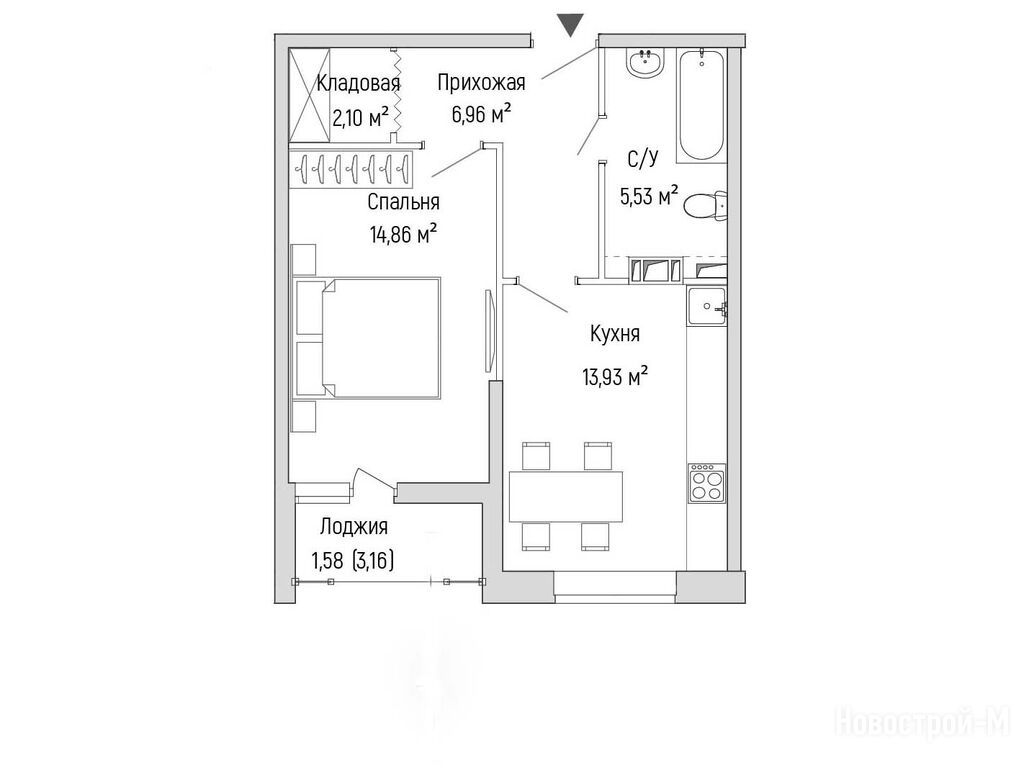
Общая площадь
44.96 м2
Жилая площадь
14.86 м2
Площадь кухни
13.93 м2
Этаж
3 / 9

Расположение 1-комн. квартиры

Станция МЦД
Павшино
20 мин.
Ж/Д-станция
Дом
2
Адрес
ЖК Riga Hills (Рига Хилс), секция 1

Способы покупки

Особенности

Продается однокомнатная квартира в новостройке ЖК Riga Hills (Рига Хиллс) по адресу Московская область, Красногорск городской округ, Ильинское С/П, Бузланово деревня, ЖК Riga Hills (Рига Хилс). Общая площадь квартиры - 44.96 кв. м. Тип проекта, по которому построен дом — Монолитно-кирпичный, компания-застройщик — ГК UNION (Юнион), ООО СЗ ЖК Яркий. Рига. Стоимость квартиры — 32 056 856 руб. Способы оплаты можно уточнить у продавца. Срок сдачи — 4 квартал 2025. Более подробная информация по телефону.
Инфоцентр новостроек
Инфоцентр новостроек
+7 (499) 705-91-41
Время работы 9:00 — 21:00

Похожие квартиры в ЖК Riga Hills (Рига Хиллс)

3 этаж
из 9 4 квартал 2025
Московская область, Ильинское С/П
Ильинская (2029)
10 мин.
2
Корпус
нет данных
Отделка
3.00 м
Потолки
ЖК Riga Hills (Рига Хиллс)
28 272 192
ВТБ, Альфа-Банк, Абсолют Банк, Газпромбанк, СберБанк, Металлинвестбанк, Совкомбанк, ДОМ.РФ, Уралсиб, АК БАРС, Россельхозбанк
6.00%
Ставка
40.10%
Первый взнос
от 169 506 /мес.
Все варианты
4 этаж
из 9 4 квартал 2025
Московская область, Ильинское С/П
Ильинская (2029)
10 мин.
2
Корпус
нет данных
Отделка
3.00 м
Потолки
ЖК Riga Hills (Рига Хиллс)
28 572 960
ВТБ, Альфа-Банк, Абсолют Банк, Газпромбанк, СберБанк, Металлинвестбанк, Совкомбанк, ДОМ.РФ, Уралсиб, АК БАРС, Россельхозбанк
6.00%
Ставка
40.10%
Первый взнос
от 171 309 /мес.
Все варианты
Посмотреть все спецпредложения
студия 31,28 м2 10 952 382
Этаж 5/9
МО, ЖК Riga Hills (Рига Хиллс)
Ильинская (2029)
10 мин.
Строится
студия 31,44 м2 10 164 552
Этаж 8/9
МО, ЖК Riga Hills (Рига Хиллс)
Ильинская (2029)
10 мин.
Строится
студия 31,78 м2 10 583 750
Этаж 8/9
МО, ЖК Riga Hills (Рига Хиллс)
Ильинская (2029)
10 мин.
Строится
студия 31,79 м2 10 277 707
Этаж 9/9
МО, ЖК Riga Hills (Рига Хиллс)
Ильинская (2029)
10 мин.
Строится
Посмотреть 46 квартир в ЖК Riga Hills (Рига Хиллс)
1-комн. квартира 40,26 м2 13 713 622
Этаж 9/9
МО, ЖК Riga Hills (Рига Хиллс)
Ильинская (2029)
10 мин.
Строится
1-комн. квартира 44,77 м2 13 126 136
Этаж 7/9
МО, ЖК Riga Hills (Рига Хиллс)
Ильинская (2029)
10 мин.
Строится
1-комн. квартира 44,96 м2 28 572 960
Этаж 4/9
МО, ЖК Riga Hills (Рига Хиллс)
Ильинская (2029)
10 мин.
Строится
Этаж 6/9
МО, ЖК Riga Hills (Рига Хиллс)
Ильинская (2029)
10 мин.
Строится
Посмотреть 54 квартиры в ЖК Riga Hills (Рига Хиллс)
2-комн. квартира 64,70 м2 14 490 630
Этаж 1/9
МО, ЖК Riga Hills (Рига Хиллс)
Ильинская (2029)
10 мин.
Строится
2-комн. квартира 70,71 м2 14 706 044
Этаж 1/9
МО, ЖК Riga Hills (Рига Хиллс)
Ильинская (2029)
10 мин.
Строится
2-комн. квартира 74,70 м2 20 960 266
Этаж 4/9
МО, ЖК Riga Hills (Рига Хиллс)
Ильинская (2029)
10 мин.
Строится
2-комн. квартира 75,51 м2 16 498 072
Этаж 9/9
МО, ЖК Riga Hills (Рига Хиллс)
Ильинская (2029)
10 мин.
Строится
Посмотреть 75 квартир в ЖК Riga Hills (Рига Хиллс)
3-комн. квартира 90,74 м2 28 209 532
Этаж 9/9
МО, ЖК Riga Hills (Рига Хиллс)
Ильинская (2029)
10 мин.
Строится
3-комн. квартира 91,20 м2 24 036 376
Этаж 1/9
МО, ЖК Riga Hills (Рига Хиллс)
Ильинская (2029)
10 мин.
Строится
Этаж 3/9
МО, ЖК Riga Hills (Рига Хиллс)
Ильинская (2029)
10 мин.
Строится
Этаж 9/9
МО, ЖК Riga Hills (Рига Хиллс)
Ильинская (2029)
10 мин.
Строится
Посмотреть 43 квартиры в ЖК Riga Hills (Рига Хиллс)

Скидки и спецпредложения от застройщиков

ЖК Riga Hills (Рига Хиллс) на карте

Выгодные предложения на новостройки

Отзывы о ЖК Riga Hills (Рига Хиллс)

Самый полезный отзыв
А
10 декабря 2023
Оценка:
Планировки
Способы покупки
Внешний вид фасада
Входные группы
Двор, окружение
Расположение
Отличные потолки и окна, 3 метра дают простор хоть какой-то. На то и бизнес класс. Оформляюсь на 7 этаже. Соседи, привет!
Показать все комментарии
Ответить
Полезный отзыв?
Самый новый отзыв
КС
10 августа
Оценка:
Планировки
Способы покупки
Внешний вид фасада
Двор, окружение
Расположение
Дома перспективные для вложения, бизнес-класс, всего 9 этажей, Новорижское шоссе прямо у дома - доступность в любую точку Москвы. И всё это сопровождается прекрасной экологией вокруг комплекса, место очень зеленое. Тут хвойный лес, река Липка, все для тех, кто любит природу
Ответить
Полезный отзыв?
Добавьте отзыв, заполнив личные данные, или сначала войдите на сайт, тогда информация будет автоматически взята из личного профиля.
Оценка*