Рейтинг@Mail.ru
Переверните экран
Новостройки Квартиры Ипотека Новостройки Москвы Новостройки Подмосковья Новостройки Новой Москвы Готовые новостройки Новостройки на карте Акции от застройщиков Коммерческие помещения Продавцы и застройщики Панорамы новостроек Видеообзор новостроек Экспертиза новостроек Экология Москвы и Подмосковья Студии 1-комнатные 2-комнатные 3-комнатные Квартиры на карте Ипотечный калькулятор Семейная ипотека Военная ипотека Банки и программы Медиа Новости недвижимости Мнение эксперта Аналитика рынка Покупателю Экспертиза новостроек Эксперты и авторы О проекте Контакты Реклама на сайте Vk Youtube Telegram Дзен Машиноместа Апартаменты #траншевая ипотека #рассрочка IT-ипотека Квартиры со скидками до 35% Видео 360° новостроек Субсидированная застройщиком Rutube Поиск дома в Москве Программа реновации в Москве Новостройки премиум-класса Новостройки бизнес-класса Рассрочка Траншевая ипотека Дома и коттеджи Бизнес-центры Бизнес-центры в Москве Бизнес-центры рядом с метро Строящиеся бизнес-центры Бизнес-центры класса A Бизнес-центры класса B
Данная квартира является лидером продаж среди двухкомнатных квартир в ЖК «Новотомилино» по данным Росреестра
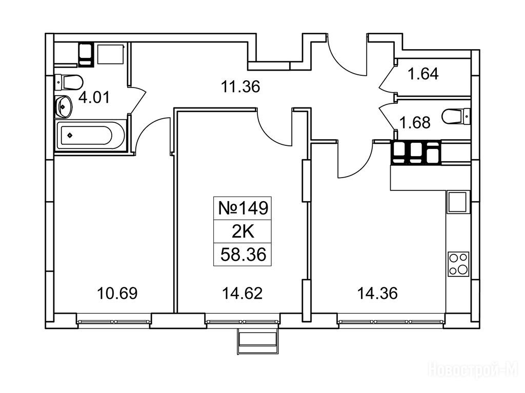
2-комн. квартира, 58.36 м2, 13 этаж
Срок сдачи 4 квартал 2026 года
21 479 421 
368 050 2
обновлено 5 февраля
№147 2E 45.48 №151 1K 38.87 №152 1K 34.87 №148 2E 52.78 №150 1K 35.91 №149 2K 58.36 14.34 13.26 13.54 13.44 10.82 14.15 7.20 5.94 2.53 4.66 3.85 4.78 1.98 15.39 15.10 14.36 14.62 13.75 11.17 4.70 10.69 1.68 7.92 3.88 9.33 1.16 11.36 4.01 3.68 2.61 4.88 1.64 3.85 двор двор

Описание 2-комн. квартиры

Новостройка
Срок ГК
4 квартал 2026 года
Общая площадь
58.36 м2
Жилая площадь
25.31 м2
Площадь кухни
14.36 м2
Этаж
13 / 14
Отделка
чистовая

Расположение 2-комн. квартиры

Метро
Станция МЦД
Панки
25 мин.
Станция МЦК
Дом
5
Адрес
ЖК «Новотомилино», корп. 1-3, 9, секция 2

Способы покупки

Особенности

Продается двухкомнатная квартира в новостройке ЖК «Новотомилино» по адресу Московская область, Люберцы городской округ, Томилино пос., ЖК «Новотомилино», корп. 1-3, 9. Общая площадь квартиры - 58.36 кв. м. Тип проекта, по которому построен дом — Монолитно-кирпичный, компания-застройщик — Группа компаний 3-RED, АО «СЗ«Реалинвест». Стоимость квартиры — 21 479 421 руб. Способы оплаты можно уточнить у продавца. Срок сдачи — 4 квартал 2026. Более подробная информация по телефону.
Инфоцентр новостроек
Инфоцентр новостроек
+7 (499) 705-91-41
Время работы 9:00 — 21:00
Посмотреть все спецпредложения
студия 19,84 м2 8 529 606
Этаж 13/14
МО, ЖК «Новотомилино»
Панки
25 мин.
Строится
студия 20,16 м2 8 444 114
Этаж 12/13
МО, ЖК «Новотомилино»
Панки
25 мин.
Строится
студия 20,92 м2 8 634 916
Этаж 13/13
МО, ЖК «Новотомилино»
Панки
25 мин.
Строится
студия 21,13 м2 9 302 988
Этаж 5/13
МО, ЖК «Новотомилино»
Панки
25 мин.
Строится
Посмотреть 80 квартир в ЖК «Новотомилино»
1-комн. квартира 32,95 м2 13 035 159
Этаж 13/17
МО, ЖК «Новотомилино»
Панки
25 мин.
Строится
1-комн. квартира 33,13 м2 10 619 140
Этаж 13/14
МО, ЖК «Новотомилино»
Панки
25 мин.
Строится
1-комн. квартира 33,15 м2 12 627 000
Этаж 3/17
МО, ЖК «Новотомилино»
Панки
25 мин.
Строится
1-комн. квартира 33,41 м2 13 093 310
Этаж 13/17
МО, ЖК «Новотомилино»
Панки
25 мин.
Строится
Посмотреть 97 квартир в ЖК «Новотомилино»
2-комн. квартира 37,86 м2 11 789 065
Этаж 15/17
МО, ЖК «Новотомилино»
Панки
25 мин.
Строится
2-комн. квартира 39,02 м2 15 442 900
Этаж 13/14
МО, ЖК «Новотомилино»
Панки
25 мин.
Строится
2-комн. квартира 39,67 м2 13 017 414
Этаж 14/14
МО, ЖК «Новотомилино»
Панки
25 мин.
Строится
2-комн. квартира 39,84 м2 13 172 310
Этаж 7/14
МО, ЖК «Новотомилино»
Панки
25 мин.
Строится
Посмотреть 41 квартира в ЖК «Новотомилино»
3-комн. квартира 70,02 м2 24 637 246
Этаж 14/17
МО, ЖК «Новотомилино»
Панки
25 мин.
Строится
3-комн. квартира 70,22 м2 24 330 057
Этаж 3/17
МО, ЖК «Новотомилино»
Панки
25 мин.
Строится
3-комн. квартира 70,45 м2 19 944 274
Этаж 11/13
МО, ЖК «Новотомилино»
Панки
25 мин.
Строится
3-комн. квартира 70,66 м2 20 110 480
Этаж 8/13
МО, ЖК «Новотомилино»
Панки
25 мин.
Строится
Посмотреть 25 квартир в ЖК «Новотомилино»

Скидки и спецпредложения от застройщиков

ЖК «Новотомилино» на карте

Выгодные предложения на новостройки

Отзывы о ЖК «Новотомилино»

Самый полезный отзыв
А
01 марта 2020
Оценка:
Экология
Способы покупки
Расположение
Звонил в офис продаж, сказали, что скоро уже откроют продажи, получили всю необходимую документацию - заключение о соответствии компании и проектной декларации, кажется так называется
Показать все комментарии
Ответить
Полезный отзыв?
Самый новый отзыв
ЕД
30 мая 2025
Оценка:
Транспортная доступность
Внешний вид фасада
Расположение
До станций Томилино и Панки, конечно, не пять минут пешком, но относительно недалеко – вполне можно добираться. И дома симпатичные, глаз радуют! Особенно порадовал уровень ремонта, он явно выше среднего. Сразу видно, что застройщик не экономил на материалах и отделке.
Ответить
Полезный отзыв?
Добавьте отзыв, заполнив личные данные, или сначала войдите на сайт, тогда информация будет автоматически взята из личного профиля.
Оценка*