Рейтинг@Mail.ru
Переверните экран
Новостройки Квартиры Ипотека Новостройки Москвы Новостройки Подмосковья Новостройки Новой Москвы Готовые новостройки Новостройки на карте Акции от застройщиков Коммерческие помещения Продавцы и застройщики Панорамы новостроек Видеообзор новостроек Экспертиза новостроек Экология Москвы и Подмосковья Студии 1-комнатные 2-комнатные 3-комнатные Квартиры на карте Ипотечный калькулятор Семейная ипотека Военная ипотека Банки и программы Медиа Новости недвижимости Мнение эксперта Аналитика рынка Покупателю Экспертиза новостроек Эксперты и авторы О проекте Контакты Реклама на сайте Vk Youtube Telegram Дзен Машиноместа Апартаменты #траншевая ипотека #рассрочка ИТ-ипотека Квартиры со скидками до 40% Видео 360° новостроек Субсидированная застройщиком Rutube Поиск дома в Москве Программа реновации в Москве Новостройки премиум-класса Новостройки бизнес-класса Рассрочка Траншевая ипотека Дома и коттеджи Коттеджные поселки в Новой Москве Готовые коттеджные поселки Строящиеся коттеджные поселки Коттеджные поселки в лесу Коттеджные поселки у водоема Коттеджные поселки в ипотеку Бизнес-центры Коттеджи Ипотека со ставкой 0,1%
2-комн. квартира, 52.78 м2, 14 этаж
Срок сдачи 4 квартал 2026 года
13 172 897 
13 864 628
249 581 2
обновлено 9 апреля
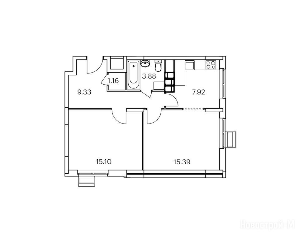
№147 2E 45.48 №151 1K 38.87 №152 1K 34.87 №148 2E 52.78 №150 1K 35.91 №149 2K 58.36 14.34 13.26 13.54 13.44 10.82 14.15 7.20 5.94 2.53 4.66 3.85 4.78 1.98 15.39 15.10 14.36 14.62 13.75 11.17 4.70 10.69 1.68 7.92 3.88 9.33 1.16 11.36 4.01 3.68 2.61 4.88 1.64 3.85 двор двор

Описание 2-комн. квартиры

Новостройка
Срок ГК
4 квартал 2026 года
Общая площадь
52.78 м2
Жилая площадь
30.49 м2
Площадь кухни
7.92 м2
Этаж
14 / 14

Расположение 2-комн. квартиры

Метро
Станция МЦД
Панки
25 мин.
Станция МЦК
Дом
5
Адрес
ЖК «Новотомилино», корп. 1-3, 9, секция 2

Способы покупки

Особенности

Продается двухкомнатная квартира в новостройке ЖК «Новотомилино» по адресу Московская область, Люберцы городской округ, Томилино пос., ЖК «Новотомилино», корп. 1-3, 9. Общая площадь квартиры - 52.78 кв. м. Тип проекта, по которому построен дом — Монолитно-кирпичный, компания-застройщик — Тройка РЭД, АО «СЗ«Реалинвест». Стоимость квартиры — 13 172 897 руб. Способы оплаты можно уточнить у продавца. Срок сдачи — 4 квартал 2026. Более подробная информация по телефону.
Инфоцентр новостроек
Инфоцентр новостроек
+7 (499) 705-91-41
Время работы 9:00 — 21:00

Похожие квартиры в ЖК «Новотомилино»

10 этаж
из 14 4 квартал 2026
Московская область, Люберцы городской округ
Панки
25 мин.
5
Корпус
нет данных
Отделка
2.80 м
Потолки
ЖК «Новотомилино»
13 051 884 13 737 246
СберБанк, ВТБ, ДОМ.РФ, Абсолют Банк, Промсвязьбанк, Россельхозбанк
6.00%
Ставка
20.10%
Первый взнос
от 78 253 /мес.
Все варианты
12 этаж
из 14 4 квартал 2026
Московская область, Люберцы городской округ
Панки
25 мин.
5
Корпус
нет данных
Отделка
2.80 м
Потолки
ЖК «Новотомилино»
13 152 728 13 843 398
СберБанк, ВТБ, ДОМ.РФ, Абсолют Банк, Промсвязьбанк, Россельхозбанк
6.00%
Ставка
20.10%
Первый взнос
от 78 857 /мес.
Все варианты
студия 20,16 м2 5 636 342
Этаж 12/13
МО, ЖК «Новотомилино»
Панки
25 мин.
Строится
студия 20,92 м2 5 911 405
Этаж 13/13
МО, ЖК «Новотомилино»
Панки
25 мин.
Строится
студия 21,13 м2 5 880 989
Этаж 5/13
МО, ЖК «Новотомилино»
Панки
25 мин.
Строится
студия 21,69 м2 5 467 641
Этаж 9/13
МО, ЖК «Новотомилино»
Панки
25 мин.
Строится
Посмотреть 126 квартир в ЖК «Новотомилино»
1-комн. квартира 32,95 м2 8 741 268
Этаж 13/17
МО, ЖК «Новотомилино»
Панки
25 мин.
Строится
1-комн. квартира 33,13 м2 7 302 736
Этаж 13/14
МО, ЖК «Новотомилино»
Панки
25 мин.
Строится
1-комн. квартира 33,41 м2 8 903 513
Этаж 13/17
МО, ЖК «Новотомилино»
Панки
25 мин.
Строится
1-комн. квартира 33,60 м2 8 878 781
Этаж 14/14
МО, ЖК «Новотомилино»
Панки
25 мин.
Строится
Посмотреть 158 квартир в ЖК «Новотомилино»
2-комн. квартира 39,02 м2 8 603 588
Этаж 13/14
МО, ЖК «Новотомилино»
Панки
25 мин.
Строится
2-комн. квартира 39,67 м2 9 280 380
Этаж 14/14
МО, ЖК «Новотомилино»
Панки
25 мин.
Строится
2-комн. квартира 45,48 м2 11 930 548
Этаж 10/14
МО, ЖК «Новотомилино»
Панки
25 мин.
Строится
2-комн. квартира 51,25 м2 11 732 132
Этаж 14/14
МО, ЖК «Новотомилино»
Панки
25 мин.
Строится
Посмотреть 48 квартир в ЖК «Новотомилино»
3-комн. квартира 70,02 м2 17 814 055
Этаж 14/17
МО, ЖК «Новотомилино»
Панки
25 мин.
Строится
3-комн. квартира 70,22 м2 17 455 115
Этаж 3/17
МО, ЖК «Новотомилино»
Панки
25 мин.
Строится
3-комн. квартира 70,73 м2 15 080 021
Этаж 8/13
МО, ЖК «Новотомилино»
Панки
25 мин.
Строится
3-комн. квартира 70,95 м2 13 560 134
Этаж 14/17
МО, ЖК «Новотомилино»
Панки
25 мин.
Строится
Посмотреть 24 квартиры в ЖК «Новотомилино»

Скидки и спецпредложения от застройщиков

ЖК «Новотомилино» на карте

Выгодные предложения на новостройки

Отзывы о ЖК «Новотомилино»

Самый полезный отзыв
А
01 марта 2020
Оценка:
Достоинства
Экология
Способы покупки
Расположение
Звонил в офис продаж, сказали, что скоро уже откроют продажи, получили всю необходимую документацию - заключение о соответствии компании и проектной декларации, кажется так называется
Показать все комментарии
Ответить
Самый новый отзыв
ЕД
30 мая 2025
Оценка:
Достоинства
Транспортная доступность
Внешний вид фасада
Расположение
До станций Томилино и Панки, конечно, не пять минут пешком, но относительно недалеко – вполне можно добираться. И дома симпатичные, глаз радуют! Особенно порадовал уровень ремонта, он явно выше среднего. Сразу видно, что застройщик не экономил на материалах и отделке.
Ответить

Оставить отзыв

Добавьте отзыв, заполнив личные данные, или сначала войдите на сайт, тогда информация будет автоматически взята из личного профиля.
Оценка*