Рейтинг@Mail.ru
Переверните экран
Новостройки Квартиры Ипотека Новостройки Москвы Новостройки Подмосковья Новостройки Новой Москвы Готовые новостройки Новостройки на карте Акции от застройщиков Коммерческие помещения Продавцы и застройщики Панорамы новостроек Видеообзор новостроек Экспертиза новостроек Экология Москвы и Подмосковья Студии 1-комнатные 2-комнатные 3-комнатные Квартиры на карте Ипотечный калькулятор Семейная ипотека Военная ипотека Банки и программы Медиа Новости недвижимости Мнение эксперта Аналитика рынка Покупателю Экспертиза новостроек Эксперты и авторы О проекте Контакты Реклама на сайте Vk Youtube Telegram Дзен Машиноместа Апартаменты #траншевая ипотека #рассрочка IT-ипотека Квартиры со скидками до 40% Видео 360° новостроек Субсидированная застройщиком Rutube Поиск дома в Москве Программа реновации в Москве Новостройки премиум-класса Новостройки бизнес-класса Рассрочка Траншевая ипотека Дома и коттеджи Бизнес-центры Бизнес-центры в Москве Бизнес-центры рядом с метро Строящиеся бизнес-центры Бизнес-центры класса A Бизнес-центры класса B
Данная квартира является лидером продаж среди двухкомнатных квартир в ЖК «Новый Зеленоград» по данным Росреестра
2-комн. квартира, 50.90 м2, 17 этаж
Сдан
14 731 421 
289 419 2
обновлено 3 февраля

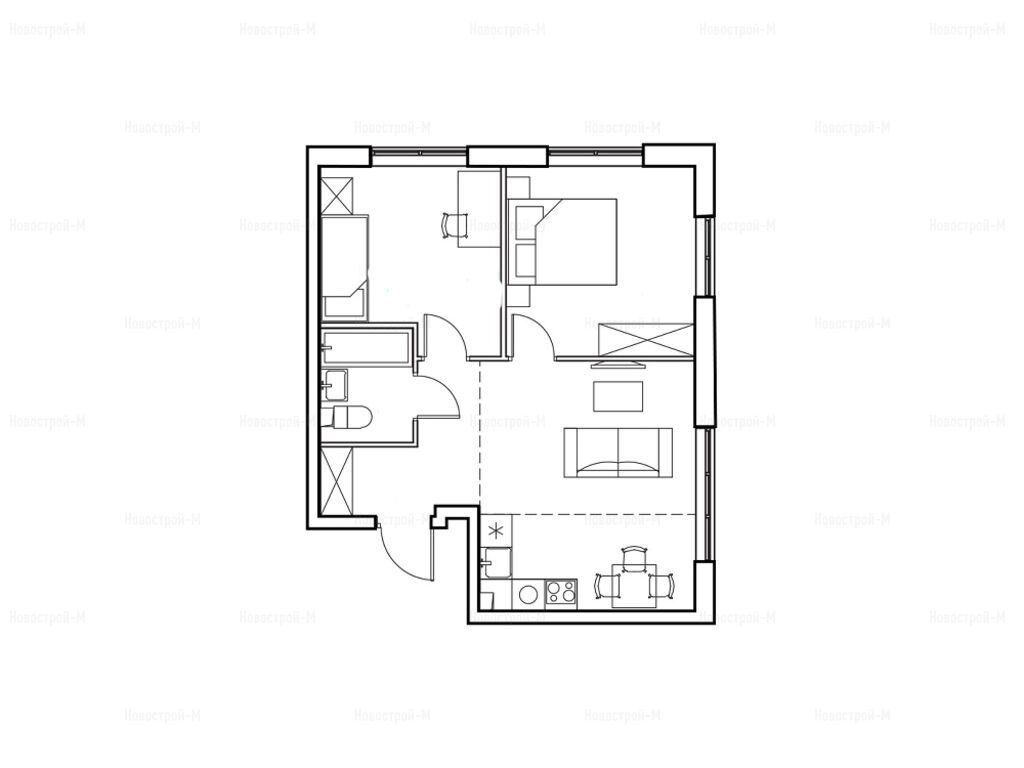
Описание 2-комн. квартиры

Срок ГК
Дом сдан
Стадия строительства
сдан ГК
Общая площадь
50.90 м2
Жилая площадь
34.50 м2
Площадь кухни
7.20 м2
Этаж
17 / 17
Отделка
чистовая

Расположение 2-комн. квартиры

Метро
Станция МЦД
Станция МЦК
Ж/Д-станция
Крюково
19 мин.
Дом
3
Адрес
мкр. Кутузовский, д.3, секция 2

Способы покупки

Особенности

Продается двухкомнатная квартира в новостройке ЖК «Новый Зеленоград» по адресу Московская область, Солнечногорский район, Кутузовское С/П, Рузино дер., мкр. Кутузовский, д.3. Общая площадь квартиры - 50.9 кв. м. Тип проекта, по которому построен дом — Монолитно-кирпичный, компания-застройщик — ООО СЗ «Кутузовское-1». Стоимость квартиры — 14 731 421 руб. Способы оплаты можно уточнить у продавца. Более подробная информация по телефону.
Инфоцентр новостроек
Инфоцентр новостроек
+7 (499) 705-91-41
Время работы 9:00 — 21:00

Похожие квартиры в ЖК «Новый Зеленоград»

12 этаж
из 17 Дом сдан
Московская область, Кутузовское С/П
Зеленоград- Крюково
20 мин.
3
Корпус
чистовая
Отделка
2.80 м
Потолки
ЖК «Новый Зеленоград»
14 219 734
Московский Кредитный Банк, ВТБ, Альфа-Банк, Абсолют Банк, Азиатско-Тихоокеанский Банк, Совкомбанк, Банк Санкт-Петербург, Металлинвестбанк, ДОМ.РФ, Т-Банк, Уралсиб
6.00%
Ставка
50.01%
Первый взнос
от 85 254 /мес.
Все варианты
Посмотреть все спецпредложения
студия 23,50 м2 6 015 229
Этаж 16/17
МО, ЖК «Новый Зеленоград»
Зеленоград- Крюково
20 мин.
Сдан
студия 23,60 м2 5 647 975
Этаж 17/17
МО, ЖК «Новый Зеленоград»
Зеленоград- Крюково
20 мин.
Сдан
студия 23,70 м2 5 727 112
Этаж 17/17
МО, ЖК «Новый Зеленоград»
Зеленоград- Крюково
20 мин.
Сдан
студия 25,80 м2 5 978 790
Этаж 17/17
МО, ЖК «Новый Зеленоград»
Зеленоград- Крюково
20 мин.
Сдан
Посмотреть 24 квартиры в ЖК «Новый Зеленоград»
1-комн. квартира 37,80 м2 9 225 407
Этаж 13/17
МО, ЖК «Новый Зеленоград»
Зеленоград- Крюково
20 мин.
Сдан
1-комн. квартира 38,00 м2 8 485 117
Этаж 17/17
МО, ЖК «Новый Зеленоград»
Зеленоград- Крюково
20 мин.
Сдан
1-комн. квартира 38,20 м2 9 073 252
Этаж 16/17
МО, ЖК «Новый Зеленоград»
Зеленоград- Крюково
20 мин.
Сдан
1-комн. квартира 41,40 м2 9 727 072
Этаж 13/17
МО, ЖК «Новый Зеленоград»
Зеленоград- Крюково
20 мин.
Сдан
Посмотреть 50 квартир в ЖК «Новый Зеленоград»
2-комн. квартира 50,90 м2 11 458 690
Этаж 2/17
МО, ЖК «Новый Зеленоград»
Зеленоград- Крюково
20 мин.
Строится
2-комн. квартира 59,90 м2 13 960 833
Этаж 14/17
МО, ЖК «Новый Зеленоград»
Зеленоград- Крюково
20 мин.
Строится
Посмотреть 7 квартир в ЖК «Новый Зеленоград»

Скидки и спецпредложения от застройщиков

ЖК «Новый Зеленоград» на карте

Выгодные предложения на новостройки

Отзывы о ЖК «Новый Зеленоград»

Самый полезный отзыв
П
24 сентября 2019
Оценка:
Экология
Планировки
Способы покупки
Внешний вид фасада
Скорость строительства
До станции Крюково 3.5 км. Добираться не очень удобно. Конечно, инфраструктурой постепенно будет обрастать это понятно. Жаль,что не так быстро, как хотелось, но главное, чтоб все обещанное появилось-таки. А пока вовсю пользуемся благами первопоселенцев))
Ответить
Полезный отзыв?
Самый новый отзыв
Д
15 января
Оценка:
Переехали с сыном из старого фонда. Первое, что заметили - тишина и воздух совсем другой. Здесь по-другому ощущается день, нет постоянного напряжения. Сын стал чаще гулять, появились друзья по соседству. Я ценю, что можно спокойно выйти вечером
Ответить
Полезный отзыв?
Добавьте отзыв, заполнив личные данные, или сначала войдите на сайт, тогда информация будет автоматически взята из личного профиля.
Оценка*