Рейтинг@Mail.ru
Переверните экран
Новостройки Квартиры Ипотека Новостройки Москвы Новостройки Подмосковья Новостройки Новой Москвы Готовые новостройки Новостройки на карте Акции от застройщиков Коммерческие помещения Продавцы и застройщики Панорамы новостроек Видеообзор новостроек Экспертиза новостроек Экология Москвы и Подмосковья Студии 1-комнатные 2-комнатные 3-комнатные Квартиры на карте Ипотечный калькулятор Семейная ипотека Военная ипотека Банки и программы Медиа Новости недвижимости Мнение эксперта Аналитика рынка Покупателю Экспертиза новостроек Эксперты и авторы О проекте Контакты Реклама на сайте Vk Youtube Telegram Дзен Машиноместа Апартаменты #траншевая ипотека #рассрочка IT-ипотека Квартиры со скидками до 40% Видео 360° новостроек Субсидированная застройщиком Rutube Поиск дома в Москве Программа реновации в Москве Новостройки премиум-класса Новостройки бизнес-класса Рассрочка Траншевая ипотека Дома и коттеджи Бизнес-центры Бизнес-центры в Москве Бизнес-центры рядом с метро Строящиеся бизнес-центры Бизнес-центры класса A Бизнес-центры класса B
Данная квартира является лидером продаж среди двухкомнатных квартир в ЖК «Идеал» по данным Росреестра
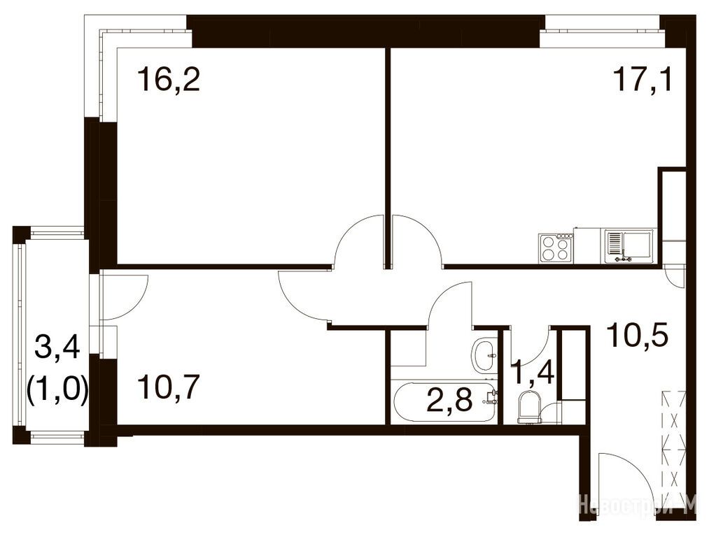
2-комн. квартира, 59.70 м2, 10 этаж
Срок сдачи 1 квартал 2026 года
13 289 220 
222 600 2
обновлено 2 февраля

Описание 2-комн. квартиры

Новостройка
Застройщик
Срок ГК
1 квартал 2026 года
Общая площадь
59.70 м2
Этаж
10 / 17
Отделка
чистовая
Грузовой лифт
есть

Расположение 2-комн. квартиры

Метро
Ж/Д-станция
Дом
1
Адрес
ул. Проектная, д. 9А, стр. 1, секция 6

Способы покупки

Особенности

Продается двухкомнатная квартира в новостройке ЖК «Идеал» по адресу Московская область, Балашиха городской округ, Балашиха, ул. Проектная, д. 9А, стр. 1. Общая площадь квартиры - 59.7 кв. м. Тип проекта, по которому построен дом — Монолитно-кирпичный, компания-застройщик — СЗ АЛЬФА ПРОДЖЕКТ. Стоимость квартиры — 13 289 220 руб. Способы оплаты можно уточнить у продавца. Срок сдачи — 1 квартал 2026. Более подробная информация по телефону.
Инфоцентр новостроек
Инфоцентр новостроек
+7 (499) 705-91-41
Время работы 9:00 — 21:00
Посмотреть все спецпредложения
студия 30,30 м2 6 832 650
Этаж 6/15
МО, ЖК «Идеал»
Щелковская
35 мин.
Строится
студия 30,40 м2 6 916 000
Этаж 13/13
МО, ЖК «Идеал»
Щелковская
35 мин.
Строится
Этаж 10/17
МО, ЖК «Идеал»
Щелковская
35 мин.
Строится
Посмотреть 22 квартиры в ЖК «Идеал»
Этаж 14/17
МО, ЖК «Идеал»
Щелковская
35 мин.
Строится
1-комн. квартира 45,80 м2 9 462 280
Этаж 3/17
МО, ЖК «Идеал»
Щелковская
35 мин.
Строится
Посмотреть 31 квартира в ЖК «Идеал»
2-комн. квартира 57,70 м2 11 482 300
Этаж 10/17
МО, ЖК «Идеал»
Щелковская
35 мин.
Строится
Посмотреть 5 квартир в ЖК «Идеал»
3-комн. квартира 66,20 м2 14 643 440
Этаж 17/17
МО, ЖК «Идеал»
Щелковская
35 мин.
Строится
Этаж 8/17
МО, ЖК «Идеал»
Щелковская
35 мин.
Строится
3-комн. квартира 66,40 м2 14 548 240
Этаж 17/17
МО, ЖК «Идеал»
Щелковская
35 мин.
Строится
Посмотреть 11 квартир в ЖК «Идеал»

Скидки и спецпредложения от застройщиков

ЖК «Идеал» на карте

Выгодные предложения на новостройки

Отзывы о ЖК «Идеал»

Самый полезный отзыв
С
29 сентября 2023
Оценка:
Экология
Социальная инфраструктура
Планировки
Способы покупки
Скорость строительства
Внешний вид фасада
Входные группы
Подземный паркинг
Двор, окружение
Расположение
Транспортная доступность
Визуально очень приятный проект удобно расположенный между Балашихинский и Щелковский шоссе. Отсутствуют многоэтажные дома вокруг комплекса - это для меня большой плюс, так как не люблю когда в окна смотрят из стоящего напротив дома. В продаже квартиры с отделкой и без, менеджер рассказал о том, что строят с опережением сроков и сдача планируется на конец 20255 начало 2026 года. Конкурентов в ближайшем округе нет, разве что же авиаторов, но там целый квартал где дом на доме в окружении многоэтажек.
Ответить
Полезный отзыв?
Самый новый отзыв
В
06 января
Оценка:
Транспортная доступность
Экология
Социальная инфраструктура
Готовность
Двор, окружение
Расположение
Почти все отзывы не соответствуют действительности. Есть подозрения, что они куплены.. Одинокий дом, стоящий в окружении промзоны, ангаром и гаражей... И ничего это сносится НЕ будет.. И метро там не будет. И школы с садиком там не будет. И выезда на Щелчок там не будет... А убогий выезд на Балашихискоемшоссе шоссе не спасёт.. Там была дорога, так они её ЗАУЗИЛИ на 2м!!! Чтоб дешевле обошлось!!!
Ответить
Полезный отзыв?
Добавьте отзыв, заполнив личные данные, или сначала войдите на сайт, тогда информация будет автоматически взята из личного профиля.
Оценка*