Рейтинг@Mail.ru
Переверните экран
Новостройки Квартиры Ипотека Новостройки Москвы Новостройки Подмосковья Новостройки Новой Москвы Готовые новостройки Новостройки на карте Акции от застройщиков Коммерческие помещения Продавцы и застройщики Панорамы новостроек Видеообзор новостроек Экспертиза новостроек Экология Москвы и Подмосковья Студии 1-комнатные 2-комнатные 3-комнатные Квартиры на карте Ипотечный калькулятор Семейная ипотека Военная ипотека Банки и программы Медиа Новости недвижимости Мнение эксперта Аналитика рынка Покупателю Экспертиза новостроек Эксперты и авторы О проекте Контакты Реклама на сайте Vk Youtube Telegram Дзен Машиноместа Апартаменты #траншевая ипотека #рассрочка ИТ-ипотека Квартиры со скидками до 40% Видео 360° новостроек Субсидированная застройщиком Rutube Поиск дома в Москве Программа реновации в Москве Новостройки премиум-класса Новостройки бизнес-класса Рассрочка Траншевая ипотека Дома и коттеджи Бизнес-центры Бизнес-центры в Москве Бизнес-центры рядом с метро Строящиеся бизнес-центры Бизнес-центры класса A Бизнес-центры класса B Ипотека со ставкой 0,1%
Данная квартира является лидером продаж среди двухкомнатных квартир в Восточное Бутово по данным Росреестра
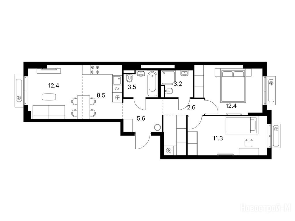
2-комн. квартира, 63.10 м2, 8 этаж
Срок сдачи 2 квартал 2028 года
11 085 408 
11 547 300
175 680 2
обновлено 29 марта

Описание 2-комн. квартиры

Новостройка
Застройщик
ПИК ООО «Лотан»
Срок ГК
2 квартал 2028 года
Стадия строительства
Тип проекта
Общая площадь
63.10 м2
Жилая площадь
23.70 м2
Площадь кухни
20.90 м2
Этаж
8 / 17
Отделка
предчистовая
Стоимость эксплуатации
~ 140 руб./м2

Расположение 2-комн. квартиры

Станция МЦД
Бутово
20 мин.
Дом
48
Адрес
Восточное Бутово, корп.48, секция 2

Способы покупки

Особенности

Продается двухкомнатная квартира в новостройке Восточное Бутово по адресу Московская область, Ленинский городской округ, рабочий посёлок Боброво, Восточное Бутово, корп.48. Общая площадь квартиры - 63.1 кв. м. Тип проекта, по которому построен дом — Монолитно-кирпичный,Панельный,Железобетон, компания-застройщик — ПИК, ООО «Лотан». Стоимость квартиры — 11 085 408 руб. Способы оплаты можно уточнить у продавца. Срок сдачи — 2 квартал 2028. Более подробная информация по телефону.

Правовые документы

ПИК
ПИК
Сданных 98
|
Строящихся 36
Время работы 02:00 — 21:00
Онлайн-сделка
Выбирайте квартиру в Восточное Бутово по ценам от застройщика

Похожие квартиры в Восточное Бутово

4 этаж
из 17 2 квартал 2028
Московская область, Ленинский городской округ
Аннино
11 мин.
48
Корпус
предчистовая
Отделка
2.62 м
Потолки
Восточное Бутово
11 471 580
Московский Кредитный Банк, ВТБ, Газпромбанк, Альфа-Банк, СберБанк, ДОМ.РФ
21.00%
Ставка
30.01%
Первый взнос
от 201 143 /мес.
Все варианты
16 этаж
из 17 2 квартал 2028
Московская область, Ленинский городской округ
Аннино
11 мин.
48
Корпус
предчистовая
Отделка
2.62 м
Потолки
Восточное Бутово
11 496 820
Московский Кредитный Банк, ВТБ, Газпромбанк, Альфа-Банк, СберБанк, ДОМ.РФ
21.00%
Ставка
30.01%
Первый взнос
от 201 585 /мес.
Все варианты
6 этаж
из 17 2 квартал 2028
Московская область, Ленинский городской округ
Аннино
11 мин.
48
Корпус
предчистовая
Отделка
2.62 м
Потолки
Восточное Бутово
11 515 750
Московский Кредитный Банк, ВТБ, Газпромбанк, Альфа-Банк, СберБанк, ДОМ.РФ
21.00%
Ставка
30.01%
Первый взнос
от 201 917 /мес.
Все варианты
12 этаж
из 17 2 квартал 2028
Московская область, Ленинский городской округ
Аннино
11 мин.
48
Корпус
предчистовая
Отделка
2.62 м
Потолки
Восточное Бутово
11 591 470
Московский Кредитный Банк, ВТБ, Газпромбанк, Альфа-Банк, СберБанк, ДОМ.РФ
21.00%
Ставка
30.01%
Первый взнос
от 203 245 /мес.
Все варианты
Этаж 2/17
МО, Восточное Бутово
Аннино
11 мин.
Строится
студия 19,80 м2 5 762 988
Этаж 12/17
МО, Восточное Бутово
Аннино
11 мин.
Строится
студия 19,90 м2 5 828 710
Этаж 16/17
МО, Восточное Бутово
Аннино
11 мин.
Строится
студия 20,00 м2 6 243 840
Этаж 14/17
МО, Восточное Бутово
Аннино
11 мин.
Строится
Этаж 11/17
МО, Восточное Бутово
Аннино
11 мин.
Строится
Этаж 16/17
МО, Восточное Бутово
Аннино
11 мин.
Строится
студия 19,90 м2 5 828 710
Этаж 16/17
МО, Восточное Бутово
Аннино
11 мин.
Строится
студия 20,00 м2 6 243 840
Этаж 14/17
МО, Восточное Бутово
Аннино
11 мин.
Строится
Посмотреть 87 квартир в Восточное Бутово
1-комн. квартира 32,00 м2 8 099 200
Этаж 17/17
МО, Восточное Бутово
Аннино
11 мин.
Строится
1-комн. квартира 32,10 м2 7 675 110
Этаж 11/15
МО, Восточное Бутово
Аннино
11 мин.
Строится
Этаж 8/17
МО, Восточное Бутово
Аннино
11 мин.
Строится
1-комн. квартира 32,30 м2 7 722 930
Этаж 5/15
МО, Восточное Бутово
Аннино
11 мин.
Строится
Посмотреть 181 квартира в Восточное Бутово
2-комн. квартира 46,00 м2 9 167 616
Этаж 24/25
МО, Восточное Бутово
Аннино
11 мин.
Строится
Этаж 8/24
МО, Восточное Бутово
Аннино
11 мин.
Строится
Этаж 3/24
МО, Восточное Бутово
Аннино
11 мин.
Строится
Этаж 2/24
МО, Восточное Бутово
Аннино
11 мин.
Строится
Посмотреть 119 квартир в Восточное Бутово
3-комн. квартира 67,90 м2 13 172 600
Этаж 14/25
МО, Восточное Бутово
Аннино
11 мин.
Строится
3-комн. квартира 68,10 м2 13 034 340
Этаж 9/25
МО, Восточное Бутово
Аннино
11 мин.
Строится
Этаж 23/25
МО, Восточное Бутово
Аннино
11 мин.
Строится
3-комн. квартира 68,80 м2 13 436 640
Этаж 5/25
МО, Восточное Бутово
Аннино
11 мин.
Строится
Посмотреть 32 квартиры в Восточное Бутово

Скидки и спецпредложения от застройщиков

Восточное Бутово на карте

Выгодные предложения на новостройки

Отзывы о Восточное Бутово

Самый полезный отзыв
Т
27 ноября 2017
Оценка:
Молодая семья из двух человек хочет купить однокомнатную квартиру в этом жк. Конечно, купить -это прям громко сказано, будем брать ипотеку. Мы оба можем работать из дома, поэтому квартирка в развивающемся и перспективном районе нам по душе. Я всегда хотела жить в зеленой зоне, чтобы парк или лес был рядом. Мы любим утрами бегать, а на выходных в хорошую погоду выбираться на пикники. Рядом как раз есть Бутовский лесопарк. Рядом много магазинов-это жирный плюс. Муж начитался информации в интернете про обманутых дольщиков, замороженных стройках и по началу был категорически против покупать жильё в недостроенном доме у сомнительных застройщиков.Но у ПИК всё хорошо с репутацией и нет не достроенных объектов. Со строящимися рядом другими жк у нас как-то дружба не сложилась. В новобулатниково нам ответила очень сомнительная дама, а когда мы узнали, что застройщик ещё и сроки уже переносил, то сразу отказались. Жк видный город вроде норм, но соседство с молочной фермой табу для меня по личным соображениям. Я веган и не очень хочу знать, что где-то рядом бедные коровки. Как я поняла, есть возможность купить квартиру уже с ремонтом и потом уже не заморачиваться. Кстати, на одном из форумов видела, что ремонтом жильцы довольны, стяжка полов сделана качественно. Добраться до города тоже не проблема: есть жд станция недалёко, общественный транспорт ходит исправно. Также планируют построить дорогу для суперскоростного поезда Стрелка. Ну и на будущее радует, что детсады-школы-поликлиники есть, можно не париться и пополнять генофонд) "
Показать все комментарии
Ответить
Самый новый отзыв
Б
10 августа 2025
Оценка:
Достоинства
Способы покупки
Из актуального - рассрочка есть хорошая, если есть хотя бы половина стоимости квартиры, ну и ипотеку предлагают на более выгодных условиях, чем обычно, так что надо с менеджерами общаться напрямую
Ответить

Оставить отзыв

Добавьте отзыв, заполнив личные данные, или сначала войдите на сайт, тогда информация будет автоматически взята из личного профиля.
Оценка*