Рейтинг@Mail.ru
Переверните экран
Новостройки Квартиры Ипотека Новостройки Москвы Новостройки Подмосковья Новостройки Новой Москвы Готовые новостройки Новостройки на карте Акции от застройщиков Коммерческие помещения Продавцы и застройщики Панорамы новостроек Видеообзор новостроек Экспертиза новостроек Экология Москвы и Подмосковья Студии 1-комнатные 2-комнатные 3-комнатные Квартиры на карте Ипотечный калькулятор Семейная ипотека Военная ипотека Банки и программы Медиа Новости недвижимости Мнение эксперта Аналитика рынка Покупателю Экспертиза новостроек Эксперты и авторы О проекте Контакты Реклама на сайте Vk Youtube Telegram Дзен Машиноместа Апартаменты #траншевая ипотека #рассрочка IT-ипотека Квартиры со скидками до 35% Видео 360° новостроек Субсидированная застройщиком Rutube Поиск дома в Москве Программа реновации в Москве Новостройки премиум-класса Новостройки бизнес-класса Рассрочка Траншевая ипотека Дома и коттеджи Бизнес-центры Бизнес-центры в Москве Бизнес-центры рядом с метро Строящиеся бизнес-центры Бизнес-центры класса A Бизнес-центры класса B
Данная квартира является лидером продаж среди двухкомнатных квартир в Мультиквартале CITYZEN (Ситизен) по данным Росреестра
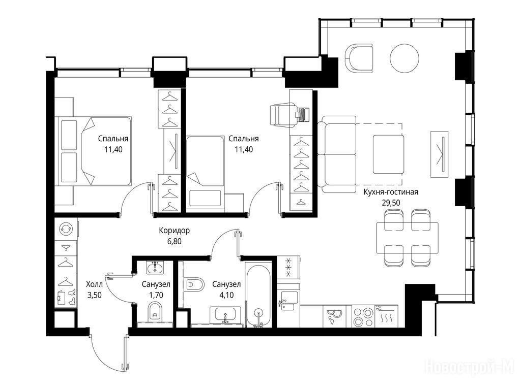
2-комн. квартира, 68.40 м2, 23 этаж
Срок сдачи 3 квартал 2027 года
30 592 584 
32 202 720
447 260 2
обновлено 5 февраля

Описание 2-комн. квартиры

Срок ГК
3 квартал 2027 года
Стадия строительства
монтаж нижних этажей
Общая площадь
68.40 м2
Жилая площадь
22.80 м2
Площадь кухни
29.50 м2
Этаж
23 / 28
Отделка
нет

Расположение 2-комн. квартиры

Локация
Метро
Станция МЦД
Дом
3
Адрес
ул. Вишневая, д. 7, секция 1

Особенности

Продается двухкомнатная квартира в новостройке Мультиквартал CITYZEN (Ситизен) по адресу Москва, СЗАО, Покровское-Стрешнево, ул. Вишневая, д. 7. Общая площадь квартиры - 68.4 кв. м. Тип проекта, по которому построен дом — Монолитно-кирпичный, компания-застройщик — MR Group (МР Групп), ООО СЗ С-Девелопмент. Стоимость квартиры — 30 592 584 руб. Способы оплаты можно уточнить у продавца. Срок сдачи — 3 квартал 2027. Более подробная информация по телефону.
Инфоцентр новостроек
Инфоцентр новостроек
+7 (499) 705-91-41
Время работы 9:00 — 21:00
Посмотреть все спецпредложения
студия 25,30 м2 16 085 740
Этаж 2/28
Москва, Мультиквартал CITYZEN (Ситизен)
Тушинская
9 мин.
Строится
Этаж 12/28
Москва, Мультиквартал CITYZEN (Ситизен)
Тушинская
9 мин.
Строится
студия 25,80 м2 17 564 640
Этаж 22/28
Москва, Мультиквартал CITYZEN (Ситизен)
Тушинская
9 мин.
Строится
студия 28,80 м2 18 498 240
Этаж 35/36
Москва, Мультиквартал CITYZEN (Ситизен)
Тушинская
9 мин.
Строится
Посмотреть 15 квартир в Мультиквартале CITYZEN (Ситизен)
1-комн. квартира 33,00 м2 20 357 700
Этаж 44/48
Москва, Мультиквартал CITYZEN (Ситизен)
Тушинская
9 мин.
Строится
1-комн. квартира 33,50 м2 20 250 750
Этаж 31/48
Москва, Мультиквартал CITYZEN (Ситизен)
Тушинская
9 мин.
Строится
1-комн. квартира 33,70 м2 20 725 500
Этаж 41/48
Москва, Мультиквартал CITYZEN (Ситизен)
Тушинская
9 мин.
Строится
1-комн. квартира 34,00 м2 20 012 400
Этаж 11/48
Москва, Мультиквартал CITYZEN (Ситизен)
Тушинская
9 мин.
Строится
Посмотреть 146 квартир в Мультиквартале CITYZEN (Ситизен)
2-комн. квартира 52,50 м2 28 245 000
Этаж 19/19
Москва, Мультиквартал CITYZEN (Ситизен)
Тушинская
9 мин.
Строится
2-комн. квартира 53,90 м2 27 224 890
Этаж 18/19
Москва, Мультиквартал CITYZEN (Ситизен)
Тушинская
9 мин.
Строится
2-комн. квартира 55,50 м2 27 211 650
Этаж 38/48
Москва, Мультиквартал CITYZEN (Ситизен)
Тушинская
9 мин.
Строится
2-комн. квартира 55,60 м2 28 039 080
Этаж 9/30
Москва, Мультиквартал CITYZEN (Ситизен)
Тушинская
9 мин.
Строится
Посмотреть 73 квартиры в Мультиквартале CITYZEN (Ситизен)
3-комн. квартира 73,90 м2 34 962 090
Этаж 31/48
Москва, Мультиквартал CITYZEN (Ситизен)
Тушинская
9 мин.
Строится
3-комн. квартира 74,00 м2 35 782 700
Этаж 44/48
Москва, Мультиквартал CITYZEN (Ситизен)
Тушинская
9 мин.
Строится
3-комн. квартира 74,10 м2 33 367 230
Этаж 10/28
Москва, Мультиквартал CITYZEN (Ситизен)
Тушинская
9 мин.
Строится
3-комн. квартира 74,80 м2 34 428 570
Этаж 20/28
Москва, Мультиквартал CITYZEN (Ситизен)
Тушинская
9 мин.
Строится
Посмотреть 26 квартир в Мультиквартале CITYZEN (Ситизен)
4-комн. квартира 107,10 м2 44 007 390
Этаж 7/30
Москва, Мультиквартал CITYZEN (Ситизен)
Тушинская
9 мин.
Строится
4-комн. квартира 109,30 м2 45 589 030
Этаж 11/30
Москва, Мультиквартал CITYZEN (Ситизен)
Тушинская
9 мин.
Строится
4-комн. квартира 109,50 м2 47 763 900
Этаж 27/30
Москва, Мультиквартал CITYZEN (Ситизен)
Тушинская
9 мин.
Строится
Посмотреть 10 квартир в Мультиквартале CITYZEN (Ситизен)

Скидки и спецпредложения от застройщиков

Мультиквартал CITYZEN (Ситизен) на карте

Выгодные предложения на новостройки

Отзывы о Мультиквартале CITYZEN (Ситизен)

Самый полезный отзыв
М
18 марта 2024
Оценка:
Транспортная доступность
Социальная инфраструктура
Планировки
Способы покупки
Двор, окружение
Расположение
Я очень рада, что приобрела квартиру в этом жилом комплексе до повышения цен! Комплекс расположен очень удобно, все необходимое в шаговой доступности. Потолки высотой 2.85 м придают квартире простора. Отмечу дружелюбный персонал, готовый всегда прийти на помощь.
Ответить
Полезный отзыв?
Самый новый отзыв
М
11 декабря 2025
Оценка:
Стройка не ведётся с конца апреля 2025 года , в настоящее время не только сроки передачи ключей, но и сам факт строительства жк ситизен вызывает сомнения. Застройщик никакой информации не сообщает, но при этом активно рекламирует жк, забывая указать, что строительство не ведётся. Что это " хорошая мина при плохой игре" или намеренное введение покупателей в заблуждение?
Ответить
Полезный отзыв?
Добавьте отзыв, заполнив личные данные, или сначала войдите на сайт, тогда информация будет автоматически взята из личного профиля.
Оценка*