Рейтинг@Mail.ru
Переверните экран
Новостройки Квартиры Ипотека Новостройки Москвы Новостройки Подмосковья Новостройки Новой Москвы Готовые новостройки Новостройки на карте Акции от застройщиков Коммерческие помещения Продавцы и застройщики Панорамы новостроек Видеообзор новостроек Экспертиза новостроек Экология Москвы и Подмосковья Студии 1-комнатные 2-комнатные 3-комнатные Квартиры на карте Ипотечный калькулятор Семейная ипотека Военная ипотека Банки и программы Медиа Новости недвижимости Мнение эксперта Аналитика рынка Покупателю Экспертиза новостроек Эксперты и авторы О проекте Контакты Реклама на сайте Vk Youtube Telegram Дзен Машиноместа Апартаменты #траншевая ипотека #рассрочка IT-ипотека Квартиры со скидками до 40% Видео 360° новостроек Субсидированная застройщиком Rutube Поиск дома в Москве Программа реновации в Москве Новостройки премиум-класса Новостройки бизнес-класса Рассрочка Траншевая ипотека ГАЛС Дома и коттеджи Бизнес-центры Бизнес-центры в Москве Бизнес-центры рядом с метро Строящиеся бизнес-центры Бизнес-центры класса A Бизнес-центры класса B ЛСР
2-комн. квартира, 111.60 м2, 14 этаж
Сдан
65 290 000 
585 036 2
обновлено 5 декабря

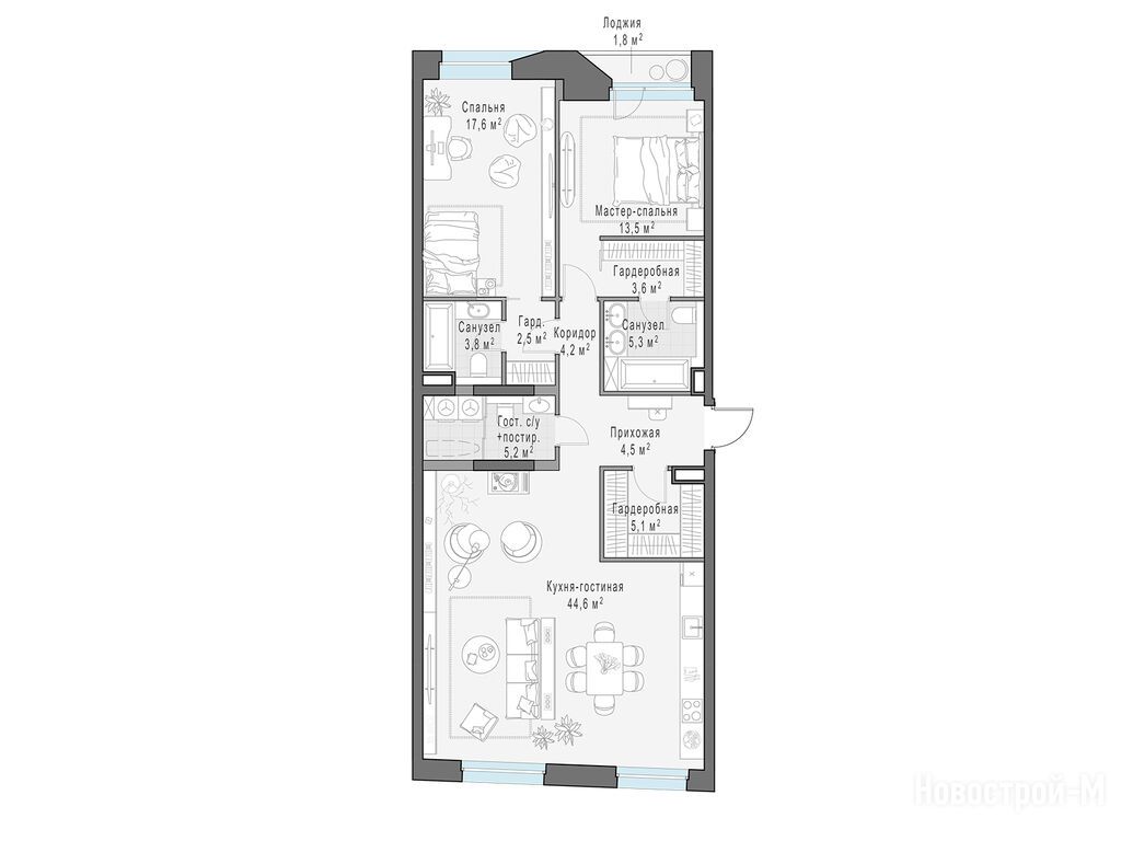
Описание 2-комн. квартиры

Застройщик
Срок ГК
Дом сдан
Стадия строительства
Тип проекта
блочный
Общая площадь
111.60 м2
Жилая площадь
31.10 м2
Площадь кухни
44.60 м2
Этаж
14 / 16
Отделка
нет
Грузовой лифт
есть

Расположение 2-комн. квартиры

Локация
Метро
Станция МЦД
Станция МЦК
Ж/Д-станция
Дом
Line 3
Адрес
микрорайон Г, жилой комплекс Форивер, 3, секция 8

Способы покупки

Особенности

Продается двухкомнатная квартира в новостройке Квартал Foriver (Форивер) по адресу Москва, ЮАО, Даниловский, микрорайон Г, жилой комплекс Форивер, 3. Общая площадь квартиры - 111.6 кв. м. Тип проекта, по которому построен дом — Монолит, компания-застройщик — Sminex. Стоимость квартиры — 65 290 000 руб. Способы оплаты можно уточнить у продавца. Более подробная информация по телефону.

Правовые документы

Sminex
Sminex
Сданных 28
|
Строящихся 13
Время работы 09:00 — 21:00
Выбирайте квартиру в Квартал Foriver (Форивер) по ценам от застройщика
Посмотреть все спецпредложения
1-комн. квартира 40,00 м2 28 290 000
Этаж 21/21
Москва, Квартал Foriver (Форивер)
Автозаводская
15 мин.
Сдан
1-комн. квартира 41,90 м2 33 570 000
Этаж 14/14
Москва, Квартал Foriver (Форивер)
Автозаводская
15 мин.
Сдан
1-комн. квартира 42,00 м2 33 860 000
Этаж 13/14
Москва, Квартал Foriver (Форивер)
Автозаводская
15 мин.
Сдан
1-комн. квартира 42,30 м2 32 650 000
Этаж 12/14
Москва, Квартал Foriver (Форивер)
Автозаводская
15 мин.
Сдан
Посмотреть 45 квартир в Квартале Foriver (Форивер)
2-комн. квартира 57,70 м2 40 700 000
Этаж 3/19
Москва, Квартал Foriver (Форивер)
Автозаводская
15 мин.
Сдан
2-комн. квартира 57,80 м2 45 080 000
Этаж 18/19
Москва, Квартал Foriver (Форивер)
Автозаводская
15 мин.
Сдан
2-комн. квартира 57,90 м2 42 380 000
Этаж 17/19
Москва, Квартал Foriver (Форивер)
Автозаводская
15 мин.
Сдан
2-комн. квартира 62,20 м2 43 940 000
Этаж 13/14
Москва, Квартал Foriver (Форивер)
Автозаводская
15 мин.
Сдан
Посмотреть 61 квартира в Квартале Foriver (Форивер)
3-комн. квартира 79,70 м2 69 270 000
Этаж 16/16
Москва, Квартал Foriver (Форивер)
Автозаводская
15 мин.
Сдан
3-комн. квартира 84,50 м2 59 400 000
Этаж 13/19
Москва, Квартал Foriver (Форивер)
Автозаводская
15 мин.
Сдан
3-комн. квартира 84,60 м2 60 850 000
Этаж 16/19
Москва, Квартал Foriver (Форивер)
Автозаводская
15 мин.
Сдан
3-комн. квартира 86,10 м2 61 980 000
Этаж 3/19
Москва, Квартал Foriver (Форивер)
Автозаводская
15 мин.
Сдан
Посмотреть 81 квартира в Квартале Foriver (Форивер)
4-комн. квартира 130,00 м2 75 070 000
Этаж 13/14
Москва, Квартал Foriver (Форивер)
Автозаводская
15 мин.
Сдан
4-комн. квартира 133,10 м2 74 180 000
Этаж 14/19
Москва, Квартал Foriver (Форивер)
Автозаводская
15 мин.
Сдан
4-комн. квартира 135,20 м2 78 470 000
Этаж 18/19
Москва, Квартал Foriver (Форивер)
Автозаводская
15 мин.
Сдан
4-комн. квартира 136,10 м2 74 450 000
Этаж 17/19
Москва, Квартал Foriver (Форивер)
Автозаводская
15 мин.
Сдан
Посмотреть 23 квартиры в Квартале Foriver (Форивер)
5-комн. квартира 183,00 м2 116 550 000
Этаж 15/19
Москва, Квартал Foriver (Форивер)
Автозаводская
15 мин.
Сдан
5-комн. квартира 183,10 м2 112 600 000
Этаж 11/19
Москва, Квартал Foriver (Форивер)
Автозаводская
15 мин.
Сдан
5-комн. квартира 183,20 м2 116 380 000
Этаж 16/19
Москва, Квартал Foriver (Форивер)
Автозаводская
15 мин.
Сдан
5-комн. квартира 183,30 м2 117 440 000
Этаж 17/19
Москва, Квартал Foriver (Форивер)
Автозаводская
15 мин.
Сдан
Посмотреть 8 квартир в Квартале Foriver (Форивер)

Скидки и спецпредложения от застройщиков

Квартал Foriver (Форивер) на карте

Выгодные предложения на новостройки

Отзывы о Квартале Foriver (Форивер)

Самый полезный отзыв
Д
04 июля 2020
Оценка:
Внешний вид фасада
Входные группы
Готовность
Обещают первый комплекс СУПЕР ПЕРМИУМ класса от Инград. Очень интересно посмотреть, как компания справится с этой задачей, это же возможность тогда перейти в новый сегмент клиентов по сути. Место крутое, набережная, рядом парк который должны благоустроить. Если выполнят обещание и будет реально крутой фасад из камня, красивые входные группы и лифты не Отис... Плюс вокруг все приведут в порядок тогда это вау-комплекс и это взрыв рынка!
Ответить
Полезный отзыв?
Самый новый отзыв
Г
24 ноября
Оценка:
Социальная инфраструктура
Двор, окружение
Расположение
Мне нравится атмосфера спокойно, не как в центре, где постоянно шум. Магазины рядом есть, до метро пешком далековато, но автобус ходит регулярно. Соседи в основном молодые семьи, все приветливые. Из минусов плоховато убирают после дождя в коридоре, но после жалобы всё быстро поправили.
Ответить
Полезный отзыв?
Добавьте отзыв, заполнив личные данные, или сначала войдите на сайт, тогда информация будет автоматически взята из личного профиля.
Оценка*