Рейтинг@Mail.ru
Переверните экран
Новостройки Квартиры Ипотека Новостройки Москвы Новостройки Подмосковья Новостройки Новой Москвы Готовые новостройки Новостройки на карте Акции от застройщиков Коммерческие помещения Продавцы и застройщики Панорамы новостроек Видеообзор новостроек Экспертиза новостроек Экология Москвы и Подмосковья Студии 1-комнатные 2-комнатные 3-комнатные Квартиры на карте Ипотечный калькулятор Семейная ипотека Военная ипотека Банки и программы Медиа Новости недвижимости Мнение эксперта Аналитика рынка Покупателю Экспертиза новостроек Эксперты и авторы О проекте Контакты Реклама на сайте Vk Youtube Telegram Дзен Машиноместа Апартаменты #траншевая ипотека #рассрочка IT-ипотека Квартиры со скидками до 35% Видео 360° новостроек Субсидированная застройщиком Rutube Поиск дома в Москве Программа реновации в Москве Новостройки премиум-класса Новостройки бизнес-класса Рассрочка Траншевая ипотека Дома и коттеджи Бизнес-центры Бизнес-центры в Москве Бизнес-центры рядом с метро Строящиеся бизнес-центры Бизнес-центры класса A Бизнес-центры класса B
Данная квартира является лидером продаж среди двухкомнатных квартир в Клубный город на реке Primavera (Примавера) по данным Росреестра
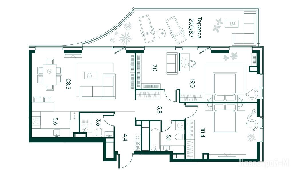
2-комн. квартира, 106.10 м2, 22 этаж
Сдан
126 694 010 
1 194 100 2
обновлено 5 февраля

Описание 2-комн. квартиры

Срок ГК
Дом сдан
Стадия строительства
выдача ключей + заселение
Тип проекта
Общая площадь
106.10 м2
Жилая площадь
37.40 м2
Площадь кухни
34.10 м2
Высота потолков
4.05
Этаж
22 / 22
Балкон
балкон
Отделка
нет
Тип санузла
2
Грузовой лифт
есть

Расположение 2-комн. квартиры

Локация
Метро
Станция МЦД
Станция МЦК
Дом
22 (Rossini)
Адрес
Волоколамское шоссе, вл.71/12, корп. 22, секция 2

Способы покупки

Особенности

Продается двухкомнатная квартира в новостройке Клубный город на реке Primavera (Примавера) по адресу Москва, СЗАО, Покровское-Стрешнево, Волоколамское шоссе, вл.71/12, корп. 22. Общая площадь квартиры - 106.1 кв. м. Тип проекта, по которому построен дом — Монолит,Панельно-кирпичный, компания-застройщик — ООО «СЗ «Стадион «Спартак». Стоимость квартиры — 126 694 010 руб. Способы оплаты можно уточнить у продавца. Более подробная информация по телефону.
ООО «СЗ «Стадион «Спартак»
ООО «СЗ «Стадион «Спартак»
Сданных 1
|
Строящихся 2
Время работы 09:00 — 21:00
Выбирайте квартиру в Клубный город на реке Primavera (Примавера) по ценам от застройщика
Посмотреть все спецпредложения
1-комн. квартира 40,60 м2 30 681 420
Этаж 3/22
Москва, Клубный город на реке Primavera (Примавера)
Спартак
5 мин.
Строится
1-комн. квартира 41,00 м2 29 852 100
Этаж 10/20
Москва, Клубный город на реке Primavera (Примавера)
Спартак
5 мин.
Строится
1-комн. квартира 41,30 м2 29 417 990
Этаж 11/13 балкон
Москва, Клубный город на реке Primavera (Примавера)
Спартак
5 мин.
Строится
1-комн. квартира 41,50 м2 32 233 050
Этаж 2/22 балкон
Москва, Клубный город на реке Primavera (Примавера)
Спартак
5 мин.
Строится
Посмотреть 211 квартир в Клубный город на реке Primavera (Примавера)
2-комн. квартира 63,10 м2 40 667 950
Этаж 2/20
Москва, Клубный город на реке Primavera (Примавера)
Спартак
5 мин.
Строится
2-комн. квартира 63,30 м2 42 132 480
Этаж 4/20
Москва, Клубный город на реке Primavera (Примавера)
Спартак
5 мин.
Строится
2-комн. квартира 63,40 м2 40 861 300
Этаж 2/20
Москва, Клубный город на реке Primavera (Примавера)
Спартак
5 мин.
Строится
2-комн. квартира 63,80 м2 41 119 100
Этаж 2/20
Москва, Клубный город на реке Primavera (Примавера)
Спартак
5 мин.
Строится
Посмотреть 238 квартир в Клубный город на реке Primavera (Примавера)
3-комн. квартира 74,70 м2 48 144 150
Этаж 2/13
Москва, Клубный город на реке Primavera (Примавера)
Спартак
5 мин.
Строится
3-комн. квартира 75,00 м2 48 465 000
Этаж 5/13 балкон
Москва, Клубный город на реке Primavera (Примавера)
Спартак
5 мин.
Строится
3-комн. квартира 77,20 м2 53 970 520
Этаж 4/20
Москва, Клубный город на реке Primavera (Примавера)
Спартак
5 мин.
Строится
3-комн. квартира 78,50 м2 50 915 100
Этаж 3/13 балкон
Москва, Клубный город на реке Primavera (Примавера)
Спартак
5 мин.
Сдан
Посмотреть 104 квартиры в Клубный город на реке Primavera (Примавера)
4-комн. квартира 142,90 м2 120 178 900
Этаж 11/22
Москва, Клубный город на реке Primavera (Примавера)
Спартак
5 мин.
Строится
4-комн. квартира 144,90 м2 124 425 630
Этаж 12/22 балкон
Москва, Клубный город на реке Primavera (Примавера)
Спартак
5 мин.
Строится
4-комн. квартира 166,10 м2 146 284 270
Этаж 13/18 балкон
Москва, Клубный город на реке Primavera (Примавера)
Спартак
5 мин.
Строится
Этаж 12/18 балкон
Москва, Клубный город на реке Primavera (Примавера)
Спартак
5 мин.
Строится
Посмотреть 11 квартир в Клубный город на реке Primavera (Примавера)
5-комн. квартира 181,10 м2 186 768 430
Этаж 13/13 балкон
Москва, Клубный город на реке Primavera (Примавера)
Спартак
5 мин.
Сдан
5-комн. квартира 209,20 м2 189 430 600
Этаж 16/18 балкон
Москва, Клубный город на реке Primavera (Примавера)
Спартак
5 мин.
Строится
5-комн. квартира 209,60 м2 193 502 720
Этаж 17/18 балкон
Москва, Клубный город на реке Primavera (Примавера)
Спартак
5 мин.
Строится
6-комн. квартира 218,30 м2 213 082 630
Этаж 21/22
Москва, Клубный город на реке Primavera (Примавера)
Спартак
5 мин.
Строится
Посмотреть 6 квартир в Клубный город на реке Primavera (Примавера)

Скидки и спецпредложения от застройщиков

Клубный город на реке Primavera (Примавера) на карте

Выгодные предложения на новостройки

Отзывы о Клубный город на реке Primavera (Примавера)

Самый полезный отзыв
П
29 декабря 2021
Оценка:
Созванивался с менеджером на днях, уже определился, что буду большую однокомнатную брать, или как там — это модно называть - евродвушка. Место здесь хорошее, все дома в округе новые, никакие хрущевки сталинки не будут портить виды. До работы и центра добираться легко, рядом красивый храм, множество спортивных центров, даже не большой тц будет. Изначально я планировал взять квартиру в ту18, но там выбора почти не осталось, а здесь нашел метраж подходящий. Да и классом Примаверы выше, а значит и качество будет соответствующее.
Ответить
Полезный отзыв?
Самый новый отзыв
ЮЯ
09 августа 2025
Оценка:
Планировки
Способы покупки
Внешний вид фасада
Двор, окружение
Расположение
Давно присматривались именно к этому проекту, еще со стадии котлована первой очереди. Очень нравится, что тут продумано буквально все – от планировки двора с учетом потребностей как семейных, так и одиноких, как говорится, жителей и приятных МОП до паркинга, на котором можно найти любые варианты машиномест, в том числе и с электрозарядками. Отличная локация, кстати, в центр попасть в любое время можно за полчаса, может чуть побольше
Ответить
Полезный отзыв?
Добавьте отзыв, заполнив личные данные, или сначала войдите на сайт, тогда информация будет автоматически взята из личного профиля.
Оценка*