Рейтинг@Mail.ru
Переверните экран
Новостройки Квартиры Ипотека Новостройки Москвы Новостройки Подмосковья Новостройки Новой Москвы Готовые новостройки Новостройки на карте Акции от застройщиков Коммерческие помещения Продавцы и застройщики Панорамы новостроек Видеообзор новостроек Экспертиза новостроек Экология Москвы и Подмосковья Студии 1-комнатные 2-комнатные 3-комнатные Квартиры на карте Ипотечный калькулятор Семейная ипотека Военная ипотека Банки и программы Медиа Новости недвижимости Мнение эксперта Аналитика рынка Покупателю Экспертиза новостроек Эксперты и авторы О проекте Контакты Реклама на сайте Vk Youtube Telegram Дзен Машиноместа Апартаменты #траншевая ипотека #рассрочка IT-ипотека Квартиры со скидками до 40% Видео 360° новостроек Субсидированная застройщиком Rutube Поиск дома в Москве Программа реновации в Москве Новостройки премиум-класса Новостройки бизнес-класса Рассрочка Траншевая ипотека ГАЛС Дома и коттеджи Бизнес-центры Бизнес-центры в Москве Бизнес-центры рядом с метро Строящиеся бизнес-центры Бизнес-центры класса A Бизнес-центры класса B ЛСР
Данная квартира является лидером продаж среди четырехкомнатных квартир в ЖК «Яркий квартал Injoy» (Инджой) по данным Росреестра
4-комн. квартира, 120.10 м2, 30 этаж
Срок сдачи 1 квартал 2027 года
52 854 100 
440 084 2
обновлено 5 декабря

Описание 4-комн. квартиры

Застройщик
Срок ГК
1 квартал 2027 года
Стадия строительства
монтаж верхних этажей
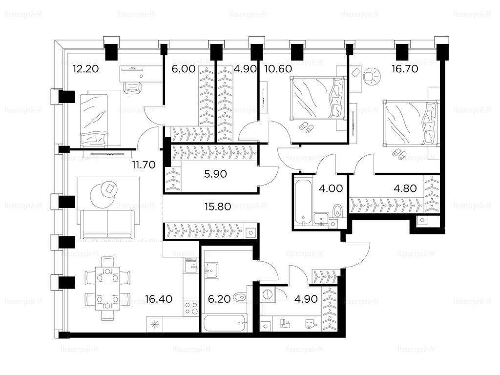
Общая площадь
120.10 м2
Жилая площадь
51.20 м2
Площадь кухни
16.40 м2
Этаж
30 / 33

Расположение 4-комн. квартиры

Локация
Станция МЦД
Станция МЦК
Дом
1
Адрес
ул. Адмирала Макарова, секция 6

Способы покупки

Особенности

Продается четырехкомнатная квартира в новостройке ЖК «Яркий квартал Injoy» (Инджой) по адресу Москва, САО, Войковский, ул. Адмирала Макарова. Общая площадь квартиры - 120.1 кв. м. Тип проекта, по которому построен дом — Монолитно-каркасный, компания-застройщик — Талан. Стоимость квартиры — 52 854 100 руб. Способы оплаты можно уточнить у продавца. Срок сдачи — 1 квартал 2027. Более подробная информация по телефону.
Талан
Талан
Сданных 0
|
Строящихся 1
Время работы 09:00 — 21:00
Выбирайте квартиру в «Яркий квартал Injoy» (Инджой) по ценам от застройщика «Талан»
Посмотреть все спецпредложения
Этаж 31/35
Москва, ЖК «Яркий квартал Injoy» (Инджой)
Балтийская
2 мин.
Строится
Этаж 2/8
Москва, ЖК «Яркий квартал Injoy» (Инджой)
Балтийская
2 мин.
Строится
Этаж 26/33
Москва, ЖК «Яркий квартал Injoy» (Инджой)
Балтийская
2 мин.
Строится
Этаж 18/33
Москва, ЖК «Яркий квартал Injoy» (Инджой)
Балтийская
2 мин.
Строится
Этаж 2/12
Москва, ЖК «Яркий квартал Injoy» (Инджой)
Балтийская
2 мин.
Строится
1-комн. квартира 25,80 м2 17 349 500
Этаж 5/8
Москва, ЖК «Яркий квартал Injoy» (Инджой)
Балтийская
2 мин.
Строится
Этаж 3/12
Москва, ЖК «Яркий квартал Injoy» (Инджой)
Балтийская
2 мин.
Строится
Этаж 14/33
Москва, ЖК «Яркий квартал Injoy» (Инджой)
Балтийская
2 мин.
Строится
Посмотреть 64 квартиры в ЖК «Яркий квартал Injoy» (Инджой)
Этаж 22/32
Москва, ЖК «Яркий квартал Injoy» (Инджой)
Балтийская
2 мин.
Строится
Этаж 24/33
Москва, ЖК «Яркий квартал Injoy» (Инджой)
Балтийская
2 мин.
Строится
Этаж 24/35
Москва, ЖК «Яркий квартал Injoy» (Инджой)
Балтийская
2 мин.
Строится
Этаж 9/12
Москва, ЖК «Яркий квартал Injoy» (Инджой)
Балтийская
2 мин.
Строится
Посмотреть 194 квартиры в ЖК «Яркий квартал Injoy» (Инджой)
Этаж 11/32
Москва, ЖК «Яркий квартал Injoy» (Инджой)
Балтийская
2 мин.
Строится
Этаж 28/33
Москва, ЖК «Яркий квартал Injoy» (Инджой)
Балтийская
2 мин.
Строится
Этаж 8/10
Москва, ЖК «Яркий квартал Injoy» (Инджой)
Балтийская
2 мин.
Строится
3-комн. квартира 63,70 м2 32 792 100
Этаж 7/12
Москва, ЖК «Яркий квартал Injoy» (Инджой)
Балтийская
2 мин.
Строится
Посмотреть 125 квартир в ЖК «Яркий квартал Injoy» (Инджой)
Этаж 26/33
Москва, ЖК «Яркий квартал Injoy» (Инджой)
Балтийская
2 мин.
Строится
Этаж 13/33
Москва, ЖК «Яркий квартал Injoy» (Инджой)
Балтийская
2 мин.
Строится
Этаж 18/33
Москва, ЖК «Яркий квартал Injoy» (Инджой)
Балтийская
2 мин.
Строится
Этаж 24/32
Москва, ЖК «Яркий квартал Injoy» (Инджой)
Балтийская
2 мин.
Строится
Посмотреть 17 квартир в ЖК «Яркий квартал Injoy» (Инджой)

Скидки и спецпредложения от застройщиков

ЖК «Яркий квартал Injoy» (Инджой) на карте

Выгодные предложения на новостройки

Отзывы о ЖК «Яркий квартал Injoy» (Инджой)

Самый полезный отзыв
И
12 октября 2023
Оценка:
Транспортная доступность
Присматривал вторую студию в дополнение к той, которую сейчас сдаю и остановился на Инжой. Понравился район и вообще север и в частности Ленинградка привлекает. Здесь и жилье растет быстрее и сдать можно побыстрее за хорошие деньги. Уверен, что инвестиция правильная и ипотеку оформить легко, внес 60%, и платеж совсем небольшой по итогу. Площадь 25,8 метров это вполне себе для студии, почти однушка.
Ответить
Полезный отзыв?
Самый новый отзыв
D
03 декабря
Оценка:
Концепция у жилого квартала INJOY достаточно интересная. Очень понравились идеи с угловым остеклением и большими лоджиями. Такое остекление обычно создает ощущение простора и света в квартире. Кроме того, наличие больших колясочных и комнат для матери и ребенка, для нас в ближайшем будущем будет актуально. Будем рассматривать варианты ипотеки.
Ответить
Полезный отзыв?
Добавьте отзыв, заполнив личные данные, или сначала войдите на сайт, тогда информация будет автоматически взята из личного профиля.
Оценка*