Рейтинг@Mail.ru
Переверните экран
Новостройки Квартиры Ипотека Новостройки Москвы Новостройки Подмосковья Новостройки Новой Москвы Готовые новостройки Новостройки на карте Акции от застройщиков Коммерческие помещения Продавцы и застройщики Панорамы новостроек Видеообзор новостроек Экспертиза новостроек Экология Москвы и Подмосковья Студии 1-комнатные 2-комнатные 3-комнатные Квартиры на карте Ипотечный калькулятор Семейная ипотека Военная ипотека Банки и программы Медиа Новости недвижимости Мнение эксперта Аналитика рынка Покупателю Экспертиза новостроек Эксперты и авторы О проекте Контакты Реклама на сайте Vk Youtube Telegram Дзен Машиноместа Апартаменты #траншевая ипотека #рассрочка ИТ-ипотека Квартиры со скидками до 40% Видео 360° новостроек Субсидированная застройщиком Rutube Поиск дома в Москве Программа реновации в Москве Новостройки премиум-класса Новостройки бизнес-класса Рассрочка Траншевая ипотека Дома и коттеджи Коттеджные поселки в Новой Москве Готовые коттеджные поселки Строящиеся коттеджные поселки Коттеджные поселки в лесу Коттеджные поселки у водоема Коттеджные поселки в ипотеку Бизнес-центры Коттеджи Ипотека со ставкой 0,1%
4-комн. квартира, 192.80 м2, 15 этаж
Сдан
140 450 600 
728 478 2
обновлено 13 мая

Описание 4-комн. квартиры

Новостройка
Застройщик
Срок ГК
Дом сдан
Стадия строительства
выдача ключей + заселение
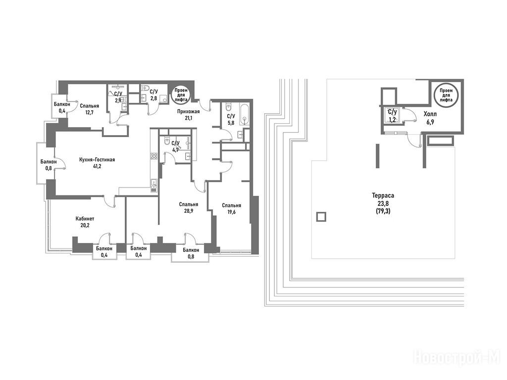
Общая площадь
192.80 м2
Высота потолков
3.40
Этаж
15 / 15
Отделка
нет
Грузовой лифт
есть

Расположение 4-комн. квартиры

Локация
Станция МЦД
Дом
2
Адрес
ул. Матросская Тишина, вл. 10, стр. 1, секция 2

Особенности

Продается четырехкомнатная квартира в новостройке ЖК «Ренессанс» по адресу Москва, ВАО, Сокольники, ул. Матросская Тишина, вл. 10, стр. 1. Общая площадь квартиры - 192.8 кв. м. Тип проекта, по которому построен дом — Монолитно-кирпичный, компания-застройщик — 494 УНР. Стоимость квартиры — 140 450 600 руб. Способы оплаты можно уточнить у продавца. Более подробная информация по телефону.
Инфоцентр новостроек
Инфоцентр новостроек
+7 (499) 705-91-41
Время работы 9:00 — 21:00
1-комн. квартира 41,30 м2 30 456 523
Этаж 9/20
Москва, ЖК «Ренессанс»
Сокольники
10 мин.
Сдан
1-комн. квартира 41,40 м2 29 832 958
Этаж 6/20
Москва, ЖК «Ренессанс»
Сокольники
10 мин.
Сдан
1-комн. квартира 41,50 м2 29 206 045
Этаж 3/20
Москва, ЖК «Ренессанс»
Сокольники
10 мин.
Сдан
1-комн. квартира 41,60 м2 30 432 808
Этаж 8/20
Москва, ЖК «Ренессанс»
Сокольники
10 мин.
Сдан
Посмотреть 17 квартир в ЖК «Ренессанс»
2-комн. квартира 51,30 м2 31 296 871
Этаж 7/16
Москва, ЖК «Ренессанс»
Сокольники
10 мин.
Сдан
2-комн. квартира 51,40 м2 31 354 438
Этаж 7/16
Москва, ЖК «Ренессанс»
Сокольники
10 мин.
Сдан
2-комн. квартира 51,50 м2 30 837 265
Этаж 5/16
Москва, ЖК «Ренессанс»
Сокольники
10 мин.
Сдан
2-комн. квартира 52,60 м2 31 458 226
Этаж 5/14
Москва, ЖК «Ренессанс»
Сокольники
10 мин.
Сдан
Посмотреть 73 квартиры в ЖК «Ренессанс»
3-комн. квартира 72,90 м2 62 824 077
Этаж 6/20
Москва, ЖК «Ренессанс»
Сокольники
10 мин.
Сдан
3-комн. квартира 75,00 м2 62 468 491
Этаж 2/20
Москва, ЖК «Ренессанс»
Сокольники
10 мин.
Сдан
3-комн. квартира 89,60 м2 41 744 520
Этаж 2/14
Москва, ЖК «Ренессанс»
Сокольники
10 мин.
Сдан
3-комн. квартира 93,60 м2 43 529 320
Этаж 2/14
Москва, ЖК «Ренессанс»
Сокольники
10 мин.
Сдан
Посмотреть 39 квартир в ЖК «Ренессанс»
4-комн. квартира 96,90 м2 56 916 604
Этаж 4/15
Москва, ЖК «Ренессанс»
Сокольники
10 мин.
Сдан
4-комн. квартира 101,40 м2 60 609 448
Этаж 6/15
Москва, ЖК «Ренессанс»
Сокольники
10 мин.
Сдан
4-комн. квартира 106,70 м2 84 152 220
Этаж 19/20
Москва, ЖК «Ренессанс»
Сокольники
10 мин.
Сдан
4-комн. квартира 107,40 м2 59 971 236
Этаж 2/15
Москва, ЖК «Ренессанс»
Сокольники
10 мин.
Сдан
Посмотреть 64 квартиры в ЖК «Ренессанс»
5-комн. квартира 175,00 м2 97 682 500
Этаж 7/15
Москва, ЖК «Ренессанс»
Сокольники
10 мин.
Сдан
5-комн. квартира 175,10 м2 96 791 770
Этаж 6/15
Москва, ЖК «Ренессанс»
Сокольники
10 мин.
Сдан
5-комн. квартира 175,20 м2 95 899 960
Этаж 5/15
Москва, ЖК «Ренессанс»
Сокольники
10 мин.
Сдан
Посмотреть 10 квартир в ЖК «Ренессанс»

Скидки и спецпредложения от застройщиков

ЖК «Ренессанс» на карте

Выгодные предложения на новостройки

Отзывы о ЖК «Ренессанс»

Самый полезный отзыв
Д
18 ноября 2019
Оценка:
Достоинства
Транспортная доступность
Внешний вид фасада
Подземный паркинг
Очень красивый комплекс. Ждем старта продаж, чтобы можно было пройтись по территории и зданиям и всё рассмотреть. А пока за стильными коваными воротами с вензелями просматривается ландшафтный парк с интересным дизайном, коллекцией растений и кустарников и элегантные дома со сверкающими панорамными окнами и французскими балконами. Хочется отметить и отличное расположение «Ренессанса» - рядом несколько станций метро, в том числе Большой кольцевой линии, и удобный выезд на ТТК.
Ответить
Самый новый отзыв
КС
15 декабря 2025
Оценка:
Достоинства
Подземный паркинг
Двор, окружение
Расположение
Очень нравится сам формат: закрытая охраняемая территория, подземный паркинг, комплекс выглядит «дорого». Но локация спорная: в отзывах прямо пишут про специфическое окружение (в том числе изолятор) и что вечером может быть некомфортно, плюс есть критика по транспорту и «двор маленький». Для себя пока не решил: проект классный, но место надо принять головой.
Ответить

Оставить отзыв

Добавьте отзыв, заполнив личные данные, или сначала войдите на сайт, тогда информация будет автоматически взята из личного профиля.
Оценка*