Рейтинг@Mail.ru
Переверните экран
Новостройки Квартиры Ипотека Новостройки Москвы Новостройки Подмосковья Новостройки Новой Москвы Готовые новостройки Новостройки на карте Акции от застройщиков Коммерческие помещения Продавцы и застройщики Панорамы новостроек Видеообзор новостроек Экспертиза новостроек Экология Москвы и Подмосковья Студии 1-комнатные 2-комнатные 3-комнатные Квартиры на карте Ипотечный калькулятор Семейная ипотека Военная ипотека Банки и программы Медиа Новости недвижимости Мнение эксперта Аналитика рынка Покупателю Экспертиза новостроек Эксперты и авторы О проекте Контакты Реклама на сайте Vk Youtube Telegram Дзен Машиноместа Апартаменты #траншевая ипотека #рассрочка IT-ипотека Квартиры со скидками до 40% Видео 360° новостроек Субсидированная застройщиком Rutube Поиск дома в Москве Программа реновации в Москве Новостройки премиум-класса Новостройки бизнес-класса Рассрочка Траншевая ипотека ГАЛС Дома и коттеджи Бизнес-центры Бизнес-центры в Москве Бизнес-центры рядом с метро Строящиеся бизнес-центры Бизнес-центры класса A Бизнес-центры класса B ЛСР
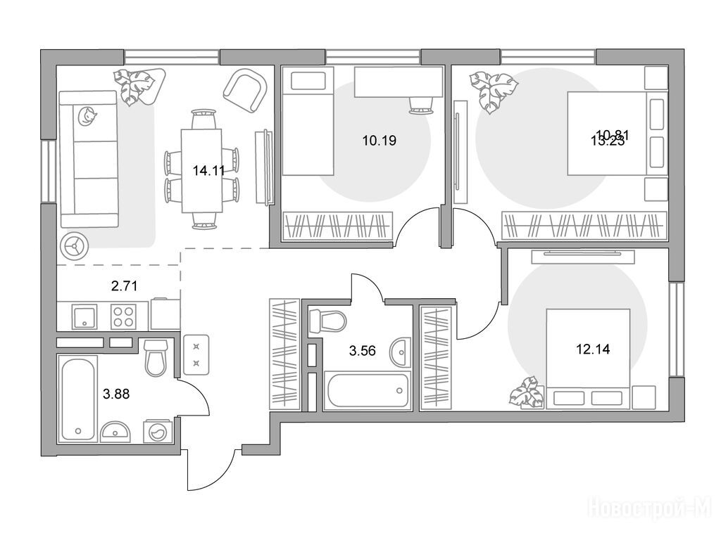
4-комн. квартира, 70.63 м2, 3 этаж
Срок сдачи 4 квартал 2027 года
12 665 541 
14 954 495
179 322 2
обновлено 17 декабря

Описание 4-комн. квартиры

Новостройка
Застройщик
Срок ГК
4 квартал 2027 года
Стадия строительства
котлован/фундамент
Общая площадь
70.63 м2
Этаж
3 / 6
Отделка
нет
Грузовой лифт
есть

Расположение 4-комн. квартиры

Станция МЦД
Дом
7
Адрес
вблизи д. Николо-Урюпино, корп. 7, секция 1

Способы покупки

Особенности

Продается четырехкомнатная квартира в новостройке ЖК «Аникеевский» по адресу Московская область, Красногорск городской округ, Красногорск, вблизи д. Николо-Урюпино, корп. 7. Общая площадь квартиры - 70.63 кв. м. Тип проекта, по которому построен дом — Монолитно-кирпичный, компания-застройщик — ГК «Гранель». Стоимость квартиры — 12 665 541 руб. Способы оплаты можно уточнить у продавца. Срок сдачи — 4 квартал 2027. Более подробная информация по телефону.

Правовые документы

Инфоцентр новостроек
Инфоцентр новостроек
+7 (499) 705-91-41
Время работы 9:00 — 21:00
Посмотреть все спецпредложения
Этаж 13/14
МО, ЖК «Аникеевский»
Аникеевка
5 мин.
Строится
студия 21,05 м2 5 853 870
Этаж 12/14
МО, ЖК «Аникеевский»
Аникеевка
5 мин.
Строится
Этаж 1/6
МО, ЖК «Аникеевский»
Аникеевка
5 мин.
Строится
студия 22,16 м2 6 162 554
Этаж 13/14
МО, ЖК «Аникеевский»
Аникеевка
5 мин.
Строится
Посмотреть 91 квартира в ЖК «Аникеевский»
1-комн. квартира 34,31 м2 7 583 760
Этаж 12/14
МО, ЖК «Аникеевский»
Аникеевка
5 мин.
Строится
Посмотреть 5 квартир в ЖК «Аникеевский»
2-комн. квартира 30,58 м2 7 756 327
Этаж 14/14
МО, ЖК «Аникеевский»
Аникеевка
5 мин.
Строится
2-комн. квартира 31,01 м2 7 865 393
Этаж 14/14
МО, ЖК «Аникеевский»
Аникеевка
5 мин.
Строится
2-комн. квартира 31,09 м2 6 544 074
Этаж 13/14
МО, ЖК «Аникеевский»
Аникеевка
5 мин.
Строится
2-комн. квартира 31,48 м2 6 867 665
Этаж 14/14
МО, ЖК «Аникеевский»
Аникеевка
5 мин.
Строится
Посмотреть 131 квартира в ЖК «Аникеевский»
3-комн. квартира 49,01 м2 10 010 534
Этаж 8/14
МО, ЖК «Аникеевский»
Аникеевка
5 мин.
Строится
3-комн. квартира 50,42 м2 10 298 534
Этаж 13/14
МО, ЖК «Аникеевский»
Аникеевка
5 мин.
Строится
Этаж 2/5
МО, ЖК «Аникеевский»
Аникеевка
5 мин.
Строится
3-комн. квартира 51,00 м2 12 000 015
Этаж 5/5
МО, ЖК «Аникеевский»
Аникеевка
5 мин.
Строится
Посмотреть 108 квартир в ЖК «Аникеевский»
Этаж 5/6
МО, ЖК «Аникеевский»
Аникеевка
5 мин.
Строится
Этаж 1/6
МО, ЖК «Аникеевский»
Аникеевка
5 мин.
Строится
4-комн. квартира 73,04 м2 14 813 718
Этаж 3/14
МО, ЖК «Аникеевский»
Аникеевка
5 мин.
Строится
4-комн. квартира 73,88 м2 14 275 617
Этаж 2/14
МО, ЖК «Аникеевский»
Аникеевка
5 мин.
Строится
Посмотреть 15 квартир в ЖК «Аникеевский»

Скидки и спецпредложения от застройщиков

ЖК «Аникеевский» на карте

Выгодные предложения на новостройки

Отзывы о ЖК «Аникеевский»

Самый полезный отзыв
П
14 апреля 2022
Оценка:
Экология
Двор, окружение
Недавно ездили в офис продаж. Понравился проект, высота застройки до 6 этажей, первые этажи будут коммерческие, территорию благоустроят, рядом лес. До метро 8-10 минут на транспорте. раздумываем о покупке квартиры тут, для семьи идеальный вариант.
Показать все комментарии
Ответить
Полезный отзыв?
Самый новый отзыв
ЛЮ
16 июня
Оценка:
Хочется очень поэтично высказаться. Этот комплекс словно волшебное сочетание двух миров: он объединяет гармонию загородной жизни с уютом городского комфорта. Здесь, словно на перекрестке мечтаний, каждый может насладиться тишиной и природой, не расставаясь с современными удобствами. Это как уютный дом в лесной глуши, но с доступом к всем благам города — место, где можно сбежать от суеты и одновременно оставаться частью большого мегаполиса. Такой баланс делает этот комплекс по-настоящему уникальным и вдохновляющим для тех, кто ценит гармонию и качество жизни.
Ответить
Полезный отзыв?
Добавьте отзыв, заполнив личные данные, или сначала войдите на сайт, тогда информация будет автоматически взята из личного профиля.
Оценка*