Рейтинг@Mail.ru
Переверните экран
Новостройки Квартиры Ипотека Новостройки Москвы Новостройки Подмосковья Новостройки Новой Москвы Готовые новостройки Новостройки на карте Акции от застройщиков Коммерческие помещения Продавцы и застройщики Панорамы новостроек Видеообзор новостроек Экспертиза новостроек Экология Москвы и Подмосковья Студии 1-комнатные 2-комнатные 3-комнатные Квартиры на карте Ипотечный калькулятор Семейная ипотека Военная ипотека Банки и программы Медиа Новости недвижимости Мнение эксперта Аналитика рынка Покупателю Экспертиза новостроек Эксперты и авторы О проекте Контакты Реклама на сайте Vk Youtube Telegram Дзен Машиноместа Апартаменты #траншевая ипотека #рассрочка ИТ-ипотека Квартиры со скидками до 40% Видео 360° новостроек Субсидированная застройщиком Rutube Поиск дома в Москве Программа реновации в Москве Новостройки премиум-класса Новостройки бизнес-класса Рассрочка Траншевая ипотека Дома и коттеджи Бизнес-центры Бизнес-центры в Москве Бизнес-центры рядом с метро Строящиеся бизнес-центры Бизнес-центры класса A Бизнес-центры класса B Ипотека со ставкой 0,1%
Данная квартира является лидером продаж среди четырехкомнатных квартир в ЖК «1-й Измайловский» (Первом Измайловском) по данным Росреестра
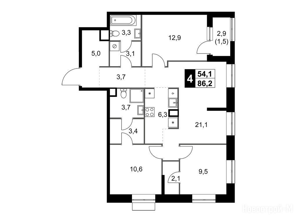
4-комн. квартира, 86.20 м2, 12 этаж
Срок сдачи 3 квартал 2028 года
27 841 652 
29 937 260
322 989 2
обновлено 29 марта

Описание 4-комн. квартиры

Застройщик
Срок ГК
3 квартал 2028 года
Стадия строительства
монтаж нижних этажей
Тип проекта
монолитно-панельный
Общая площадь
86.20 м2
Жилая площадь
54.10 м2
Площадь кухни
6.30 м2
Этаж
12 / 32
Отделка
предчистовая

Расположение 4-комн. квартиры

Локация
Станция МЦК
Дом
4
Адрес
ул. Монтажная вл. 8/24, секция 8

Способы покупки

Особенности

Продается четырехкомнатная квартира в новостройке ЖК «1-й Измайловский» (Первый Измайловский) по адресу Москва, ВАО, Гольяново, ул. Монтажная вл. 8/24. Общая площадь квартиры - 86.2 кв. м. Тип проекта, по которому построен дом — Монолитно-панельный, компания-застройщик — ГК ФСК, ДСК-1. Стоимость квартиры — 27 841 652 руб. Способы оплаты можно уточнить у продавца. Срок сдачи — 3 квартал 2028. Более подробная информация по телефону.
Время работы 9:00 — 21:00
Выбирайте квартиру в ЖК «1-й Измайловский» (Первый Измайловский) по ценам от застройщика

Похожие квартиры в ЖК «1-й Измайловский» (Первом Измайловском)

19 этаж
из 32 3 квартал 2028
Москва, ВАО
Щелковская
22 мин.
4
Корпус
предчистовая
Отделка
2.82 м
Потолки
ЖК «1-й Измайловский» (Первый Измайловский)
28 362 731 30 497 560
Россельхозбанк, Уралсиб, Банк Санкт-Петербург, Металлинвестбанк, Сургутнефтегазбанк, СберБанк, ВТБ, Московский Кредитный Банк, ДОМ.РФ, Совкомбанк, Абсолют Банк, МТС Банк
6.00%
Ставка
20.01%
Первый взнос
от 170 049 /мес.
Все варианты
21 этаж
из 32 3 квартал 2028
Москва, ВАО
Щелковская
22 мин.
4
Корпус
предчистовая
Отделка
2.82 м
Потолки
ЖК «1-й Измайловский» (Первый Измайловский)
28 402 814 30 540 660
Россельхозбанк, Уралсиб, Банк Санкт-Петербург, Металлинвестбанк, Сургутнефтегазбанк, СберБанк, ВТБ, Московский Кредитный Банк, ДОМ.РФ, Совкомбанк, Абсолют Банк, МТС Банк
6.00%
Ставка
20.01%
Первый взнос
от 170 289 /мес.
Все варианты
Этаж 5/10
Москва, ЖК «1-й Измайловский» (Первый Измайловский)
Щелковская
22 мин.
Строится
студия 19,90 м2 13 400 660
Этаж 3/25
Москва, ЖК «1-й Измайловский» (Первый Измайловский)
Щелковская
22 мин.
Строится
студия 20,90 м2 13 291 021
Этаж 2/32
Москва, ЖК «1-й Измайловский» (Первый Измайловский)
Щелковская
22 мин.
Строится
студия 21,00 м2 13 612 410
Этаж 10/25
Москва, ЖК «1-й Измайловский» (Первый Измайловский)
Щелковская
22 мин.
Строится
Посмотреть 47 квартир в ЖК «1-й Измайловский» (Первом Измайловском)
1-комн. квартира 30,40 м2 15 679 651
Этаж 10/10
Москва, ЖК «1-й Измайловский» (Первый Измайловский)
Щелковская
22 мин.
Строится
1-комн. квартира 30,60 м2 15 822 648
Этаж 19/24
Москва, ЖК «1-й Измайловский» (Первый Измайловский)
Щелковская
22 мин.
Строится
1-комн. квартира 31,60 м2 16 178 094
Этаж 16/24
Москва, ЖК «1-й Измайловский» (Первый Измайловский)
Щелковская
22 мин.
Строится
1-комн. квартира 32,40 м2 15 918 736
Этаж 9/32
Москва, ЖК «1-й Измайловский» (Первый Измайловский)
Щелковская
22 мин.
Строится
Посмотреть 72 квартиры в ЖК «1-й Измайловский» (Первом Измайловском)
2-комн. квартира 42,20 м2 16 862 318
Этаж 19/25
Москва, ЖК «1-й Измайловский» (Первый Измайловский)
Щелковская
22 мин.
Строится
2-комн. квартира 43,00 м2 17 060 680
Этаж 10/10
Москва, ЖК «1-й Измайловский» (Первый Измайловский)
Щелковская
22 мин.
Строится
2-комн. квартира 44,00 м2 20 020 440
Этаж 4/15
Москва, ЖК «1-й Измайловский» (Первый Измайловский)
Щелковская
22 мин.
Строится
2-комн. квартира 44,30 м2 15 822 055
Этаж 2/32
Москва, ЖК «1-й Измайловский» (Первый Измайловский)
Щелковская
22 мин.
Строится
Посмотреть 84 квартиры в ЖК «1-й Измайловский» (Первом Измайловском)
3-комн. квартира 54,10 м2 23 974 848
Этаж 5/15
Москва, ЖК «1-й Измайловский» (Первый Измайловский)
Щелковская
22 мин.
Строится
3-комн. квартира 61,20 м2 21 770 370
Этаж 9/32
Москва, ЖК «1-й Измайловский» (Первый Измайловский)
Щелковская
22 мин.
Строится
3-комн. квартира 61,60 м2 21 941 304
Этаж 11/32
Москва, ЖК «1-й Измайловский» (Первый Измайловский)
Щелковская
22 мин.
Строится
3-комн. квартира 63,30 м2 23 725 346
Этаж 3/10
Москва, ЖК «1-й Измайловский» (Первый Измайловский)
Щелковская
22 мин.
Строится
Посмотреть 18 квартир в ЖК «1-й Измайловский» (Первом Измайловском)
4-комн. квартира 84,90 м2 36 138 194
Этаж 4/15
Москва, ЖК «1-й Измайловский» (Первый Измайловский)
Щелковская
22 мин.
Строится
4-комн. квартира 85,30 м2 24 258 808
Этаж 2/32
Москва, ЖК «1-й Измайловский» (Первый Измайловский)
Щелковская
22 мин.
Строится
4-комн. квартира 86,00 м2 27 697 074
Этаж 9/32
Москва, ЖК «1-й Измайловский» (Первый Измайловский)
Щелковская
22 мин.
Строится
4-комн. квартира 86,20 м2 28 362 731
Этаж 19/32
Москва, ЖК «1-й Измайловский» (Первый Измайловский)
Щелковская
22 мин.
Строится
Посмотреть 10 квартир в ЖК «1-й Измайловский» (Первом Измайловском)

Скидки и спецпредложения от застройщиков

ЖК «1-й Измайловский» (Первый Измайловский) на карте

Выгодные предложения на новостройки

Отзывы о ЖК «1-й Измайловский» (Первом Измайловском)

Самый полезный отзыв
П
04 декабря 2023
Оценка:
Не ожидала, что ЖК Первый Измайловский по уровню комфорта прям как бизнес, честное слово. Дворы без машин, огороженка, без барьеров – да тут как в хорошем кино. Плюс камеры на детских площадках! А в квартирах улучшенная шумоизоляция и «Умный дом».
Ответить
Самый новый отзыв
V
26 января
Оценка:
Темпы строительства хорошие, уже дома из-за забора вырисовываются на десятки этажей) Мы покупали на котловане и прям переживали, чтобы стройка не стояла, но дело движется бодро, ждем сдачи первой очереди)
Ответить

Оставить отзыв

Добавьте отзыв, заполнив личные данные, или сначала войдите на сайт, тогда информация будет автоматически взята из личного профиля.
Оценка*