Рейтинг@Mail.ru
Переверните экран
Новостройки Квартиры Ипотека Новостройки Москвы Новостройки Подмосковья Новостройки Новой Москвы Готовые новостройки Новостройки на карте Акции от застройщиков Коммерческие помещения Продавцы и застройщики Панорамы новостроек Видеообзор новостроек Экспертиза новостроек Экология Москвы и Подмосковья Студии 1-комнатные 2-комнатные 3-комнатные Квартиры на карте Ипотечный калькулятор Семейная ипотека Военная ипотека Банки и программы Медиа Новости недвижимости Мнение эксперта Аналитика рынка Покупателю Экспертиза новостроек Эксперты и авторы О проекте Контакты Реклама на сайте Vk Youtube Telegram Дзен Машиноместа Апартаменты #траншевая ипотека #рассрочка IT-ипотека Квартиры со скидками до 40% Видео 360° новостроек Субсидированная застройщиком Rutube Поиск дома в Москве Программа реновации в Москве Новостройки премиум-класса Новостройки бизнес-класса Рассрочка Траншевая ипотека ГАЛС Дома и коттеджи Бизнес-центры Бизнес-центры в Москве Бизнес-центры рядом с метро Строящиеся бизнес-центры Бизнес-центры класса A Бизнес-центры класса B ЛСР

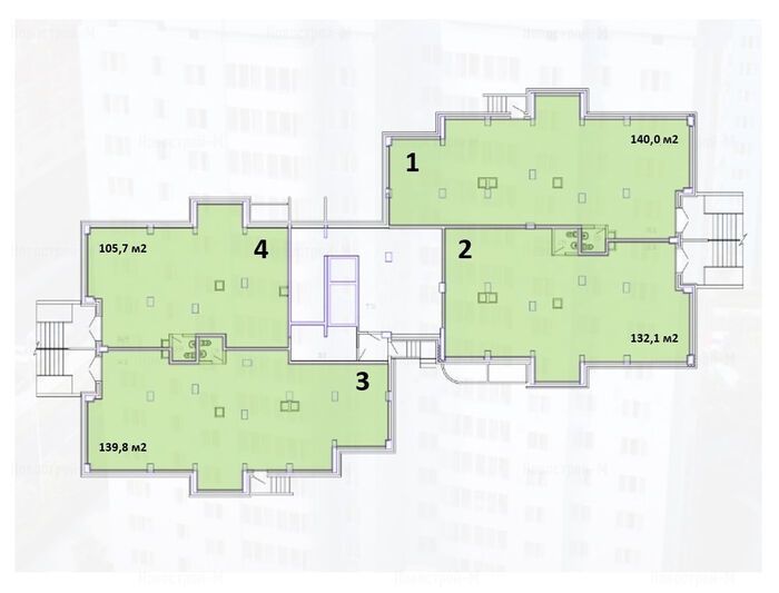
Помещение свободного назначения, 105.70 м 2

Московская область, Лосино-Петровский городской округ, р.п. Свердловский, ул. Заречная, д. 8
95 130 /мес.
900 2
обновлено 17 декабря

Описание

Номер лота
7
Новостройка
Срок ГК
Сдан
Стадия строительства
Тип здания
встроенное помещение
Площадь
105.70 м2, свободная планировка
Высота потолка
3.80
Вход в помещение
отдельный с улицы
Водопровод
есть
Канализация
есть

Расположение

Район
Лосино-Петровский городской округ
Район
р.п. Свердловский
Метро
Ж/Д-станция
Чкаловская
15 мин.
Шоссе
Щёлковское 22 км от МКАД
Дом
20
Адрес
ул. Заречная, д. 8

Особенности

Сдаётся помещение свободного назначения площадью 105.7 кв. м. в новостройке ЖК «Лукино-Варино» по адресу Московская область, Лосино-Петровский городской округ, р.п. Свердловский, ул. Заречная, д. 8. Помещение со свободной планировкой. Высота потолков 3.8 м. Отдельный вход с улицы. Стоимость аренды помещения — 95 130 руб. в месяц . Способы оплаты и более подробная информация по телефону.

Планировка

Корпус 20 (Сдан)
Посмотреть все спецпредложения

Еще помещения в ЖК «Лукино-Варино»

Аренда
Дом сдан
Московская область, Лосино-Петровский городской округ
Щелковская
55 мин.
3.80
Высота потолка
Паркинг
Окна
отдельный с улицы
Вход
20
Корпус
ЖК «Лукино-Варино»
Аренда
Дом сдан
Московская область, Лосино-Петровский городской округ
Щелковская
55 мин.
3.80
Высота потолка
Паркинг
Окна
отдельный с улицы
Вход
20
Корпус
ЖК «Лукино-Варино»
Аренда
Дом сдан
Московская область, Лосино-Петровский городской округ
Щелковская
55 мин.
3.80
Высота потолка
Паркинг
Окна
отдельный с улицы
Вход
22
Корпус
ЖК «Лукино-Варино»
Аренда
Дом сдан
Московская область, Лосино-Петровский городской округ
Щелковская
55 мин.
3.80
Высота потолка
Паркинг
Окна
отдельный с улицы
Вход
22
Корпус
ЖК «Лукино-Варино»

Скидки и спецпредложения от застройщиков

ЖК «Лукино-Варино» на карте

Выгодные предложения на новостройки