Рейтинг@Mail.ru
Переверните экран
Новостройки Квартиры Ипотека Новостройки Москвы Новостройки Подмосковья Новостройки Новой Москвы Готовые новостройки Новостройки на карте Акции от застройщиков Коммерческие помещения Продавцы и застройщики Панорамы новостроек Видеообзор новостроек Экспертиза новостроек Экология Москвы и Подмосковья Студии 1-комнатные 2-комнатные 3-комнатные Квартиры на карте Ипотечный калькулятор Семейная ипотека Военная ипотека Банки и программы Медиа Новости недвижимости Мнение эксперта Аналитика рынка Покупателю Экспертиза новостроек Эксперты и авторы О проекте Контакты Реклама на сайте Vk Youtube Telegram Дзен Машиноместа Апартаменты #траншевая ипотека #рассрочка ИТ-ипотека Квартиры со скидками до 40% Видео 360° новостроек Субсидированная застройщиком Rutube Поиск дома в Москве Программа реновации в Москве Новостройки премиум-класса Новостройки бизнес-класса Рассрочка Траншевая ипотека Дома и коттеджи Коттеджные поселки в Новой Москве Готовые коттеджные поселки Строящиеся коттеджные поселки Коттеджные поселки в лесу Коттеджные поселки у водоема Коттеджные поселки в ипотеку Бизнес-центры Коттеджи Ипотека со ставкой 0,1%

Помещение свободного назначения, 57.70 м 2

Москва, ЮЗАО, Обручевский, ул. Академика Семенихина, 2
27 637 576
478 987 2
обновлено 07 апреля

Описание

Номер лота
85
Срок ГК
4 квартал 2026
Стадия строительства
отделка фасада
Тип здания
бизнес-центр
Этаж
13
Площадь
57.70 м2, свободная планировка
Окна
с видом на улицу
Вход в помещение
общий с улицы
Электроснабжение
есть
Пожарная сигнализация
есть
Водопровод
есть
Канализация
есть
Рекомендованное назначение
Офис

Расположение

Район
ЮЗАО
Район
Обручевский
Дом
БЦ
Адрес
ул. Академика Семенихина, 2

Особенности

Продаётся помещение свободного назначения площадью 57.7 кв. м. в новостройке Бизнес-центр Level Work Воронцовская по адресу Москва, ЮЗАО, Обручевский, ул. Академика Семенихина, 2. Помещение со свободной планировкой. Окна с видом на улицу. Высота потолков 0.00 м. Общий вход с улицы. Стоимость помещения — 27 637 576 руб. Способы оплаты и более подробная информация по телефону.

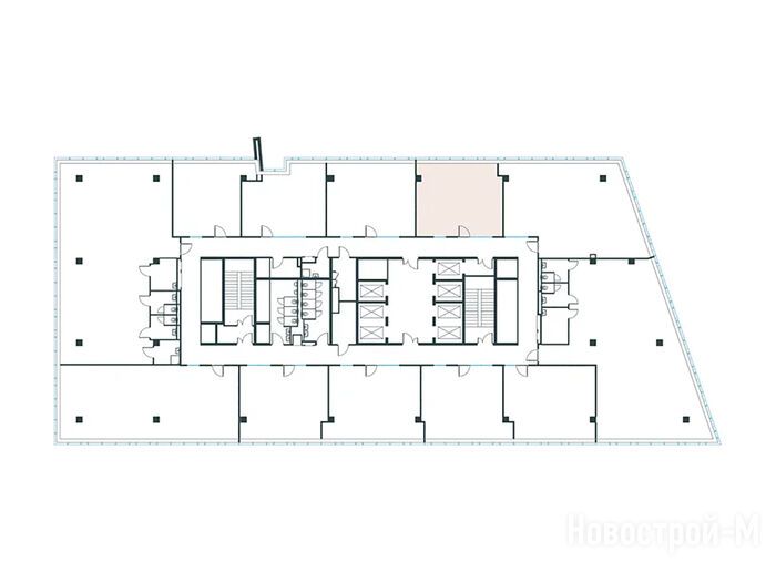
Планировка

Корпус БЦ (ГК 4 квартал 2026)
Где купить помещение
Задать вопрос
Выбирайте квартиру в Бизнес-центр Level Work Воронцовская по ценам от застройщика Level Group (Левел Групп).
Посмотреть все спецпредложения

Еще помещения в Бизнес-центр Level Work Воронцовская

Продажа
4 квартал 2026
Москва, ЮЗАО
Воронцовская
1 мин.
3.70
Высота потолка
есть
Паркинг
Окна
общий с улицы
Вход
БЦ
Корпус
Бизнес-центр Level Work Воронцовская
Продажа
4 квартал 2026
Москва, ЮЗАО
Воронцовская
1 мин.
3.70
Высота потолка
есть
Паркинг
Окна
общий с улицы
Вход
БЦ
Корпус
Бизнес-центр Level Work Воронцовская
Продажа
4 квартал 2026
Москва, ЮЗАО
Воронцовская
1 мин.
3.70
Высота потолка
есть
Паркинг
Окна
общий с улицы
Вход
БЦ
Корпус
Бизнес-центр Level Work Воронцовская
Продажа
4 квартал 2026
Москва, ЮЗАО
Воронцовская
1 мин.
3.70
Высота потолка
есть
Паркинг
Окна
общий с улицы
Вход
БЦ
Корпус
Бизнес-центр Level Work Воронцовская

Скидки и спецпредложения от застройщиков

Бизнес-центр Level Work Воронцовская на карте

Выгодные предложения на новостройки