Рейтинг@Mail.ru
Переверните экран
Новостройки Квартиры Ипотека Новостройки Москвы Новостройки Подмосковья Новостройки Новой Москвы Готовые новостройки Новостройки на карте Акции от застройщиков Коммерческие помещения Продавцы и застройщики Панорамы новостроек Видеообзор новостроек Экспертиза новостроек Экология Москвы и Подмосковья Студии 1-комнатные 2-комнатные 3-комнатные Квартиры на карте Ипотечный калькулятор Семейная ипотека Военная ипотека Банки и программы Медиа Новости недвижимости Мнение эксперта Аналитика рынка Покупателю Экспертиза новостроек Эксперты и авторы О проекте Контакты Реклама на сайте Vk Youtube Telegram Дзен Машиноместа Апартаменты #траншевая ипотека #рассрочка ИТ-ипотека Квартиры со скидками до 40% Видео 360° новостроек Субсидированная застройщиком Rutube Поиск дома в Москве Программа реновации в Москве Новостройки премиум-класса Новостройки бизнес-класса Рассрочка Траншевая ипотека Дома и коттеджи Бизнес-центры Бизнес-центры в Москве Бизнес-центры рядом с метро Строящиеся бизнес-центры Бизнес-центры класса A Бизнес-центры класса B Ипотека со ставкой 0,1%

Помещение свободного назначения, 92.70 м 2

Московская область, Котельники городской округ, Котельники, Белая Дача парк, корп. 16.2
26 734 680
288 400 2
обновлено 03 апреля
Узнать про коммерческие помещения

Описание

Номер лота
ПОН 37
Новостройка
Срок ГК
1 квартал 2028
Стадия строительства
Тип здания
встроенное помещение
Этаж
1
Площадь
92.70 м2
Высота потолка
4.43
Окна
витринные с видом во двор и на улицу
Вход в помещение
отдельный с улицы
Выделенная электрическая мощность
0.2 кВт/кв.м
Водопровод
есть
Канализация
есть
Рекомендованное назначение
Свободное назначение

Расположение

Район
Котельники городской округ
Поселок
Котельники
Станция МЦК
Люберцы-1
22 мин.
Шоссе
Новорязанское 2 км от МКАД
Дом
16.2
Адрес
Белая Дача парк, корп. 16.2 , секция 8

Особенности

Продаётся нежилое помещение свободного назначения в новом жилом районе Белая Дача парк от ПИК. Открытая планировка, витринное остекление, удобный вход на уровне земли. Помещение (номер на площадке: №37) расположено по адресу: Московская область, городской округ Котельники, г. Котельники, корпус № 16 (корпус 16.1, корпус 16.2). Продажа напрямую от застройщика.

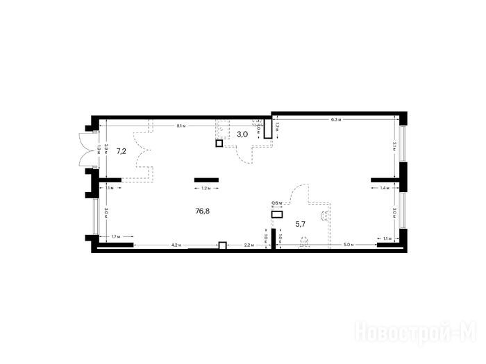
Планировка

Корпус 16.2, секция 8 (ГК 1 квартал 2028)
Где купить помещение
ПИК
ПИК
02:00 — 21:00
Заказать обратный звонок
Задать вопрос
Выбирайте квартиру в Белая Дача парк по ценам от застройщика ПИК.
Посмотреть все спецпредложения

Еще помещения в Белая Дача парк

Продажа
1 квартал 2028
Московская область, Котельники городской округ
Котельники
7 мин.
4.35
Высота потолка
Паркинг
витринные
Окна
отдельный со двора
Вход
16.1
Корпус
Белая Дача парк
Продажа
1 квартал 2028
Московская область, Котельники городской округ
Котельники
7 мин.
4.16
Высота потолка
Паркинг
витринные
Окна
отдельный с улицы
Вход
16.1
Корпус
Белая Дача парк
Продажа
1 квартал 2028
Московская область, Котельники городской округ
Котельники
7 мин.
4.50
Высота потолка
Паркинг
витринные
Окна
отдельный с улицы
Вход
16.1
Корпус
Белая Дача парк
Продажа
1 квартал 2028
Московская область, Котельники городской округ
Котельники
7 мин.
19.00
Высота потолка
Паркинг
витринные
Окна
отдельный с улицы
Вход
16.1
Корпус
Белая Дача парк

Скидки и спецпредложения от застройщиков

Белая Дача парк на карте

Выгодные предложения на новостройки