Рейтинг@Mail.ru
Переверните экран
Новостройки Квартиры Ипотека Новостройки Москвы Новостройки Подмосковья Новостройки Новой Москвы Готовые новостройки Новостройки на карте Акции от застройщиков Коммерческие помещения Продавцы и застройщики Панорамы новостроек Видеообзор новостроек Экспертиза новостроек Экология Москвы и Подмосковья Студии 1-комнатные 2-комнатные 3-комнатные Квартиры на карте Ипотечный калькулятор Семейная ипотека Военная ипотека Банки и программы Медиа Новости недвижимости Мнение эксперта Аналитика рынка Покупателю Экспертиза новостроек Эксперты и авторы О проекте Контакты Реклама на сайте Vk Youtube Telegram Дзен Машиноместа Апартаменты #траншевая ипотека #рассрочка IT-ипотека Квартиры со скидками до 40% Видео 360° новостроек Субсидированная застройщиком Rutube Поиск дома в Москве Программа реновации в Москве Новостройки премиум-класса Новостройки бизнес-класса Рассрочка Траншевая ипотека ГАЛС Дома и коттеджи Бизнес-центры Бизнес-центры в Москве Бизнес-центры рядом с метро Строящиеся бизнес-центры Бизнес-центры класса A Бизнес-центры класса B ЛСР
Данная квартира является лидером продаж среди трехкомнатных квартир в ЖК «Преображенская площадь» по данным Росреестра
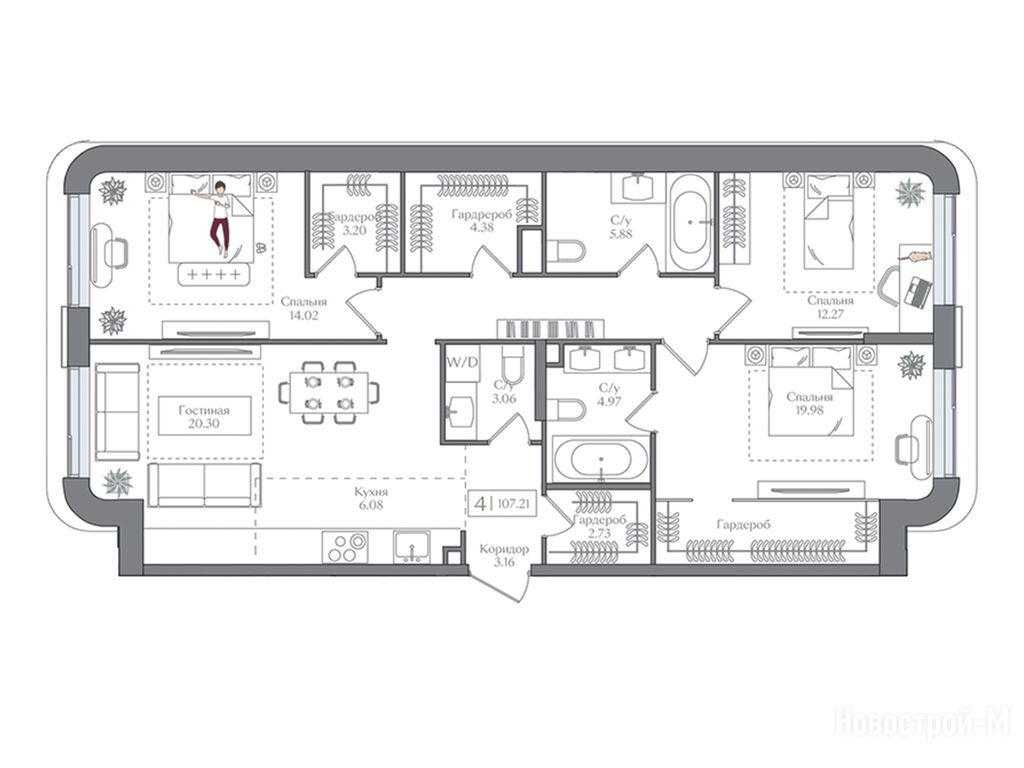
3-комн. квартира, 107.21 м2, 13 этаж
Срок сдачи 2 квартал 2027 года
55 487 735 
517 561 2
обновлено 17 декабря

Описание 3-комн. квартиры

Застройщик
Срок ГК
2 квартал 2027 года
Стадия строительства
монтаж нижних этажей
Общая площадь
107.21 м2
Жилая площадь
46.27 м2
Площадь кухни
26.38 м2
Этаж
13 / 16

Расположение 3-комн. квартиры

Локация
Станция МЦД
Дом
5 (2 очередь)
Адрес
ул. 1-я Бухвостова, вл.12/11, секция 5.3

Способы покупки

Особенности

Продается трехкомнатная квартира в новостройке ЖК «Преображенская площадь» по адресу Москва, ВАО, Преображенское, ул. 1-я Бухвостова, вл.12/11. Общая площадь квартиры - 107.21 кв. м. Тип проекта, по которому построен дом — Монолитно-кирпичный, компания-застройщик — Regions Development. Стоимость квартиры — 55 487 735 руб. Способы оплаты можно уточнить у продавца. Срок сдачи — 2 квартал 2027. Более подробная информация по телефону.
Инфоцентр новостроек
Инфоцентр новостроек
+7 (499) 705-91-41
Время работы 9:00 — 21:00
Посмотреть все спецпредложения
1-комн. квартира 38,20 м2 27 273 880
Этаж 17/17
Москва, ЖК «Преображенская площадь»
Преображенская площадь
3 мин.
Сдан
1-комн. квартира 40,94 м2 23 846 981
Этаж 12/16
Москва, ЖК «Преображенская площадь»
Преображенская площадь
3 мин.
Строится
1-комн. квартира 41,30 м2 25 769 584
Этаж 13/17
Москва, ЖК «Преображенская площадь»
Преображенская площадь
3 мин.
Сдан
1-комн. квартира 42,70 м2 30 184 921
Этаж 17/17
Москва, ЖК «Преображенская площадь»
Преображенская площадь
3 мин.
Сдан
Посмотреть 90 квартир в ЖК «Преображенская площадь»
2-комн. квартира 64,10 м2 44 419 887
Этаж 17/17
Москва, ЖК «Преображенская площадь»
Преображенская площадь
3 мин.
Сдан
2-комн. квартира 65,80 м2 40 701 618
Этаж 6/12
Москва, ЖК «Преображенская площадь»
Преображенская площадь
3 мин.
Сдан
2-комн. квартира 65,90 м2 35 847 126
Этаж 12/16
Москва, ЖК «Преображенская площадь»
Преображенская площадь
3 мин.
Строится
2-комн. квартира 66,40 м2 42 305 858
Этаж 5/12
Москва, ЖК «Преображенская площадь»
Преображенская площадь
3 мин.
Сдан
Посмотреть 115 квартир в ЖК «Преображенская площадь»
3-комн. квартира 78,20 м2 45 093 132
Этаж 13/17
Москва, ЖК «Преображенская площадь»
Преображенская площадь
3 мин.
Сдан
3-комн. квартира 88,10 м2 48 188 903
Этаж 13/17
Москва, ЖК «Преображенская площадь»
Преображенская площадь
3 мин.
Сдан
3-комн. квартира 89,90 м2 45 041 545
Этаж 2/17
Москва, ЖК «Преображенская площадь»
Преображенская площадь
3 мин.
Сдан
3-комн. квартира 94,20 м2 51 417 804
Этаж 6/17
Москва, ЖК «Преображенская площадь»
Преображенская площадь
3 мин.
Сдан
Посмотреть 87 квартир в ЖК «Преображенская площадь»
4-комн. квартира 115,10 м2 78 810 657
Этаж 17/17
Москва, ЖК «Преображенская площадь»
Преображенская площадь
3 мин.
Сдан

Скидки и спецпредложения от застройщиков

ЖК «Преображенская площадь» на карте

Выгодные предложения на новостройки

Отзывы о ЖК «Преображенская площадь»

Самый полезный отзыв
Е
11 июня 2020
Оценка:
Транспортная доступность
Скорость строительства
Добрый день!Можно узнать ,когда начнутся продажи комплекса?
Ответить
Полезный отзыв?
Самый новый отзыв
ПФ
19 мая
Оценка:
Планировки
Способы покупки
Двор, окружение
Расположение
Рядом несколько парков, во дворе будет сквер с тренажерами и развлечениями для детей. Метро недалеко. Современная архитектура - тоже хорошо. Планировки продуманные, можно разместиться даже в небольших вполне комфортно
Ответить
Полезный отзыв?
Добавьте отзыв, заполнив личные данные, или сначала войдите на сайт, тогда информация будет автоматически взята из личного профиля.
Оценка*