Рейтинг@Mail.ru
Переверните экран
Новостройки Квартиры Ипотека Новостройки Москвы Новостройки Подмосковья Новостройки Новой Москвы Готовые новостройки Новостройки на карте Акции от застройщиков Коммерческие помещения Продавцы и застройщики Панорамы новостроек Видеообзор новостроек Экспертиза новостроек Экология Москвы и Подмосковья Студии 1-комнатные 2-комнатные 3-комнатные Квартиры на карте Ипотечный калькулятор Семейная ипотека Военная ипотека Банки и программы Медиа Новости недвижимости Мнение эксперта Аналитика рынка Покупателю Экспертиза новостроек Эксперты и авторы О проекте Контакты Реклама на сайте Vk Youtube Telegram Дзен Машиноместа Апартаменты #траншевая ипотека #рассрочка IT-ипотека Квартиры со скидками до 35% Видео 360° новостроек Субсидированная застройщиком Rutube Поиск дома в Москве Программа реновации в Москве Новостройки премиум-класса Новостройки бизнес-класса Рассрочка Траншевая ипотека Дома и коттеджи Бизнес-центры Бизнес-центры в Москве Бизнес-центры рядом с метро Строящиеся бизнес-центры Бизнес-центры класса A Бизнес-центры класса B
Данная квартира является лидером продаж среди трехкомнатных квартир в ЖК «Пироговская ривьера» по данным Росреестра
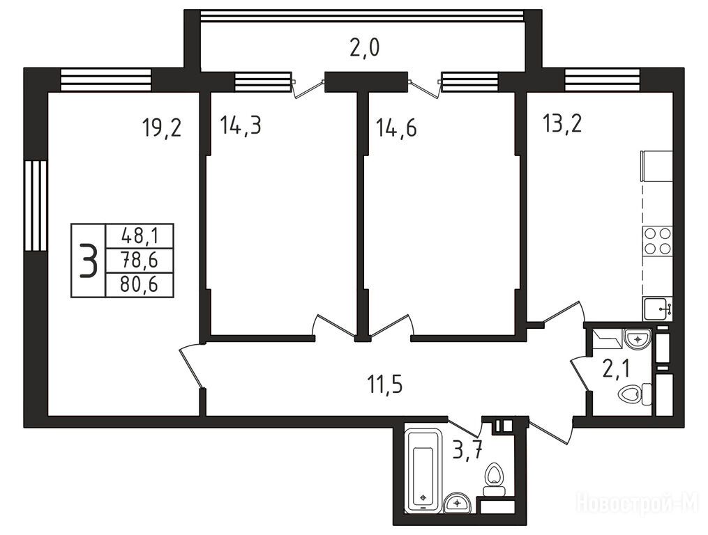
3-комн. квартира, 80.60 м2, 5 этаж
Сдан
14 745 196 
182 943 2
обновлено 5 февраля

Описание 3-комн. квартиры

Застройщик
Срок ГК
Дом сдан
Стадия строительства
выдача ключей + заселение
Тип проекта
Общая площадь
80.60 м2
Этаж
5 / 9
Отделка
нет

Расположение 3-комн. квартиры

Метро
Станция МЦК
Ж/Д-станция
Дом
13 (8к.1)
Адрес
ул. Ильинского, д. 8, корп. 1, секция 1

Способы покупки

Особенности

Продается трехкомнатная квартира в новостройке ЖК «Пироговская ривьера» по адресу Московская область, Мытищи городской округ, Пироговский Г/П, Пирогово дер., ул. Ильинского, д. 8, корп. 1. Общая площадь квартиры - 80.6 кв. м. Тип проекта, по которому построен дом — Монолит,Монолитно-кирпичный, компания-застройщик — КомфортИнвест. Стоимость квартиры — 14 745 196 руб. Способы оплаты можно уточнить у продавца. Более подробная информация по телефону.

Правовые документы

Посмотреть все спецпредложения
студия 25,50 м2 5 431 952
Этаж 9/9
МО, ЖК «Пироговская ривьера»
Медведково
26 мин.
Сдан
студия 25,60 м2 5 371 567
Этаж 7/9
МО, ЖК «Пироговская ривьера»
Медведково
26 мин.
Сдан
студия 25,70 м2 5 407 222
Этаж 5/6
МО, ЖК «Пироговская ривьера»
Медведково
26 мин.
Сдан
студия 25,80 м2 5 514 658
Этаж 6/6
МО, ЖК «Пироговская ривьера»
Медведково
26 мин.
Сдан
Посмотреть 262 квартиры в ЖК «Пироговская ривьера»
1-комн. квартира 35,30 м2 7 966 191
Этаж 9/9
МО, ЖК «Пироговская ривьера»
Медведково
26 мин.
Сдан
1-комн. квартира 36,20 м2 7 219 054
Этаж 8/9
МО, ЖК «Пироговская ривьера»
Медведково
26 мин.
Сдан
1-комн. квартира 36,30 м2 7 258 938
Этаж 8/9
МО, ЖК «Пироговская ривьера»
Медведково
26 мин.
Сдан
1-комн. квартира 36,50 м2 7 337 392
Этаж 9/9
МО, ЖК «Пироговская ривьера»
Медведково
26 мин.
Сдан
Посмотреть 276 квартир в ЖК «Пироговская ривьера»
2-комн. квартира 48,60 м2 10 120 814
Этаж 4/9
МО, ЖК «Пироговская ривьера»
Медведково
26 мин.
Строится
2-комн. квартира 52,60 м2 10 089 490
Этаж 4/9
МО, ЖК «Пироговская ривьера»
Медведково
26 мин.
Строится
2-комн. квартира 52,70 м2 10 108 672
Этаж 4/9
МО, ЖК «Пироговская ривьера»
Медведково
26 мин.
Строится
2-комн. квартира 55,70 м2 9 635 923
Этаж 4/9
МО, ЖК «Пироговская ривьера»
Медведково
26 мин.
Строится
Посмотреть 204 квартиры в ЖК «Пироговская ривьера»
3-комн. квартира 79,20 м2 15 746 628
Этаж 5/9
МО, ЖК «Пироговская ривьера»
Медведково
26 мин.
Строится
3-комн. квартира 80,30 м2 13 585 058
Этаж 3/9
МО, ЖК «Пироговская ривьера»
Медведково
26 мин.
Строится
3-комн. квартира 80,40 м2 14 393 929
Этаж 2/9
МО, ЖК «Пироговская ривьера»
Медведково
26 мин.
Сдан
3-комн. квартира 80,60 м2 15 108 298
Этаж 9/9
МО, ЖК «Пироговская ривьера»
Медведково
26 мин.
Сдан
Посмотреть 64 квартиры в ЖК «Пироговская ривьера»

Скидки и спецпредложения от застройщиков

ЖК «Пироговская ривьера» на карте

Выгодные предложения на новостройки

Самый полезный отзыв
С
08 февраля 2018
Оценка:
Забронировала квартиру в 10 доме ,2 месяца назад.По договору должно быть оформление в течении 21 день, и до сих пор ничего не происходит.Менеджер утешает -мол все гладко да сладко,а что на самом деле не понятно.Вот жду хоть какой то ясности.
Ответить
Полезный отзыв?
Самый новый отзыв
ИС
20 ноября 2025
Оценка:
Планировки
Способы покупки
Отличное место для спокойной жизни, сейчас квартиры от 5 млн рублей
Ответить
Полезный отзыв?
Добавьте отзыв, заполнив личные данные, или сначала войдите на сайт, тогда информация будет автоматически взята из личного профиля.
Оценка*