Рейтинг@Mail.ru
Переверните экран
Новостройки Квартиры Ипотека Новостройки Москвы Новостройки Подмосковья Новостройки Новой Москвы Готовые новостройки Новостройки на карте Акции от застройщиков Коммерческие помещения Продавцы и застройщики Панорамы новостроек Видеообзор новостроек Экспертиза новостроек Экология Москвы и Подмосковья Студии 1-комнатные 2-комнатные 3-комнатные Квартиры на карте Ипотечный калькулятор Семейная ипотека Военная ипотека Банки и программы Медиа Новости недвижимости Мнение эксперта Аналитика рынка Покупателю Экспертиза новостроек Эксперты и авторы О проекте Контакты Реклама на сайте Vk Youtube Telegram Дзен Машиноместа Апартаменты #траншевая ипотека #рассрочка ИТ-ипотека Квартиры со скидками до 40% Видео 360° новостроек Субсидированная застройщиком Rutube Поиск дома в Москве Программа реновации в Москве Новостройки премиум-класса Новостройки бизнес-класса Рассрочка Траншевая ипотека Дома и коттеджи Бизнес-центры Бизнес-центры в Москве Бизнес-центры рядом с метро Строящиеся бизнес-центры Бизнес-центры класса A Бизнес-центры класса B Ипотека со ставкой 0,1%
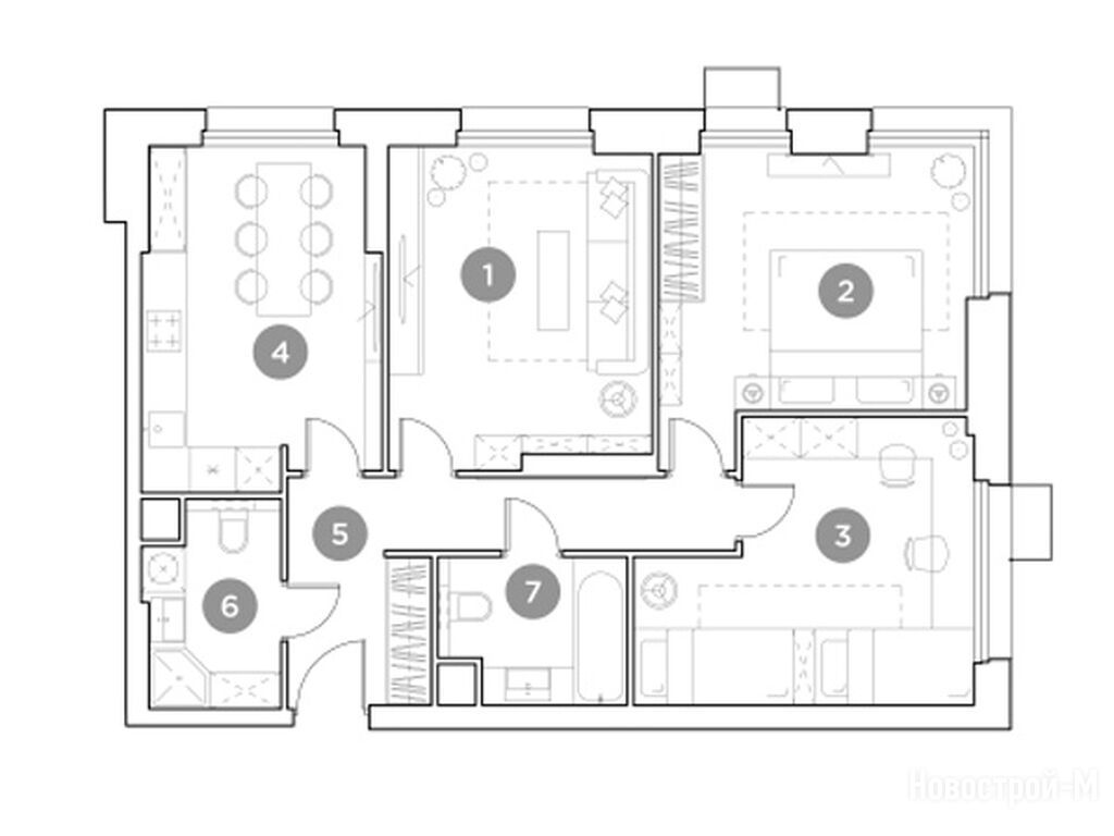
3-комн. квартира, 75.90 м2, 25 этаж
Сдан
19 488 843 
256 770 2
обновлено 3 апреля

Описание 3-комн. квартиры

Новостройка
Застройщик
Срок ГК
Дом сдан
Стадия строительства
выдача ключей + заселение
Тип проекта
Общая площадь
75.90 м2
Этаж
25 / 25
Грузовой лифт
есть

Расположение 3-комн. квартиры

Станция МЦД
Дом
3
Адрес
ул. Гоголя, д. 3, д.3к2, секция 2

Способы покупки

Особенности

Продается трехкомнатная квартира в новостройке ЖК «Гоголь Парк» по адресу Московская область, Люберцы городской округ, Люберцы, ул. Гоголя, д. 3, д.3к2. Общая площадь квартиры - 75.9 кв. м. Тип проекта, по которому построен дом — Монолит, компания-застройщик — ГК «Основа». Стоимость квартиры — 19 488 843 руб. Способы оплаты можно уточнить у продавца. Более подробная информация по телефону.
Инфоцентр новостроек
Инфоцентр новостроек
+7 (499) 705-91-41
Время работы 9:00 — 21:00
1-комн. квартира 37,00 м2 12 136 000
Этаж 22/22
МО, ЖК «Гоголь Парк»
Лухмановская
5 мин.
Сдан
1-комн. квартира 39,40 м2 16 942 000
Этаж 22/22
МО, ЖК «Гоголь Парк»
Лухмановская
5 мин.
Сдан
1-комн. квартира 50,70 м2 15 970 500
Этаж 25/25
МО, ЖК «Гоголь Парк»
Лухмановская
5 мин.
Сдан
2-комн. квартира 64,90 м2 16 845 444
Этаж 22/22
МО, ЖК «Гоголь Парк»
Лухмановская
5 мин.
Сдан
Этаж 21/25
МО, ЖК «Гоголь Парк»
Лухмановская
5 мин.
Сдан
2-комн. квартира 67,50 м2 18 886 500
Этаж 20/25
МО, ЖК «Гоголь Парк»
Лухмановская
5 мин.
Сдан
2-комн. квартира 67,60 м2 17 235 972
Этаж 24/25
МО, ЖК «Гоголь Парк»
Лухмановская
5 мин.
Сдан
Посмотреть 6 квартир в ЖК «Гоголь Парк»
3-комн. квартира 71,90 м2 21 591 570
Этаж 2/22
МО, ЖК «Гоголь Парк»
Лухмановская
5 мин.
Сдан
3-комн. квартира 75,70 м2 23 747 090
Этаж 24/25
МО, ЖК «Гоголь Парк»
Лухмановская
5 мин.
Сдан
3-комн. квартира 75,80 м2 20 943 540
Этаж 21/25
МО, ЖК «Гоголь Парк»
Лухмановская
5 мин.
Сдан
Посмотреть 6 квартир в ЖК «Гоголь Парк»

Скидки и спецпредложения от застройщиков

ЖК «Гоголь Парк» на карте

Выгодные предложения на новостройки

Отзывы о ЖК «Гоголь Парк»

Самый полезный отзыв
И
04 июня 2018
Оценка:
Большой плюс такой локации ст.м. Лухмановская очень и очень рядом! К концу строительства этого дома, она будет точно открыта, тут уж нет сомнений) жду старт продаж, интересно, какие озвучат цены.
Ответить
Самый новый отзыв
МК
20 ноября 2025
Оценка:
Переехали в Гоголь Парк и довольны. До метро Лухмановская – 5-7 минут неспешным шагом, это главный плюс. Фасады смотрятся свежо и современно. Во дворе приятно, аккуратно детские и спортивные площадки есть, дети довольны.
Ответить

Оставить отзыв

Добавьте отзыв, заполнив личные данные, или сначала войдите на сайт, тогда информация будет автоматически взята из личного профиля.
Оценка*